Advertorial

Pozvánka na 2. ročník stavebného veľtrhu BigMarket na Slovensku

Na podujatí sa predstaví až 37 vystavovateľov - popredných dodávateľov stavebných materiálov a inovácií s prezentáciou...

Hotel Hirschen Spa House, Rakúsko

Novotvar v prostredí alpskej obce.

Vytvorte si kúpeľňu snov: dizajnové riešenie od značky hansgrohe

Hansgrohe - prémiová značka kúpeľňových riešení, ponúka nadčasový dizajn, technickú precíznosť a udržateľné inovácie...

Okná Internorm za minuloročné ceny + hliníkový kryt zdarma!

Využite špeciálnu akciu Internorm: okná za minuloročné ceny a hliníkový kryt úplne zadarmo. Ponuka je časovo obmedzená!

Moderné plynové technológie: Efektivita a inovácie pre 21. storočie

Sumarizácia najdôležitejších inovácií, ktoré redefinujúcich využitie tohto energetického zdroja.

Utesňovanie spodných stavieb pomocou hydro-aktívnej fólie AMPHIBIA.

AMPHIBIA 3000 GRIP 1.3 od spoločnosti ATRO predstavuje modernú hydroizolačnú technológiu, ktorá spája vysokú odolnosť,...

Dekarbonizácia individuálneho vykurovania domácností – Green Deal evolučne a nie revolučne

Ambiciózne plány EK narazili na ekonomické možnosti domácností v jednotlivých členských štátoch –...

Minimalistické dvere IDEA – technická precíznosť a čistota prevedenia

IDEA DOOR od spoločnosti JAP prináša do interiéru čistý minimalistický vzhľad vďaka bezrámovému riešeniu a precíznej...

Dom s výhľadom na údolie, Dlouhý Most (ČR)

Kontinuita riešenia od vonkajšieho obkladu až po kovania a kľučky.

Schell Vitus – osvedčené riešenie pre sprchy a umývadlá vo verejnom sektore s viac ako desaťročnou tradíciou

Nástenné nadomietkové armatúry Vitus sú mimoriadne vhodné pre rýchlu a efektívnu...

Kompozitné okná predstavujú súčasnosť a budúcnosť

Okenné profily z kompozitného materiálu RAU-FIPRO X od spoločnosti Rehau sú v porovnaní s tradičnými plastovými profilmi mnohonásobne...

Myotis - stoly 2025

Najnovší sortiment stolov pre zariadenie interiérov...

Priemyselné sklenené priečky Dorsis Digero: svetelné rozhranie pre moderné interiéry

Spojenie moderného dizajnu, funkčnosti a svetla do harmonického architektonického prvku.

Význam prirodzeného svetla pre moderné a flexibilné pracovné prostredie

Kancelárska budova Baumit v slovinskom Trzine prešla premenou na moderné a udržateľné pracovisko. Architekti kládli dôraz...

Konferencia Xella Dialóg predstaví novinky a trendy v stavebníctve

Mottom šiesteho ročníku on-line konferencie odborníkov Xella Dialóg je Efektívny návrh budov 2025+: zmeny a riešenia

Rodinný dom Praha - Zbraslav

Komplikovaný kontext, snaha o maximálne preslnenie obytných priestorov.
Diela
Red 405.01.2020
12870+12
Rodinný dom Praha - Zbraslav
Autori: Ing. arch. Petr Moráček, Ing. arch. Jana Zoubková, Ing. arch. Pavel MatyskaSpolupráca: raz23Návrh: 2017 - 2018Realizácia: 2018 - 2018Adresa: Zbraslav , Praha, Česká republikaPublikované: 5. január 2020

Dom na malom pozemku, v nesúrodej zástavbe okrajovej pražskej štvrti Zbraslav. Rozsiahle strešné terasy s výhľadom, rozširujú uzavretý priestor záhrady.

"Dům ve Zbraslavi roste za sluncem. Jeho tvar, orientace vnitřních prostor, jejich proporce a vazby jsou v podmínkách nevelkého pozemku ve stávající zástavbě, navíc stíněného při jižní hraně sousedními objekty, odvozeny z touhy dostat do domu co nejvíce světla a slunce," vysvetľujú koncept architekti z pražského ateliéru Mimosa.

Foto: Tomáš Souček
Foto: Tomáš Souček
Foto: Tomáš Souček
Foto: Tomáš Souček
Foto: Tomáš Souček
Foto: Tomáš Souček
Foto: Tomáš Souček
Foto: Tomáš Souček

Dom stojí na malom pozemku, v rámci mestskej štvrte, na južnom okraji Prahy. Počas zimných mesiacov je parcela takmer úplne zatienená, slnko sem zasvieti iba chvíľu pred západom. Prevýšeným priestorom obývacej izby a jedálne s kuchyňou ale napriek tomu pás slnečného svitu prechádza v čase obeda. Po zatienení štítom protiľahlej stodoly sa do centrálneho priestoru domu slnečné lúče vracajú opät v čase večere. So začiatkom jari sa slnko prestane "schovávať" a v tomto stave vydrží až do neskorej jesene.

Čím vyššie dom rastie, tím viac sa vonkajšia obálka otvára. V izbách na poschodí môžu obyvatelia vstávať so svitaním, alebo zaspávať s podvečerným slnkom.

Tretie poschodie ustúpené k severnej hrane domu je otvorené smerom na rozmernú strešnú terasu. Výhľady na neďaleký Husův sbor, Belvedér, vrch Havlín a keltské hradisko Závist za údolím Vltavy vyvažujú uzavretosť záhrady.

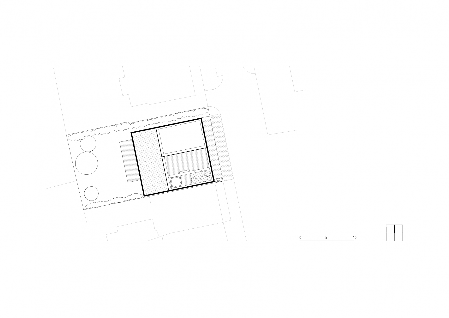
Situácia,
Situácia,Autor: Mimosa architekti
Pôdorys 1. NP,
Pôdorys 1. NP,Autor: Mimosa architekti
Pôdorys 2. NP,
Pôdorys 2. NP,Autor: Mimosa architekti
Pôdorys 3. NP,
Pôdorys 3. NP,Autor: Mimosa architekti
Rez,
Rez,Autor: Mimosa architekti
Rez,
Rez,Autor: Mimosa architekti
Foto: Tomáš Souček
Foto: Tomáš Souček
Foto: Tomáš Souček
Foto: Tomáš Souček
Foto: Tomáš Souček
Foto: Tomáš Souček
Foto: Tomáš Souček
Foto: Tomáš Souček
Foto: Tomáš Souček
Foto: Tomáš Souček
Foto: Tomáš Souček
Foto: Tomáš Souček
Foto: Tomáš Souček

Poloha diela

Ing. arch. Petr Moráček
Ing. arch. Jana Zoubková
Ing. arch. Pavel Matyska
Vložené
4. november 2019
0
1287
Hlavný obsahHlavný obsah
Čakajte prosím