Na podujatí sa predstaví až 37 vystavovateľov - popredných dodávateľov stavebných materiálov a inovácií s prezentáciou...
Novotvar v prostredí alpskej obce.
Hansgrohe - prémiová značka kúpeľňových riešení, ponúka nadčasový dizajn, technickú precíznosť a udržateľné inovácie...
Využite špeciálnu akciu Internorm: okná za minuloročné ceny a hliníkový kryt úplne zadarmo. Ponuka je časovo obmedzená!
Sumarizácia najdôležitejších inovácií, ktoré redefinujúcich využitie tohto energetického zdroja.
AMPHIBIA 3000 GRIP 1.3 od spoločnosti ATRO predstavuje modernú hydroizolačnú technológiu, ktorá spája vysokú odolnosť,...
Ambiciózne plány EK narazili na ekonomické možnosti domácností v jednotlivých členských štátoch –...
IDEA DOOR od spoločnosti JAP prináša do interiéru čistý minimalistický vzhľad vďaka bezrámovému riešeniu a precíznej...
Kontinuita riešenia od vonkajšieho obkladu až po kovania a kľučky.
Nástenné nadomietkové armatúry Vitus sú mimoriadne vhodné pre rýchlu a efektívnu...
Okenné profily z kompozitného materiálu RAU-FIPRO X od spoločnosti Rehau sú v porovnaní s tradičnými plastovými profilmi mnohonásobne...
Najnovší sortiment stolov pre zariadenie interiérov...
Spojenie moderného dizajnu, funkčnosti a svetla do harmonického architektonického prvku.
Kancelárska budova Baumit v slovinskom Trzine prešla premenou na moderné a udržateľné pracovisko. Architekti kládli dôraz...
Mottom šiesteho ročníku on-line konferencie odborníkov Xella Dialóg je Efektívny návrh budov 2025+: zmeny a riešenia

"Avokádo je skvělé syrové 'jen tak' nebo upravené na 100+1 způsob. Výrazně barevné i pastelově tlumené. Stejně pestrý by měl být Avocado gang..." vysvetľuje architekt Petr Moráček. Bistro sa snaží očakávania naplniť. Či už ide o jedlo, alebo architektúru. Úspešný recept vyžaduje atraktívny koncept a kvalitné suroviny.
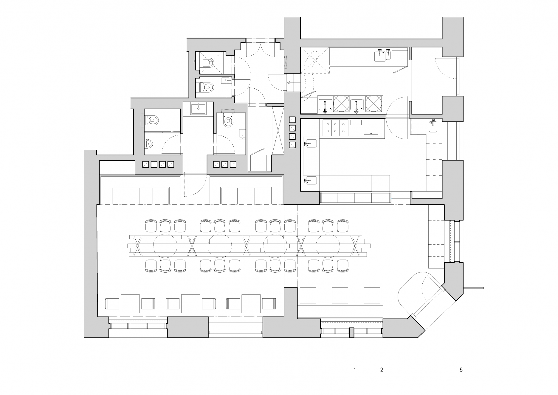
Reštaurácia vznikla v prízemí nárožného činžiaku na Lyčkovom námestí v Prahe.
Ústrednú polohu v rámci odbytovej časti zaujal viac ako deväť metrov dlhý stôl s 22 miestami na sedenie, ktorý dopĺňajú ďaľšie kapacity stituované pozdĺž stien.
Otvorená kuchyňa umožňuje hosťom pohľad na prípravu čerstvých porcií. “Pestré barvy stolu jsou odvozené od výrazné barevnosti avokáda a jídel z něj připravených,” vysvetľujú autori. "Nefarby" v škále odtieňov sivej tvoria neutrálne pozadie pre pestré ústredné prvky - stôl, stoličky a v prvom rade servírované porcie.
Doska stola je vyskladaná z masívnych smrekových hranolov s prierezom 160 x 100mm, ktoré nesie podnož zvarená z pozinkovaných oceľových profilov. Smrekové drevo sa v interiéri objavuje aj v podobe lazúrovanej biodosky, pozinkovanú oceľ nájdeme aj na rámoch ďalších stolov a stoličiek, na svietidlách, umývadlách, alebo obklade steny oddeľujúcej odbytovú časť a zázemie reštaurácie. Celok dopĺňa cementová podlahová stierka a jemná svetlosivá grafika. "Dost prostoru každopádně zůstává pro avokádo samotné - ať už v očekávatelné podobě guacamole nebo avokádových lívanců se slaninou," dodávajú s nadhľadom autori.
Použité materiály:
Autor: Mimosa architekti
Podklady a fotografie: BoysPlayNice