Advertorial

Pozvánka na 2. ročník stavebného veľtrhu BigMarket na Slovensku

Na podujatí sa predstaví až 37 vystavovateľov - popredných dodávateľov stavebných materiálov a inovácií s prezentáciou...

Hotel Hirschen Spa House, Rakúsko

Novotvar v prostredí alpskej obce.

Vytvorte si kúpeľňu snov: dizajnové riešenie od značky hansgrohe

Hansgrohe - prémiová značka kúpeľňových riešení, ponúka nadčasový dizajn, technickú precíznosť a udržateľné inovácie...

Okná Internorm za minuloročné ceny + hliníkový kryt zdarma!

Využite špeciálnu akciu Internorm: okná za minuloročné ceny a hliníkový kryt úplne zadarmo. Ponuka je časovo obmedzená!

Moderné plynové technológie: Efektivita a inovácie pre 21. storočie

Sumarizácia najdôležitejších inovácií, ktoré redefinujúcich využitie tohto energetického zdroja.

Utesňovanie spodných stavieb pomocou hydro-aktívnej fólie AMPHIBIA.

AMPHIBIA 3000 GRIP 1.3 od spoločnosti ATRO predstavuje modernú hydroizolačnú technológiu, ktorá spája vysokú odolnosť,...

Dekarbonizácia individuálneho vykurovania domácností – Green Deal evolučne a nie revolučne

Ambiciózne plány EK narazili na ekonomické možnosti domácností v jednotlivých členských štátoch –...

Minimalistické dvere IDEA – technická precíznosť a čistota prevedenia

IDEA DOOR od spoločnosti JAP prináša do interiéru čistý minimalistický vzhľad vďaka bezrámovému riešeniu a precíznej...

Dom s výhľadom na údolie, Dlouhý Most (ČR)

Kontinuita riešenia od vonkajšieho obkladu až po kovania a kľučky.

Schell Vitus – osvedčené riešenie pre sprchy a umývadlá vo verejnom sektore s viac ako desaťročnou tradíciou

Nástenné nadomietkové armatúry Vitus sú mimoriadne vhodné pre rýchlu a efektívnu...

Kompozitné okná predstavujú súčasnosť a budúcnosť

Okenné profily z kompozitného materiálu RAU-FIPRO X od spoločnosti Rehau sú v porovnaní s tradičnými plastovými profilmi mnohonásobne...

Myotis - stoly 2025

Najnovší sortiment stolov pre zariadenie interiérov...

Priemyselné sklenené priečky Dorsis Digero: svetelné rozhranie pre moderné interiéry

Spojenie moderného dizajnu, funkčnosti a svetla do harmonického architektonického prvku.

Význam prirodzeného svetla pre moderné a flexibilné pracovné prostredie

Kancelárska budova Baumit v slovinskom Trzine prešla premenou na moderné a udržateľné pracovisko. Architekti kládli dôraz...

Konferencia Xella Dialóg predstaví novinky a trendy v stavebníctve

Mottom šiesteho ročníku on-line konferencie odborníkov Xella Dialóg je Efektívny návrh budov 2025+: zmeny a riešenia

Rodinný dom v Dobříši

Mäkký, v pôdoryse skoro "vajíčkový" dom je asi tou najpríhodnejšou architektúrou vhodnou na prezentáciu k veľkonočnému termínu :-)
Diela
Red 316.04.2017
8630+9
Rodinný dom v Dobříši
Autori: Ing. arch. Petr Moráček, Ing. arch. Jana Zoubková, Ing. arch. Pavel MatyskaSpolupráca: Bc. Růžena ŠenoldováNávrh: 2015 - 2016Realizácia: 2016 - 2016Adresa: Dobříš , Česká republikaPublikované: 16. apríl 2017

Dom stojí v chatovej kolónii v susedstve malých domčekov postavených svojpomocne podľa schopností a možností ich vlastníkov. „Námi navržený dům je také trochu tvarovou hříčkou motivovanou přáním jeho budoucích obyvatel mít ,měkký‘ dům, který ,nebude krabicí‘ a bude postavený z přírodních materiálů," objasňujú koncept autori.

Foto: BoysPlayNice

Dom je umiestnený na severnej polovici pozemku, južná časť pozemku je vyhradená pre záhradu. Rozmery stavby sa odvíjajú od miestnych regulatívov a veľkosti okolitých stavieb.

Situácia
SituáciaAutor: Mimosa Architekti

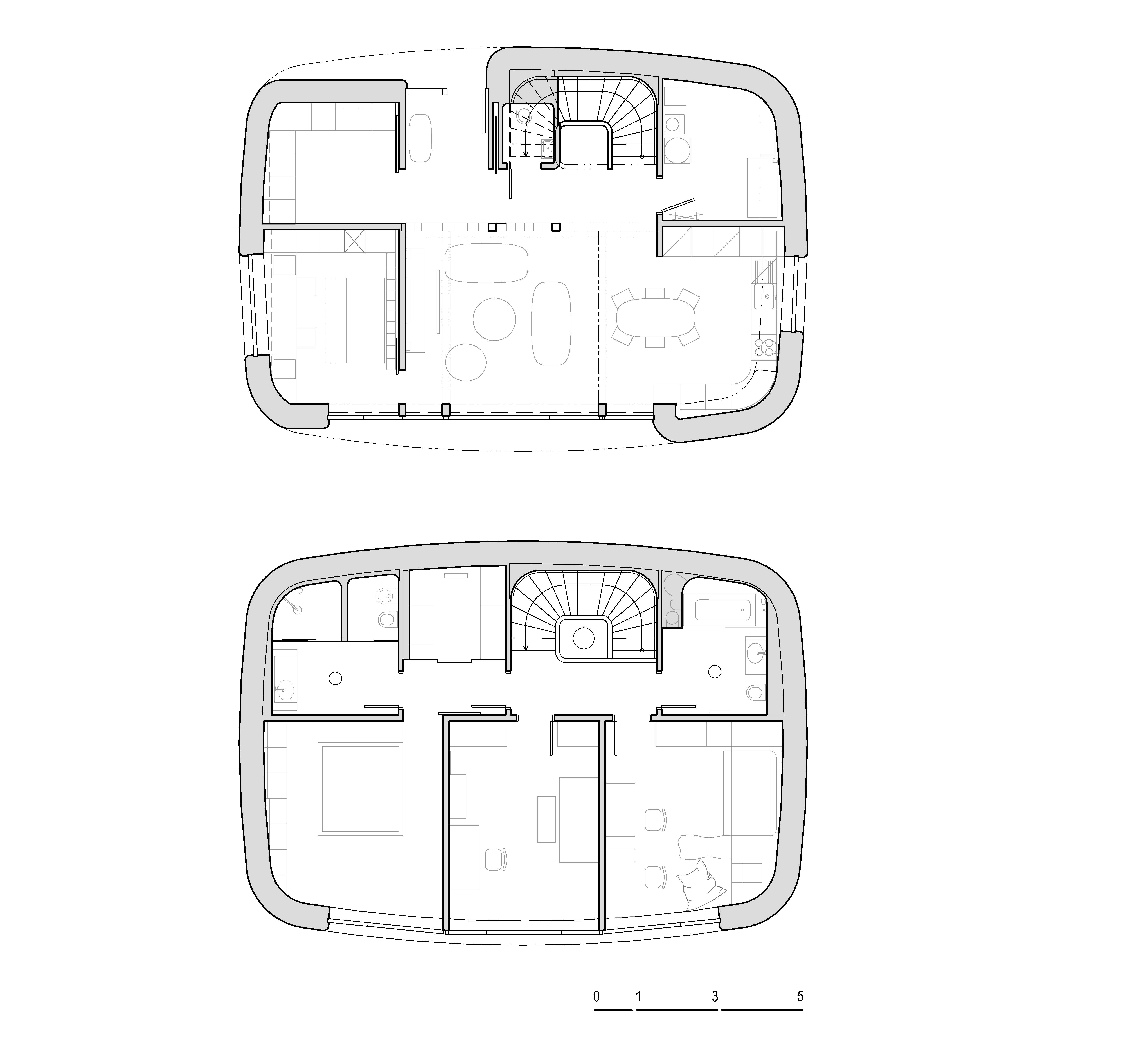
Dispozičné riešenie sleduje orientáciu a umiestnenie domu, obytné miestnosti sú orientované do záhrady, v severnej časti domu sú umiestnené obslužné miestnosti. Na prízemí tvar domu zdôrazňuje vstup a otvorenie do záhradnej terasy.

Pôdorysy
PôdorysyAutor: Mimosa Architekti

Z konštrukčného hľadiska je dom drevostavbou z masívnych drevených panelov. Plášť je zateplený drevovláknitou izoláciou, finálnou vrstvou sú smrekovcové šindle.

Rezy
RezyAutor: Mimosa Architekti

Fasáda zo štiepaných šindľov dáva domu drobnejšiu mierku a spolupatričnosť s lesom v susedstve. Obklad relatívne ľahko kopíruje tvar stavby. V interiéri je vo veľkej miere priznaná konštrukčná podstata domu - masívne drevené panely použité na stenách a stropoch. Časť stien je z interiéru pokrytá šindľami a hlinenou omietkou. Podlahy sú v celom dome kaučukové.

Objekt je vykurovaný tepelným čerpadlom typu vzduch-voda. K dosiahnutiu pasívneho štandardu stavby prispelo použitie rekuperácie.

Foto: BoysPlayNice
Foto: BoysPlayNice
Foto: BoysPlayNice
Foto: BoysPlayNice
Foto: BoysPlayNice
Foto: BoysPlayNice
Foto: BoysPlayNice
Foto: BoysPlayNice
Foto: BoysPlayNice
Foto: BoysPlayNice
Foto: BoysPlayNice
Foto: BoysPlayNice
Foto: BoysPlayNice

Poloha diela

Ing. arch. Petr Moráček
Ing. arch. Jana Zoubková
Ing. arch. Pavel Matyska
Vložené
5. apríl 2017
0
863
Hlavný obsahHlavný obsah
Čakajte prosím