Advertorial

Pozvánka na 2. ročník stavebného veľtrhu BigMarket na Slovensku

Na podujatí sa predstaví až 37 vystavovateľov - popredných dodávateľov stavebných materiálov a inovácií s prezentáciou...

Hotel Hirschen Spa House, Rakúsko

Novotvar v prostredí alpskej obce.

Vytvorte si kúpeľňu snov: dizajnové riešenie od značky hansgrohe

Hansgrohe - prémiová značka kúpeľňových riešení, ponúka nadčasový dizajn, technickú precíznosť a udržateľné inovácie...

Okná Internorm za minuloročné ceny + hliníkový kryt zdarma!

Využite špeciálnu akciu Internorm: okná za minuloročné ceny a hliníkový kryt úplne zadarmo. Ponuka je časovo obmedzená!

Moderné plynové technológie: Efektivita a inovácie pre 21. storočie

Sumarizácia najdôležitejších inovácií, ktoré redefinujúcich využitie tohto energetického zdroja.

Utesňovanie spodných stavieb pomocou hydro-aktívnej fólie AMPHIBIA.

AMPHIBIA 3000 GRIP 1.3 od spoločnosti ATRO predstavuje modernú hydroizolačnú technológiu, ktorá spája vysokú odolnosť,...

Dekarbonizácia individuálneho vykurovania domácností – Green Deal evolučne a nie revolučne

Ambiciózne plány EK narazili na ekonomické možnosti domácností v jednotlivých členských štátoch –...

Minimalistické dvere IDEA – technická precíznosť a čistota prevedenia

IDEA DOOR od spoločnosti JAP prináša do interiéru čistý minimalistický vzhľad vďaka bezrámovému riešeniu a precíznej...

Dom s výhľadom na údolie, Dlouhý Most (ČR)

Kontinuita riešenia od vonkajšieho obkladu až po kovania a kľučky.

Schell Vitus – osvedčené riešenie pre sprchy a umývadlá vo verejnom sektore s viac ako desaťročnou tradíciou

Nástenné nadomietkové armatúry Vitus sú mimoriadne vhodné pre rýchlu a efektívnu...

Kompozitné okná predstavujú súčasnosť a budúcnosť

Okenné profily z kompozitného materiálu RAU-FIPRO X od spoločnosti Rehau sú v porovnaní s tradičnými plastovými profilmi mnohonásobne...

Myotis - stoly 2025

Najnovší sortiment stolov pre zariadenie interiérov...

Priemyselné sklenené priečky Dorsis Digero: svetelné rozhranie pre moderné interiéry

Spojenie moderného dizajnu, funkčnosti a svetla do harmonického architektonického prvku.

Význam prirodzeného svetla pre moderné a flexibilné pracovné prostredie

Kancelárska budova Baumit v slovinskom Trzine prešla premenou na moderné a udržateľné pracovisko. Architekti kládli dôraz...

Konferencia Xella Dialóg predstaví novinky a trendy v stavebníctve

Mottom šiesteho ročníku on-line konferencie odborníkov Xella Dialóg je Efektívny návrh budov 2025+: zmeny a riešenia

JETLAG - tea & wine bar, Praha

Malý bar v centre Prahy. Od názvu “Jetlag” je odvodený priestorový koncept cestovania medzi časovými pásmami. Na necelých pätnástich metroch je tak možné “preletieť” celý svet. Nástroj na precízny úlet v precíznom prostredí.
Diela
Red 331.08.2017
14180+15
JETLAG - tea & wine bar, Praha
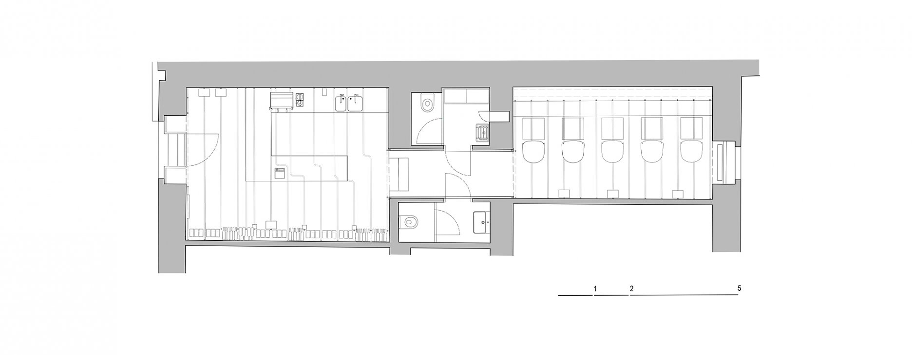
Autori: Ing. arch. Petr Moráček, Ing. arch. Jana Zoubková, Ing. arch. Pavel MatyskaSpolupráca: Ing. arch. Lenka Pechanová, MgA. Martin Odehnal (grafika)Investor: Martin VorelPodlažná plocha: 55m2Návrh: 2016 - 2016Realizácia: 2017 - 2017Adresa: Laubova , 2, Praha, Česká republikaPublikované: 31. august 2017

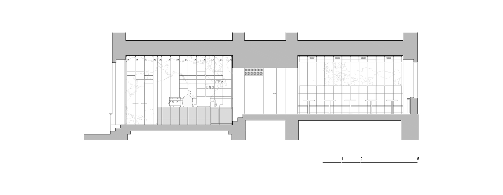
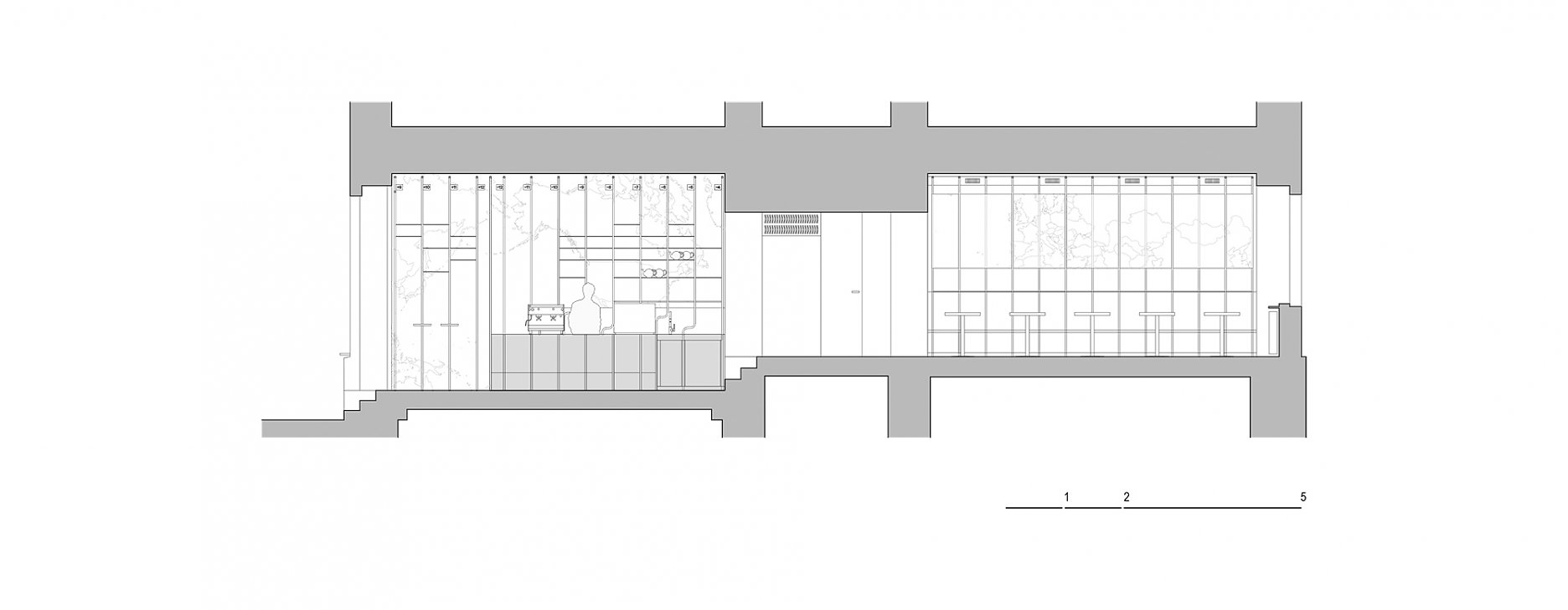
Podstatou priestorového riešenia Jetlag Baru je “rozsekanie” priestoru do časových pásiem. Každé pásmo začína a končí krivkou vymedzujúcou časť priestoru. Tvarovaním kriviek sú tvorené jednotlivé časti baru - bar samotný, police na víno a čaj, svetlá, lavice. Zakrivenie skutočných časových pásiem je abstrahované do tvaroslovia baru. Priestor tvorený krivkami je zámerne nejasný, “rozmazaný”. Rovnako ako čas, keď človek cestuje dostatočne ďaľeko, dlho a často.

Základným materiálom je lesklý kov - nerezová oceľ. Lesklé, subtilné oceľové krivky sú odrazom myslených čiar vymedzujúcich časové pásma. Kov asociuje lesklé trupy lietadiel s nitovanými plechmi aj nerezové vinárske nádoby. Krivky prebiehajú celým priestorom vrátane podlahy a zariadenia. V tuneli medzi oboma priestormi je lesklý materiál použitý plošne. Je tak trochu trupom lietadla aj pokriveným zrkadlom.

Foto: BoysPlayNice
Foto: BoysPlayNice
Foto: BoysPlayNice
Foto: BoysPlayNice
Foto: BoysPlayNice
Foto: BoysPlayNice
Rezopohľad
RezopohľadAutor: Mimosa
Rezopohľad
RezopohľadAutor: Mimosa
Rezopohľad
RezopohľadAutor: Mimosa
Rezopohľad
RezopohľadAutor: Mimosa
Foto: BoysPlayNice
Foto: BoysPlayNice
Foto: BoysPlayNice
Foto: BoysPlayNice
Foto: BoysPlayNice
Foto: BoysPlayNice
Foto: BoysPlayNice
Foto: BoysPlayNice
Foto: BoysPlayNice
Foto: BoysPlayNice
Foto: BoysPlayNice
Foto: BoysPlayNice
Foto: BoysPlayNice
Foto: BoysPlayNice
Foto: BoysPlayNice
Foto: BoysPlayNice
Foto: BoysPlayNice
Foto: BoysPlayNice

Probudíte se v tea and wine baru na Jiřáku.
Je tu namačkaný celý svět.
24 časových pásem za pár vteřin.
Strašný fofr.
Vejdete dnes. Stačí pár kroků a je včera.
Na konec baru je to šest hodin.
Dalších třináct hodin k poslednímu stolku u okna.

Víno z Chille, čaj z Cejlonu.
9 hodin v 200ml.
Rakousko, Čína.
8 hodin.
Hodinku ztratíš, hodinku získáš.

JETLAG – tea & wine bar.

Podklady: Boysplaynice, Mimosa architekti

Poloha diela

Ing. arch. Petr Moráček
Ing. arch. Jana Zoubková
Ing. arch. Pavel Matyska
Vložené
31. august 2017
0
1418
Hlavný obsahHlavný obsah
Čakajte prosím