Advertorial

Pozvánka na 2. ročník stavebného veľtrhu BigMarket na Slovensku

Na podujatí sa predstaví až 37 vystavovateľov - popredných dodávateľov stavebných materiálov a inovácií s prezentáciou...

Hotel Hirschen Spa House, Rakúsko

Novotvar v prostredí alpskej obce.

Vytvorte si kúpeľňu snov: dizajnové riešenie od značky hansgrohe

Hansgrohe - prémiová značka kúpeľňových riešení, ponúka nadčasový dizajn, technickú precíznosť a udržateľné inovácie...

Okná Internorm za minuloročné ceny + hliníkový kryt zdarma!

Využite špeciálnu akciu Internorm: okná za minuloročné ceny a hliníkový kryt úplne zadarmo. Ponuka je časovo obmedzená!

Moderné plynové technológie: Efektivita a inovácie pre 21. storočie

Sumarizácia najdôležitejších inovácií, ktoré redefinujúcich využitie tohto energetického zdroja.

Utesňovanie spodných stavieb pomocou hydro-aktívnej fólie AMPHIBIA.

AMPHIBIA 3000 GRIP 1.3 od spoločnosti ATRO predstavuje modernú hydroizolačnú technológiu, ktorá spája vysokú odolnosť,...

Dekarbonizácia individuálneho vykurovania domácností – Green Deal evolučne a nie revolučne

Ambiciózne plány EK narazili na ekonomické možnosti domácností v jednotlivých členských štátoch –...

Minimalistické dvere IDEA – technická precíznosť a čistota prevedenia

IDEA DOOR od spoločnosti JAP prináša do interiéru čistý minimalistický vzhľad vďaka bezrámovému riešeniu a precíznej...

Dom s výhľadom na údolie, Dlouhý Most (ČR)

Kontinuita riešenia od vonkajšieho obkladu až po kovania a kľučky.

Schell Vitus – osvedčené riešenie pre sprchy a umývadlá vo verejnom sektore s viac ako desaťročnou tradíciou

Nástenné nadomietkové armatúry Vitus sú mimoriadne vhodné pre rýchlu a efektívnu...

Kompozitné okná predstavujú súčasnosť a budúcnosť

Okenné profily z kompozitného materiálu RAU-FIPRO X od spoločnosti Rehau sú v porovnaní s tradičnými plastovými profilmi mnohonásobne...

Myotis - stoly 2025

Najnovší sortiment stolov pre zariadenie interiérov...

Priemyselné sklenené priečky Dorsis Digero: svetelné rozhranie pre moderné interiéry

Spojenie moderného dizajnu, funkčnosti a svetla do harmonického architektonického prvku.

Význam prirodzeného svetla pre moderné a flexibilné pracovné prostredie

Kancelárska budova Baumit v slovinskom Trzine prešla premenou na moderné a udržateľné pracovisko. Architekti kládli dôraz...

Konferencia Xella Dialóg predstaví novinky a trendy v stavebníctve

Mottom šiesteho ročníku on-line konferencie odborníkov Xella Dialóg je Efektívny návrh budov 2025+: zmeny a riešenia

Letný dom "Troika", Bratislava - Vajnory

Život v záhrade.
Diela
Red 430.06.2020
91740+87
Letný dom "Troika", Bratislava - Vajnory
Autori: mgr. art. Tomáš Tokarčík, Mgr. art. Aleš ŠedivecPlocha pozemku: 1317 m2Zastavaná plocha: 100 m2Podlažná plocha: 81 m2Návrh: 2018 - 2019Realizácia: 2109 - 2020Adresa: Bratislava - Vajnory, SlovenskoPublikované: 30. jún 2020

Rekreačný objekt ako doplnok rodinného života. Trojica za sebou radených identických objemov vytvára plynulý gradient - od uzavretej nočnej časti, cez presklenú obývaciu zónu, až po prestrešenú exteriérovú terasu. Dom sa otvára k centrálnej pohľadovej osi, ktorá smeruje k bazénu a riadkom ovocných stromov.

Foto: Eva Benková

Letný dom vo Vajnoroch pohlcuje rozsiahla záhrada. "Dom formálne odkazuje k dočasným kempingovým konceptom bývania, k záhradným domom, ale aj k tradičnej zástavbe Vajnor. Výsledkom je “troika“ - kompozícia troch domov, ktoré tvoria jeden priestor," vysvetľujú východiská a koncept architekti z bratislavského ateliéru Totalstudio.

Foto: Eva Benková
Foto: Eva Benková
Foto: Eva Benková

Na jednoduchú murovanú stavbu nadväzuje oceľová konštrukciou strechy, svetlú omietku dopĺňajú drevené okná, strešná krytina je z vlnitého plechu. Terasa je prekrytá vlnitým polykarbonátom.

Foto: Eva Benková

Látkové tienenie s reflexnými hliníkovými pásikmi umožňuje meniť intenzitu preslnenia terasy a dennej časti domu počas celého roka.

Foto: Eva Benková
Foto: Eva Benková
Situácia
SituáciaAutor: Totalstudio
Axonometria
AxonometriaAutor: Totalstudio

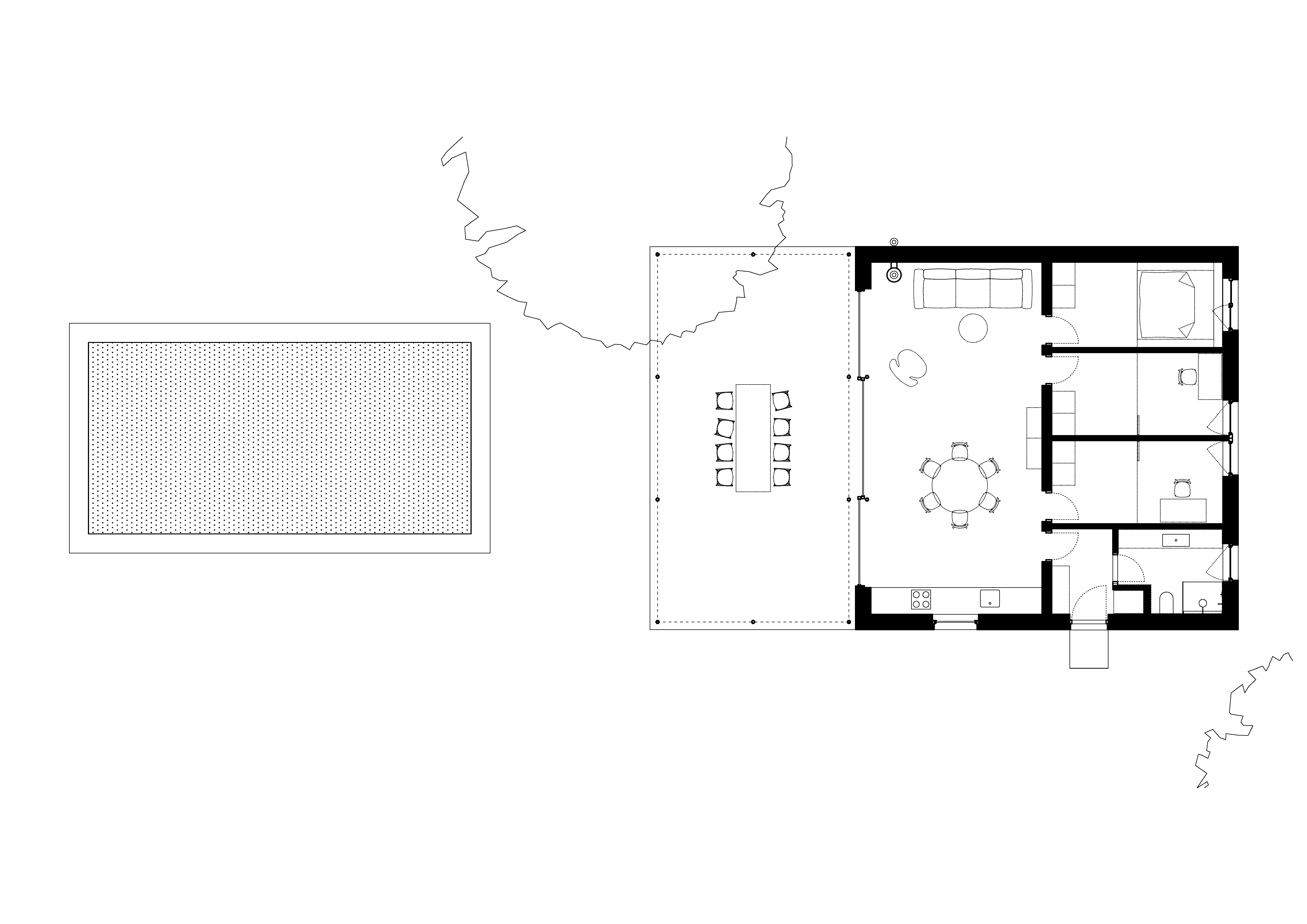
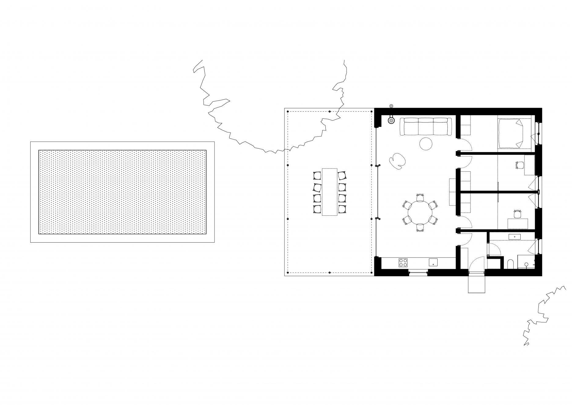
Dispozícia a prevádzka

Nočný dom je rozdelený na štyri identické časti - trojicu utilitárnych spální a kúpeľňu so vstupom. Otvorená zóna denného domu je  priamo napojená na terasu, ktorá sa v teplých mesiacoch stáva hlavným obytným priestorom. 

Dispozičná schéma je prozaicky jednoduchá - v dome nie je chodba,  izby sú ako kajuty napojené priamo z hlavného denného priestoru

Pôdorys
PôdorysAutor: Totalstudio
Rez
RezAutor: Totalstudio

Ako zdroj tepla pre vykurovanie domu slúži tepelné čerpadlo typu vzduch-voda. K rovnomernej distribúcii tepla napomáha akumulačná podlaha z brúseného betónu.

Foto: Eva Benková
Foto: Eva Benková
Foto: Eva Benková
Foto: Eva Benková
Fotografia modelu
Fotografia modeluAutor: Totalstudio

Podklady: Totalstudio

Poloha diela

mgr. art. Tomáš Tokarčík
Mgr. art. Aleš Šedivec

Súvisiace články

Vložené
29. jún 2020
0
9174
Hlavný obsahHlavný obsah
Čakajte prosím