Advertorial

Pozvánka na 2. ročník stavebného veľtrhu BigMarket na Slovensku

Na podujatí sa predstaví až 37 vystavovateľov - popredných dodávateľov stavebných materiálov a inovácií s prezentáciou...

Hotel Hirschen Spa House, Rakúsko

Novotvar v prostredí alpskej obce.

Vytvorte si kúpeľňu snov: dizajnové riešenie od značky hansgrohe

Hansgrohe - prémiová značka kúpeľňových riešení, ponúka nadčasový dizajn, technickú precíznosť a udržateľné inovácie...

Okná Internorm za minuloročné ceny + hliníkový kryt zdarma!

Využite špeciálnu akciu Internorm: okná za minuloročné ceny a hliníkový kryt úplne zadarmo. Ponuka je časovo obmedzená!

Moderné plynové technológie: Efektivita a inovácie pre 21. storočie

Sumarizácia najdôležitejších inovácií, ktoré redefinujúcich využitie tohto energetického zdroja.

Utesňovanie spodných stavieb pomocou hydro-aktívnej fólie AMPHIBIA.

AMPHIBIA 3000 GRIP 1.3 od spoločnosti ATRO predstavuje modernú hydroizolačnú technológiu, ktorá spája vysokú odolnosť,...

Dekarbonizácia individuálneho vykurovania domácností – Green Deal evolučne a nie revolučne

Ambiciózne plány EK narazili na ekonomické možnosti domácností v jednotlivých členských štátoch –...

Minimalistické dvere IDEA – technická precíznosť a čistota prevedenia

IDEA DOOR od spoločnosti JAP prináša do interiéru čistý minimalistický vzhľad vďaka bezrámovému riešeniu a precíznej...

Dom s výhľadom na údolie, Dlouhý Most (ČR)

Kontinuita riešenia od vonkajšieho obkladu až po kovania a kľučky.

Schell Vitus – osvedčené riešenie pre sprchy a umývadlá vo verejnom sektore s viac ako desaťročnou tradíciou

Nástenné nadomietkové armatúry Vitus sú mimoriadne vhodné pre rýchlu a efektívnu...

Kompozitné okná predstavujú súčasnosť a budúcnosť

Okenné profily z kompozitného materiálu RAU-FIPRO X od spoločnosti Rehau sú v porovnaní s tradičnými plastovými profilmi mnohonásobne...

Myotis - stoly 2025

Najnovší sortiment stolov pre zariadenie interiérov...

Priemyselné sklenené priečky Dorsis Digero: svetelné rozhranie pre moderné interiéry

Spojenie moderného dizajnu, funkčnosti a svetla do harmonického architektonického prvku.

Význam prirodzeného svetla pre moderné a flexibilné pracovné prostredie

Kancelárska budova Baumit v slovinskom Trzine prešla premenou na moderné a udržateľné pracovisko. Architekti kládli dôraz...

Konferencia Xella Dialóg predstaví novinky a trendy v stavebníctve

Mottom šiesteho ročníku on-line konferencie odborníkov Xella Dialóg je Efektívny návrh budov 2025+: zmeny a riešenia

Dom V, Bratislava

Život v záhrade.
Diela
Red 315.02.2019
38740+19
Dom V, Bratislava
Autori: Ing. arch. Ivan Príkopský, Ing. arch. Katarína Príkopská, Ing. arch. Tomáš SzőkeZastavaná plocha: 61,5 m2Podlažná plocha: 93,5m2Návrh: 2015 - 2015Realizácia: 2015 - 2017Adresa: Bratislava, SlovenskoPublikované: 15. február 2019

Architektúra na mieste, kde sa nedá hovoriť o tvorbe v urbánnom kontexte. Prím hrala krajina, záhrada a osadenie objektu. 

Nedávno sme predstavili rodinné bývanie v záhradkárskej oblasti na okraji Bernolákova. “Minimálnu krabicu” a jej prístavbu v kontexte spleti záhradných chatiek. Architekti z ateliéru TOITO opäť tvorili na podobnom mieste. Tentokrát však neďaleko centra Bratislavy. Z ulice nenápadný dom smeruje do svahovitej záhrady. Dve výškové úrovne prepája kompaktné vretenové schodisko, ktoré zaberá minimum podlahovej plochy. Denná časť, so vstupom z ulice, je nad pozemkom. Na záhradu sa schádza po schodoch. Priestor v jednoduchom murovanom kubuse so železobetónovou stropnou doskou členia priečky z borovicovej preglejky.  

Viac slovami autorov:

Záhradkárske kolónie v Bratislave zažívajú nekontrolovateľné zmeny. Čierne stavby, živelné prístavby, bytové domy, vily, záhradkárky a čudáci medzi tým všetkým. Klient s rodinou (2+1) s vedomím pristúpili na túto hru. Benefit je vidiecky život dva kilometre od centra. Pozemok je bývalé koryto rieky.

Foto: Katarína Príkopská
Foto: Katarína Príkopská
Foto: Katarína Príkopská
Foto: Katarína Príkopská

Dom je osadný vo svahu, pod úrovňou prístupovej cesty, je zostupným miestom do záhrady. Objem je dvojpodlažný box (9,3x6,6x6,6), kde nosné sú iba obvodové steny. Krabica s otvormi pre svetlo a vzduch, nič viac. Vnútri 5 malých izieb, každá s iným oknom. Strieda sa ich počet, veľkosť, výšky a pocity v nich. Denná časť je na hornom podlaží - bližšie k ulici a výhľadmi do okolia, nočná časť s priestorom pre jogu je dolu na teréne - pri záhrade.

Axonometria
AxonometriaAutor: TOITO
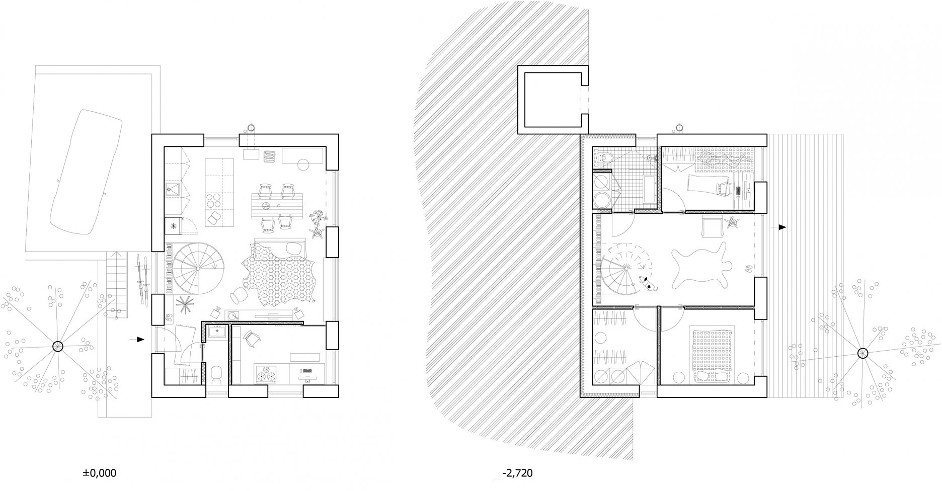
Pôdorysy
PôdorysyAutor: TOITO
Rezopohľady
RezopohľadyAutor: TOITO

Interiér má tvrdý obal zo železobetónových stropov, neomietaných stien z betónových tvárnic, podlahy sú liaty epoxid. Všetky deliace priečky sú mäkké, drevené. Podlažia sú navzájom prepojené kruhovým oceľovým schodiskom. Zvyšok vnútra je zabývanie a domov.

Foto: Katarína Príkopská
Foto: Katarína Príkopská
Foto: Katarína Príkopská
Foto: Katarína Príkopská
Foto: Katarína Príkopská
Foto: Katarína Príkopská
Foto: Katarína Príkopská

Zastavaná plocha: 61,5m2
Úžitková plocha: 93,5m2
Rozmery: 9,3x6,6x6,6m
Nosné konštrukcie: DT300 tvárnice, železobetónové stropy
Deliace priečky: borovicová preglejka 2x15mm, 60mm izolácia
Podlahy: epoxid
Vykurovanie a TÚV: elektrické podlahové vykurovanie, krbové kachle Haas+Sohn, elektrický bojler 200l (príprava na solar)
Strecha: mPVC - Fatrafol
Okná: drevené s trojsklom
Kuchyňa: Ikea

Podklady: TOITO ARCHITEKTI

Poloha diela

Ing. arch. Ivan Príkopský
Ing. arch. Katarína Príkopská
Ing. arch. Tomáš Szőke

Súvisiace články

Vložené
12. február 2019
0
3874
Hlavný obsahHlavný obsah
Čakajte prosím