Hansgrohe - prémiová značka kúpeľňových riešení, ponúka nadčasový dizajn, technickú precíznosť a udržateľné inovácie...
Využite špeciálnu akciu Internorm: okná za minuloročné ceny a hliníkový kryt úplne zadarmo. Ponuka je časovo obmedzená!
Na podujatí sa predstaví až 37 vystavovateľov - popredných dodávateľov stavebných materiálov a inovácií s prezentáciou...
Sumarizácia najdôležitejších inovácií, ktoré redefinujúcich využitie tohto energetického zdroja.
AMPHIBIA 3000 GRIP 1.3 od spoločnosti ATRO predstavuje modernú hydroizolačnú technológiu, ktorá spája vysokú odolnosť,...
Ambiciózne plány EK narazili na ekonomické možnosti domácností v jednotlivých členských štátoch –...
IDEA DOOR od spoločnosti JAP prináša do interiéru čistý minimalistický vzhľad vďaka bezrámovému riešeniu a precíznej...
Kontinuita riešenia od vonkajšieho obkladu až po kovania a kľučky.
Nástenné nadomietkové armatúry Vitus sú mimoriadne vhodné pre rýchlu a efektívnu...
Okenné profily z kompozitného materiálu RAU-FIPRO X od spoločnosti Rehau sú v porovnaní s tradičnými plastovými profilmi mnohonásobne...
Najnovší sortiment stolov pre zariadenie interiérov...
Spojenie moderného dizajnu, funkčnosti a svetla do harmonického architektonického prvku.
Kancelárska budova Baumit v slovinskom Trzine prešla premenou na moderné a udržateľné pracovisko. Architekti kládli dôraz...
Mottom šiesteho ročníku on-line konferencie odborníkov Xella Dialóg je Efektívny návrh budov 2025+: zmeny a riešenia
Robot WLTR predstavuje moderný prístup k murovaným konštrukciám. Vďaka automatizácii dokáže rýchlo, presne a bezpečne realizovať...

Aktuálna realizácia bratislavského ateliéru TOITO architekti. Klasická parcela v rámci novej kobercovej zástavby. Skromná plošná výmera. Napriek tomu členitý a nápaditý mikrosvet. Bývanie, ktoré sa zaobíde bez vysokých plotov, závesov a optických bariér. Neokázalý priestor pre príjemné bývanie.
Viac prezradia autori:
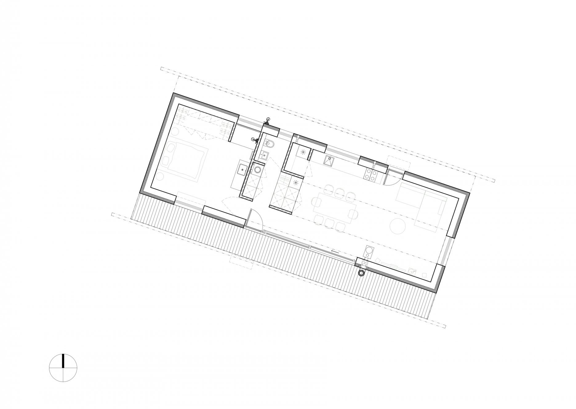
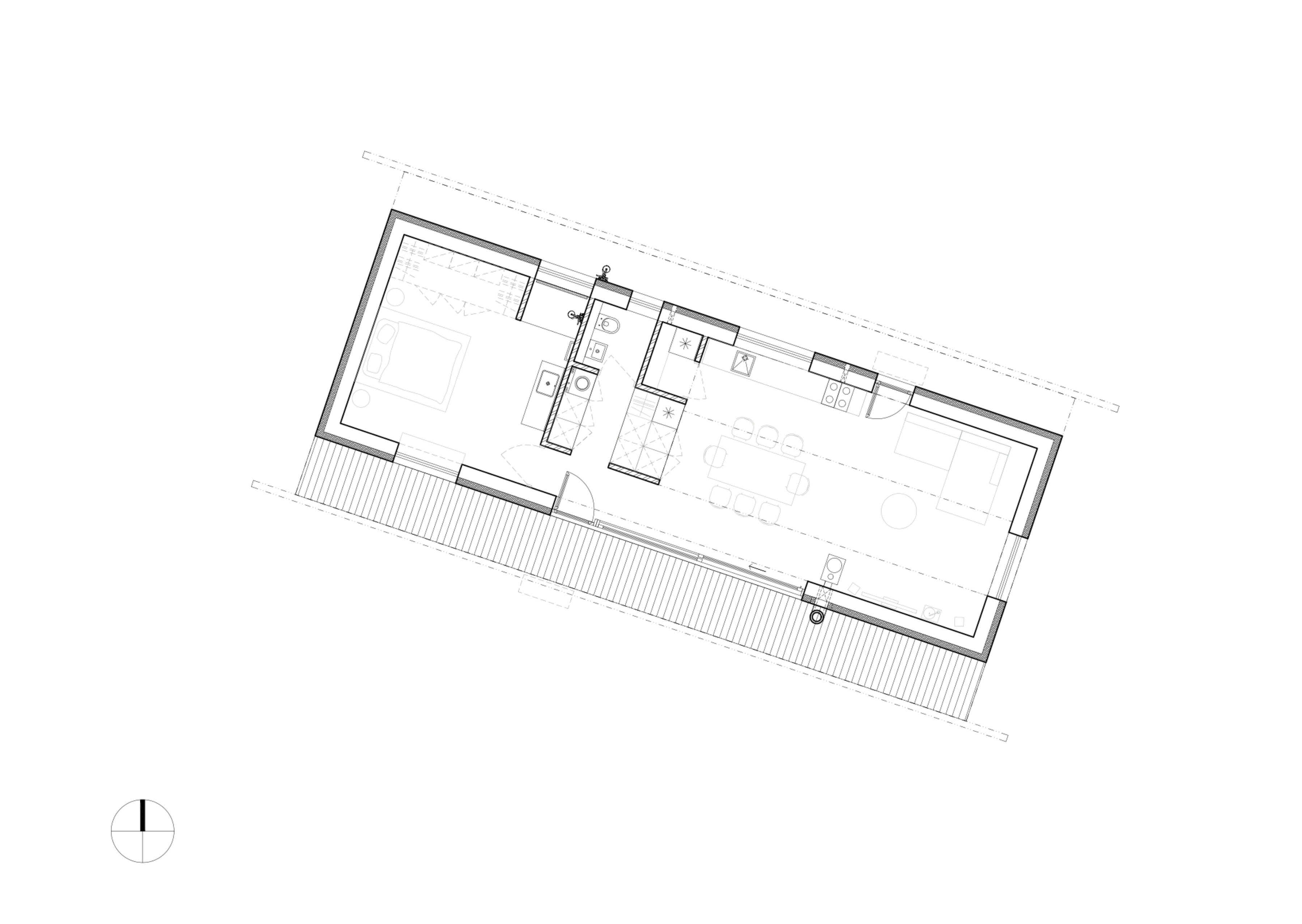
Malý rodinný dom na konci ulice novej štvrte rodinných domov v Bernolákove. Bývanie pozostáva z troch samostatných objektov: rodinný dom, pracovňa a záhradný sklad s altánkom.
Hmoty sú orientované zámerne inak ako parcela. Rôzne uhly vytvárajú lepšie priestorové kvality.
Z úzkeho odstupového zbytku medzi domom a plotom vznikajú otvorenejšie pôdorysné trojuholníky, ktoré sa stali funkčnou súčasťou parcely, nie iba normovým odstupom – pestovanie zeleniny, tieňové zákutie, miesto pre auto. Najmenší objekt zakrýva výhľad na parkovacie miesta, ulicu a susedov. Medzi troma objektami vzniká pootvorený chránený dvor, výhľady sú orientované do seba, závesy na veľké zasklenia nie sú potrebné.
Objekty sú jednoduché hmoty so sedlovou strechou s presahmi, ktoré tu pokladáme za zásadné pre komfort, chránia pre dažďom a slnkom, pobytové priestory sa využívajú častejšie. Samotný rodinný dom má dve obytné miestnosti, rozdelené hygienickým jadrom. Denná časť domu má zvýšený strop s tvarom odlišným od strechy. Dutina medzi podhľadom a strechou je na juhu, chráni pred prehrievaním. Dom na konci ulice sa stáva komunitným miestom.
Základné údaje o stavbe:
Podklady: TOITO architekti
Foto: Peter Jurkovič - JRKVC