Advertorial

Vytvorte si kúpeľňu snov: dizajnové riešenie od značky hansgrohe

Hansgrohe - prémiová značka kúpeľňových riešení, ponúka nadčasový dizajn, technickú precíznosť a udržateľné inovácie...

Okná Internorm za minuloročné ceny + hliníkový kryt zdarma!

Využite špeciálnu akciu Internorm: okná za minuloročné ceny a hliníkový kryt úplne zadarmo. Ponuka je časovo obmedzená!

Pozvánka na 2. ročník stavebného veľtrhu BigMarket na Slovensku

Na podujatí sa predstaví až 37 vystavovateľov - popredných dodávateľov stavebných materiálov a inovácií s prezentáciou...

Moderné plynové technológie: Efektivita a inovácie pre 21. storočie

Sumarizácia najdôležitejších inovácií, ktoré redefinujúcich využitie tohto energetického zdroja.

Utesňovanie spodných stavieb pomocou hydro-aktívnej fólie AMPHIBIA.

AMPHIBIA 3000 GRIP 1.3 od spoločnosti ATRO predstavuje modernú hydroizolačnú technológiu, ktorá spája vysokú odolnosť,...

Dekarbonizácia individuálneho vykurovania domácností – Green Deal evolučne a nie revolučne

Ambiciózne plány EK narazili na ekonomické možnosti domácností v jednotlivých členských štátoch –...

Minimalistické dvere IDEA – technická precíznosť a čistota prevedenia

IDEA DOOR od spoločnosti JAP prináša do interiéru čistý minimalistický vzhľad vďaka bezrámovému riešeniu a precíznej...

Dom s výhľadom na údolie, Dlouhý Most (ČR)

Kontinuita riešenia od vonkajšieho obkladu až po kovania a kľučky.

Schell Vitus – osvedčené riešenie pre sprchy a umývadlá vo verejnom sektore s viac ako desaťročnou tradíciou

Nástenné nadomietkové armatúry Vitus sú mimoriadne vhodné pre rýchlu a efektívnu...

Kompozitné okná predstavujú súčasnosť a budúcnosť

Okenné profily z kompozitného materiálu RAU-FIPRO X od spoločnosti Rehau sú v porovnaní s tradičnými plastovými profilmi mnohonásobne...

Myotis - stoly 2025

Najnovší sortiment stolov pre zariadenie interiérov...

Priemyselné sklenené priečky Dorsis Digero: svetelné rozhranie pre moderné interiéry

Spojenie moderného dizajnu, funkčnosti a svetla do harmonického architektonického prvku.

Význam prirodzeného svetla pre moderné a flexibilné pracovné prostredie

Kancelárska budova Baumit v slovinskom Trzine prešla premenou na moderné a udržateľné pracovisko. Architekti kládli dôraz...

Konferencia Xella Dialóg predstaví novinky a trendy v stavebníctve

Mottom šiesteho ročníku on-line konferencie odborníkov Xella Dialóg je Efektívny návrh budov 2025+: zmeny a riešenia

Murovací robot WLTR stavia svoj prvý dom na Slovensku

Robot WLTR predstavuje moderný prístup k murovaným konštrukciám. Vďaka automatizácii dokáže rýchlo, presne a bezpečne realizovať...

Byt S

Celková rekonštrukcia bytu pod strechou pre mladú rodinu. Pôvodný byt bol vyčistený na nosnú konštrukciu. Boli odstránené omietky, priečky, podlahy… Stavebnými úpravami sa podarilo otvoriť preplávajúci byt. Priestor je tak z oboch strán presvetlený a prevetraný.
Diela
Red 305.05.2017
57410+18
Byt S
Autori: Ing. arch Tomáš Szőke, Ing. arch Ivan Príkopský, Ing. arch Katarína PríkopskáSpolupráca: Mgr. art. Tomáš KučeraPodlažná plocha: 84m2Investičný náklad: 35 000 €Návrh: 2014 - 2015Realizácia: 2015 - 2016Adresa: Staré mesto , Bratislava, SlovenskoPublikované: 5. máj 2017

Byt je stavbou, architektúrou. Nesnaží sa byť dokonalým dizajnom. Cítiť, že návrh vznikal v osobnom vzťahu ku (tolerantnému a určite zorientovanému) klientovi. Nie je to byt pre každého. Mnohým nebude vyhovovať. Testuje hranice surovosti a pravdivosti materiality. Pre vybranú cieľovú skupinu bude však práve takéto riešenie očakávané a vítané.

"Zmena dispozície ponecháva súkromie v izbách. Denná časť s komplikovaným tvarom sa mení na miesto plné zákutí so svojimi funkciami. Pôdorysné riešenie má potenciál, 3D modely naznačujú tvary a povrchy, ale až pri prvom búraní plnom prekvapení sa začína 'interiérový' návrh," píšu autori.

Foto: Katarína Príkopská
Foto: Katarína Príkopská

Byt S mal pôvodne trojktraktovú dispozíciu. Vstupná chodba, dve izby vľavo, dve vpravo. Podstrešný byt plný tmy, bez výhľadov, všetko v uzatvorených izbách. Zmena bola nevyhnutná.

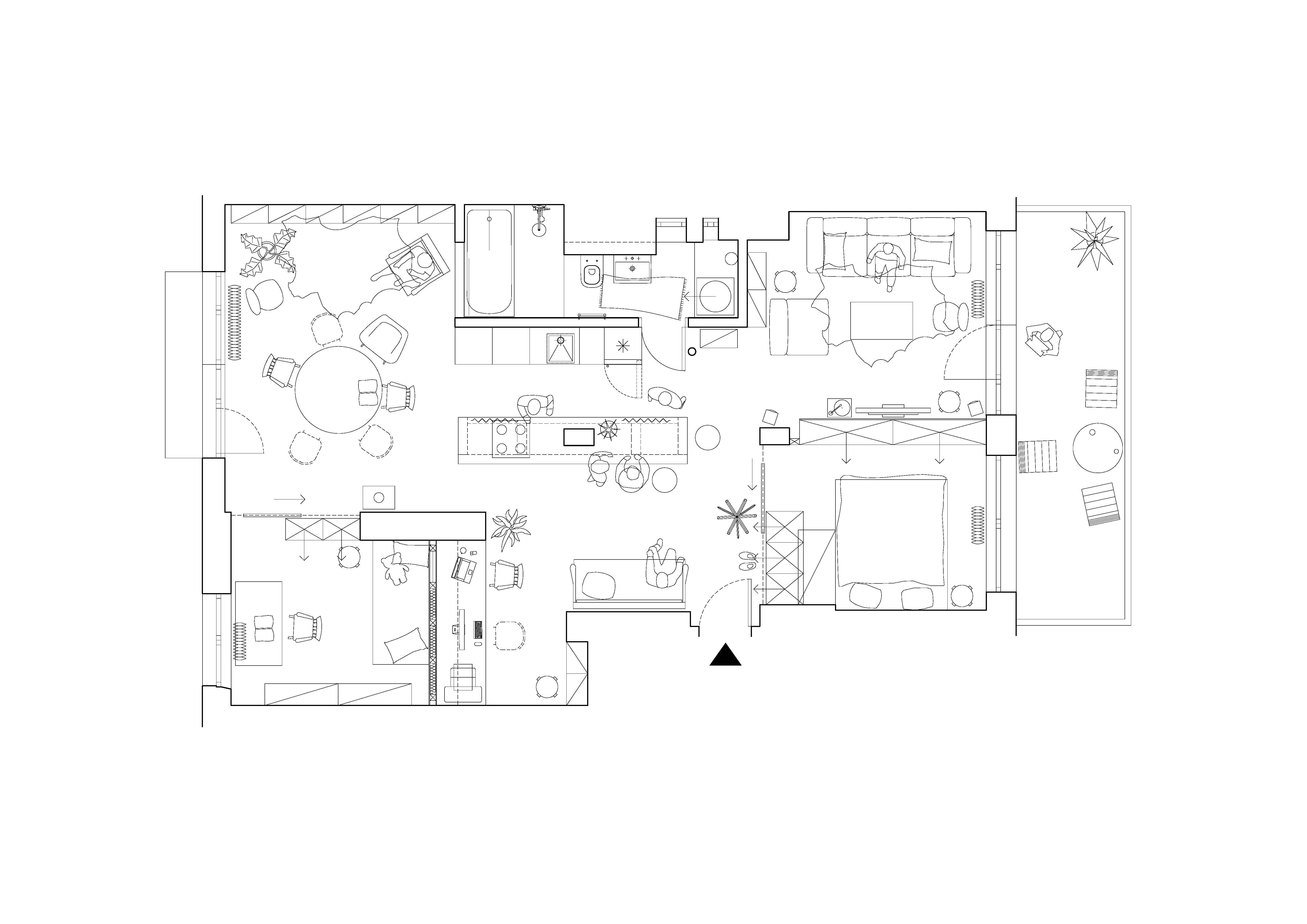
Pôdorys - stavebné úpravy
Pôdorys - stavebné úpravyAutor: toito

Nová dispozícia má preplávajúcu dennú časť s komplikovanou pôdorysnou stopou. Vstup, hygiena, kuchyňa a pracovňa sú v strede, jedáleň a TV miestnosť po stranách. Radenie funkcií miestností tak vytvára živé centrum. Izby sú vyčlenené šatníkmi s nadsvetlíkmi. Tie násobia denné svetlo, no ponechávajú súkromie v spálňach.

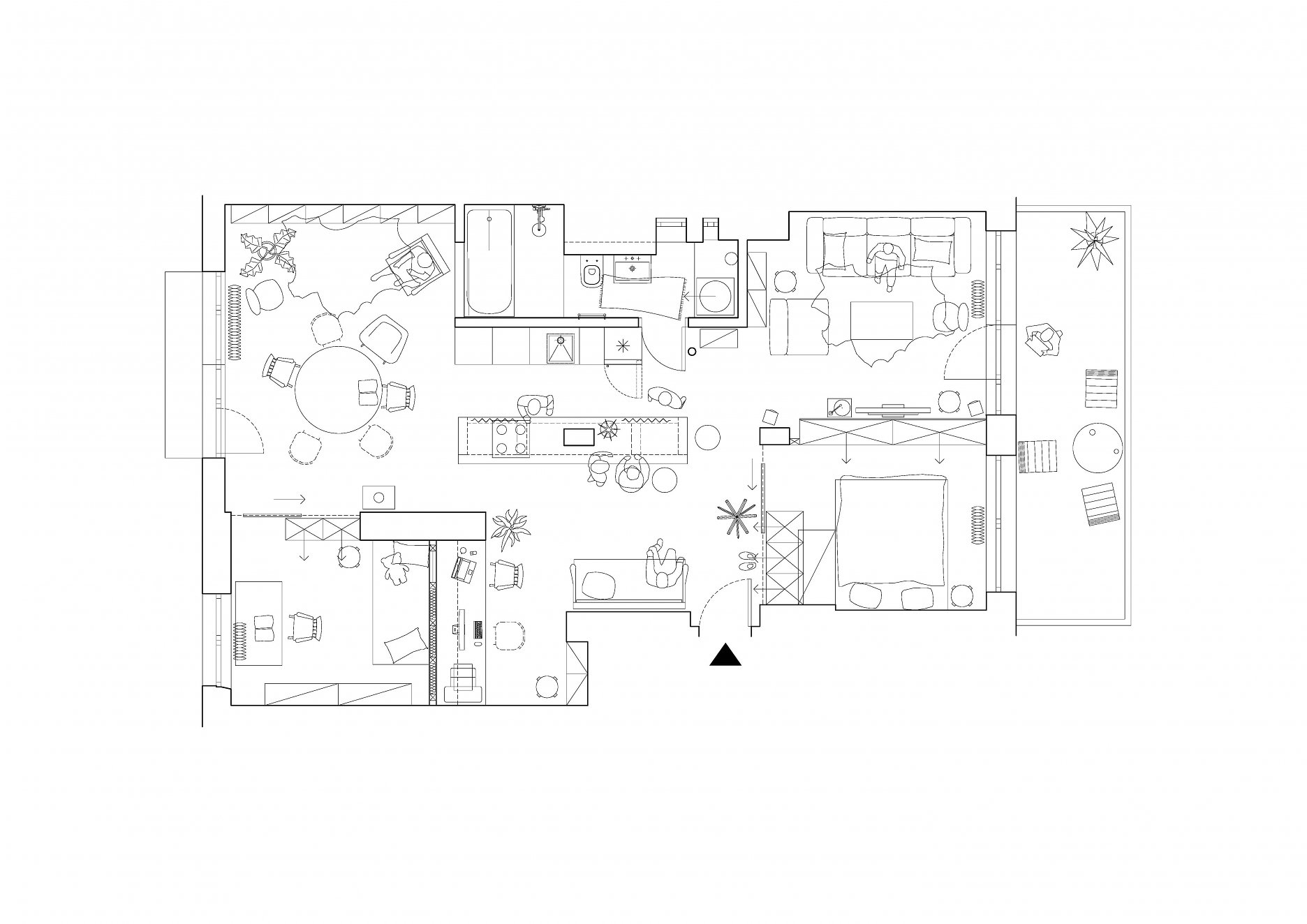
Pôdorys zariadeného bytu
Pôdorys zariadeného bytuAutor: toito
Model 1:34
Model 1:34Autor: toito

Prevedenie je striedme. Odkryté konštrukcie, biely maloformátový obklad sú odkazom pôvodu bytu. Interiér chápeme ako základ pre zabývanie sa jeho majiteľom.

Foto: Katarína Príkopská
Foto: Katarína Príkopská
Foto: Katarína Príkopská
Foto: Katarína Príkopská
Foto: Katarína Príkopská
Foto: Katarína Príkopská
Foto: Katarína Príkopská
Foto: Katarína Príkopská
Foto: Katarína Príkopská
Foto: Katarína Príkopská
Foto: Katarína Príkopská
Foto: Katarína Príkopská
Foto: Katarína Príkopská
Foto: Katarína Príkopská
Foto: Katarína Príkopská
Foto: Katarína Príkopská
Foto: Katarína Príkopská
Foto: Katarína Príkopská
Foto: Katarína Príkopská

V byte nájdeme poctivé remeselný, niekedy až strojársky detail. Nič nie je ukryté, zakapotované. Výrazným prvkom sú drevené ostenia a preglejkový vstavaný nábytok.

Foto: Katarína Príkopská
Foto: Katarína Príkopská

Poloha diela

Ing. arch Tomáš Szőke
Ing. arch Ivan Príkopský
Ing. arch Katarína Príkopská

Súvisiace články

Vložené
5. máj 2017
0
5741
Hlavný obsahHlavný obsah
Čakajte prosím