Advertorial

Pozvánka na 2. ročník stavebného veľtrhu BigMarket na Slovensku

Na podujatí sa predstaví až 37 vystavovateľov - popredných dodávateľov stavebných materiálov a inovácií s prezentáciou...

Hotel Hirschen Spa House, Rakúsko

Novotvar v prostredí alpskej obce.

Vytvorte si kúpeľňu snov: dizajnové riešenie od značky hansgrohe

Hansgrohe - prémiová značka kúpeľňových riešení, ponúka nadčasový dizajn, technickú precíznosť a udržateľné inovácie...

Okná Internorm za minuloročné ceny + hliníkový kryt zdarma!

Využite špeciálnu akciu Internorm: okná za minuloročné ceny a hliníkový kryt úplne zadarmo. Ponuka je časovo obmedzená!

Moderné plynové technológie: Efektivita a inovácie pre 21. storočie

Sumarizácia najdôležitejších inovácií, ktoré redefinujúcich využitie tohto energetického zdroja.

Utesňovanie spodných stavieb pomocou hydro-aktívnej fólie AMPHIBIA.

AMPHIBIA 3000 GRIP 1.3 od spoločnosti ATRO predstavuje modernú hydroizolačnú technológiu, ktorá spája vysokú odolnosť,...

Dekarbonizácia individuálneho vykurovania domácností – Green Deal evolučne a nie revolučne

Ambiciózne plány EK narazili na ekonomické možnosti domácností v jednotlivých členských štátoch –...

Minimalistické dvere IDEA – technická precíznosť a čistota prevedenia

IDEA DOOR od spoločnosti JAP prináša do interiéru čistý minimalistický vzhľad vďaka bezrámovému riešeniu a precíznej...

Dom s výhľadom na údolie, Dlouhý Most (ČR)

Kontinuita riešenia od vonkajšieho obkladu až po kovania a kľučky.

Schell Vitus – osvedčené riešenie pre sprchy a umývadlá vo verejnom sektore s viac ako desaťročnou tradíciou

Nástenné nadomietkové armatúry Vitus sú mimoriadne vhodné pre rýchlu a efektívnu...

Kompozitné okná predstavujú súčasnosť a budúcnosť

Okenné profily z kompozitného materiálu RAU-FIPRO X od spoločnosti Rehau sú v porovnaní s tradičnými plastovými profilmi mnohonásobne...

Myotis - stoly 2025

Najnovší sortiment stolov pre zariadenie interiérov...

Priemyselné sklenené priečky Dorsis Digero: svetelné rozhranie pre moderné interiéry

Spojenie moderného dizajnu, funkčnosti a svetla do harmonického architektonického prvku.

Význam prirodzeného svetla pre moderné a flexibilné pracovné prostredie

Kancelárska budova Baumit v slovinskom Trzine prešla premenou na moderné a udržateľné pracovisko. Architekti kládli dôraz...

Konferencia Xella Dialóg predstaví novinky a trendy v stavebníctve

Mottom šiesteho ročníku on-line konferencie odborníkov Xella Dialóg je Efektívny návrh budov 2025+: zmeny a riešenia

Podkrovný byt na Heydukovej ulici v Bratislave

Interiér v nadstavbe prvorepublikového domu.
Diela
Red 407.08.2019
68700+225
Podkrovný byt na Heydukovej ulici v Bratislave
Autori: Ing arch Martin FleischmannPodlažná plocha: 125 m2 + balkón 6 m2Návrh: 2018 - 2018Realizácia: 2019 - 2019Adresa: Heydukova 21, Bratislava, SlovenskoPublikované: 7. august 2019

Na mieste strechy staršieho päťpodlažného domu vyrástol mezonet s výhľadom na Bratislavský hrad. Polohu v centre a pohľad na panorámu mesta využil architekt Martin Fleischmann formou nadstavby.

Návrh vstupuje do historického prostredia Heydukovej ulice, ktorej architektonický výraz sa formoval zhruba pred sto rokmi.

Foto: Tomáš Manina

Nové zásahy v rastlom, historickom prostredí mesta, sú vždy živo diskutované. Základnou otázkou je, ako ovplyvnia obraz prostredia. 

V prezentovanom prípade nie je nová strešná krajina prvkom uličnej fronty. Rekonštrukcia a nadstavba sú súčasťou vnútorného dvorového krídla. Veľké okná smerujú do tichého vnútrobloku. 

Vzhľadom na kvalitu vnútorných priestorov a zlepšenie fyzického stavu strechy, je to zaujímavý príklad, na ktorom je možné prezentovať reálny výsledok takéhoto prístupu.

Foto: Tomáš Manina

Snaha o formálny minimalizmus a transparentnosť sú charakteristickými črtami návrhu. Veľkoplošné okná otvárajú výhľady do okolitej mestskej krajiny. Podkrovie je na rozdiel od tradičných riešení naozaj otvoreným celkom. Priestor bez zásadnejších bariér plynie voľne  nielen v horizontálnom rozmere, ale aj smerom nahor, na celú svetlú výšku interiéru.  Optické  hranice medzi jednotlivými funkčnými časťami, ale aj medzi interiérom a exteriérom sú minimalizované. 

Obdĺžnikový pôdorys je rozdelený do funkčných blokov. Dennú časť, situovanú hneď za zádverím, tvorí kuchyňa a obývací kút. Kvantita mobiliáru je obmedzená na nevyhnutné minimum, architekt sa pri návrhu zameral najmä na funkčnosť. Výbava kuchyne sa ukrýva za plnými dvierkami na stene. Druhú časť a zázemie tvorí varný ostrov, na ktorý kontinuálne nadväzuje stolovanie. Nábytkovú striedmosť ctí aj obývačka, ktorá si vystačila s pohodlnou sedačkou a zaveseným liatinovým telesom kozuba.

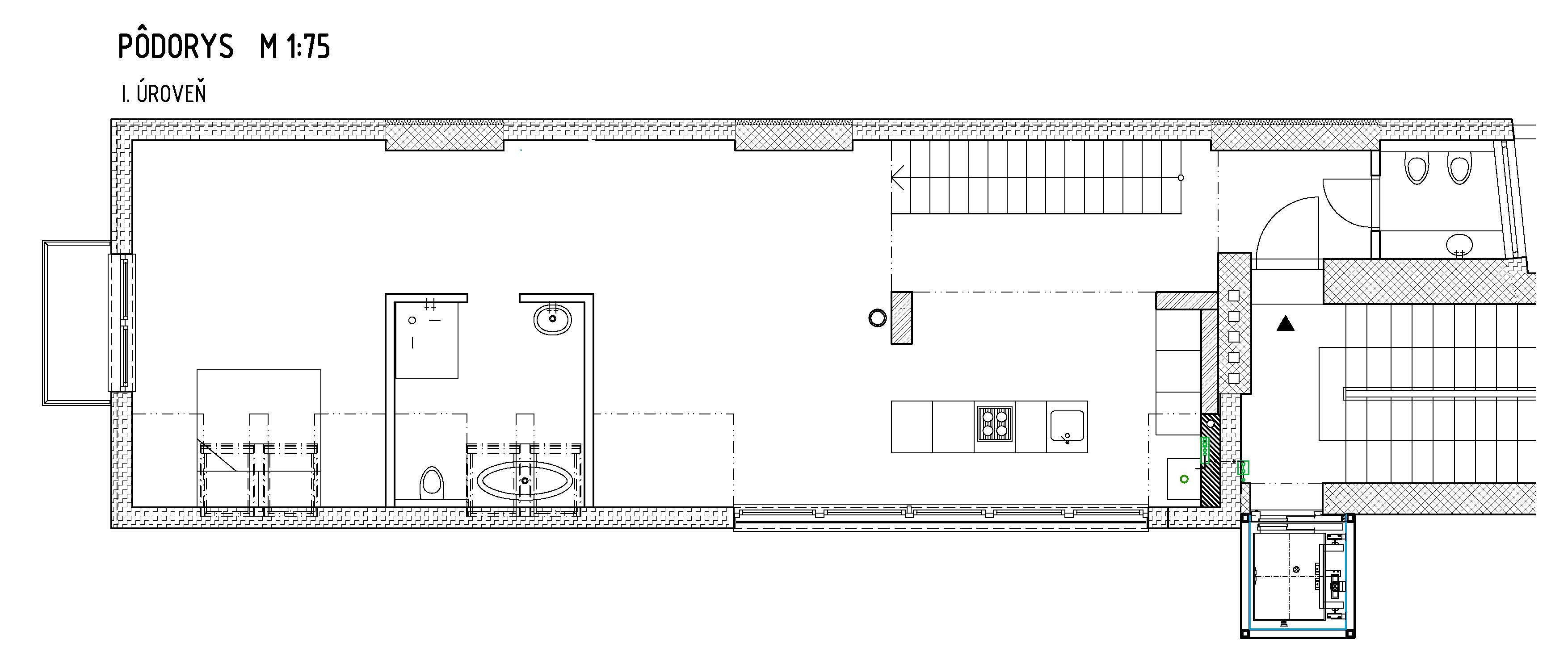
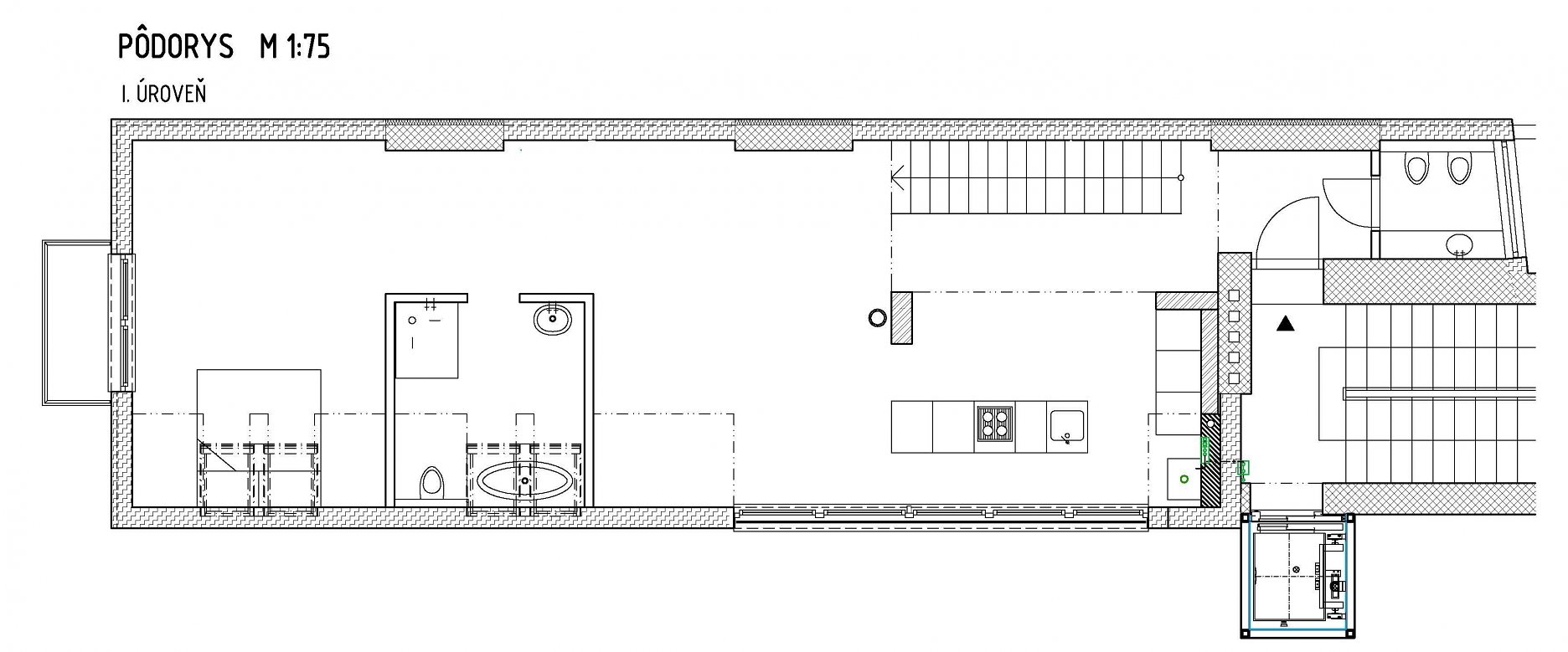
Pôdorys 1. úrovne
Pôdorys 1. úrovneIng. arch. Martin Fleischmann
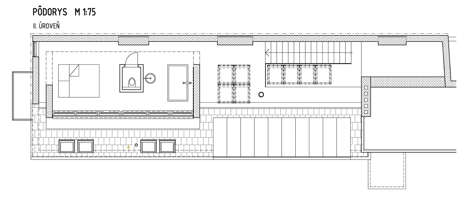
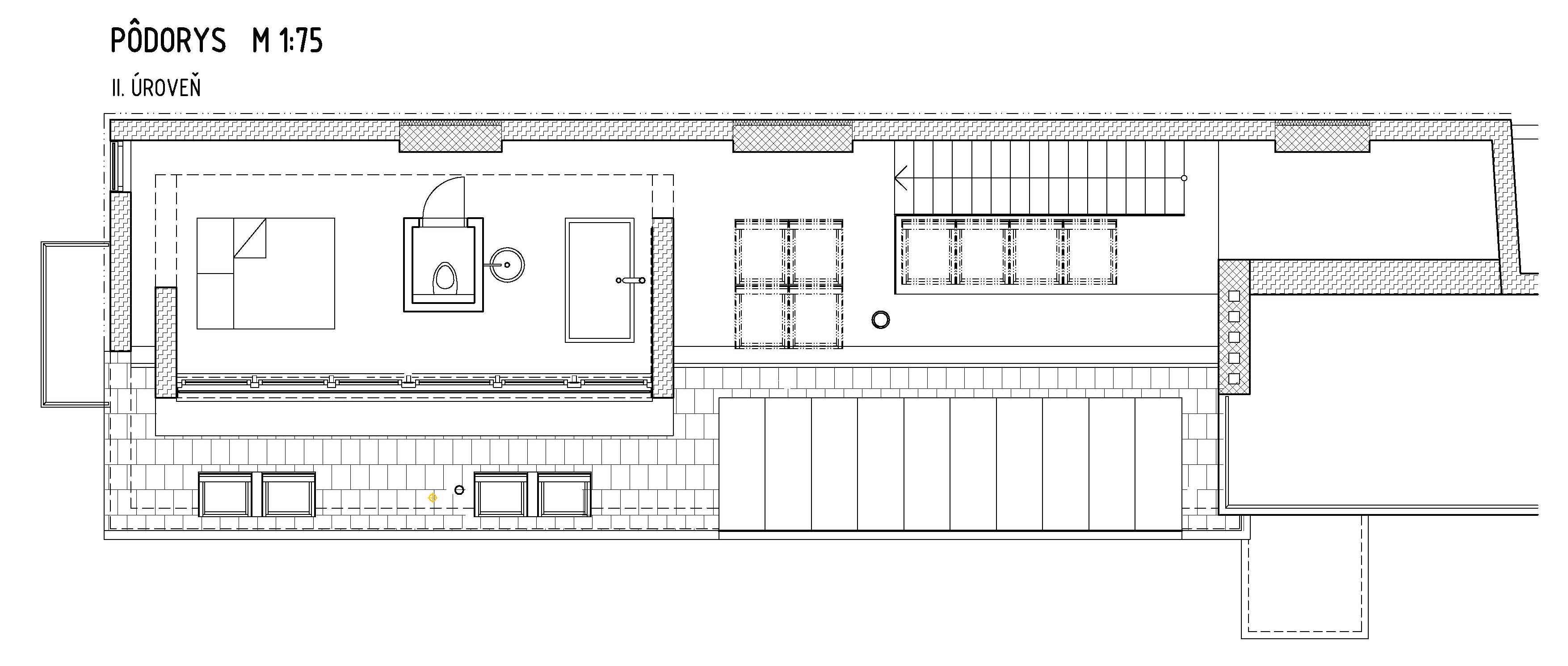
Pôdorys 2. úrovne
Pôdorys 2. úrovneIng. arch. Martin Fleischmann
Foto: Tomáš Manina

"Vznášajúce sa" prvky nájdeme aj v kuchynskom segmente. Napríklad v podobe čiernej policovej zostavy na servis, či zrkadlového kvádra - digestora nad varnou doskou. Kuchyňa v orechovej povrchovej úprave vytvára materiálový opozit k puristicko - industriálnej platforme povrchov - podlahe z liateho epoxidu a stropu z pohľadového betónu.

Pri vstupe do bytu zaujmú veľkoplošné okná a najmä obsah viditeľný za sklom. Okrem striech okolitých domov je ústredným motívom výhľadu Bratislavský hrad. Scenériu dopĺňa množstvo zelene. Spolu s tichou polohou výborné východiská pre bývanie.

Foto: Tomáš Manina

Svojskú pečať mezonetu je možné vnímať aj pri podrobnejšom pohľade. Trojicu neutrálnych prvkov - čiernu, sivú a bielu zjemňujú drevené prvky a obklad stien. Veľmi silná je v celom byte téma čiernych akcentov. Či už v podobe na mieru vyrábaných oceľových prvkov, omietok, ktorým sa prispôsobili aj vypínače, alebo dizajnových svietidiel.

Upúta aj spôsob členenia priestoru. Architekt pristúpil k nemu veľmi liberálne. Jednotlivé funkčné zóny sú síce oddelené, no každá z nich živo komunikuje s najbližším susedom. 

Koniec dispozície spodného podlažia obsadila jedna z dvoch spální. Od denného priestoru je odfiltrovaná sklenenými priečkami a kúpeľnou s policovým šatníkom, ktorý nič neskrýva.

Foto: Tomáš Manina

Doslova, pretože je za sklom. Hneď za rohom, v priestore spálne však majú majitelia k dispozícii aj uzavretejšie a veľkorysejšie možnosti odkladania.

Druhé podlažie mezonetu je prístupné prostredníctvom samonosného oceľového schodiska. Vyššia úroveň ponúka ďalšie možnosti rozšírenia dispozície a využiteľných priestorov. Či už v priestrannej spálni s panoramatickým výhľadom, alebo aj v kúpeľni, kde je vaňa otočená tiež tvárou k mestu.

Foto: Tomáš Manina
Foto: Tomáš Manina

Veľké fasádne zasklenie dopĺňajú strešné okná. Umožňuje to vnímať zmeny počasia, osvetlenia i atmosférických nálad v priebehu dňa (i ročných období). Najviac to cítiť v otvorenej galérii. Tento relaxačný kút disponuje aj čiernym policovým barom, ktorý pokračuje cez stropnú dosku zo spodného podlažia. 

Foto: Tomáš Manina

Zariadenie dotvárajú aj čiernobiele fotografie Martina Raka na stenách bytu.

S príchodom večera sa v byte ponúka azda najlákavejší program - špeciálne menu vo forme nasvietenej panorámy Starého mesta.

Foto: Tomáš Manina

Ďalšie priestory a detaily riešenia najlepšie priblížia fotografie Tomáša Maninu:

Foto: Tomáš Manina
Foto: Tomáš Manina
Foto: Tomáš Manina
Foto: Tomáš Manina
Foto: Tomáš Manina
Foto: Tomáš Manina
Foto: Tomáš Manina
Foto: Tomáš Manina
Foto: Tomáš Manina

Podklady: Martin Fleischmann, fotografie: Tomáš Manina

Poloha diela

Ing arch Martin Fleischmann

Súvisiace články

Vložené
31. júl 2019
0
6870
Hlavný obsahHlavný obsah
Čakajte prosím