Advertorial

Vytvorte si kúpeľňu snov: dizajnové riešenie od značky hansgrohe

Hansgrohe - prémiová značka kúpeľňových riešení, ponúka nadčasový dizajn, technickú precíznosť a udržateľné inovácie...

Okná Internorm za minuloročné ceny + hliníkový kryt zdarma!

Využite špeciálnu akciu Internorm: okná za minuloročné ceny a hliníkový kryt úplne zadarmo. Ponuka je časovo obmedzená!

Pozvánka na 2. ročník stavebného veľtrhu BigMarket na Slovensku

Na podujatí sa predstaví až 37 vystavovateľov - popredných dodávateľov stavebných materiálov a inovácií s prezentáciou...

Moderné plynové technológie: Efektivita a inovácie pre 21. storočie

Sumarizácia najdôležitejších inovácií, ktoré redefinujúcich využitie tohto energetického zdroja.

Utesňovanie spodných stavieb pomocou hydro-aktívnej fólie AMPHIBIA.

AMPHIBIA 3000 GRIP 1.3 od spoločnosti ATRO predstavuje modernú hydroizolačnú technológiu, ktorá spája vysokú odolnosť,...

Dekarbonizácia individuálneho vykurovania domácností – Green Deal evolučne a nie revolučne

Ambiciózne plány EK narazili na ekonomické možnosti domácností v jednotlivých členských štátoch –...

Minimalistické dvere IDEA – technická precíznosť a čistota prevedenia

IDEA DOOR od spoločnosti JAP prináša do interiéru čistý minimalistický vzhľad vďaka bezrámovému riešeniu a precíznej...

Dom s výhľadom na údolie, Dlouhý Most (ČR)

Kontinuita riešenia od vonkajšieho obkladu až po kovania a kľučky.

Schell Vitus – osvedčené riešenie pre sprchy a umývadlá vo verejnom sektore s viac ako desaťročnou tradíciou

Nástenné nadomietkové armatúry Vitus sú mimoriadne vhodné pre rýchlu a efektívnu...

Kompozitné okná predstavujú súčasnosť a budúcnosť

Okenné profily z kompozitného materiálu RAU-FIPRO X od spoločnosti Rehau sú v porovnaní s tradičnými plastovými profilmi mnohonásobne...

Myotis - stoly 2025

Najnovší sortiment stolov pre zariadenie interiérov...

Priemyselné sklenené priečky Dorsis Digero: svetelné rozhranie pre moderné interiéry

Spojenie moderného dizajnu, funkčnosti a svetla do harmonického architektonického prvku.

Význam prirodzeného svetla pre moderné a flexibilné pracovné prostredie

Kancelárska budova Baumit v slovinskom Trzine prešla premenou na moderné a udržateľné pracovisko. Architekti kládli dôraz...

Konferencia Xella Dialóg predstaví novinky a trendy v stavebníctve

Mottom šiesteho ročníku on-line konferencie odborníkov Xella Dialóg je Efektívny návrh budov 2025+: zmeny a riešenia

Murovací robot WLTR stavia svoj prvý dom na Slovensku

Robot WLTR predstavuje moderný prístup k murovaným konštrukciám. Vďaka automatizácii dokáže rýchlo, presne a bezpečne realizovať...

Byt EMA, Bratislava

Rekonštrukcia trojizbového bytu v centre Bratislavy pre mladý pár.
Diela
Red 328.01.2022
62140+62
Byt EMA, Bratislava
Autori: Ing. arch. Katarína Príkopská, Ing. arch. Ivan Príkopský, Ing. arch. Tomáš SzőkePodlažná plocha: 76m2Návrh: 2020 - 2020Realizácia: 2021 - 2021Adresa: Staré Mesto , Bratislava I., SlovenskoPublikované: 28. január 2022

Architekti z bratislavského ateliéru TOITO architekti sa sústredili na najpodstatnejšie prvky návrhu. Znova definovali prevádzku a dispozíciu bytu. Preplávajúca denná zóna bytu, presvetlila celú hĺbku dispozície - najmä pôvodne uzavretú vstupnú časť. Špecifikom riešenia sú "interiérové okná", ktoré umožňujú podľa potreby prepojiť jednotlivé miestnosti. Nosnou témou rekonštrukcie sú stavebné úpravy, odhalenie materiality pôvodných konštrukcií a realizácia nových na mieru navrhnutých stolárskych prvkov. Podobne ako v mnohých predchádzajúcich realizáciách ateliéru (viď. súvisiace články na konci textu).  

Foto: Katarína Príkopská
Foto: Katarína Príkopská
Foto: Katarína Príkopská
Foto: Katarína Príkopská

Realizáciu predstavia autori:

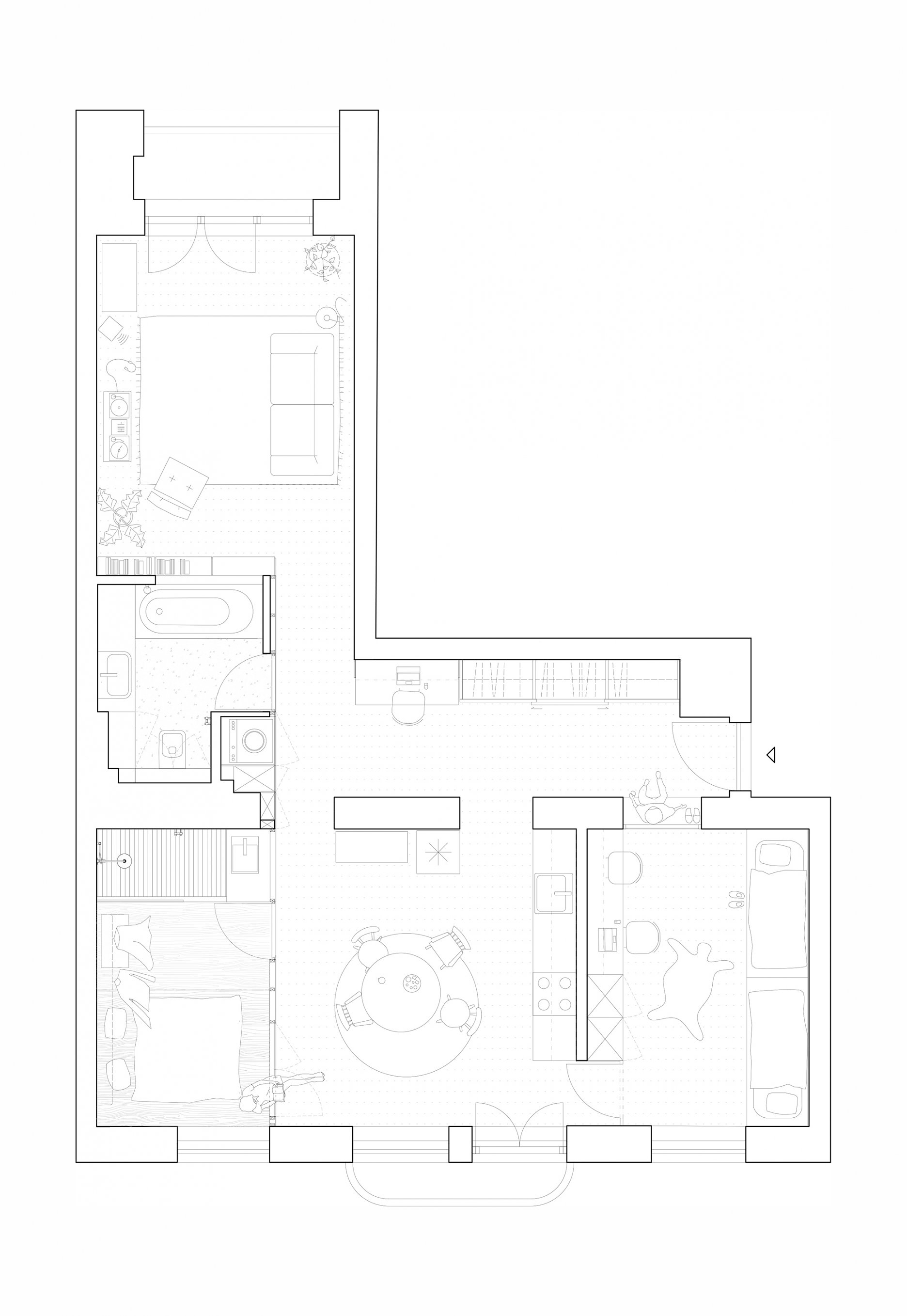
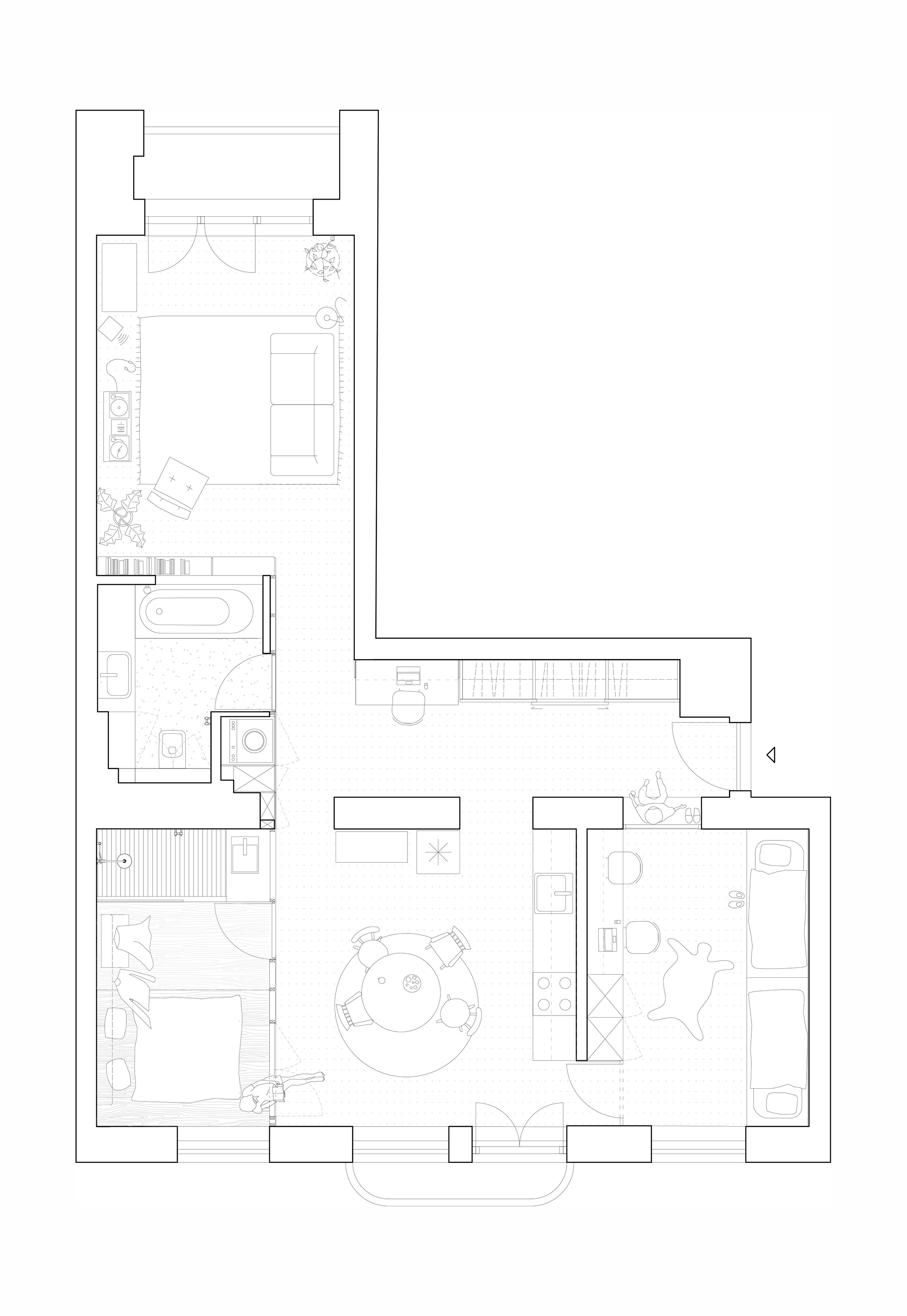
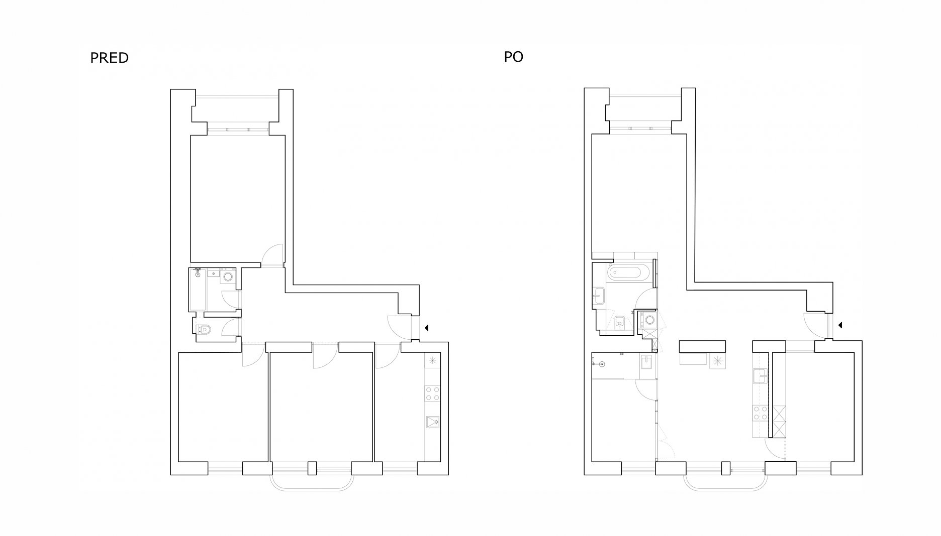
EMA je rekonštrukcia trojizbového bytu pre mladý pár v centre Bratislavy. Pôvodné delenie izba - chodba - izba považujeme nateraz za prekonané. 

Nová dispozícia otáča kostru o 90°. Členitá denná časť je spojitý preplávajúci priestor. Kuchyňa s jedálňou do ulice, pracovňa v strede, obývacia izba do dvora. Na tento rozmanitý celok nadväzujú dve izby a hygiena. Každá z nich si vymieňa svetlo/výhľad so susedom. Tri interiérové okná otvárajú dispozíciu ešte viac, násobia kontakt, pridávajú svetlo. Rozdiel medzi funkčnými celkami bytu sa zmenšuje. Spálňa sa stáva pohodlným rozšírením jedálne, vstupná hala je pracovňa a spojovacia chodba, hosťovská / detská izba je druhou pracovňou.

Nový byt sa pokúša spojiť protiklady. Intímny svet domácich a intenzívne stretnutia s rodinou a priateľmi. Je to plán aktivít a možností. Ako sa mu bude dariť ukáže čas.

Východiskový vs. nový stav
Východiskový vs. nový stavAutor: TOITO architekti
Pôdorys - nový stav
Pôdorys - nový stavAutor: TOITO architekti
Foto: Katarína Príkopská
Foto: Katarína Príkopská
Foto: Katarína Príkopská
Foto: Katarína Príkopská
Foto: Katarína Príkopská
Foto: Katarína Príkopská
Foto: Katarína Príkopská
Foto: Katarína Príkopská
Foto: Katarína Príkopská
Foto: Katarína Príkopská
Foto: Katarína Príkopská
Foto: Katarína Príkopská
Foto: Katarína Príkopská
Foto: Katarína Príkopská
Foto: Katarína Príkopská
Foto: Katarína Príkopská

Pôvodný stav:

Poloha diela

Ing. arch. Katarína Príkopská
Ing. arch. Ivan Príkopský
Ing. arch. Tomáš Szőke

Súvisiace články

Vložené
17. január 2022
0
6214
Hlavný obsahHlavný obsah
Čakajte prosím