Novotvar v prostredí alpskej obce.
Hansgrohe - prémiová značka kúpeľňových riešení, ponúka nadčasový dizajn, technickú precíznosť a udržateľné inovácie...
Využite špeciálnu akciu Internorm: okná za minuloročné ceny a hliníkový kryt úplne zadarmo. Ponuka je časovo obmedzená!
Na podujatí sa predstaví až 37 vystavovateľov - popredných dodávateľov stavebných materiálov a inovácií s prezentáciou...
Sumarizácia najdôležitejších inovácií, ktoré redefinujúcich využitie tohto energetického zdroja.
AMPHIBIA 3000 GRIP 1.3 od spoločnosti ATRO predstavuje modernú hydroizolačnú technológiu, ktorá spája vysokú odolnosť,...
Ambiciózne plány EK narazili na ekonomické možnosti domácností v jednotlivých členských štátoch –...
IDEA DOOR od spoločnosti JAP prináša do interiéru čistý minimalistický vzhľad vďaka bezrámovému riešeniu a precíznej...
Kontinuita riešenia od vonkajšieho obkladu až po kovania a kľučky.
Nástenné nadomietkové armatúry Vitus sú mimoriadne vhodné pre rýchlu a efektívnu...
Okenné profily z kompozitného materiálu RAU-FIPRO X od spoločnosti Rehau sú v porovnaní s tradičnými plastovými profilmi mnohonásobne...
Najnovší sortiment stolov pre zariadenie interiérov...
Spojenie moderného dizajnu, funkčnosti a svetla do harmonického architektonického prvku.
Kancelárska budova Baumit v slovinskom Trzine prešla premenou na moderné a udržateľné pracovisko. Architekti kládli dôraz...
Mottom šiesteho ročníku on-line konferencie odborníkov Xella Dialóg je Efektívny návrh budov 2025+: zmeny a riešenia

Ocenenie sa od roku 1998 udeľuje každoročne architektonickému dielu, ktoré medzinárodná porota uzná za najvýraznejší architektonický čin reflektovaný v uplynulom období na stránkach časopisu.
Medzinárodná porota v zložení Mária Topolčanská, Szymon Rozwałka, David Neuhäusl, Szabolcs Molnár a Michal Janák v spolupráci s redakčnou radou časopisu ARCH vybrali 9 nominácií na cenu ARCH 2022. Medzi ocenenými realizáciami sa nachádzajú rodinné domy i väčšie polyfunkčné objekty. Redakcia časopisu ARCH chce oceniť kvalitnú architektúru a v týchto ťažkých časoch odmietnuť vojenské násilie a vyjadriť solidaritu a podporu Národnej únii architektov Ukrajiny a ukrajinským architektkám a architektom.
Odovzdávanie tradičnej architektonickej ceny, ktorá nepozná kategórie, sa z obvyklého novembrového termínu presunulo na koniec apríla. Za zmenou stojí aj skutočnosť, že v roku 2021 všetky vydavateľské činnosti od vydavateľstva Eurostav prevzalo Nakladatelství FORUM, s.r.o., ktoré tieto aktivity zastrešuje prostredníctvom svojej organizačnej zložky na Slovensku.
Nominácie, ktoré boli vybraté spomedzi 45 realizácií publikovaných v časopise ARCH medzi rokmi 2020 - 2021:
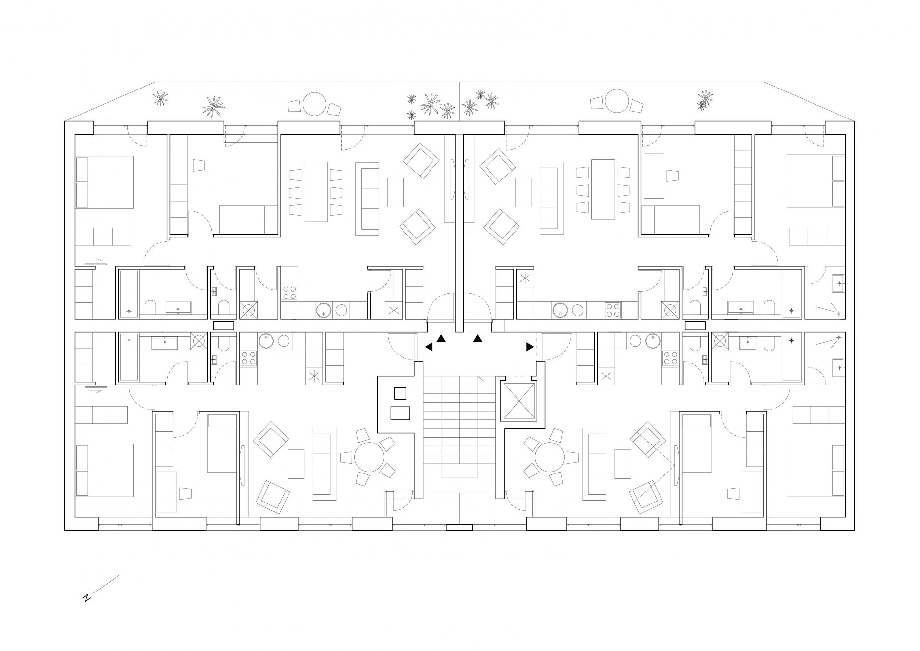
Bytový dom, Račianska 20, Bratislava (Dielo sme podrobne predstavili tu)
Investor: Lofty s.r.o.
Autori: Lukáš Kordík, Štefan Polakovič, Matej Honč, Barbara Šranková-Borščová
Projekt: 2015 – 2017, realizácia: 2017 – 2019
Plocha pozemku: 1 510,2 m2, zastavaná plocha: 388,7 m2
Úžitková plocha: cca 3 000 m2, obstavaný priestor: 11 745 m3
"Bytový dom na Račianskej ulici je rekonštrukciou a nadstavbou pôvodného domu s bytmi pre zamestnancov susednej tlačiarne Svornosť. V pôvodnom dome sa nachádzali len malometrážne byty, ktoré boli preusporiadané na nový pestrý mix bytov. Nový raster okien vizuálne spojil pôvodný dom s nadstravbou do jedného objemu. V dvorovej časti sme doplnili dlhé, priebežné loggie. Na najvyššom podlaží sú dva veľké byty s rekreačnými pátiami. Nový výťah a úpravy v spodnej hale umožnii bezbariérový prístup zo strany ulice. Dom je prvou etapou pripravovanej rekonštrukcie areálu bývalých tlačiarní Svornosť, ktoré sa premenia na objekt s loftovými bytmi."
Foto: archív autorov
Dom V, Bratislava-Vajnory (Dielo sme podrobne predstavili tu)
Autor: Martin Skoček
Spolupráca: Lucia Uhnáková, Marián Krajči, LABAK (záhradná architektúra)
Statika: Jánoš Kállay
Projekt: 2016 – 2017, realizácia: 2017 – 2019
Plocha pozemku: 609 m2, zastavaná plocha: 183 m2
Úžitková plocha: 156 m2, obstavaný priestor: 1 027 m3
"Dom svojou líniovou hmotou a priečelím nadväzuje na tradičnú vidiecku zástavbu okrajovej časti Bratislavy. Postavený je na mieste pôvodného rozobraného domu, z pôvodného priznaného režného muriva, ktoré tvorí aj jeho hlavnú interiérovú charakteristiku. Samotné členenie domu je inšpirované trojdielnym slovenským domom kde centrálnym priestorom sa stáva „pitvor” orientovaný do záhrady, ktorá je jeho neoddeliteľnou súčasťou. Výrazným konštrukčným prvkom je aj tvarovanie krovu, ktoré umožňuje prístup východného svetla pomocou svetlíkov tak, aby nenarúšal pohľadovú kontinuálnu plochu strechy zo záhrady."
Foto: Matej Hakár
Letný dom, Bratislava-Vajnory (Dielo sme podrobne predstavili tu)
Autori: Totalstudio / Aleš Šedivec, Tomáš Tokarčík
Projekt: 2017, realizácia: 2017 – 2020
Plocha pozemku: 1 317 m2
Zastavaná plocha: 100 m2
Úžitková plocha: 81 m2 + 50 m2 terasa
"Letný dom vo Vajnoroch je domom, ktorý by chcel splynúť s veľkou záhradou a stať sa jej súčasťou. Formálne odkazuje k dočasným prázdninovým konceptom bývania ako karavan, alebo stan a tiež na tradičné Vajnorské stavanie. Výsledkom je kompozícia troch domov, ktoré tvoria jeden dom. Nočný dom, denný dom a záhradný dom."
Foto: Eva Benková
The Corner – polyfunkčný dom, Námestie 1. mája, Bratislava (Dielo sme podrobne predstavili tu)
Investor: Vodohospodárske stavby Malacky, a. s.
Autori: Martin II. Kusý, Pavol Paňák, Mária Michalič-Kusá
Spolupráca: Richard Kereškényi, Július Vass, Beáta Paňáková
Projekt: 2003 – 2016, realizácia: 2016 – 2019
Plocha pozemku, zastavaná plocha: 550 m2, úžitková plocha: 4 511 m2
Stavebné náklady: 5 800 000 EUR
"Snahou autorov bolo postaviť mestský panský dom v strede hlavného mesta – svojou identitou, tektonikou, materialitou a detailom. Od začiatku sme si stanovili ako princíp – urobiť budovu s 3 tvárami. Dosiahli sme to plasticitou fasády. Z jednej strany pôsobí ako kamenná plastická stena a z druhej ako stena s otvormi a z frontálneho pohľadu ako raster otvorov. Jednoduchá šikmina okenného ostenia, ako reakcia na zalomenie cesty. Je paradoxné, že napriek kamennému pôsobeniu budovy je táto vlastne vyskladaná zo síce masívnych, ale okenných otvorov. Tie oddeľuje titerná horizontála betónového prefabrikátu. Od začiatku sme kládli veľký dôraz na detail, materialitu a logiku fasády."
Foto: Tomáš Manina
Polyfunkčný dom, Konventná ulica 9, Bratislava (Dielo sme podrobne predstavili tu)
Investor: Konventna, a. s., Bratislava
Autori: Martin Kusý II., Pavol Paňák, Martin Kusý III.
Spolupráca: Richard Kereškényi, Július Vass
Projekt: 2011 – 2016, realizácia: 2017 – 2020
Plocha pozemku a zastavaná plocha: 725 m2, úžitková plocha: 5 025 m2
"Kľúčovou architektonickou otázkou návrhu objektu bola voľba takých postupov, ktoré reagujú na historický kontext miesta a zároveň jednoznačne identifikujú túto architektúru ako dnešnú, súčasnú. Okolitú historickú architektúru charakteristickú bohatým reliéfnym klasicistným zdobením sa návrh pokúša interpretovať súčasným architektonickým vokabulárom, ktorý abstrahuje ver-tikálne (smerom na hor) a horizontálne (smerom k susedovi z 20 teho storočia). Rovnako použité materiály, ušlachtilé omietky, drevo.... prezentujú jednak celistvosť vlastného objemu a vzťah s okolím. Architektúra dvornej strany je v detaile prostejšia, tak ako u susedov, dôraz je kladený na drobnejšie proporcie, zeleň na terasách a strechách a svetlotechnické podmienky, ktorých dopad je zrejmý hlavne z uličnej strany."
Foto: Tomáš Manina
Súkromná základná škola Guliver, Banská Štiavnica (Dielo sme podrobne predstavili tu)
Autori: Richard Murgaš, Martin Lepej, Lukáš Cesnak
Spolupráca: Michaela Žáková, Viktória Szabóová, Filip Krump
Projekt: 2017, realizácia: 2021
Plocha pozemku: 17 892,4 m2, zastavaná plocha: 1747,6 m2
Úžitková plocha: 4786,5 m2, obstavaný priestor: 27 584 m2
"Zložitý priemyselný areál na okraji mesta premenený na obrovské športovisko s jednoduchou blokovou stavbou školy, ktorá vsádza na proporčnosť objemov a čistý detail. Benefit kontaktu s exteriérom a forma tienenia presklenej fasády vytvárajúca hlavný vizuálny zážitok nielen cez deň, ale aj v noci keď sa farebné vnútro školy ukáže verejnosti. Klastre ako unifikované plošné jednotky pokrývajúce potrebu vzdelávacieho procesu a prestávkových aktivít 40-60 žiakov, vzá-jomne výškovo posunuté o polovicu podlažia a pospájané ramenami pobytového schodiska. Minimalistická telocvičňa s kontaktom na školský dvor posadená na betónovú halu plaveckého bazéna, to všetko zložito napojené na školu...
Foto: Tomáš Manina
Hrad Uhrovec, obnova hospodárskej budovy (Dielo sme podrobne predstavili tu)
Autori: ô - Martin Varga, Martin Kvitkovský, Pavol Pauliny
Spolupráca: Miroslav Matejka, Peter Horanský, Filip Jaššo, Peter Nižňanský, Obnova, s.r.o.
Investor: O.z. Hrad Uhrovec
Projekt: 2012 - 2017, realizácia: 2018 - 2020
Zastavaná plocha: 84 m2
Úžitková plocha: 165,15 m2, obstavaný priestor: 1010 m3
Stavebné náklady: 342 042 EUR
"Hrad Uhrovec ležiaci vysoko v Strážovských vrchoch a ukrytý mimo všetkých obchodných ciest, je dodnes najzachovalejšou hradnou ruinou na Slovensku. Komplexná obnova neskororenesančnej Hospodárskej budovy na dolnom nádvorí hradu je míľnikom pri jeho ďalšej obnove a zároveň nastavuje nové kritériá pamiatkovej obnovy v našom regióne. Trojpodlažný objekt so zmiešanou funkciou slúži ako výstavný priestor so spoločenskou miestnosťou
a ubytovacími kapacitami pre návštevníkov, ako aj ľudí podieľajúcich sa na ďalšej systematickej obnove. Tradičné stavebné materiály, klasické remeselné postupy a množstvo detailov, ktoré sa zdali byť stratené, opäť vnášajú život opustenému komplexu."
Foto: Peter Čintalan
Bytové domy Kamence, Kysucké Nové Mesto (Dielo sme podrobne predstavili tu)
Autori: SLLA - Miriam Lišková, Michal Sulo
Spolupráca: SLLA - Jana Nagyová, Boris Rusiňák, Viktória Sabadošová
Krajinná architektúra: Ateliér Divo - Ján Augustín, Iveta Augustínová
Sochárske riešenie: Pavlína Sceranková, Dušan Zahoranský, Rom Kostrica
Výtvarné diela: Ivica Markovičová, Marek Ormandík, Oto Hudec, Mišo Ormos, Veronika Cvinčeková
Investor: Istrofinal, a.s.
Projekt: 2018 - 2019, realizácia: 2019 - 2020
Podlažná plocha: 7346 m2, zastavaná plocha: 1040 m2
Úžitková plocha: 6703 m2, obstavaný priestor: 22 037 m3
"Tri bytové domy sú prvou etapou pripravovanej obytnej zóny na rozhraní exis-tujúceho mesta, sídliska, rodinných domov, centra mesta a biokoridoru rieky. Masterplan vychádza z predpokladu postupnej realizácie jednotlivých etáp ako samostatných projektov organizovaných do pásov vymedzených ulicami so vstupmi, spoločnými priestormi, vybavenosťou a parkovaním na povrchu zohľad-ňujúcim ekonomické možnosti regiónu. Zelené koridory sú súčasťou každého pásu, prepájajú nábrežie s existujúcou časťou mesta, aby nová zástavba nebola bariérou medzi mestom a riekou, ale spájajúcim elementom."
Foto: SLLA
Dom 10plošín, Bratislava-Jarovce (Dielo sme podrobne predstavili tu)
Autori: N/A - Benjamín Brádňanský, Vít Halada
Spolupráca: Maroš Greš
Projekt: 2012 - 2014, realizácia: 2014 - 2021
Pozemok: 643 m2
Zastavaná plocha: 156 m2, úžitková plocha: 173 m2
"Priestor vo vnútri domu je pokračovaním, či preklopením vonkajšieho priestoru parcely, ktorá dom obklopuje. Do špirály zjednodušený raumplan je zároveň odkazom na pódiové radenie priestorov architektonických zdrojov a vzorov (aj slovenských), ktoré máme radi. Prechod domom sa stáva proce-siou, priestor meandruje vo všetkých troch rozmeroch, umožňuje priehľady a priekuky. Priestor osciluje a mení smer, svoj rozmer a priepustnosť hranice. Dom je vytvorený 10 plošinami krútiacimi sa okolo stredovej police, niekedy otvorenými, niekedy osadenými uzatvorenými bunkami. Špirála je alternova-ná skratkou schodiska."
Foto: Leontína Berková
Slávnostné vyhlásenie Ceny ARCH sa uskutoční 28. 4. 2022 v Galérii mesta Bratislavy.
Nový časopis ARCH si môžete predplatiť na tomto odkaze. V roku 2022 vyjdú 4 čísla.