Novotvar v prostredí alpskej obce.
Hansgrohe - prémiová značka kúpeľňových riešení, ponúka nadčasový dizajn, technickú precíznosť a udržateľné inovácie...
Využite špeciálnu akciu Internorm: okná za minuloročné ceny a hliníkový kryt úplne zadarmo. Ponuka je časovo obmedzená!
Na podujatí sa predstaví až 37 vystavovateľov - popredných dodávateľov stavebných materiálov a inovácií s prezentáciou...
Sumarizácia najdôležitejších inovácií, ktoré redefinujúcich využitie tohto energetického zdroja.
AMPHIBIA 3000 GRIP 1.3 od spoločnosti ATRO predstavuje modernú hydroizolačnú technológiu, ktorá spája vysokú odolnosť,...
Ambiciózne plány EK narazili na ekonomické možnosti domácností v jednotlivých členských štátoch –...
IDEA DOOR od spoločnosti JAP prináša do interiéru čistý minimalistický vzhľad vďaka bezrámovému riešeniu a precíznej...
Kontinuita riešenia od vonkajšieho obkladu až po kovania a kľučky.
Nástenné nadomietkové armatúry Vitus sú mimoriadne vhodné pre rýchlu a efektívnu...
Okenné profily z kompozitného materiálu RAU-FIPRO X od spoločnosti Rehau sú v porovnaní s tradičnými plastovými profilmi mnohonásobne...
Najnovší sortiment stolov pre zariadenie interiérov...
Spojenie moderného dizajnu, funkčnosti a svetla do harmonického architektonického prvku.
Kancelárska budova Baumit v slovinskom Trzine prešla premenou na moderné a udržateľné pracovisko. Architekti kládli dôraz...
Mottom šiesteho ročníku on-line konferencie odborníkov Xella Dialóg je Efektívny návrh budov 2025+: zmeny a riešenia

Realizácia ateliéru playarchitects. Obnova a prestavba povojnovej bratislavskej vily.
Autori stavajú na charakteristickom výraze objektu, pričom bývanie prispôsobujú súčasným požiadavkám prostredníctvom logických úprav dispozície a jasne odlíšených nových vrstiev prístavby.
"V rámci projektu bolo našim zámerom zrealizovať príkladnú a citlivú rekonštrukciu a dostavbu povojnovej vily neďaleko Bratislavskej kalvárie tak, aby odrážala súčasné trendy a zároveň pozdvihovala ´obyčajnosť´ pôvodného objektu."
Realizáciu bližšie predstavi sprievodný text autorov:
Pôvodná vila, postavená v povojnovom období 20. storočia, predstavovala typický rezidenčný dom svojej doby – konzervatívny v tvare a skromný vo výraze. Pri rekonštrukcii a dostavbe sme sa preto sústreďovali na zachovanie génia loci pôvodnej vily a pridanie súdobého vrstvenia, ktoré vnesie do domu aktuálny výraz bez toho, aby narušilo jeho pôvodný charakter.
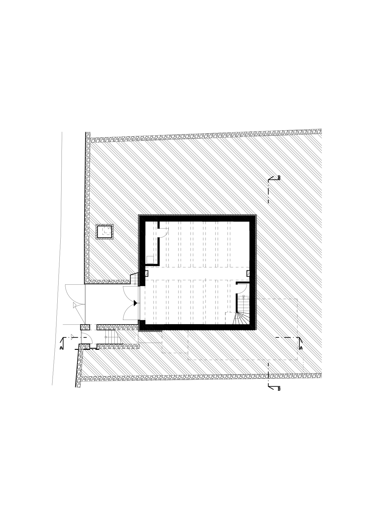
Koncept
Architektonický koncept exteriéru stavia na dialógu medzi starým a novým. K pôvodnej povojnovej vile sme sa snažili citlivo pripojiť modernú prístavbu, ktorej hmota aj výraz rešpektujú existujúcu architektúru. Nový objem je zámerne odlíšiteľný – nevnucuje sa, nekonkuruje historickej stavbe, ale naopak doplňuje jej jednoduchosť. Pôvodná fasáda vily so svojou tradičnou omietkou a proporciami zostala zachovaná a vyniká v kontraste s prístavbou navrhnutou v súčasnom duchu. Nová prístavba je koncipovaná tak, aby neprekrývala ani nepotláčala pôvodnú hmotu domu, ale prirodzene sa začlenila do celku. Materiálové riešenie exteriéru zvýrazňuje rozdiel medzi starým a novým. Prístavba je obložená prevetrávanou fasádou z Cortenu s presadenými bezrámovými zaskleniami, v kontraste s tradičnou omietkou a replikami pôvodných okien objektu.
Cieľom bolo vytvoriť vyvážené spolupôsobenie historickej vily a modernej prístavby, ktoré spoločne povýšia kedysi nenápadný dom na architektonicky hodnotný objekt.
Interiér
Riešenie interiéru nadväzuje na princípy zvolené v exteriéri – staré je zachované a nové vložené vrstvy sú jasne čitateľné a funkčne nevyhnutné. V pôvodnej časti domu bolo zachované maximum autentických prvkov a konštrukcií. Nosné steny, existujúce stropy i schodisko prešli rekonštrukciou, aby si dom uchoval svoju historickú identitu aj v interiéri. Súdobé stvárnenie prístavby je vnímateľné aj v interiéri, čím sme sa snažili dosiahnuť pravdivosť konštrukcií a ich jasnú čitateľnosť.
Dispozícia pôvodnej vily, ktorá odrážala dobové členenie miestností, bola čiastočne upravená tak, aby vyhovovala súčasnému životnému štýlu. Odstránením niektorých priečok a zväčšením otvorov na prízemí vznikol rozsiahly obytný priestor prepájajúci kuchyňu, jedáleň a obývaciu časť. Tento priestor je opticky predĺžený do exteriéru vďaka novému posuvnému preskleniu, ktoré nahradilo časť obvodovej steny smerom do záhrady.
Adaptácia podkrovia predstavovala ďalšiu výzvu. Pôvodný drevený krov strechy bol zachovaný a citlivo zakomponovaný do novej podkrovnej obytnej časti venovanej deťom. V podkroví vznikla popri spálni rodičov aj herňa, ktorá ťaží z odhalenej konštrukcie krovu. Nepravidelná geometria strechy a rytmus pôvodných trámov vytvárajú dynamický a podnetný interiér. Deti tak majú k dispozícii priestorovo zaujímavú izbu, ktorá je súčasne moderná a pritom dýcha históriou domu.
Nová prístavba priniesla do interiéru vily doplnenie chýbajúcich funkcií, čím umožnila zachovať pôvodné miestnosti bez radikálnych zásahov. Na prízemí prístavby sa nachádza vstupná hala so zádverím a nová domáca pracovňa – priestory, ktoré pôvodnej vile chýbali a ktorých pridanie zvýšilo komfort bývania. Na poschodí prístavby vzniklo moderné hygienické jadro, čím sa odbremenila dispozícia historickej časti od potreby umiestniť túto novú funkciu do pôvodných miestností. Architektonicky je prístavba v interiéri poňatá v súčasnom minimalistickom štýle: dominujú čisté línie a priznané oceľové prvky konštrukcie, ktoré korešpondujú s exteriérovým výrazom Cortenu. Tieto moderné prvky v interiéri jasne odlišujú novú časť od pôvodnej vily – kým v historických miestnostiach prevládajú tradičné materiály a detaily, nové priestory majú industriálnejší charakter.
Napriek odlišnému výrazu sme sa však usilovali, aby interiér prístavby plynulo nadväzoval na zvyšok domu vďaka premyslenému prepojeniu a neutrálnemu farebnému ladeniu. Pohyb medzi starou a novou časťou je tak prirodzený a funkčný. Obyvatelia pociťujú rozšírenie domu ako jeho organickú súčasť.
Celkový koncept rekonštrukcie a dostavby vily je založený na vrstvení času a štýlu, kde nová vrstva jednoznačne odráža ducha 21. storočia, no citlivo dopĺňa pôvodnú architektúru druhej polovice 20. storočia a zároveň svojimi detailmi odkazuje na pôvodné konštrukčné riešenia, no v novej interpretácii.
Nové zásahy v exteriéri aj interiéri vyplynuli z aktuálnych požiadaviek majiteľov na komfort a funkciu, avšak každá moderná úprava bola navrhnutá s ohľadom na historický kontext domu.
Použité materiály a riešenia:
Strešné okná od spoločnosti Velux
Ateliér: playarchitects
Fotografie: Ing.arch. Matúš Gondek