Advertorial

Okná Internorm za minuloročné ceny + hliníkový kryt zdarma!

Využite špeciálnu akciu Internorm: okná za minuloročné ceny a hliníkový kryt úplne zadarmo. Ponuka je časovo obmedzená!

Pozvánka na 2. ročník stavebného veľtrhu BigMarket na Slovensku

Na podujatí sa predstaví až 37 vystavovateľov - popredných dodávateľov stavebných materiálov a inovácií s prezentáciou...

Moderné plynové technológie: Efektivita a inovácie pre 21. storočie

Sumarizácia najdôležitejších inovácií, ktoré redefinujúcich využitie tohto energetického zdroja.

Utesňovanie spodných stavieb pomocou hydro-aktívnej fólie AMPHIBIA.

AMPHIBIA 3000 GRIP 1.3 od spoločnosti ATRO predstavuje modernú hydroizolačnú technológiu, ktorá spája vysokú odolnosť,...

Dekarbonizácia individuálneho vykurovania domácností – Green Deal evolučne a nie revolučne

Ambiciózne plány EK narazili na ekonomické možnosti domácností v jednotlivých členských štátoch –...

Minimalistické dvere IDEA – technická precíznosť a čistota prevedenia

IDEA DOOR od spoločnosti JAP prináša do interiéru čistý minimalistický vzhľad vďaka bezrámovému riešeniu a precíznej...

Dom s výhľadom na údolie, Dlouhý Most (ČR)

Kontinuita riešenia od vonkajšieho obkladu až po kovania a kľučky.

Schell Vitus – osvedčené riešenie pre sprchy a umývadlá vo verejnom sektore s viac ako desaťročnou tradíciou

Nástenné nadomietkové armatúry Vitus sú mimoriadne vhodné pre rýchlu a efektívnu...

Kompozitné okná predstavujú súčasnosť a budúcnosť

Okenné profily z kompozitného materiálu RAU-FIPRO X od spoločnosti Rehau sú v porovnaní s tradičnými plastovými profilmi mnohonásobne...

Myotis - stoly 2025

Najnovší sortiment stolov pre zariadenie interiérov...

Priemyselné sklenené priečky Dorsis Digero: svetelné rozhranie pre moderné interiéry

Spojenie moderného dizajnu, funkčnosti a svetla do harmonického architektonického prvku.

Význam prirodzeného svetla pre moderné a flexibilné pracovné prostredie

Kancelárska budova Baumit v slovinskom Trzine prešla premenou na moderné a udržateľné pracovisko. Architekti kládli dôraz...

Konferencia Xella Dialóg predstaví novinky a trendy v stavebníctve

Mottom šiesteho ročníku on-line konferencie odborníkov Xella Dialóg je Efektívny návrh budov 2025+: zmeny a riešenia

Murovací robot WLTR stavia svoj prvý dom na Slovensku

Robot WLTR predstavuje moderný prístup k murovaným konštrukciám. Vďaka automatizácii dokáže rýchlo, presne a bezpečne realizovať...

Nová éra bezpečnosti s I-tec Secure od Internorm

Okrem bezpečnosti majú okná aj elegantný vzhľad, pretože nie sú viditeľné žiadne uzamykacie časti kovania.

Dom 2 v 1, Kratiny

Malý rodinný dom v staršej zástavbe bratislavských Vajnôr.
Diela
Red 328.07.2020
89900+63
Dom 2 v 1, Kratiny
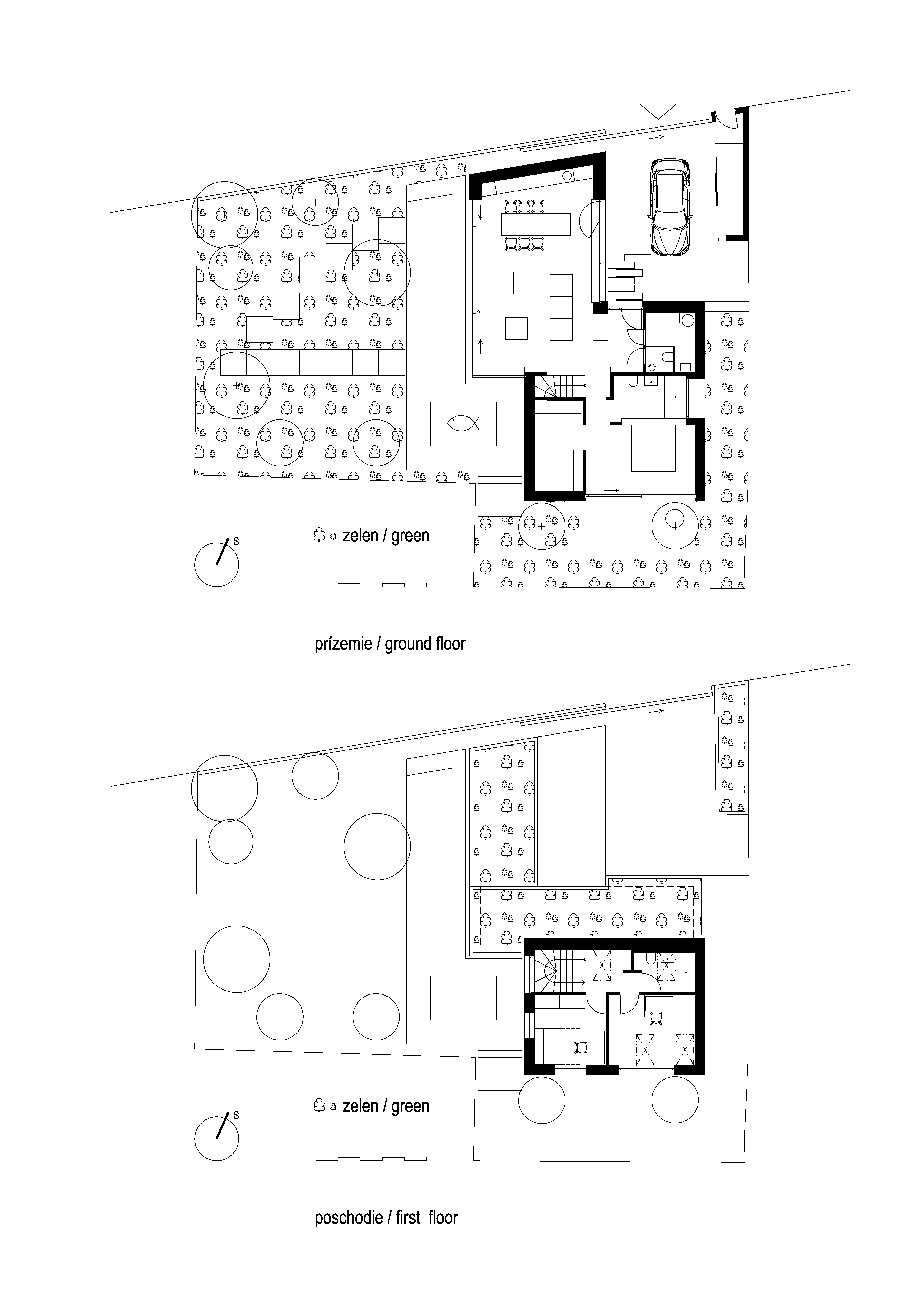
Ateliér: PlayarchitectsAutori: Ing.arch. Matúš GondekPlocha pozemku: 434 m2Zastavaná plocha: 122m2Podlažná plocha: 173m2Obostavaný objem: 625m3Návrh: 2016 - 2018Realizácia: 2018 - 2020Adresa: Kratiny , Bratislava - Vajnory, SlovenskoPublikované: 28. júl 2020

Bývanie v kontakte so záhradou. Dvojica obytných traktov so snahou o nový, kontextuálny dialóg s okolitou zástavbou.

 

Realizáciu bližšie predstaví architekt Matúš Gondek:

Rodinný dom vyrástol v záhrade, ktorá pôvodne patrila rožnému objektu, uzatvárajúcemu obytný blok. Pri osadzovaní domu v rámci pozemku som bol konfrontovaný s viacerými možnosťami. Ako základné kritérium som si najprv stanovil dostatočnú mieru súkromia pre obyvateľov, pri zachovaní čo najväčšej záhrady. Prvá reakcia bola postaviť dom - “hradbu”, medzi ulicou a zvyšným pozemkom. Čoskoro som si ale uvedomil potrebu rôznych úrovní súkromia. Z domu - bariéry vznikla stavba, ktorá je na úrovni prízemia plynulou súčasťou okolitého pozemku. Svojim osadením a dispozičným riešením člení pozemok na tri základné funkčné priestory. Vjazd ako utilitárna vstupno-skladová časť. Obytný priestor, pokračujúci do exteriéru ako spoločenská zóna. Samostatná súkromná časť pre rodičov - miesto oddychu.

Nad touto záhradno-obytnou platformou sa týči druhé podlažie pre deti a návštevy. V mojej predstave domček, vysunutý do korún zachovaných záhradných stromov. Z tohto dôvodu má poschodie okná orientované priamo na vzrastlú zeleň.

Rozdelenie objektu na “domček“ a “stodolu“ - dvojicu menších objektov, má za cieľ zmenšiť mierku domu. Podvedome som stále cítil, že výstavba v záhrade nemá neprimerane zahusťovať stabilizované prostredie ulice. Rozdelenie je tiež výrazom členenia na dennú časť, umiestnenú bližšie pri ulici a nočnú časť v kľude vnútorných záhrad. Sklon strechy a tvarovanie objemov nadväzuje na staršiu zástavbu Vajnor. Materiálovo sa však najmä obytná časť domu od okolitej zástavby výrazne líši.

Technické riešenie umožnilo umiestniť na strechy živú zeleň. Spolu s výsadbou v záhrade je zámerom zazelenania pozitívne vplývať na mikroklímu pozemku a zmierniť prehrievanie domu počas letných mesiacov. Porast striech a zeleň v záhrade zabezpečuje, aby ulica neprišla o svoj kus prírody.

Foto: Matúš Gondek
Foto: Matúš Gondek
Foto: Matúš Gondek
Foto: Matúš Gondek
Foto: Matúš Gondek
Axonometria
AxonometriaAutor: Matúš Gondek
Pôdorysy
PôdorysyAutor: Matúš Gondek

Technické riešenie

Odvetrané fasády oboch častí domu ukrývajú železobetónovú monolitickú konštrukciu domu, odhalenú zo strany interiéru. Súčasťou všetkých betónových horizontálnych konštrukcií sú rozvody chladenia, integrované aj v šikmom strope nad obývacou izbou. Krov nad detskými izbami tvorí drevená hambálková konštrukcia.

Fasády sú zateplené 24 centimetrami minerálnej vlny, vkladanej do roštu kombinovanej konštrukcie oceľ-drevo. Hrúbka izolácie na streche je 40 centimetrov. “Domček” a “stodola” odlišuje materiál predsadenej fasády. Falcovaný titánzinkový plech strieda predsadená konštrukcia z drevených hranolov. Hydroizolačnú PVC fóliu na strechách chránia drevené rošty, alebo vrstvy vegetačnej strechy.

Priznané betónové konštrukcie dopĺňajú v interiéri priečky z vápenno-pieskových tehál, určených pre murovanie bez omietok. Súčasťou tvaroviek sú dutiny pre rozvody vody a elektriny, ktoré umožnili jednoduchú výstavbu s malým množstvom odpadu a bez potreby dodatočného omietania. Funkciu deliacich konštrukcií sčasti preberajú nábytkové prvky vyhotovené prevažne z preglejky.  

Ako zdroj tepla pre vykurovanie domu slúži tepelné čerpadlo typu vzduch-voda, ktoré zabezpečuje aj chladenie počas letných mesiacov. Rozvody chladenej vody vedú v nosnej betónovej konštrukcii domu. Krov je chladený sadrokartónovými panelmi, s vloženými rúrkami chladenia.

Rozvody núteného vetrania s rekuperáciou sú trasované v podlahách na poschodí tak, aby bolo možné zachovať surovú estetiku a chladiacu funkciu betónových stropov.

Foto: Matúš Gondek
Foto: Matúš Gondek

Podklady: Matúš Gondek / play MTTO

Použité materiály a riešenia:

Obklad fasády - falcované pásy titánzinkového plechu Rheinzink prePATINA blaugrau, kotvené na podkladovú OSB dosku.

Vizuál zo strany ulice dotvára hrdzavá textúra materiálu Ruukki Cor-Ten, použitého na vstupnej bráne a bráničke.

Poloha diela

Ing.arch. Matúš Gondek
Vložené
27. júl 2020
0
8990
Hlavný obsahHlavný obsah
Čakajte prosím