Na podujatí sa predstaví až 37 vystavovateľov - popredných dodávateľov stavebných materiálov a inovácií s prezentáciou...
Novotvar v prostredí alpskej obce.
Hansgrohe - prémiová značka kúpeľňových riešení, ponúka nadčasový dizajn, technickú precíznosť a udržateľné inovácie...
Využite špeciálnu akciu Internorm: okná za minuloročné ceny a hliníkový kryt úplne zadarmo. Ponuka je časovo obmedzená!
Sumarizácia najdôležitejších inovácií, ktoré redefinujúcich využitie tohto energetického zdroja.
AMPHIBIA 3000 GRIP 1.3 od spoločnosti ATRO predstavuje modernú hydroizolačnú technológiu, ktorá spája vysokú odolnosť,...
Ambiciózne plány EK narazili na ekonomické možnosti domácností v jednotlivých členských štátoch –...
IDEA DOOR od spoločnosti JAP prináša do interiéru čistý minimalistický vzhľad vďaka bezrámovému riešeniu a precíznej...
Kontinuita riešenia od vonkajšieho obkladu až po kovania a kľučky.
Nástenné nadomietkové armatúry Vitus sú mimoriadne vhodné pre rýchlu a efektívnu...
Okenné profily z kompozitného materiálu RAU-FIPRO X od spoločnosti Rehau sú v porovnaní s tradičnými plastovými profilmi mnohonásobne...
Najnovší sortiment stolov pre zariadenie interiérov...
Spojenie moderného dizajnu, funkčnosti a svetla do harmonického architektonického prvku.
Kancelárska budova Baumit v slovinskom Trzine prešla premenou na moderné a udržateľné pracovisko. Architekti kládli dôraz...
Mottom šiesteho ročníku on-line konferencie odborníkov Xella Dialóg je Efektívny návrh budov 2025+: zmeny a riešenia

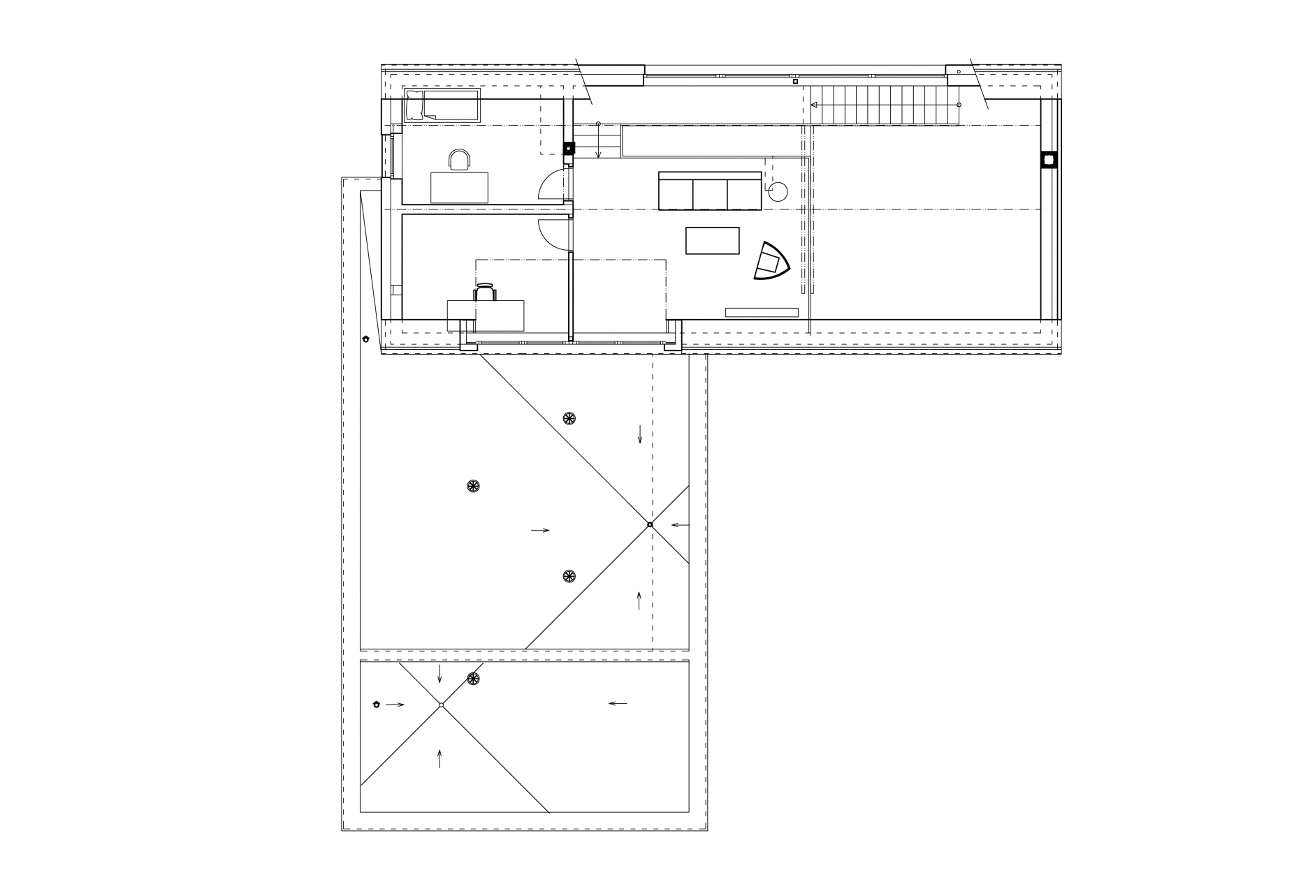
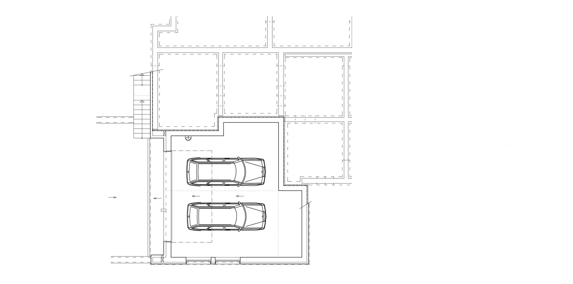
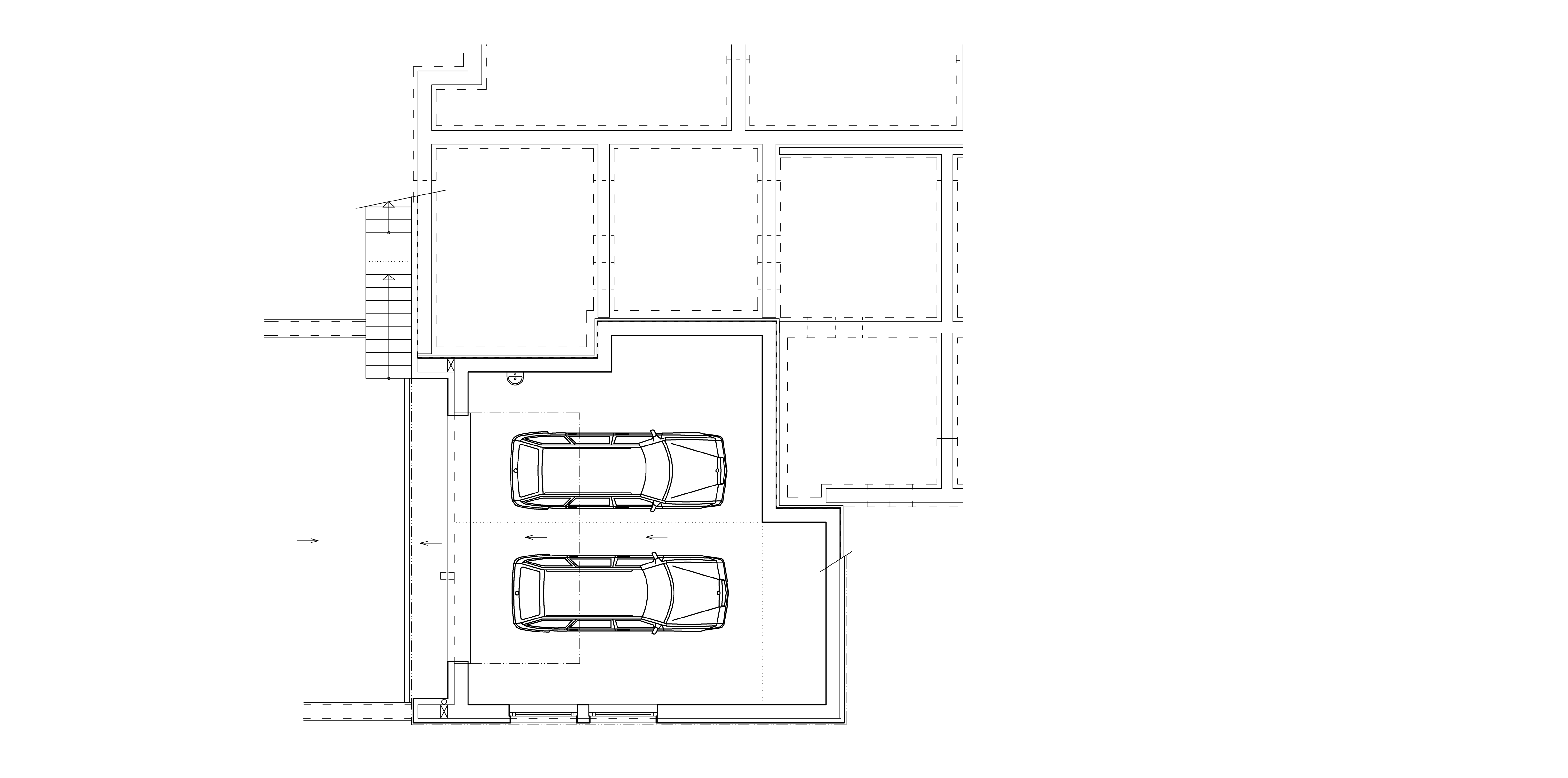
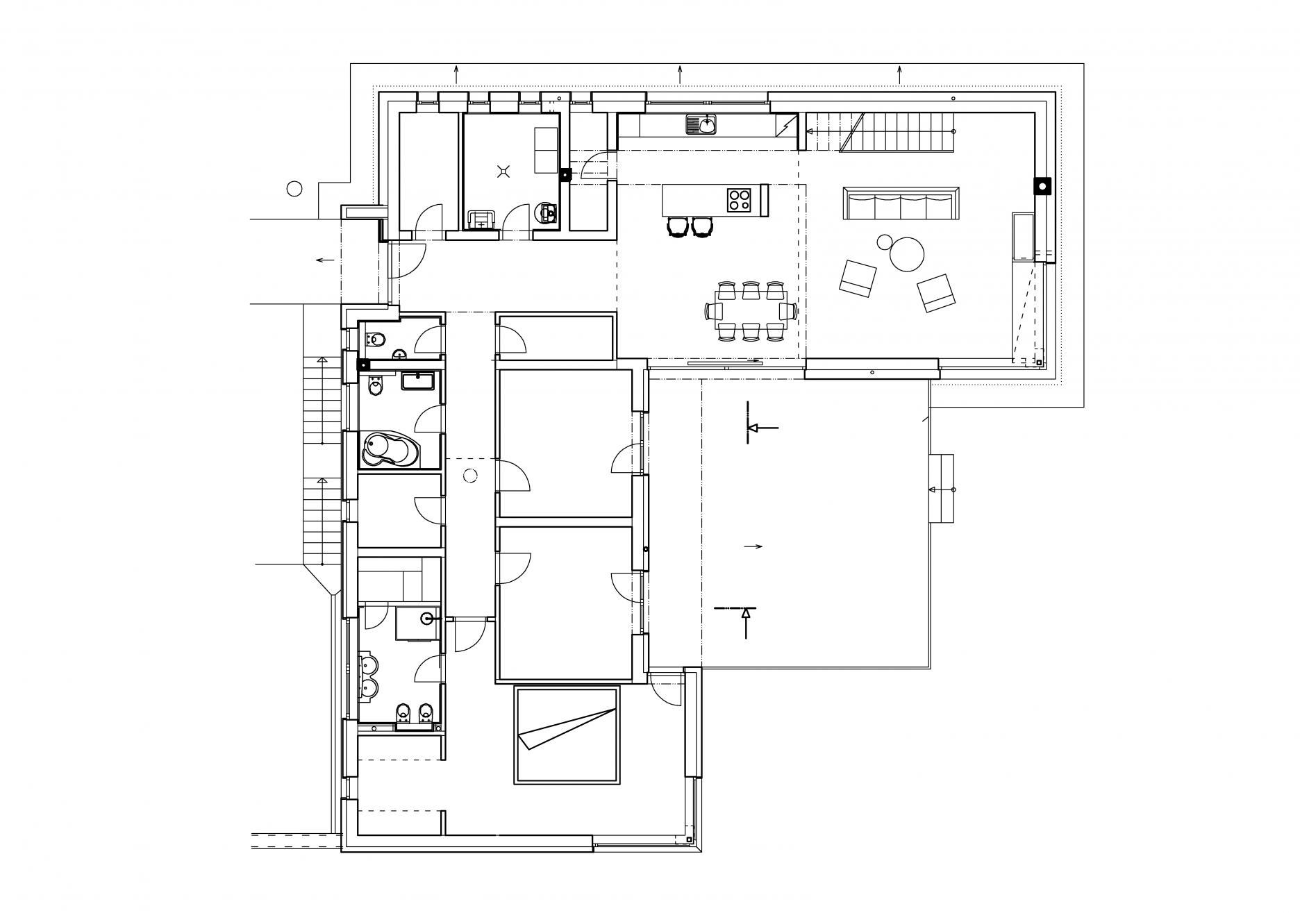
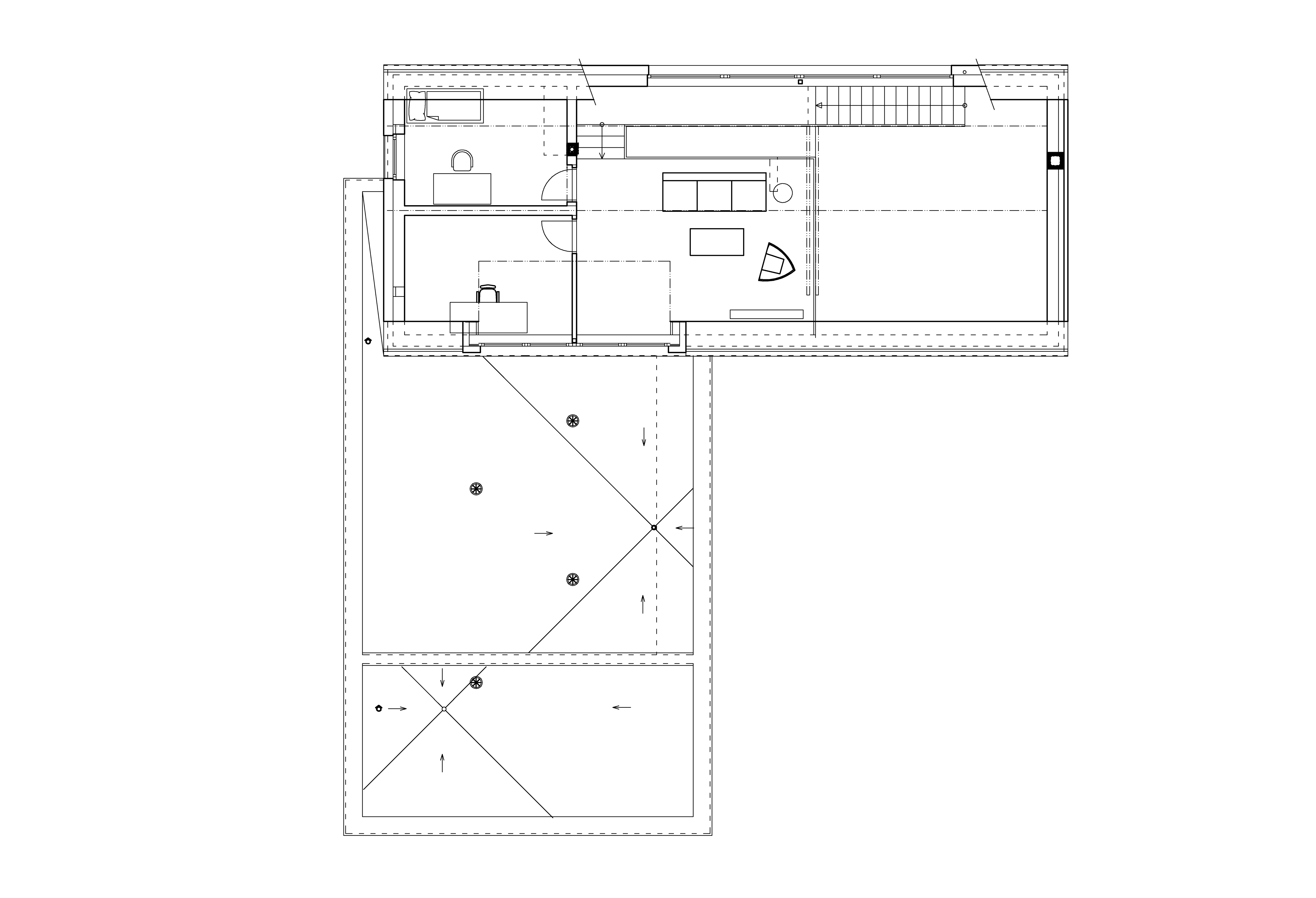
Dvojpodlažný rodinný dom s garážou sa nachádza v obci Lietavská Svinná - Babkov, v časti Kňazová Lehota. Obec leží v údolí riečky Svinianka, v južnej časti Žilinskej kotliny. Zo svahovitého pozemku na južnej hranici intravilánu sa otvárajú výhľady na lietavské podhradie a protiľahlý vápencový hrebeň.
Dom je posunutý k južnej hranici pozemku s výmerou takmer 1800 m2. Konfigurácia pôvodného terénu bola východiskom pre dvojúrovňové využitie parcely. Garáž, sprístupnená komunikáciou prebiehajúcou pozdĺž východnej hrany parcely, tvorí podnož pre nočnú časť domu. Elkový pôdorys, ktorý sa rozvíja na vyššej úrovni, je z východnej časti ohraničený vyššou, dennou časťou domu so sedlovou strechou. Tá zároveň tvorí pohľadovú bariéru pre otvorený segment záhrady. Betónová terasa, “zovretá” oboma traktami domu, sa otvára na juhozápad. Výhľad na okolité lúky nerušia žiadni susedia.
Príjemnú sivú patinu dreva, použitého na fasáde dennej časti domu, striedajú precízne monochromatické plochy nižšieho traktu. Bezpresahová strecha a skryté žľaby nechávajú vyniknúť kompozíciu dvojice blokov. Priestorový koncept je obohatený o prevýšenú zónu obývacej izby, otvorenú na celú výšku krovu.
Konštrukcia a materiály
Stavbu murovanú z keramických tvaroviek dopĺňajú železobetónové steny v suteréne a stĺpy v obývacej izbe (na úrovni prízemia).
Monolitické železobetónové stropy vystužujú v časti vjazdu do garáže a pri terase železobetónové prievlaky. V poschodovej časti domu prebieha v úrovni stropu stužujúci veniec. Ďalší veniec vedie pod pomúrnicami krovu a prechádza do štítovej steny.
Nosnú konštrukciu sedlovej strechy so skonom 40° tvorí väznicový tesársky krov s vrcholovou väznicou (oceľ 2U200) a pomúrnicami 140/140. Priestor nad obývacou izbou (približne v strede rozponu) preklenuje rám, zložený z oceľovej krokvy a oceľovej vodorovnej klieštiny, spolu so stĺpikom nesúcim vrcholovú väznicu. Na krokvy 100/200mm (strešné väzníky) je cez kontralaty 40/50 mm prichytená difúzne otvorená poistná hydroizolačná fólia. Kontralaty a riedke debnenie z dosák 32/100mm slúžia ako podkonštrukcia pre krytinu Ruuki Classic. Priestor pod plechovou krytinou je prevetrávaný.
Kontaktný zatepľovací systém s minerálnou vlnou je zo strany exteriéru ukončený škrabanou omietkou so zrnitosťou 1,5 mm. Všetky vnútorné povrchy sú omietnuté. Poschodová časť domu je obložená zvislými dreveným latkovaním. Medzi latami a zateplením je prevetrávaná dutina.
Podklady: Michal Diviš Architekti