Na podujatí sa predstaví až 37 vystavovateľov - popredných dodávateľov stavebných materiálov a inovácií s prezentáciou...
Novotvar v prostredí alpskej obce.
Hansgrohe - prémiová značka kúpeľňových riešení, ponúka nadčasový dizajn, technickú precíznosť a udržateľné inovácie...
Využite špeciálnu akciu Internorm: okná za minuloročné ceny a hliníkový kryt úplne zadarmo. Ponuka je časovo obmedzená!
Sumarizácia najdôležitejších inovácií, ktoré redefinujúcich využitie tohto energetického zdroja.
AMPHIBIA 3000 GRIP 1.3 od spoločnosti ATRO predstavuje modernú hydroizolačnú technológiu, ktorá spája vysokú odolnosť,...
Ambiciózne plány EK narazili na ekonomické možnosti domácností v jednotlivých členských štátoch –...
IDEA DOOR od spoločnosti JAP prináša do interiéru čistý minimalistický vzhľad vďaka bezrámovému riešeniu a precíznej...
Kontinuita riešenia od vonkajšieho obkladu až po kovania a kľučky.
Nástenné nadomietkové armatúry Vitus sú mimoriadne vhodné pre rýchlu a efektívnu...
Okenné profily z kompozitného materiálu RAU-FIPRO X od spoločnosti Rehau sú v porovnaní s tradičnými plastovými profilmi mnohonásobne...
Najnovší sortiment stolov pre zariadenie interiérov...
Spojenie moderného dizajnu, funkčnosti a svetla do harmonického architektonického prvku.
Kancelárska budova Baumit v slovinskom Trzine prešla premenou na moderné a udržateľné pracovisko. Architekti kládli dôraz...
Mottom šiesteho ročníku on-line konferencie odborníkov Xella Dialóg je Efektívny návrh budov 2025+: zmeny a riešenia

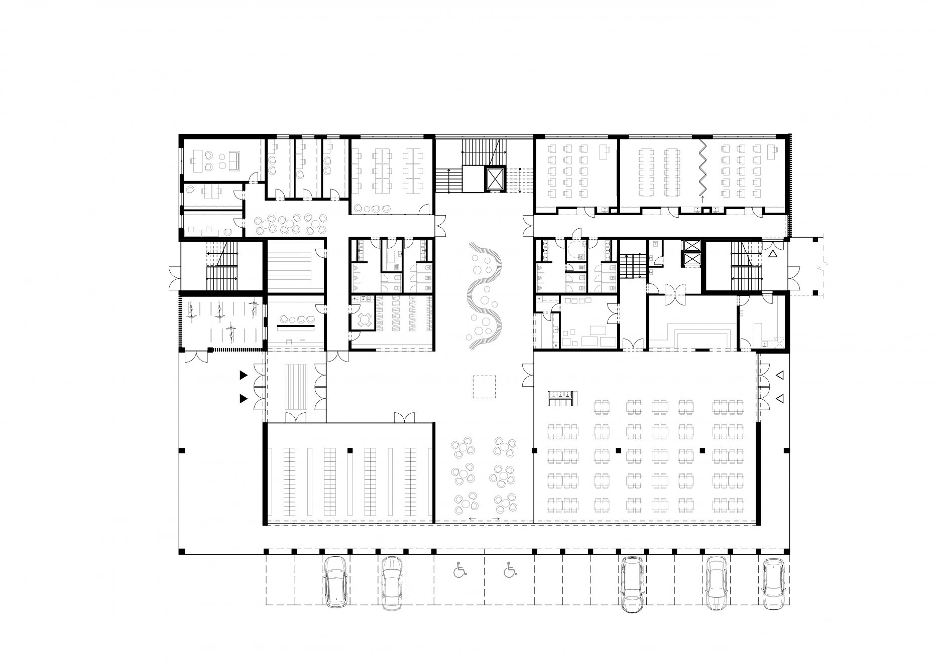
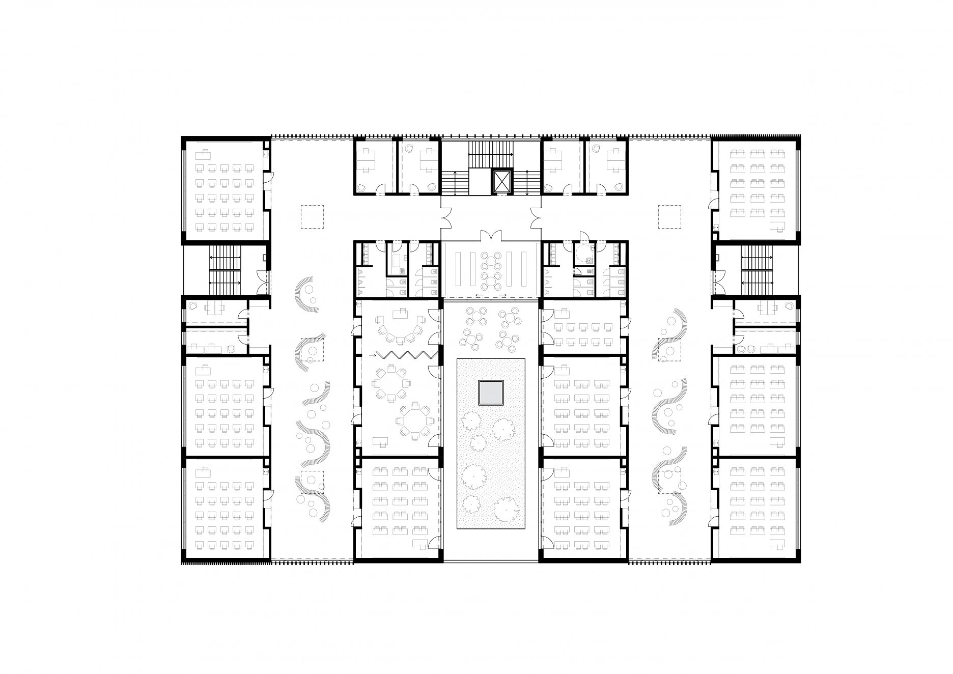
Projekt Základnej školy v Plaveckom Štvrtku vznikol pod vedením ateliéru Michal Diviš Architekti / MDA. Oblasť podpory ekologického staviteľstva zastupovala firma Krtkodom. Impulzom pre realizáciu novostavby, ktorej investorom je obec Plavecký Štvrtok a MŽP SR s predpokladanou podporou z fondov EÚ, je havarijný stav konštrukcie existujúcej základnej školy.
Jadrom zadania bolo 9 kmeňových tried pre cca 250 žiakov, ktoré dopĺňajú špecializované učebne, kabinety a zázemie školy. V objekte je navrhnutá kuchyňa s kapacitou 400 jedál denne a jedáleň s kapacitou 170 miest. Jednou z požiadaviek investora bola možnosť jednoduchej transformácie priestorov prízemia školy na mimoškolské aktivity či rozšírenie starostlivosti a prípravy na školskú dochádzku marginalizovaných skupín. Škola je navrhnutá v intenciách konceptu SMART škôl, ktorý vystihujú prívlastky "zelená, digitálna, partnerská, inkluzívna, aktívna, otvorená", s dôrazom na celoživotné vzdelávanie. Koncept zelenej školy zahŕňa moderné stavebné a prevádzkové technológie.
Architekti situovali nový objekt na západnú stranu areálu, kde sa v súčasnosti nachádza trávnatý porast a ihrisko. Orientácia pozemku v pozdĺžnej osi východ-západ určila rozvrhnutie dispozície a hlavne orientáciu učební na svetové strany.
Prevádzka školy je rozvrhnutá do troch výškových úrovní, pričom podzemné podlažie má polovičný rozsah zastavanej plochy.
V prvom podzemnom podlaží sa nachádza kuchyňa so zázemím, skladové a technické zázemie školy a dve špecializované dielne pre ručné práce. Učebne sú navrhnuté pre možnosť flexibilnej dispozície lavíc. Niektoré z nich majú možnosť rozdelenia / spojenia priestorov prostredníctvom skladacích deliacich priečok. Vo vybraných učebniach sa počíta s realizáciou presklených deliacich priečok, ktoré vytvoria vizuálny kontakt s komunikáciou a pobytovým priestorom.
Druhé nadzemné podlažie tvorí samostatný celok, ktorého prevádzku možno ďalej deliť vďaka dvom vstupom. Sú tu situované kmeňové triedy, špecializované triedy, kabinety a sociálne zázemie. Na chodbách sú oddychové lobby priestory, rozšírené o pobytovú strešnú záhradu, s možnosťou edukácie a funkčného prepojenia s dotknutými učebňami.
Konštrukčne je stavba navrhnutá ako železobetónový skelet s výplňovým murivom z tehly. Na fasáde sa uplatňujú prvky z pohľadového betónu a dreveného obkladu. Hliníkové okná chráni pred prehrievaním systém exteriérového tienenia.
Objekt je energeticky prepojený s existujúcou kotolňou v priestore telocviční. Strechy sú navrhnuté ako zelené s možnosťou osadenia fotovoltických panelov na ohrev TÚV. Na streche sa nachádza strešná koreňová čistička odpadových vôd. Dažďová voda sa bude zachytávať na pozemku v retenčnej nádrži a bude slúžiť ako zdroj závlahovej vody pre zeleň a recyklovanej šedej vody pre splachovanie WC. Rekuperácia a čistenie interiérového vzduchu je už samozrejmosťou. Projekt počíta so zaradením do energetickej triedy A0.
Autori kládli dôraz na vytvorenie prostredia pre zdravý pobyt žiaka a učiteľa. Dôležitá bola pri tom práca so svetlom, tepelným komfortom, vetraním a akustikou.
Autori: Michal Diviš Architekti / MDA a Krtkodom