Na podujatí sa predstaví až 37 vystavovateľov - popredných dodávateľov stavebných materiálov a inovácií s prezentáciou...
Novotvar v prostredí alpskej obce.
Hansgrohe - prémiová značka kúpeľňových riešení, ponúka nadčasový dizajn, technickú precíznosť a udržateľné inovácie...
Využite špeciálnu akciu Internorm: okná za minuloročné ceny a hliníkový kryt úplne zadarmo. Ponuka je časovo obmedzená!
Sumarizácia najdôležitejších inovácií, ktoré redefinujúcich využitie tohto energetického zdroja.
AMPHIBIA 3000 GRIP 1.3 od spoločnosti ATRO predstavuje modernú hydroizolačnú technológiu, ktorá spája vysokú odolnosť,...
Ambiciózne plány EK narazili na ekonomické možnosti domácností v jednotlivých členských štátoch –...
IDEA DOOR od spoločnosti JAP prináša do interiéru čistý minimalistický vzhľad vďaka bezrámovému riešeniu a precíznej...
Kontinuita riešenia od vonkajšieho obkladu až po kovania a kľučky.
Nástenné nadomietkové armatúry Vitus sú mimoriadne vhodné pre rýchlu a efektívnu...
Okenné profily z kompozitného materiálu RAU-FIPRO X od spoločnosti Rehau sú v porovnaní s tradičnými plastovými profilmi mnohonásobne...
Najnovší sortiment stolov pre zariadenie interiérov...
Spojenie moderného dizajnu, funkčnosti a svetla do harmonického architektonického prvku.
Kancelárska budova Baumit v slovinskom Trzine prešla premenou na moderné a udržateľné pracovisko. Architekti kládli dôraz...
Mottom šiesteho ročníku on-line konferencie odborníkov Xella Dialóg je Efektívny návrh budov 2025+: zmeny a riešenia

Jednoduchá neokázalá drevostavba. Elementárny geometrický objem so sedlovou strechou na obdĺžnikovom pôdoryse. Obvodový plášť plynulo prechádza do plášťa strešného. Dispozícia otvorená v centrálnej časti na celú výšku priestoru. Praktické zariadenie s akcentom na použitie dreva. Dom, ktorý by napriek svojej progresívnejšej forme pravdepodobne vyhovoval väčšine populácie, možno aj tej konzervatívnejšej. Takých zatiaľ nie je mnoho.
Rodinný dom sa nachádza v bratislavskej mestskej časti Záhorská Bystrica. Lichobežníková parcela, ktorá ukončuje slepú ulicu, hraničí na južnej a juhovýchodnej strane s prírodnou kulisou lesa. Podľa slov architektov bol pri formovaní konceptu dôležitý práve priamy kontakt obyvateľov domu so záhradou a okolitou zeleňou. Kompletné obloženie fasád a strechy sibírskym smrekovcom zjednocuje hmotu. Kompaktný tvar je perforovaný kompozíciou vsadených tmavých otvorov. Exteriérové žalúzie, vyhotovené v súhlasnej farbe, chránia interiér proti nežiaducemu prehrievaniu. Prízemie a podkrovie domu sú vzájomne prepojené prostredníctvom dvoch otvorených galérií.
Architektonické a materiálové riešenie
Jednopodlažný dom s podkrovím bol projektovaný pre štvorčlennú rodinu.“Východiskom pre podobu návrhu boli hlavne dispozičné a estetické požiadavky investora vychádzajúce z predstavy tradičného spôsobu bývania v rodinnom dome,” vysvetľujú architekti. Abstrahovaný archetyp stavby so sedlovou strechou bol použitý aj v prípade samostatne stojacej garáže.
Povrch fasády tvorí sivá silikátová omietka a vertikálne latovanie zo sibírskeho smrekovca bez dodatočnej povrchovej úpravy. Drevený obklad je finálnou vrstvou aj na plochách sedlovej strechy. Pre samostatne stojacu garáž zvolili architekti kombináciu dreveného obkladu a čierneho falcovaného plechu.
Dispozícia a prevádzka
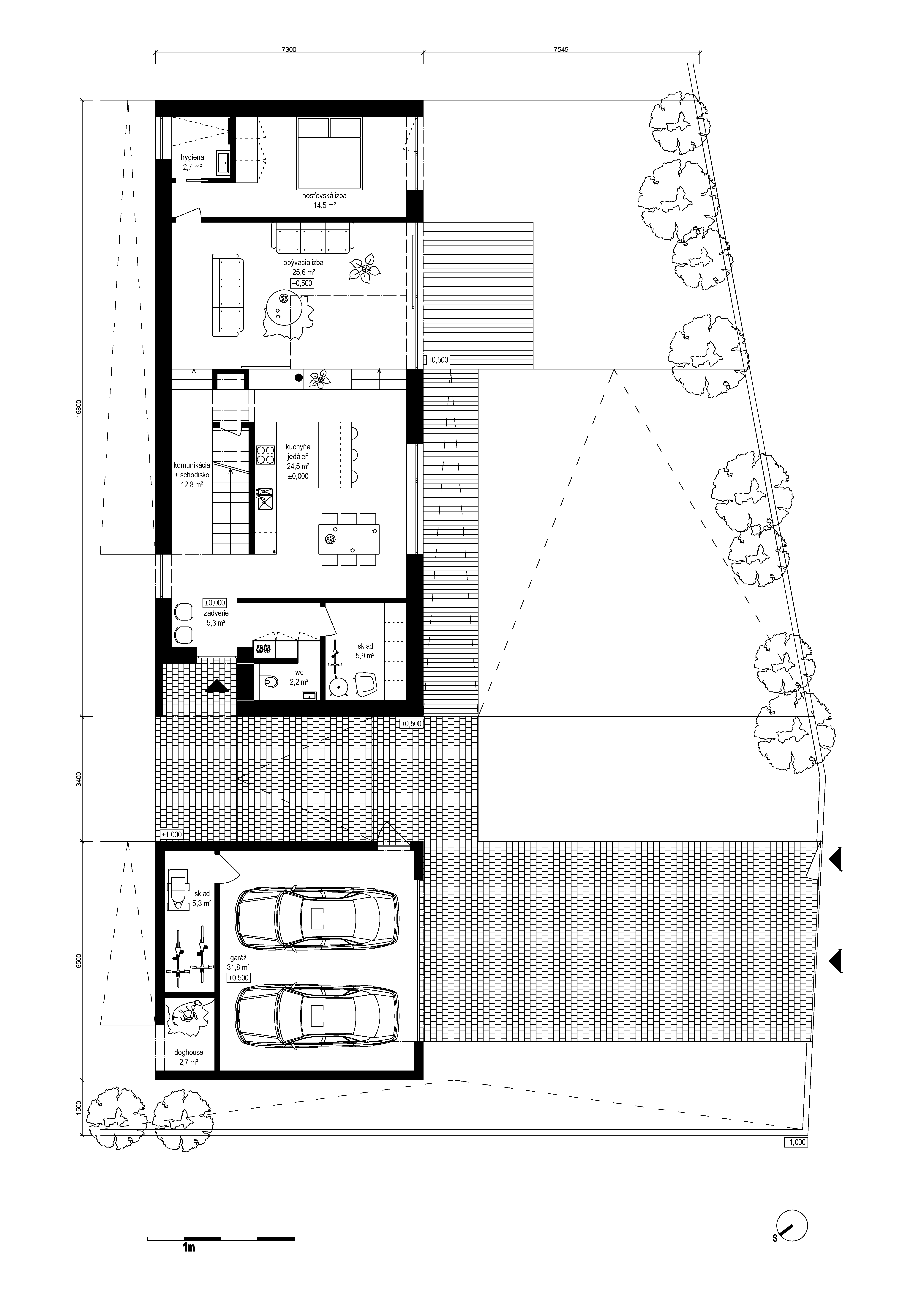
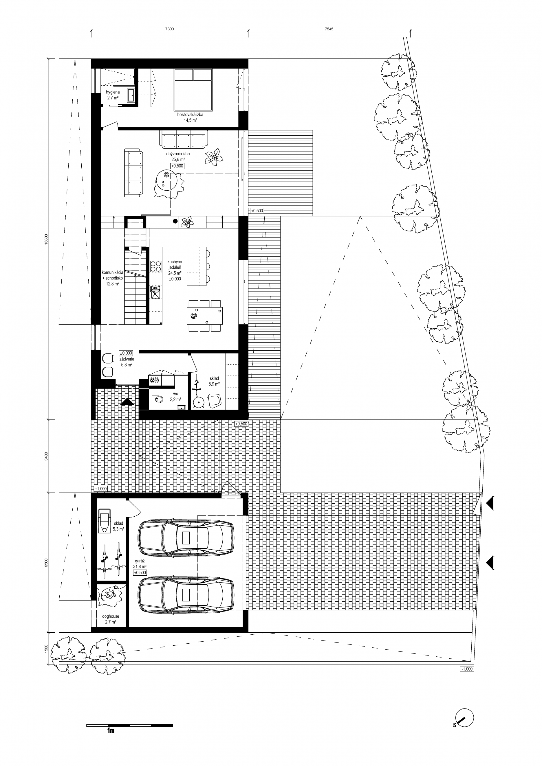
Na prízemí je situovaná verejná časť domu a hosťovská izba. Hlavný vchod sa nachádza v závetrí, ktoré je zapustené do severozápadnej fasády objektu. Vstupný priestor je komponovaný ako hala s galériou a prislúchajúcim šatníkom. Hala je doplnená samostatnou toaletou a sprístupňuje skladovací priestor v západnej časti objektu. Na vstup nadväzuje kuchyňa s jedálňou, ktorá je priamo prepojená s obývacou izbou v juhozápadnej časti pôdorysu. Podlaha hlavného obytného priestoru je od úrovne vstupu zdvihnutá o pol metra. Nad obývačkou je otvorená galéria. Rozmerné posuvné presklené dvere sprístupňujú južne orientovanú terasu. Juhovýchodná časť pôdorysu je vyčlenená pre hosťovskú izbu, ktorá disponuje vlastnou kúpeľňou a zdieľa terasu s obývačkou.
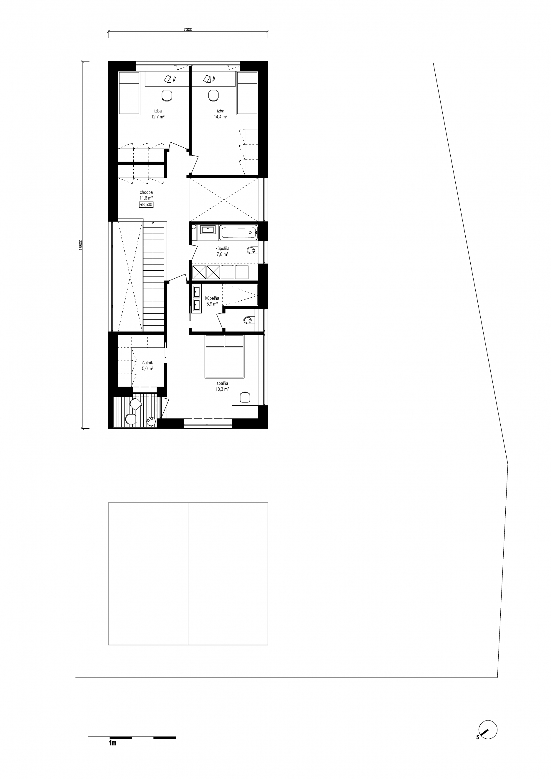
Podkrovie sprístupňuje jednoramenné schodisko vedúce zo zádveria. Krátka chodba sprístupňuje všetky miestnosti poschodia, vrátane galérie nad obývacou izbou. V juhovýchodnej časti domu sú situované dve samostatné izby. V centre dispozície sa nachádza spoločná kúpeľňa, v rámci ktorej je umiestnené technické vybavenie domu. Spálňa sa nachádza v severozápadnej časti pôdorysu. Je vybavená vlastnou kúpeľňou, šatníkom a prestrešenou terasou.
V severozápadnej časti pôdorysu je situovaná garáž pre dve autá, ktorá je doplnená skladom a miestom pre psa.
Stavebno-konštrukčné riešenie
Rodinný dom je vystavaný primárne z CLT panelov StoraEnso. Ich dodávateľom pre slovenský trh je CLT Slovakia s.r.o.. Primárny konštrukčný systém dopĺňajú drevené sendvičové panely so stĺpikovým nosným jadrom. Nosnú konštrukciu ďalej tvoria drevené nosníky a stĺpy. Celý objekt je nadštandardne izolovaný drevovláknitými doskami, minerálnou vlnou a polystyrénom v konštrukcií podlahy a soklovej časti objektu.
Výplne okenných a dverných otvorov na fasáde sú realizované z drevohliníkových profilov, ktoré sú zasklené izolačným trojsklom.
Pre materiálové riešenie interiéru je príznačná kombinácia dreva a bielej omietky. Túto schému dopĺňajú akcentované tmavosivé prvky zariadenia.
Podklady: KubisArchitekti