Na podujatí sa predstaví až 37 vystavovateľov - popredných dodávateľov stavebných materiálov a inovácií s prezentáciou...
Novotvar v prostredí alpskej obce.
Hansgrohe - prémiová značka kúpeľňových riešení, ponúka nadčasový dizajn, technickú precíznosť a udržateľné inovácie...
Využite špeciálnu akciu Internorm: okná za minuloročné ceny a hliníkový kryt úplne zadarmo. Ponuka je časovo obmedzená!
Sumarizácia najdôležitejších inovácií, ktoré redefinujúcich využitie tohto energetického zdroja.
AMPHIBIA 3000 GRIP 1.3 od spoločnosti ATRO predstavuje modernú hydroizolačnú technológiu, ktorá spája vysokú odolnosť,...
Ambiciózne plány EK narazili na ekonomické možnosti domácností v jednotlivých členských štátoch –...
IDEA DOOR od spoločnosti JAP prináša do interiéru čistý minimalistický vzhľad vďaka bezrámovému riešeniu a precíznej...
Kontinuita riešenia od vonkajšieho obkladu až po kovania a kľučky.
Nástenné nadomietkové armatúry Vitus sú mimoriadne vhodné pre rýchlu a efektívnu...
Okenné profily z kompozitného materiálu RAU-FIPRO X od spoločnosti Rehau sú v porovnaní s tradičnými plastovými profilmi mnohonásobne...
Najnovší sortiment stolov pre zariadenie interiérov...
Spojenie moderného dizajnu, funkčnosti a svetla do harmonického architektonického prvku.
Kancelárska budova Baumit v slovinskom Trzine prešla premenou na moderné a udržateľné pracovisko. Architekti kládli dôraz...
Mottom šiesteho ročníku on-line konferencie odborníkov Xella Dialóg je Efektívny návrh budov 2025+: zmeny a riešenia

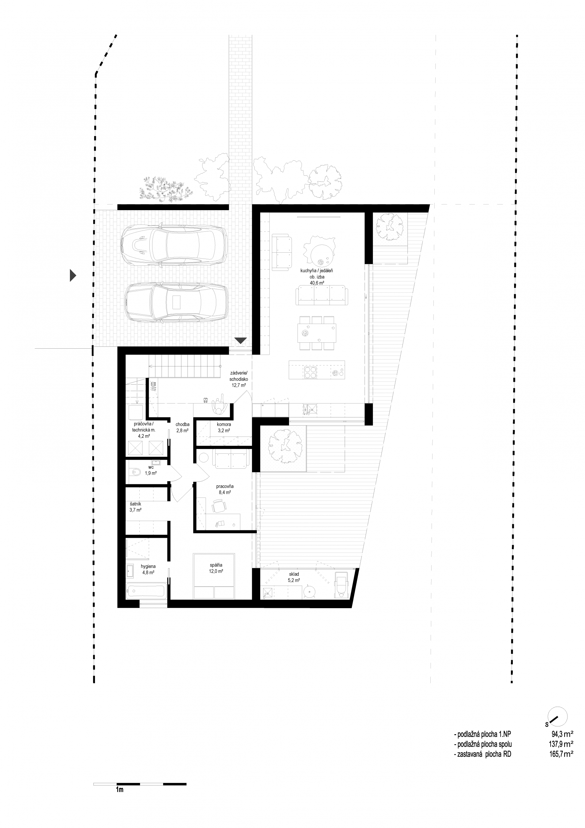
Dom je súčasťou novej, avšak už stabilizovanej zástavby v blízkosti hlavného mesta. Dôležitým aspektom návrhu bolo vytvorenie privátnej časti domu, ktorá si aj napriek blízkosti cesty zachováva súkromie.
Priečelie domu kopíruje uličnú čiaru. Všetky obytné miestnosti smerujú do záhrady, architekti využívajú ich ideálnu juhozápadnú orientáciu. V rámci uličnej fasády je umiestnené len jediné okno, smerujúce do schodiskovej galérie. Hlavný vstup je prístupný až z krytého závetria, ktoré zároveň slúži ako prístrešok pre parkovanie. Zvolené riešenie umožnilo architektom zachovať čistý vzhľad severovýchodnej fasády.
Prízemnú dennú zónu a dvojpodlažnú nočnú časť, spája vstupná hala s otvorenou galériou. Lichobežníková stropná doska sceľuje stavebné objemy, prekrýva parkovacie miesto a terasy. K odľahčeniu formy napomáhajú perforácie, ktoré zároveň vytvárajú priestor pre vertikálnu zeleň. Podobný koncept zvolili architekti aj pri dome AU 03 v rakúskom Edelstahle
Drevostavba je omietnutá bledou silikátovou omietkou. Prírodný materiál má v exteriéri zastúpenie v podobe smrekovcového obkladu, použitého vo “vyhryznutí” terás. Dôležitou súčasťou stavby je extenzívna vegetačná strecha.
Dom je navrhnutý pre štvorčlennú rodinu, dispozícia je prehľadne členená na nočnú a dennú časť.
K hlavnému vchodu prístupnému z krytého závetria vedie z ulice dláždený chodník. Vstupná hala s prislúchajúcim šatníkom je prostredníctvom malej galérie otvorená cez dve podlažia. Komunikačný uzol sprístupňuje otvorený obytný priestor prepojený s jedálňou a kuchyňou v južnej časti pôdorysu. Posuvné presklené dvere sprístupňujú južnú terasu.
Napravo od vstupnej haly sa rozvíja súkromná, nočná zóna domu, ktorá zahŕňa pracovňu a spálňu so šatníkom. Obe miestnosti sú opäť prepojené s hlavnou, krytou terasou. Spálňa disponuje vlastnou kúpeľňou. Z chodby je prístupné samostatné WC a technická miestnosť, ktorá sa nachádza v priestore pod schodiskom.
Na poschodie vedie dvojramenné “elkové” schodisko. Dvojicu južne orientovaných izieb sprístupňuje krátka chodba.
Drevená sendvičová konštrukcia je zateplená minerálnou vlnou. Stropy nesie kombinácia oceľových a drevených prvkov. Dvojúrovňová plochá strecha je vyspádovaná prostredníctvom EPS klinov do zvodov integrovaných v obvodovej fasáde domu. Hliníkové a plastové rámy dverí a okien sú zasklené izolačným trojsklom.
V interiéri sú povrchy z prírodného dreva vyvážené čiernymi blokmi vstavaného nábytku a lešteným betónom použitým na podlahách.
Podklady: KubisArchitekti