Využite špeciálnu akciu Internorm: okná za minuloročné ceny a hliníkový kryt úplne zadarmo. Ponuka je časovo obmedzená!
Na podujatí sa predstaví až 37 vystavovateľov - popredných dodávateľov stavebných materiálov a inovácií s prezentáciou...
Sumarizácia najdôležitejších inovácií, ktoré redefinujúcich využitie tohto energetického zdroja.
AMPHIBIA 3000 GRIP 1.3 od spoločnosti ATRO predstavuje modernú hydroizolačnú technológiu, ktorá spája vysokú odolnosť,...
Ambiciózne plány EK narazili na ekonomické možnosti domácností v jednotlivých členských štátoch –...
IDEA DOOR od spoločnosti JAP prináša do interiéru čistý minimalistický vzhľad vďaka bezrámovému riešeniu a precíznej...
Kontinuita riešenia od vonkajšieho obkladu až po kovania a kľučky.
Nástenné nadomietkové armatúry Vitus sú mimoriadne vhodné pre rýchlu a efektívnu...
Okenné profily z kompozitného materiálu RAU-FIPRO X od spoločnosti Rehau sú v porovnaní s tradičnými plastovými profilmi mnohonásobne...
Najnovší sortiment stolov pre zariadenie interiérov...
Spojenie moderného dizajnu, funkčnosti a svetla do harmonického architektonického prvku.
Kancelárska budova Baumit v slovinskom Trzine prešla premenou na moderné a udržateľné pracovisko. Architekti kládli dôraz...
Mottom šiesteho ročníku on-line konferencie odborníkov Xella Dialóg je Efektívny návrh budov 2025+: zmeny a riešenia
Robot WLTR predstavuje moderný prístup k murovaným konštrukciám. Vďaka automatizácii dokáže rýchlo, presne a bezpečne realizovať...
Okrem bezpečnosti majú okná aj elegantný vzhľad, pretože nie sú viditeľné žiadne uzamykacie časti kovania.

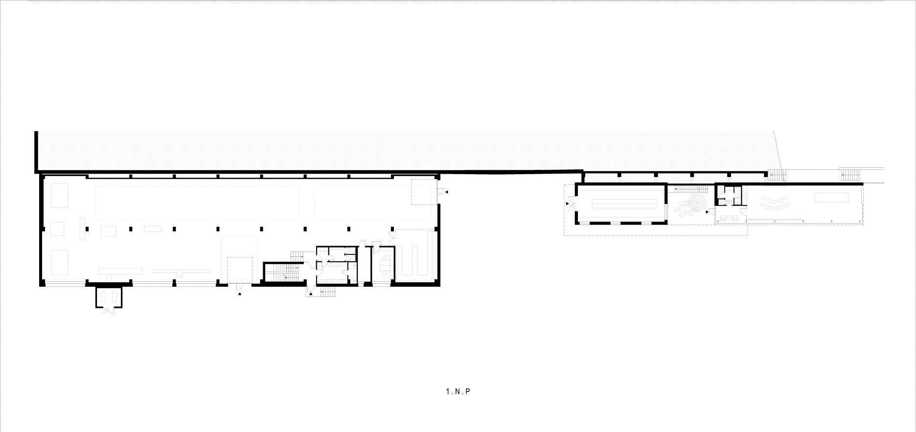
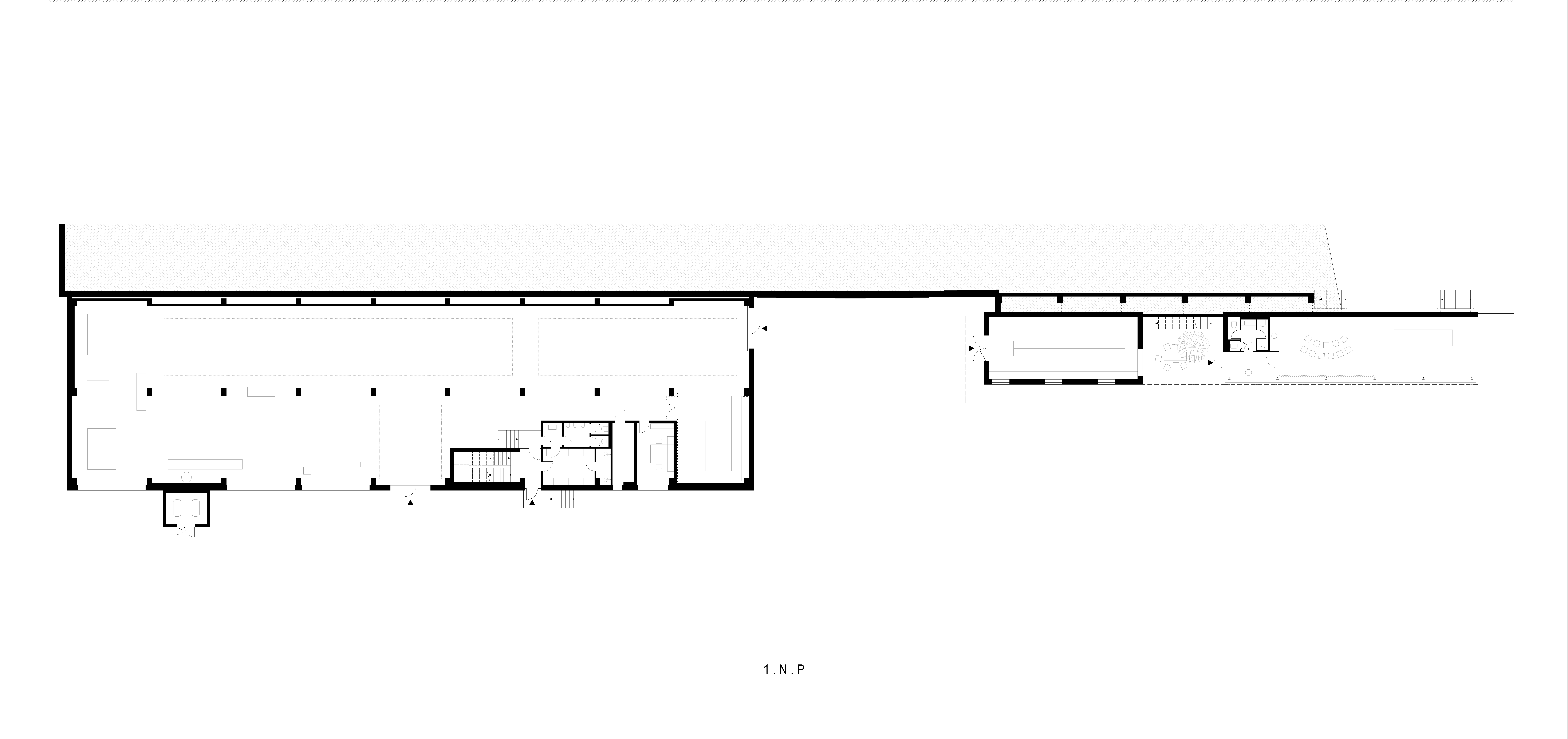
Realizácia KFA_norbert šmondrk a kolektív je súčasťou snahy investora o kultiváciu priemyselného areálu na severnom okraji Novej Bane. Architektonický koncept umne využíva stavebný základ pôvodného objektu a ťaží tiež z prepojenia pracoviska s blízkou prírodou a zeleňou.
Dielo bližšie predstaví sprievodný autorský text:
Bývalý objekt armovne dostal nového majiteľa a s ním aj celkom nový výrobný obsah. Stará vyprázdnená hala roky pustla, no jej betónový korpus nestratil základné kvality a jeho pôvodná drsná povaha prenikla aj do konceptu rekonštrukcie.
V objekte sídli spoločnosť MAPRO, ktorá sa špecializuje na vývoj, výrobu a programovanie priemyselnej automatizácie s dôrazom na inovácie. Rekonštrukčný prístup bol založený na zachovaní pôvodného charakteru vnútorného prostredia montovanej betónovej haly. Priestor bol vyčistený až na „kosť“ a všetky betónové konštrukčné prvky a povrchy zostali zámerne obnažené.
Do útrob vysokej haly vnikol nový program rozložený podľa funkčných celkov na dve podlažia rozdielneho naturelu.
Na spodnom podlaží haly je výroba, horné podlažie obsadili priestory s dispozičnou kostrou päťtraktu určené pre kreatívne činnosti a vývoj.
Kancelárie získali v kontexte pôvodnej konštrukcie vysoké stropy, doplnkové funkcie ako zasadačky, kuchynky či hygienické zázemie majú podobu nižších vložených buniek. Horné podlažie navyše zúročuje benefit svahovitého terénu a pekného prírodného okolia a to nielen výhľadmi do lesnej zelene, ale aj priamym prepojením s pobytovým exteriérom v hornej časti areálu.
Dostavba v susedstve haly rozširuje funkčný a priestorový koncept o školiacu miestnosť a služobný byt na poschodí. Vyskladaná je z dvoch rozdielne vysokých objemov oddelených pobytovým átriom, ktoré prepája kontinuálna markíza. Výškové rozdiely segmentov spolu so striedaním plných hmôt a prázdnych medzipriestorov účinkujú ako akt dramatizácie prostredia.
Metóda rekonštrukcie haly, narábanie s priestormi a povrchy aj detaily majú reflektovať inovatívne ambície firmy MAPRO aj jej snahu o postupnú kultiváciu celej lokality.
Podklady: KFA_norbert šmondrk a kolektív
Fotografie: Soňa Sadloňová