IDEA DOOR od spoločnosti JAP prináša do interiéru čistý minimalistický vzhľad vďaka bezrámovému riešeniu a precíznej...
Nástenné nadomietkové armatúry Vitus sú mimoriadne vhodné pre rýchlu a efektívnu...
Okenné profily z kompozitného materiálu RAU-FIPRO X od spoločnosti Rehau sú v porovnaní s tradičnými plastovými profilmi mnohonásobne...
Najnovší sortiment stolov pre zariadenie interiérov...
Spojenie moderného dizajnu, funkčnosti a svetla do harmonického architektonického prvku.
Kancelárska budova Baumit v slovinskom Trzine prešla premenou na moderné a udržateľné pracovisko. Architekti kládli dôraz...
Mottom šiesteho ročníku on-line konferencie odborníkov Xella Dialóg je Efektívny návrh budov 2025+: zmeny a riešenia
Robot WLTR predstavuje moderný prístup k murovaným konštrukciám. Vďaka automatizácii dokáže rýchlo, presne a bezpečne realizovať...
Okrem bezpečnosti majú okná aj elegantný vzhľad, pretože nie sú viditeľné žiadne uzamykacie časti kovania.
Dvere MASTER v skrytej zárubni AKTIVE je možné vyrobiť až do výšky 3 700 mm
Internorm stavia na energetickú efektívnosť a inteligentné tieniace riešenia.
Slovensko vo výbere zastupuje šesť realizácií.
Spoločnosť Internorm odteraz stavia na novej variante tepelnoizolačného skla od AGC, ktorá v produkcii ročne ušetrí 10...
Jubilejný 20. ročník prestížnej medzinárodnej súťaže pre študentov architektúry priniesol...
Otočné a posuvné dvere MASTER od podlahy až po strop, ponúkajú mimoriadnu variabilitu výšky, materiálu a zladenia so skrytými...

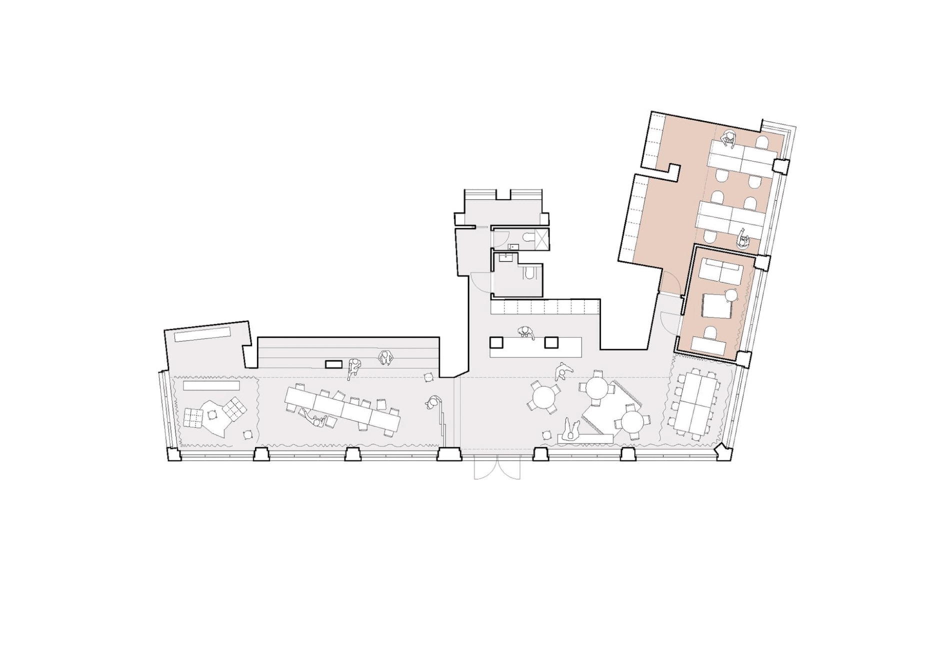
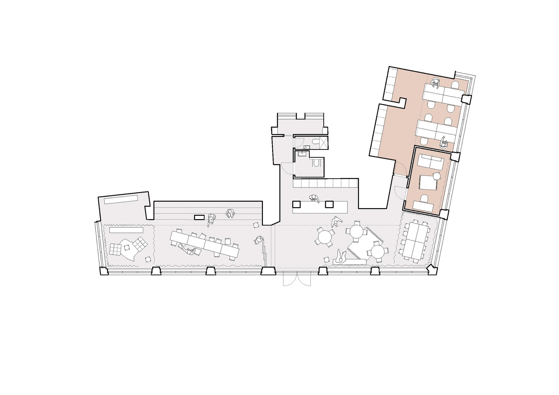
Komunitné a integračné centrum IN na Záhradníckej ulici vzniklo transformáciou priestoru bývalej bankovej pobočky. Priestranný a svetlom zaplavený hub otvoril svoje brány koncom februára 2025 ako reakcia na teroristický útok na Teplárni a dopyt po bezpečnom mieste pre LGBTI+ ľudí.
Autori z ateliéru Sadovsky & Architects „očistili“ interiér až na konštrukčný skelet, zjednotili podlahu a vložili tribúnové schody, ktoré prirodzene prechádzajú do otvoreného hľadiska pre diskusie, prednášky a knižný klub. Variabilnú mieru intimity zabezpečujú perforované a zatemňujúce závesy: dokážu vymedziť zóny pre poradenstvo či coworking a pri uzatvorení menia sálu na tmavú zónu pre projekcie. Dostatočný prísun denného svetla zabezpečujú pásy pôvodných okien, ktoré spolu s farebným recepčným pultom určujú neformálny, inkluzívny ráz už pri vstupe.
Dielo bližšie predstaví sprievodný text autorov:
U nás v ateliéri majú takéto projekty špeciálne miesto; naša podpora nebola o rozhodovaní, či áno alebo nie, ale skôr prirodzeným vyjadrením toho, čomu veríme a v akom svete by sme chceli žiť.
Architektúra je veľakrát o tom, že vytvoríte podmienky, aby sa veci na ktorých záleží, mohli rozvíjať a kultivovať– aby sme svet vnímali citlivejšie a aby sa náš pohľad upriamil na to dôležité.
Naša profesia nie je len o estetike a dizajnovaní, ale aj o zodpovednosti a presvedčení, že našou prácou vieme pomôcť zlepšovať život jednotlivcom, rodinám alebo komunitám.
Priestory sme očistili od kancelárskeho nánosu bývalej banky tak, aby interiér ponúkal žiadanú otvorenosť a flexibilitu. Množstvo veľkých okien a prirodzeného svetla otvorený charakter priestoru ešte umocnilo a zjednotilo. Funkčné delenie komunitného centra ostáva variabilné a ľahko prispôsobiteľné potrebám užívateľov, ktoré sa môžu v čase prirodzene vyvíjať.
Hlavnou témou priestoru je prepájanie. Zjednotená podlaha prirodzene prechádza do sedenia na schodoch a otvára nové možnosti pre využívanie priestoru v podobe live diskusií, knižných klubov či prednášok.
Farebný recepčný pult je miestom prvého kontaktu s komunitným centrom. Podporuje koncept spolupatričnosti i jedinečnosti. Nástrojom mäkkej zmeny sa stávajú závesy prechádzajúce celým priečelím. Lokálne vstupujú hlbšie do priestoru a vytvárajú mikroklastre. V druhom pláne sú zatemňujúce závesy, ktoré umožňujú fungovanie interných stretnutí či premietania.
V IN-ku vás radi privítajú každú stredu od 10:00 do 17:00 počas Dňa otvorených dverí.
Autori: Sadovsky & Architects
Fotografie: Jakub Michal Teringa