Na podujatí sa predstaví až 37 vystavovateľov - popredných dodávateľov stavebných materiálov a inovácií s prezentáciou...
Novotvar v prostredí alpskej obce.
Hansgrohe - prémiová značka kúpeľňových riešení, ponúka nadčasový dizajn, technickú precíznosť a udržateľné inovácie...
Využite špeciálnu akciu Internorm: okná za minuloročné ceny a hliníkový kryt úplne zadarmo. Ponuka je časovo obmedzená!
Sumarizácia najdôležitejších inovácií, ktoré redefinujúcich využitie tohto energetického zdroja.
AMPHIBIA 3000 GRIP 1.3 od spoločnosti ATRO predstavuje modernú hydroizolačnú technológiu, ktorá spája vysokú odolnosť,...
Ambiciózne plány EK narazili na ekonomické možnosti domácností v jednotlivých členských štátoch –...
IDEA DOOR od spoločnosti JAP prináša do interiéru čistý minimalistický vzhľad vďaka bezrámovému riešeniu a precíznej...
Kontinuita riešenia od vonkajšieho obkladu až po kovania a kľučky.
Nástenné nadomietkové armatúry Vitus sú mimoriadne vhodné pre rýchlu a efektívnu...
Okenné profily z kompozitného materiálu RAU-FIPRO X od spoločnosti Rehau sú v porovnaní s tradičnými plastovými profilmi mnohonásobne...
Najnovší sortiment stolov pre zariadenie interiérov...
Spojenie moderného dizajnu, funkčnosti a svetla do harmonického architektonického prvku.
Kancelárska budova Baumit v slovinskom Trzine prešla premenou na moderné a udržateľné pracovisko. Architekti kládli dôraz...
Mottom šiesteho ročníku on-line konferencie odborníkov Xella Dialóg je Efektívny návrh budov 2025+: zmeny a riešenia

Radový dom, postavený podľa rovnakého vzoru na niekoľkých uliciach, pseudomanzardové strechy, čiastočná prefabrikácia a materiály skorých 90. rokov. Na druhú stranu požiadavka na individualitu a pohodlné mestské bývanie v súčasnom štandarde.
Exteriérové členenie domu vychádza zo sklonu pôvodných manzárd. Zavesený fasádny obklad z vláknocementových dosiek prechádza do rovín strechy. Architektonickú figúru nechávajú vyniknúť do líca predsadené dubové okná Jánošík, kombinované s bezrámovým zasklením, ktoré opticky nadväzujú na odkvapovú hranu strechy. Smerom do záhrady obklad integruje výsuvnú markízu, ktorá dokáže prekryť celú plochu terasy.
Dominantou malej záhrady je stará čerešňa, ktorej úrodu pár týždňov po nasťahovaní zberala celá rodina. Po necelých dvoch rokoch stavania tu doteraz spokojne býva.
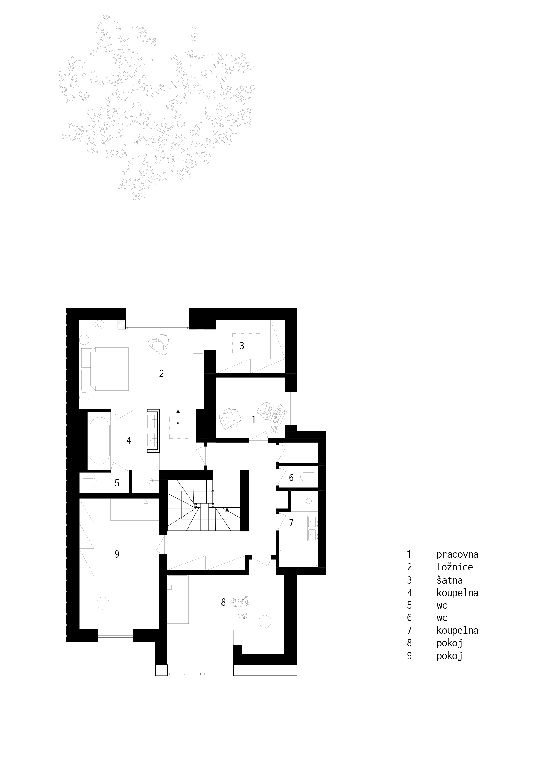
Podlažie pôvodného domu na úrovni ulice mizlo v svahovitom teréne záhrady. Vstupná časť s malými oknami pripomínala skôr horšie osvetlený suterén. Vplyvom výškovej nadväznosti na terén nebola obytná časť na poschodí priamo prepojené so záhradou za domom. Hlavné obytné priestory boli navyše orientované do ulice. Vnútorná dispozícia zodpovedala deleniu na tri samostatné byty v jednotlivých podlažiach, ktoré spájal spoločným vstup. Komplexná prestavba domu si vyžiadala zjednotenie prevádzky pre bývanie jednej rodiny. Pocit z vnútorného priestoru určovala aj jeho nízka svetlá výška (2,5 m). Stredobodom dispozície sa stalo centrálne schodisko, ktorého presun bol kvôli panelovým stropom takmer vylúčený.
Na prízemí sústredili architekti obslužné funkcie. Dôležitým krokom bolo výrazné presvetlenie priestoru. Zasklenie v rozšírenej vstupnej hale otvára nové priehľady z protiľahlého schodiska. Pôvodný pôdorys rozšíril v záhradnej časti priestor posilňovne. Odlišnú konštrukciu odhaľujú architekti v priestoroch domáceho fitness prostredníctvom pohľadových betónových povrchov. Prístavba zabieha hlbšie pod terén, v úrovni záhrady ju kryje pobytová terasa.
Obytný priestor na poschodí plynie okolo zvýrazneného schodiskového bloku. Dôležitými prvkami sa stali priehľady cez celé podlažie a optické prepojenie so záhradou. Obývacia izba je spojená so záhradou aj fyzicky, prostredníctvom posuvného zasklenia.
Vybúranie a výškový posun podlahy v tejto časti domu vytvoril priame napojenie na úroveň záhrady. Predovšetkým sa ale vplyvom komplikovanej stavebnej úpravy zväčšila svetlá výška miestnosti a celé podlažie sa výškovo “rozohralo”.
Spálne na najvyššom podlaží sprístupňuje malá ochodza. Hlavnú rodičovskú spálňu oddeľuje vlastná predsieň so šatňou a kúpeľňou. Pôvodne plánovaná samostatná pracovňa sa počas stavby premenila na ďalšiu detskú izbu.
Autor: SOA architekti
Podklady: Linka
Fotografie: Alex Shoots Buildings
Použité materiály a riešenia: Okná a vstupné dvere noframe - Jánošík Okna, strešné okná Velux