Advertorial

Pozvánka na 2. ročník stavebného veľtrhu BigMarket na Slovensku

Na podujatí sa predstaví až 37 vystavovateľov - popredných dodávateľov stavebných materiálov a inovácií s prezentáciou...

Hotel Hirschen Spa House, Rakúsko

Novotvar v prostredí alpskej obce.

Vytvorte si kúpeľňu snov: dizajnové riešenie od značky hansgrohe

Hansgrohe - prémiová značka kúpeľňových riešení, ponúka nadčasový dizajn, technickú precíznosť a udržateľné inovácie...

Okná Internorm za minuloročné ceny + hliníkový kryt zdarma!

Využite špeciálnu akciu Internorm: okná za minuloročné ceny a hliníkový kryt úplne zadarmo. Ponuka je časovo obmedzená!

Moderné plynové technológie: Efektivita a inovácie pre 21. storočie

Sumarizácia najdôležitejších inovácií, ktoré redefinujúcich využitie tohto energetického zdroja.

Utesňovanie spodných stavieb pomocou hydro-aktívnej fólie AMPHIBIA.

AMPHIBIA 3000 GRIP 1.3 od spoločnosti ATRO predstavuje modernú hydroizolačnú technológiu, ktorá spája vysokú odolnosť,...

Dekarbonizácia individuálneho vykurovania domácností – Green Deal evolučne a nie revolučne

Ambiciózne plány EK narazili na ekonomické možnosti domácností v jednotlivých členských štátoch –...

Minimalistické dvere IDEA – technická precíznosť a čistota prevedenia

IDEA DOOR od spoločnosti JAP prináša do interiéru čistý minimalistický vzhľad vďaka bezrámovému riešeniu a precíznej...

Dom s výhľadom na údolie, Dlouhý Most (ČR)

Kontinuita riešenia od vonkajšieho obkladu až po kovania a kľučky.

Schell Vitus – osvedčené riešenie pre sprchy a umývadlá vo verejnom sektore s viac ako desaťročnou tradíciou

Nástenné nadomietkové armatúry Vitus sú mimoriadne vhodné pre rýchlu a efektívnu...

Kompozitné okná predstavujú súčasnosť a budúcnosť

Okenné profily z kompozitného materiálu RAU-FIPRO X od spoločnosti Rehau sú v porovnaní s tradičnými plastovými profilmi mnohonásobne...

Myotis - stoly 2025

Najnovší sortiment stolov pre zariadenie interiérov...

Priemyselné sklenené priečky Dorsis Digero: svetelné rozhranie pre moderné interiéry

Spojenie moderného dizajnu, funkčnosti a svetla do harmonického architektonického prvku.

Význam prirodzeného svetla pre moderné a flexibilné pracovné prostredie

Kancelárska budova Baumit v slovinskom Trzine prešla premenou na moderné a udržateľné pracovisko. Architekti kládli dôraz...

Konferencia Xella Dialóg predstaví novinky a trendy v stavebníctve

Mottom šiesteho ročníku on-line konferencie odborníkov Xella Dialóg je Efektívny návrh budov 2025+: zmeny a riešenia

Základná a stredná škola Leoben, Rakúsko

Diela
Red 311.04.2021
20510+38
Základná a stredná škola Leoben, Rakúsko
Autori: Martino Libisch, Carla Kuhn, Florian Haim, Barbara Wagner, Louai Abdul Fattah, Ajdin VukovicInvestor: InfrastrukturentwicklungsKG Stadtgemeinde Leoben Podlažná plocha: 14.557 m²Investičný náklad: 14.4 Mil. €Návrh: 2016 - 2018Realizácia: 2018 - 2019Adresa: Erzherzog Johann-Straße 1, Leoben, RakúskoPublikované: 11. apríl 2021

V nasledujúcich mesiacoch sa budeme snažiť predstaviť realizácie z okolitých krajín, ktoré boli nominované na Cenu európskej únie za súčasnú architektúru EU mies award. Slovenský výber sme koncom januára predstavili v samostatnom článku. Pokračujeme predstavením realizácií u našich západných susedov. Po rozsiahlej revitalizácii areálu prvej mestskej elektrárne vo VaršaveCentre miestnych aktivít v poľskom meste Rybnik, a ateliéri Bernardo Bader Architekten v rakúskom Dornbirne predstavíme projekt ateliéru Franz&Sue v rakúskom Leobene.

Prácu viedenského ateliéru sme už predstavili aj na našej stránke. Moderný "panelák" Stadtelefant, ktorí architekti navrhli a developovali sa stal zároveň ich sídlom. Dnes sa pozrieme do druhého najväčšieho štajerského mesta, kde dokončili prestavbu školského areálu s pamiatkovo chránenou budovou základnej a strednej školy. O kvalite realizácie, ktorá vzišla z dvojkolovej architektonickej súťaže, svedčí okrem viacerých ocenení aj národná nominácia v najprestížnejšej európskej cene.

Foto: Hertha Hurnaus

Zrekonštruovaný školský areál v centre mesta patrí medzi najväčšie v regióne. Základná a stredná škola, ktorých bránami prejde denne šesto detí, nemali napriek sídlu v rovnakej budove nikdy vyhovujúce spoločné priestory a prepojenie. Zadanie architektonickej súťaže, ktorá sa stala základom pre budúcu rekonštrukciu a rozšírenie areálu sa preto sústredilo na príležitosť previazania oboch škôl.  

Situácia
SituáciaAutor: Franz&Sue

Po predbežnom výbere uchádzačov na základe predložených portfólií prebiehal so súťažnými kolektívmi súťažný dialóg, ktorý okrem iného zahŕňal aj moderovanú diskusiu so sedemdesiatimi pedagógmi, pôsobiacimi v oboch inštitúciách. “To nám dalo príležitosť zapracovať želania a potreby učiteľov do nášho návrhu a následného plánovania projektu. Na oplátku si učitelia vypočuli naše skúsenosti z navrhovania škôl,” vysvetľujú architekti. 

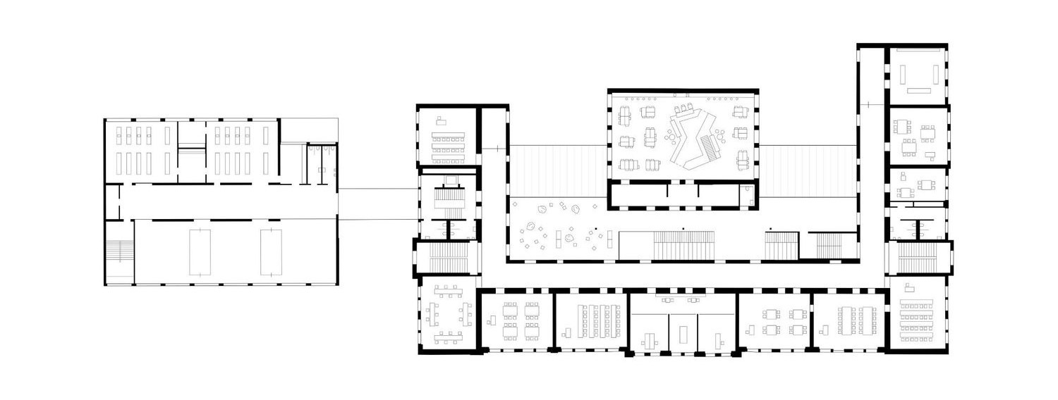
Vo výsledku sa architektom podarilo minimalizovať zásahy do pamiatkovo chránených objektov z rokov 1904 - 1905. Odstránená bola iba malá prístavba pre školského kustóda a historické hygienické celky, orientované do vnútrobloku. Novovytvorený priestor medzi historickými krídlami učební a telocvičňou vyplnili transparentné spoločné priestory, otvorené do záhrady.

Koncept - schéma
Koncept - schémaAutor: Franz&Sue
Pôdorys prízemia
Pôdorys prízemiaAutor: Franz&Sue
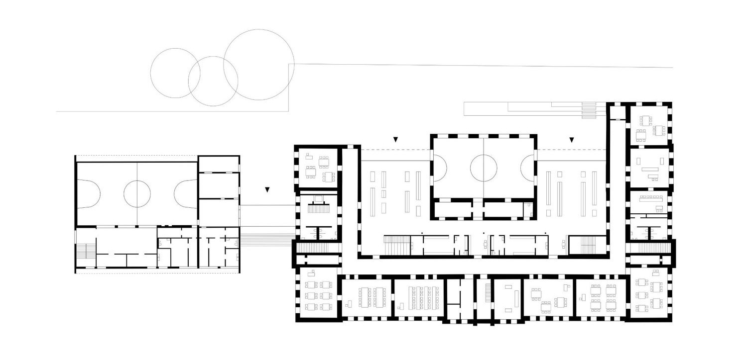
Pôdorys poschodia
Pôdorys poschodiaAutor: Franz&Sue
Rezy
Rezy

“Stupňovité presklené priestory s čiastočne zasklenými terasami umožňujú deťom tráviť spoločný čas s výhľadom do zelene v areáli. Práve do tohto priestoru, ktorý bol v minulosti nevábnym zadným traktom, je otvorená nová tvár školy, vrátane spoločného hlavného vstupu,” vysvetľuje vedúci projektu Martino Libisch z ateliéru Franz & Sue.

V otvorenej vstupnej hale na prízemí, sa žiaci ľahko zorientujú a rýchlo sa dostanú do ktorejkoľvek z učební. Nové spoločenské a vzdelávacie centrum školy nahradilo tmavé chodby a spoločné priestory.

Foto: Hertha Hurnaus

Zámer architektov je najlepšie viditeľný na centrálnom pobytovom schodisku vzdelávacieho centra, ktoré prepája všetky štyri úrovne. Priestory pre spoločné aktivity vyplnil flexibilný mobiliár a výklenky na sedenie. Tlmené spektrum farieb podčiarkujú povrchy z borovicového dreva. Nábytkový prvok, ktorý zaberá stred spoločnej miestnosti oddeľuje pracovné priestory základnej a strednej školy. Obsahuje skrinky a súčasne funguje ako vyvýšený salónik.

Foto: Hertha Hurnaus
Foto: Hertha Hurnaus
Foto: Hertha Hurnaus
Foto: Hertha Hurnaus
Foto: Hertha Hurnaus
Foto: Hertha Hurnaus
Foto: Hertha Hurnaus
Foto: Hertha Hurnaus

Podklady: Franz&Sue

Poloha diela

Martino Libisch
Carla Kuhn
Florian Haim
Barbara Wagner
Louai Abdul Fattah
Ajdin Vukovic

Súvisiace články

Vložené
6. apríl 2021
0
2051
Hlavný obsahHlavný obsah
Čakajte prosím