Advertorial

Pozvánka na 2. ročník stavebného veľtrhu BigMarket na Slovensku

Na podujatí sa predstaví až 37 vystavovateľov - popredných dodávateľov stavebných materiálov a inovácií s prezentáciou...

Hotel Hirschen Spa House, Rakúsko

Novotvar v prostredí alpskej obce.

Vytvorte si kúpeľňu snov: dizajnové riešenie od značky hansgrohe

Hansgrohe - prémiová značka kúpeľňových riešení, ponúka nadčasový dizajn, technickú precíznosť a udržateľné inovácie...

Okná Internorm za minuloročné ceny + hliníkový kryt zdarma!

Využite špeciálnu akciu Internorm: okná za minuloročné ceny a hliníkový kryt úplne zadarmo. Ponuka je časovo obmedzená!

Moderné plynové technológie: Efektivita a inovácie pre 21. storočie

Sumarizácia najdôležitejších inovácií, ktoré redefinujúcich využitie tohto energetického zdroja.

Utesňovanie spodných stavieb pomocou hydro-aktívnej fólie AMPHIBIA.

AMPHIBIA 3000 GRIP 1.3 od spoločnosti ATRO predstavuje modernú hydroizolačnú technológiu, ktorá spája vysokú odolnosť,...

Dekarbonizácia individuálneho vykurovania domácností – Green Deal evolučne a nie revolučne

Ambiciózne plány EK narazili na ekonomické možnosti domácností v jednotlivých členských štátoch –...

Minimalistické dvere IDEA – technická precíznosť a čistota prevedenia

IDEA DOOR od spoločnosti JAP prináša do interiéru čistý minimalistický vzhľad vďaka bezrámovému riešeniu a precíznej...

Dom s výhľadom na údolie, Dlouhý Most (ČR)

Kontinuita riešenia od vonkajšieho obkladu až po kovania a kľučky.

Schell Vitus – osvedčené riešenie pre sprchy a umývadlá vo verejnom sektore s viac ako desaťročnou tradíciou

Nástenné nadomietkové armatúry Vitus sú mimoriadne vhodné pre rýchlu a efektívnu...

Kompozitné okná predstavujú súčasnosť a budúcnosť

Okenné profily z kompozitného materiálu RAU-FIPRO X od spoločnosti Rehau sú v porovnaní s tradičnými plastovými profilmi mnohonásobne...

Myotis - stoly 2025

Najnovší sortiment stolov pre zariadenie interiérov...

Priemyselné sklenené priečky Dorsis Digero: svetelné rozhranie pre moderné interiéry

Spojenie moderného dizajnu, funkčnosti a svetla do harmonického architektonického prvku.

Význam prirodzeného svetla pre moderné a flexibilné pracovné prostredie

Kancelárska budova Baumit v slovinskom Trzine prešla premenou na moderné a udržateľné pracovisko. Architekti kládli dôraz...

Konferencia Xella Dialóg predstaví novinky a trendy v stavebníctve

Mottom šiesteho ročníku on-line konferencie odborníkov Xella Dialóg je Efektívny návrh budov 2025+: zmeny a riešenia

Centrum miestnych aktivít Rybnik, Poľsko

Architektúra na pozadí. Skromná účelná, splývajúca s okolím.
Diela
Red 309.03.2021
12310+13
Centrum miestnych aktivít Rybnik, Poľsko
Autori: Marlena Wolnik, Agnieszka BorkowskaSpolupráca: Barbara Rokicka, Aleksandra Rudnicka, Jan FiałkowskiInvestor: Mesto RybnikPlocha pozemku: 5526 m2Podlažná plocha: 120 m2Investičný náklad: 424 €/m2Návrh: 2019 - 2019Realizácia: 2019 - 2019Adresa: Chłodna 2-10, Rybnik, PoľskoPublikované: 9. marec 2021

V nasledujúcich mesiacoch sa budeme snažiť predstaviť realizácie z okolitých krajín, ktoré boli nominované na Cenu európskej únie za súčasnú architektúru EU mies award. Slovenský výber sme koncom januára predstavili v samostatnom článku. Pokračujeme predstavením realizácií u našich severných susedov. Po rozsiahlej revitalizácii areálu prvej mestskej elektrárne vo Varšave predstavíme komorný projekt komunitného areálu v juhopoľskom meste Rybnik.

Kontext a genéza projektu

Projekt sa nachádza v meste Rybnik, neďaleko českých hraníc. Stopäťdesiattisícové mesto vzniklo zlúčením viacerých menších sídiel. Myšlienka výstavby centra miestnych aktivít vznikla ako reakcia na rastúce negatívne spoločenské javy. Projekt zhmotnil potrebu vytvorenia priestoru pre rozličné kultúrne a športové aktivity. Práce sa začali urbanistickými a sociálnymi štúdiami. Dôležitú časť prípravy tvoril participatívny proces a diskusia s miestnymi obyvateľmi - budúcimi užívateľmi areálu. Cieľom rozsiahleho projektu je pokryť viacero mestských častí. Výzvou preto bolo vytvoriť flexibilný koncept, ktorý sa dokáže prispôsobiť rôznym kontextom lokalít. V spolupráci s mestským zastupiteľstvom boli zorganizované verejné konzultácie, kde obyvatelia mohli pripomienkovať navrhovaný architektonický koncept. Ich pozitívna spätná väzba umožnila zahájenie pilotného projektu v časti Kłokocin.

Situácia
SituáciaAutor: MWArchitekci

Najdôležitejším objektom v areáli je budova s multifunkčnou halou, prístupnou cez priestorné otvorené foyer. Obslužný blok s kuchyňou, hygienou a technickým zázemím je situovaný do zužujúceho sa zadného traktu. Hlavnú budovu dopĺňa prístrešok, ktorý uzatvára areál z juhozápadnej strany. “Prístrešok sa počas pandémie a súvisiaceho zákazu používania uzavretých priestorov nečakane stal hlavným miestom stretnutí miestnych,” dopĺňajú autorky projektu.

Obe stavby vymedzujú štvrťkruhovú dláždenú piazettu. Časti striech, smerujúcich do vnútorného priestoru sú využité ako amfiteátrové sedenie pri vonkajších podujatiach.  

Predpokladom realizácie nízkorozpočtového projektu bola racionálna konštrukcia, ktorú dokážu bez problémov realizovať miestni dodávatelia, bez skúseností s náročnou tesárskou prácou. Jednoduchá sústava lepených drevených krokiev, ktoré sa na jednej strane predlžujú a na druhej skracujú, definuje základný geometrický rámec. Drevenú konštrukciu dopĺňa obklad z rovnakého materiálu. Horizontálne smrekovcové dosky na fasáde časom zvetrávajú a splývajú s okolím. Autorky sa snažili v čo najväčšej miere využiť materiál a prácu miestnych dodávateľov. 

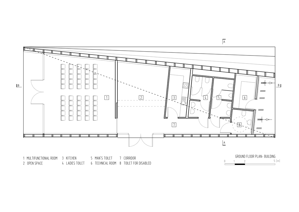
Pôdorys budovy zázemia
Pôdorys budovy zázemiaAutor: MWArchitekci
Pôdorys prístrešku
Pôdorys prístreškuAutor: MWArchitekci
Priečny rez prístreškom
Priečny rez prístreškomAutor: MWArchitekci
Pozdĺžny rez budovou zázemia
Pozdĺžny rez budovou zázemiaAutor: MWArchitekci
Konštrukčný systém
Konštrukčný systémFoto: MWArchitekci
Koncept
KonceptAutor: MWArchitekci
Axonometria
AxonometriaAutor: MWArchitekci
Axonometria
AxonometriaAutor: MWArchitekci

“Vďaka tomu, že obyvatelia boli zapojení do celého procesu realizácie projektu - od sociálnych konzultácií, až po jeho správu - cítia zaň osobnú zodpovednosť. Použitie dreva - materiálu, ktorý si vyžaduje starostlivosť, sa stalo metaforou medziľudských a sociálnych vzťahov - ktoré treba tiež priebežne udržiavať. Svedectvom ich dôležitosti je budova miestneho centra aktivít, ktorú využívajú a svedomito sa o ňu starajú obyvatelia mestskej časti.” dopĺňajú na záver architektky. 

Podklady: MWArchitekci
Fotografie: Michał Jędrzejowski a Marcin Giba

Poloha diela

Marlena Wolnik
Agnieszka Borkowska

Súvisiace články

Vložené
8. marec 2021
0
1231
Hlavný obsahHlavný obsah
Čakajte prosím