Advertorial

Pozvánka na 2. ročník stavebného veľtrhu BigMarket na Slovensku

Na podujatí sa predstaví až 37 vystavovateľov - popredných dodávateľov stavebných materiálov a inovácií s prezentáciou...

Hotel Hirschen Spa House, Rakúsko

Novotvar v prostredí alpskej obce.

Vytvorte si kúpeľňu snov: dizajnové riešenie od značky hansgrohe

Hansgrohe - prémiová značka kúpeľňových riešení, ponúka nadčasový dizajn, technickú precíznosť a udržateľné inovácie...

Okná Internorm za minuloročné ceny + hliníkový kryt zdarma!

Využite špeciálnu akciu Internorm: okná za minuloročné ceny a hliníkový kryt úplne zadarmo. Ponuka je časovo obmedzená!

Moderné plynové technológie: Efektivita a inovácie pre 21. storočie

Sumarizácia najdôležitejších inovácií, ktoré redefinujúcich využitie tohto energetického zdroja.

Utesňovanie spodných stavieb pomocou hydro-aktívnej fólie AMPHIBIA.

AMPHIBIA 3000 GRIP 1.3 od spoločnosti ATRO predstavuje modernú hydroizolačnú technológiu, ktorá spája vysokú odolnosť,...

Dekarbonizácia individuálneho vykurovania domácností – Green Deal evolučne a nie revolučne

Ambiciózne plány EK narazili na ekonomické možnosti domácností v jednotlivých členských štátoch –...

Minimalistické dvere IDEA – technická precíznosť a čistota prevedenia

IDEA DOOR od spoločnosti JAP prináša do interiéru čistý minimalistický vzhľad vďaka bezrámovému riešeniu a precíznej...

Dom s výhľadom na údolie, Dlouhý Most (ČR)

Kontinuita riešenia od vonkajšieho obkladu až po kovania a kľučky.

Schell Vitus – osvedčené riešenie pre sprchy a umývadlá vo verejnom sektore s viac ako desaťročnou tradíciou

Nástenné nadomietkové armatúry Vitus sú mimoriadne vhodné pre rýchlu a efektívnu...

Kompozitné okná predstavujú súčasnosť a budúcnosť

Okenné profily z kompozitného materiálu RAU-FIPRO X od spoločnosti Rehau sú v porovnaní s tradičnými plastovými profilmi mnohonásobne...

Myotis - stoly 2025

Najnovší sortiment stolov pre zariadenie interiérov...

Priemyselné sklenené priečky Dorsis Digero: svetelné rozhranie pre moderné interiéry

Spojenie moderného dizajnu, funkčnosti a svetla do harmonického architektonického prvku.

Význam prirodzeného svetla pre moderné a flexibilné pracovné prostredie

Kancelárska budova Baumit v slovinskom Trzine prešla premenou na moderné a udržateľné pracovisko. Architekti kládli dôraz...

Konferencia Xella Dialóg predstaví novinky a trendy v stavebníctve

Mottom šiesteho ročníku on-line konferencie odborníkov Xella Dialóg je Efektívny návrh budov 2025+: zmeny a riešenia

Bytový dom Gleis 21, Viedeň

Hybridná drevostavba vytvorila priestor pre 34 individuálne navrhnutých bytov a spoločné priestory pre oddych a kultúru. 
Diela
Red 302.02.2022
49210+32
Bytový dom Gleis 21, Viedeň
Autori: Markus Zilker, Francesca Bocchini, Annegret Haider, Victoria MarekInvestor: Schwarzatal Gemeinnützige Wohnungs, Siedlungsanlagen GmbH, baugruppe Gleis 21Plocha pozemku: 1691 m2Podlažná plocha: 3886 m2Návrh: 2019 - 2019Realizácia: 2019 - 2019Adresa: Bloch Bauer Promenade 22, Viedeň, RakúskoPublikované: 2. február 2022

Predstavujeme projekt komunitného bývania vo viedenskej štvrti Sonnwendviertel, neďaleko hlavnej železničnej stanice. Ďalšie dielo z pätice rakúskych realizácií ktoré sa dostalo do užšieho výberu EU mies award 2022.


Individualizované bývanie á la baugruppe...

Baugruppe je skupina ľudí, ktorí spoja svoje financie a sily za účelom vybudovania vlastného bývania. Projekty baugruppe sa odlišujú od bežných domov predovšetkým v dialógu architekta a klienta (skupiny mini-staviteľov) v priebehu procesu navrhovania. Každý projekt je jedinečný a odráža dynamiku a nároky skupiny. Že namiesto idealistickej utópie to môže byť racionálna cesta nielen k realizácii, ale aj k prevádzke a správe spoločnej nehnuteľnosti ukazujú viaceré projekty v Nemecku a Švajčiarsku. Aktuálny príklad pochádza z neďalekej Viedne, kde sa mesto a mestské časti podporou komunitných projektov snažia stimulovať rozvoj bývania vo vytipovaných lokalitách. 

Priebeh participácie
Priebeh participácieAutor: einszueins architektur

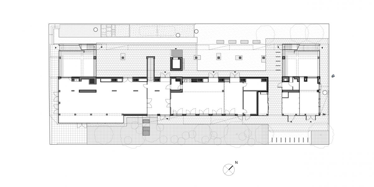
Na prelome rokov 2014 a 2015 začala baugruppe Gleis 21, medzi ktorej zakladajúcich členov patril architekt Markus Zilker (einzueins Architektur) rozvíjať iniciatívu s cieľom realizácie projektu polyfunkčného domu v centre novej mestskej rozvojovej oblasti "Leben am Helmut Zilk Park" v blízkosti viedenskej hlavnej stanice ("Hauptbahnhof Wien"). Začiatkom leta 2015 sa 21 člennej skupine podarilo vyhrať verejnú súťaž na nové využitie parcely v dynamicky sa rozvíjajúcej zóne. 

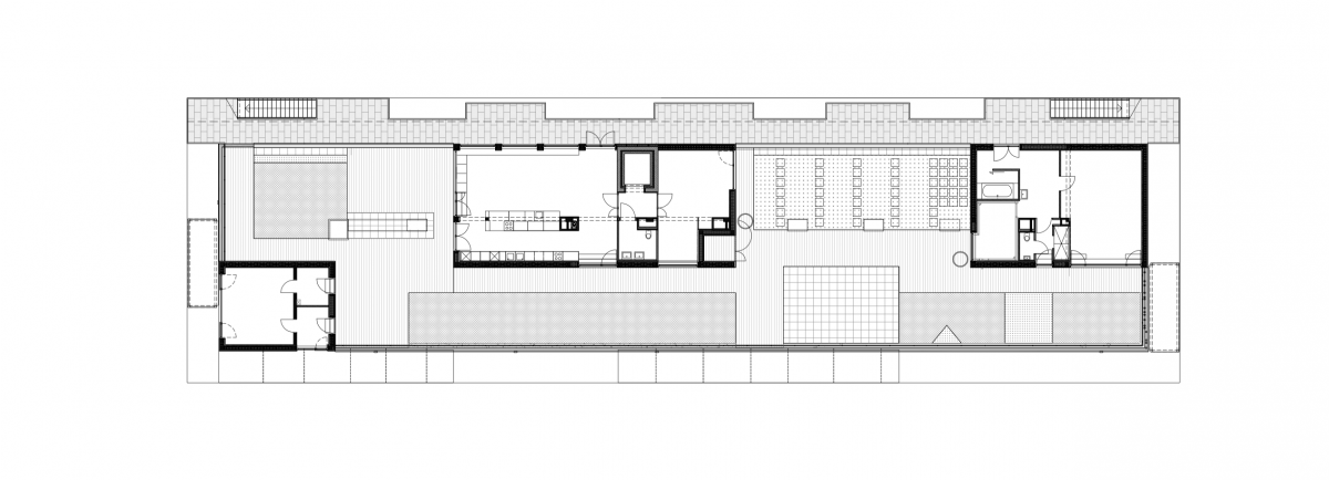
Kompaktný obytný blok sa nachádza na lineárnej parcele v susedstve parku Helmuta Zilka. Rozsiahle spoločné priestory predstavujú ťažisko komunálneho aspektu a ponúkajú priestor na spoločné a individuálne využitie: od spoločnej kuchyne cez knižnicu a saunu na najvyššom poschodí až po dielňu, štúdio a posilňovňu v suteréne. Využitie komunitných priestorov navrhli a spravujú obyvatelia domu. Zatiaľčo parter a suterén sú verejne prístupné, najvyššie podlažie je určené len pre rezidentov. 

Prevádzková schéma
Prevádzková schémaAutor: einszueins architektur

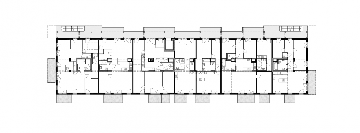
Byty využívajú štyri poschodia. Jednotlivé výškové úrovne spája rozsiahla pavlač s otvorenými schodiskami, ktorá je častým miestom osobných stretnutí. Súkromné balkóny na opačnej strane majú juhovýchodnú orientáciu. Flexibilný pôdorys, ktorý spája kuchyne a kúpeľne v centrálnej časti domu, umožnil individuálne plánovanie každej jednotky v spolupráci s jej obyvateľmi. Niektoré byty boli plánované v spolupráci s Diakonie Flüchtlingsdienst (organizácia na pomoc utečencom), sú určené pre ľudí v núdzi.

Projekt bol navrhnutý ako kompaktný dom s nulovou spotrebou energie. Stavbu tvorí hybridná konštrukcia. Významné časti boli realizované z dreva, vrátane stien horných podlaží, fasád, alebo strešnej nadstavby.

Foto: Hertha Hurnaus
Foto: Hertha Hurnaus
Foto: Hertha Hurnaus
Foto: Hertha Hurnaus
Foto: Hertha Hurnaus
Foto: Hertha Hurnaus
Situácia
SituáciaAutor: einszueins architektur
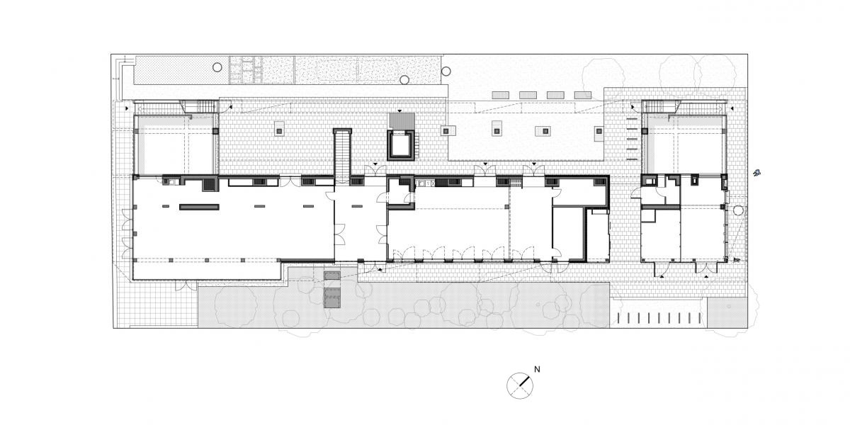
Pôdorys prízemia
Pôdorys prízemiaAutor: einszueins architektur
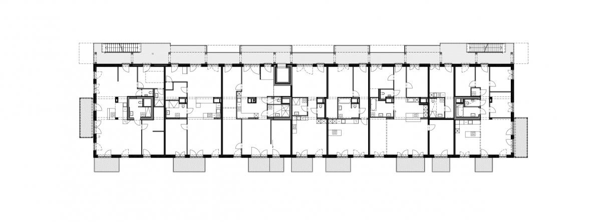
Pôdorys "typického" podlažia (2. NP)
Pôdorys "typického" podlažia (2. NP)Autor: einszueins architektur
Pôddorys najvyššieho podlažia
Pôddorys najvyššieho podlažiaAutor: einszueins architektur
Rez
RezAutor: einszueins architektur

Podklady: einszueins architektur
Fotografie: Hertha Hurnaus

Poloha diela

Markus Zilker
Francesca Bocchini
Annegret Haider
Victoria Marek

Súvisiace články

Vložené
28. január 2022
0
4921
Hlavný obsahHlavný obsah
Čakajte prosím