Advertorial

Hotel Hirschen Spa House, Rakúsko

Novotvar v prostredí alpskej obce.

Vytvorte si kúpeľňu snov: dizajnové riešenie od značky hansgrohe

Hansgrohe - prémiová značka kúpeľňových riešení, ponúka nadčasový dizajn, technickú precíznosť a udržateľné inovácie...

Okná Internorm za minuloročné ceny + hliníkový kryt zdarma!

Využite špeciálnu akciu Internorm: okná za minuloročné ceny a hliníkový kryt úplne zadarmo. Ponuka je časovo obmedzená!

Pozvánka na 2. ročník stavebného veľtrhu BigMarket na Slovensku

Na podujatí sa predstaví až 37 vystavovateľov - popredných dodávateľov stavebných materiálov a inovácií s prezentáciou...

Moderné plynové technológie: Efektivita a inovácie pre 21. storočie

Sumarizácia najdôležitejších inovácií, ktoré redefinujúcich využitie tohto energetického zdroja.

Utesňovanie spodných stavieb pomocou hydro-aktívnej fólie AMPHIBIA.

AMPHIBIA 3000 GRIP 1.3 od spoločnosti ATRO predstavuje modernú hydroizolačnú technológiu, ktorá spája vysokú odolnosť,...

Dekarbonizácia individuálneho vykurovania domácností – Green Deal evolučne a nie revolučne

Ambiciózne plány EK narazili na ekonomické možnosti domácností v jednotlivých členských štátoch –...

Minimalistické dvere IDEA – technická precíznosť a čistota prevedenia

IDEA DOOR od spoločnosti JAP prináša do interiéru čistý minimalistický vzhľad vďaka bezrámovému riešeniu a precíznej...

Dom s výhľadom na údolie, Dlouhý Most (ČR)

Kontinuita riešenia od vonkajšieho obkladu až po kovania a kľučky.

Schell Vitus – osvedčené riešenie pre sprchy a umývadlá vo verejnom sektore s viac ako desaťročnou tradíciou

Nástenné nadomietkové armatúry Vitus sú mimoriadne vhodné pre rýchlu a efektívnu...

Kompozitné okná predstavujú súčasnosť a budúcnosť

Okenné profily z kompozitného materiálu RAU-FIPRO X od spoločnosti Rehau sú v porovnaní s tradičnými plastovými profilmi mnohonásobne...

Myotis - stoly 2025

Najnovší sortiment stolov pre zariadenie interiérov...

Priemyselné sklenené priečky Dorsis Digero: svetelné rozhranie pre moderné interiéry

Spojenie moderného dizajnu, funkčnosti a svetla do harmonického architektonického prvku.

Význam prirodzeného svetla pre moderné a flexibilné pracovné prostredie

Kancelárska budova Baumit v slovinskom Trzine prešla premenou na moderné a udržateľné pracovisko. Architekti kládli dôraz...

Konferencia Xella Dialóg predstaví novinky a trendy v stavebníctve

Mottom šiesteho ročníku on-line konferencie odborníkov Xella Dialóg je Efektívny návrh budov 2025+: zmeny a riešenia

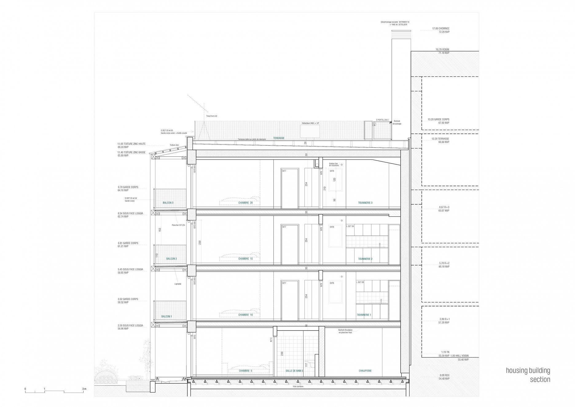
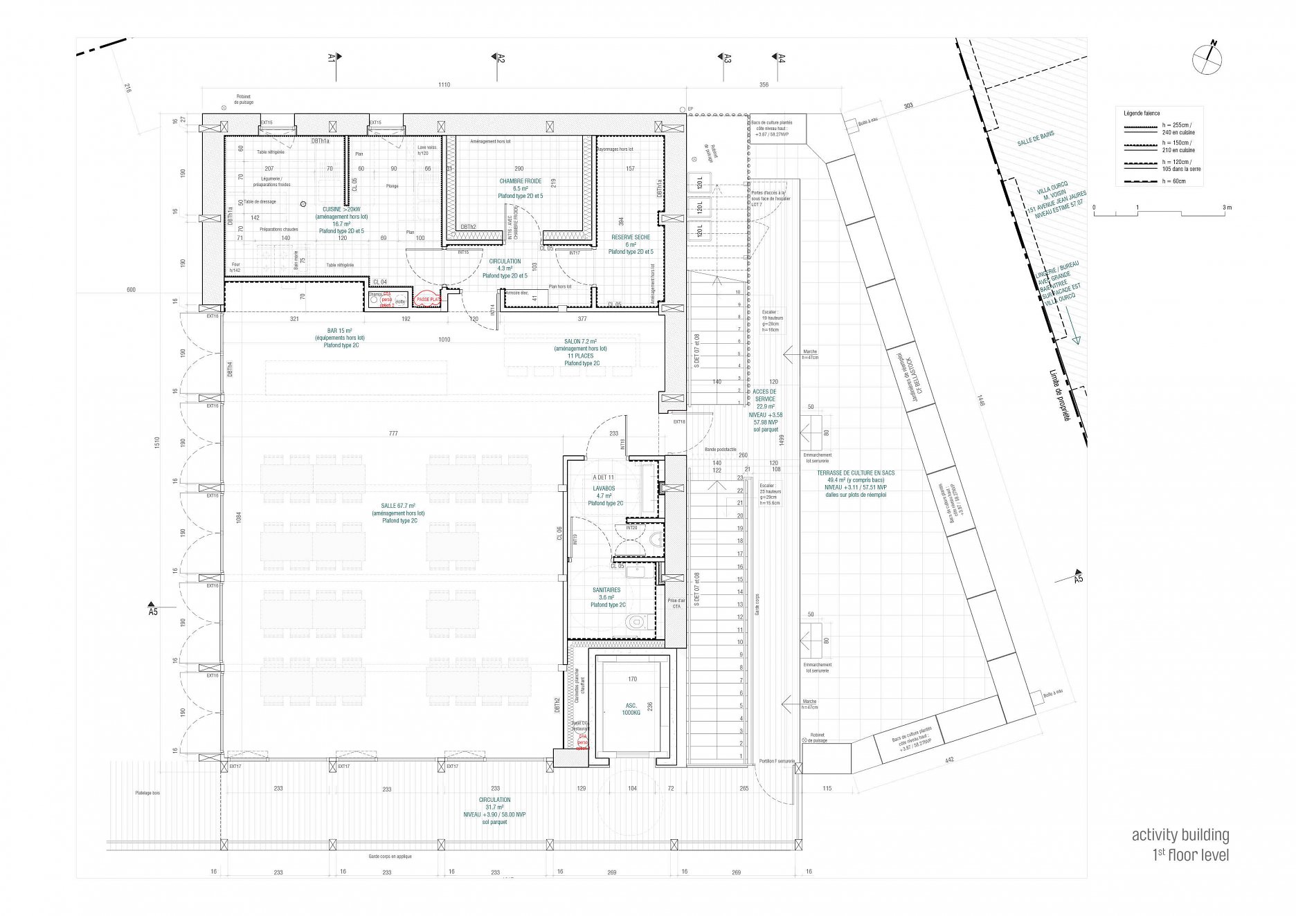
Ferme du Rail, Paríž

Mestské hospodárstvo na mieste nevyužívaného železničného okruhu.
Diela
Red 323.03.2022
11470+17
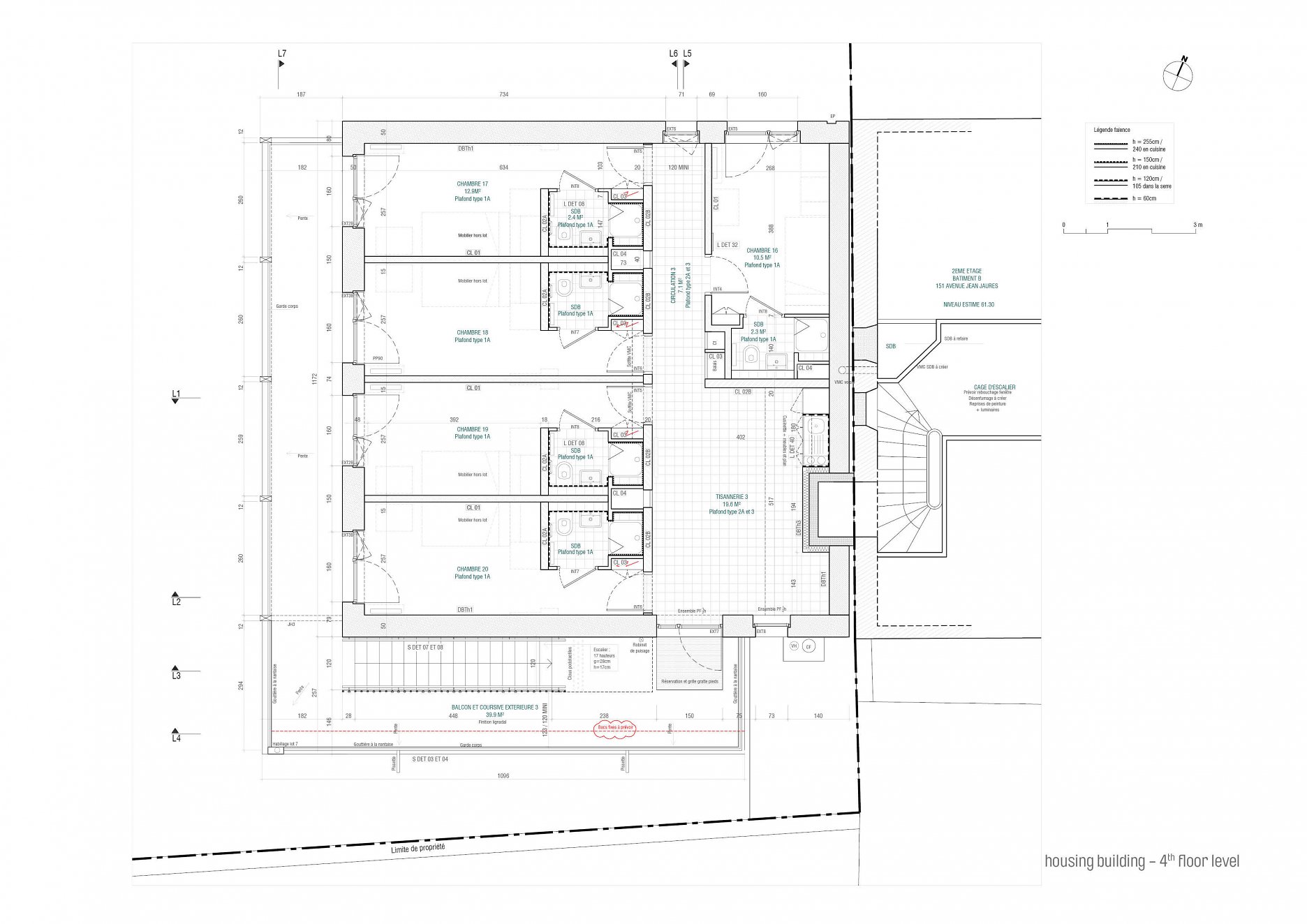
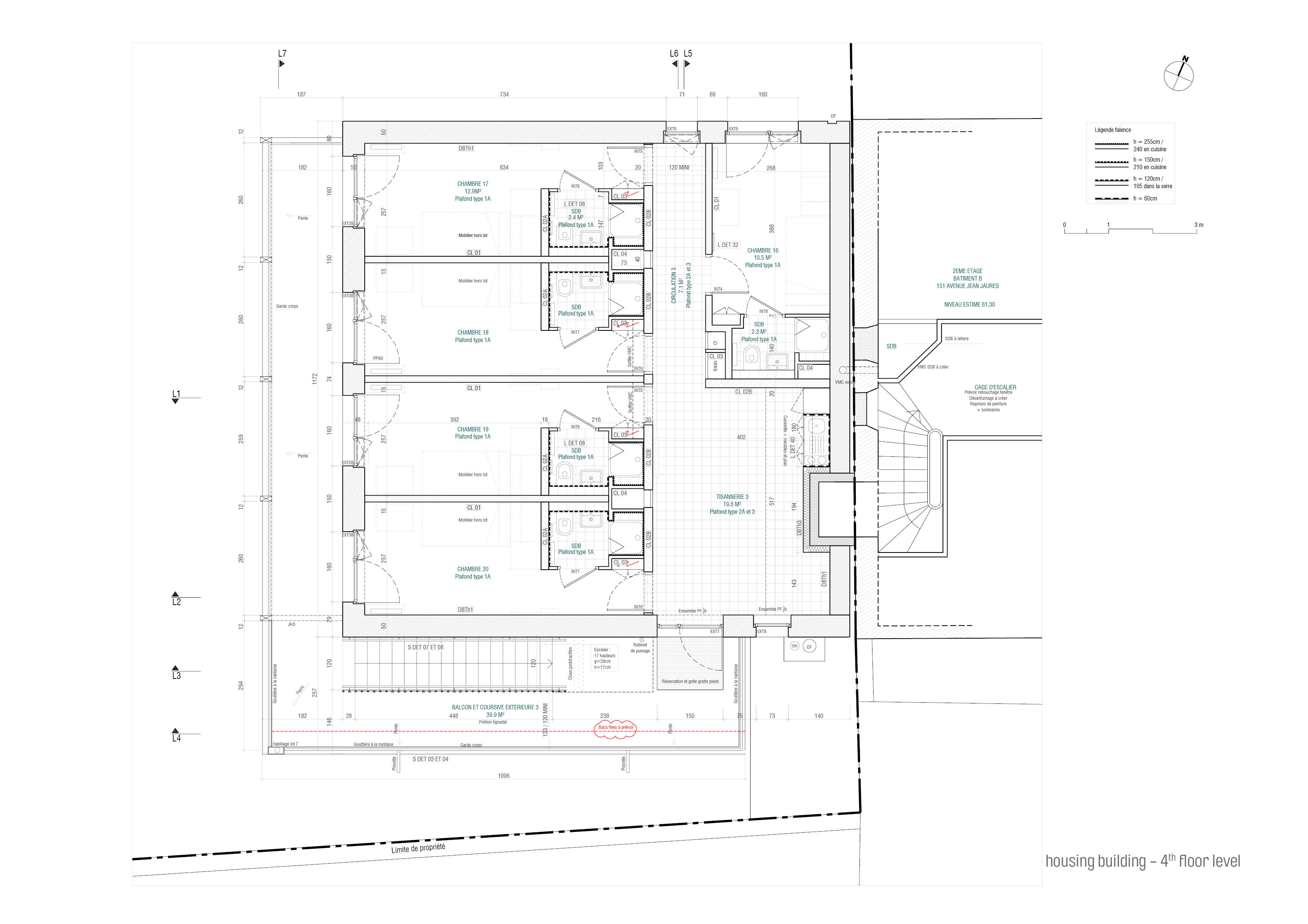
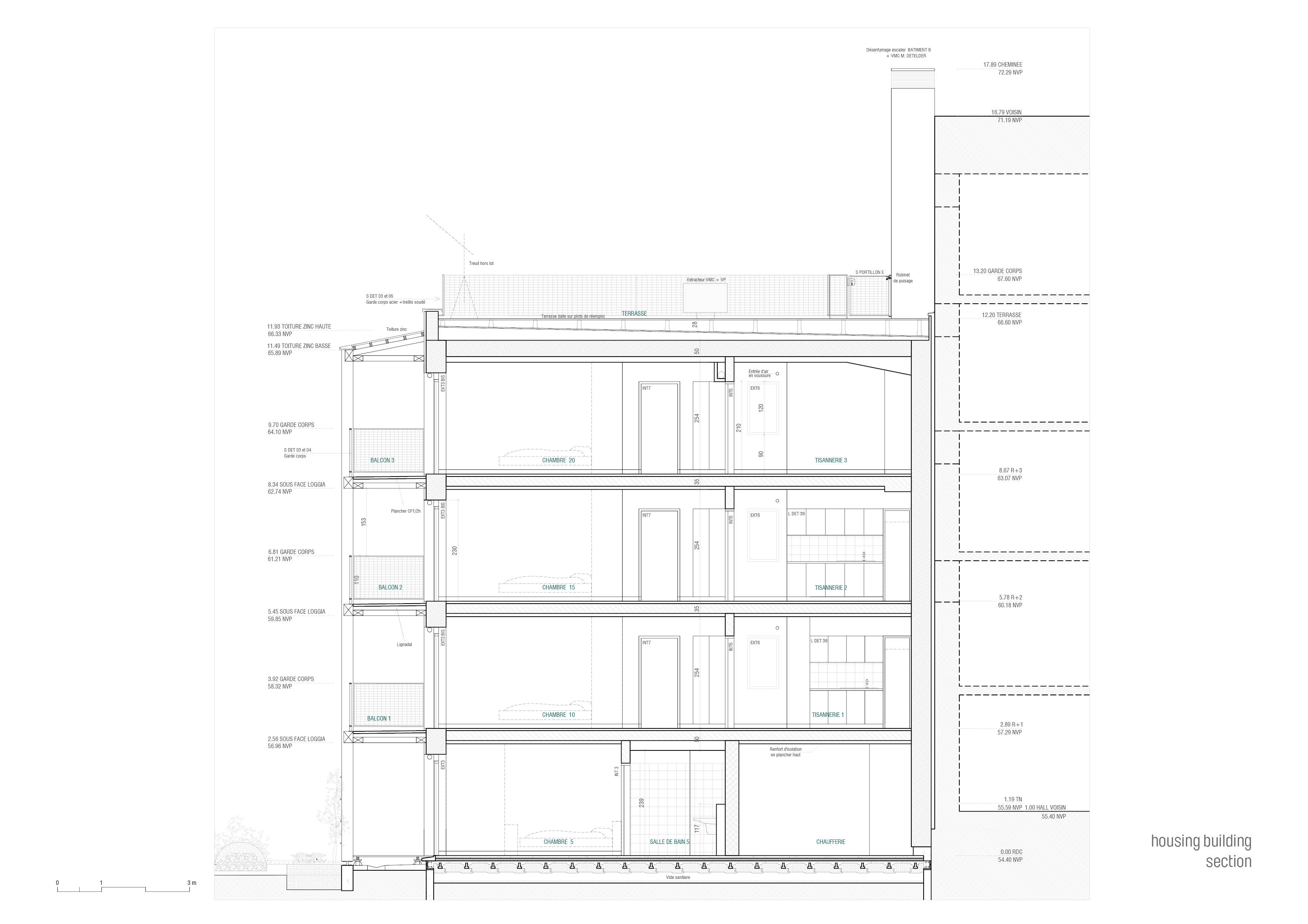
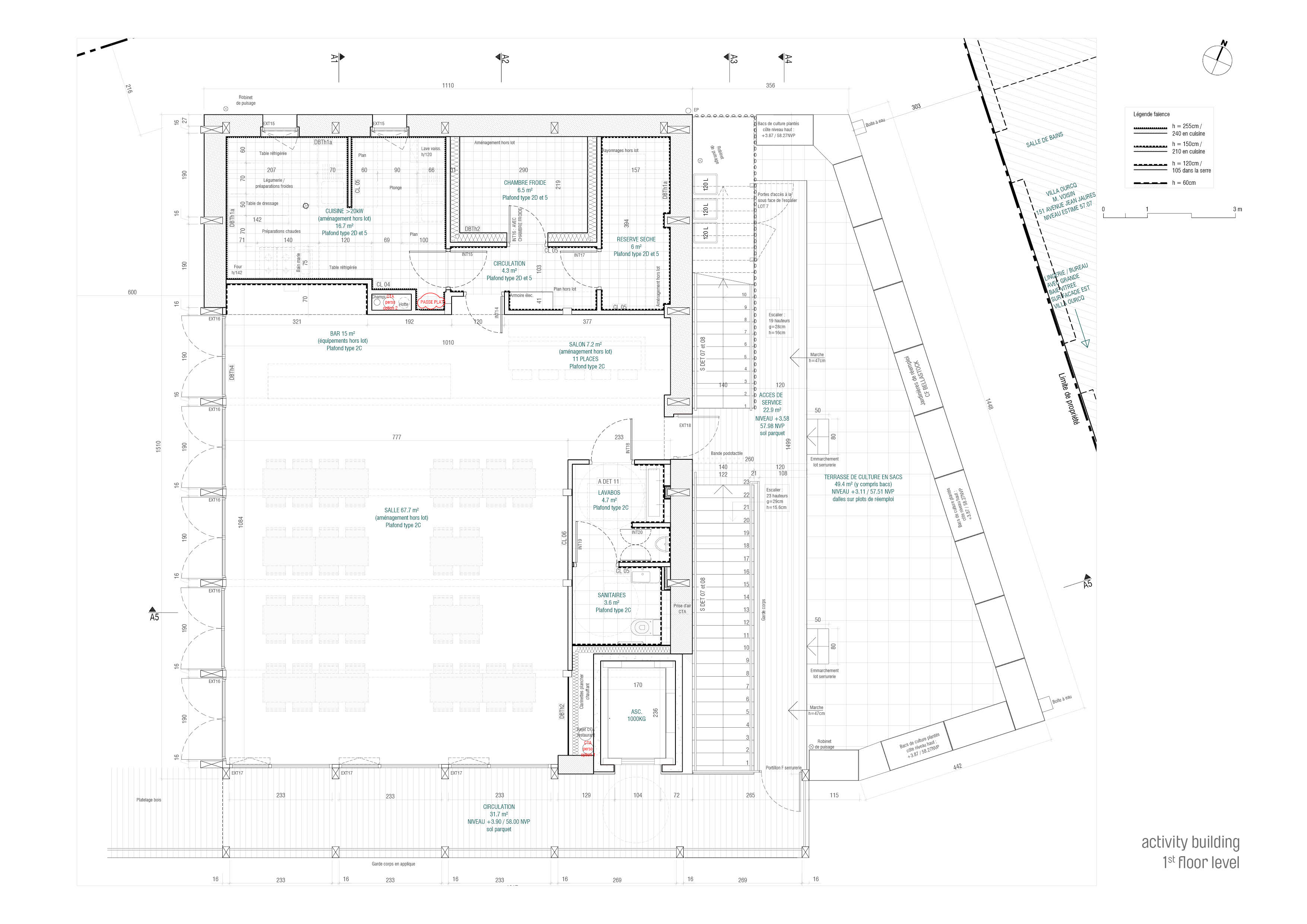
Ferme du Rail, Paríž
Autori: Clara Simay, Julia Turpin, Melanie DrevetInvestor: RéhabailZastavaná plocha: 1360 m2Návrh: 2014 - 2018Realizácia: 2018 - 2019Adresa: Rue de l´Ourcq 2, Paríž, FrancúzskoPublikované: 23. marec 2022

Už v apríli bude známy laureát Ceny Európskej únie za súčasnú architektúru - EU mies award 2022. V sérii článkov predstavujeme päticu finalistovDnes priblížime parížsku realizáciu ateliérov Grand Huit a Melanie Drevet Paysagiste.

La Ferme du Rail je prvým realizovaným projektom v rámci výzvy “Réinventer Paris“, ktorú francúzske hlavné mesto spustilo v roku 2014. Výzva pod záštitou nastupujúcej starostky Anne Hidalgovej hľadala nové využitie pre 23 vybraných lokalít v rámci mesta. Víťazné projekty vyhlásené v roku 2016, ktoré sú v súčasnosti v rôznych fázach realizácie, tvoria spolu urbanistický experiment neobyčajného rozsahu. 

Ateliéry Grand Huit a Melanie Drevet Paysagiste sa zamerali na revitalizáciu pozemku v mieste nevyužívanej železničnej trate “Petite Ceinture“, ktorá v minulosti obsluhovala tridsaťdva kilometrový vonkajší okruh mesta. 

Kolobeh prevádzky farmy zahajuje zber a spracovanie organického odpadu, využívaného v permakultúrnych záhradách a skleníkoch. Sociálny rozmer projektu, zameraného na lokálne pestovanie ovocia a zeleniny je založený na práci s miestnou komunitou. Súčasťou ekosystému je tiež reštaurácia s ponukou produktov z farmy, 15 sociálnych reintegračných bytových jednotiek a päť sociálnych študentských bytov. 

Projekt kladie tiež dôraz na vzdelávaciu funkciu a prezentovanie ekologických stavebných materiálov (drevostavba izolovaná slamou a opláštená neošetreným drevom). V rámci výskumnej časti projektu experimentovali autori s recyklovaným textilom, alebo na sucho kladenými múrmi (opätovne využitá dlažba z parížskych chodníkov)...

Za dva roky fungovania vyprodukovala farma viac ako 4 tony zeleniny, spracovala kompostovaním 20 ton odpadu a zamestnáva (vrátane reštaurácie) 23 ľudí, z toho 15 býva priamo na mieste.

Projekt Ferme du Rail sa zrodil z iniciatívy obyvateľov a miestnych združení. Spája mestské hospodárstvo otvorené pre všetkých so sociálnym rozmerom a podporou zraniteľných osôb.

Foto: Jérômine Derigny
Foto: Myr Muratet
Foto: Myr Muratet
Autori: Grand Huit; Melanie Drevet Paysagiste
Autori: Grand Huit; Melanie Drevet Paysagiste
Autori: Grand Huit; Melanie Drevet Paysagiste
Autori: Grand Huit; Melanie Drevet Paysagiste
Autori: Grand Huit; Melanie Drevet Paysagiste
Autori: Grand Huit; Melanie Drevet Paysagiste
Autori: Grand Huit; Melanie Drevet Paysagiste
Foto: Jérômine Derigny
Foto: Myr Muratet
Foto: Myr Muratet
Foto: Myr Muratet
Foto: Myr Muratet
Foto: Myr Muratet
Foto: Myr Muratet
Foto: Myr Muratet
Foto: Myr Muratet
Foto: Jérômine Derigny
Foto: Jérômine Derigny

Poloha diela

Clara Simay
Julia Turpin
Melanie Drevet

Súvisiace články

Vložené
16. marec 2022
0
1147
Hlavný obsahHlavný obsah
Čakajte prosím