Na podujatí sa predstaví až 37 vystavovateľov - popredných dodávateľov stavebných materiálov a inovácií s prezentáciou...
Novotvar v prostredí alpskej obce.
Hansgrohe - prémiová značka kúpeľňových riešení, ponúka nadčasový dizajn, technickú precíznosť a udržateľné inovácie...
Využite špeciálnu akciu Internorm: okná za minuloročné ceny a hliníkový kryt úplne zadarmo. Ponuka je časovo obmedzená!
Sumarizácia najdôležitejších inovácií, ktoré redefinujúcich využitie tohto energetického zdroja.
AMPHIBIA 3000 GRIP 1.3 od spoločnosti ATRO predstavuje modernú hydroizolačnú technológiu, ktorá spája vysokú odolnosť,...
Ambiciózne plány EK narazili na ekonomické možnosti domácností v jednotlivých členských štátoch –...
IDEA DOOR od spoločnosti JAP prináša do interiéru čistý minimalistický vzhľad vďaka bezrámovému riešeniu a precíznej...
Kontinuita riešenia od vonkajšieho obkladu až po kovania a kľučky.
Nástenné nadomietkové armatúry Vitus sú mimoriadne vhodné pre rýchlu a efektívnu...
Okenné profily z kompozitného materiálu RAU-FIPRO X od spoločnosti Rehau sú v porovnaní s tradičnými plastovými profilmi mnohonásobne...
Najnovší sortiment stolov pre zariadenie interiérov...
Spojenie moderného dizajnu, funkčnosti a svetla do harmonického architektonického prvku.
Kancelárska budova Baumit v slovinskom Trzine prešla premenou na moderné a udržateľné pracovisko. Architekti kládli dôraz...
Mottom šiesteho ročníku on-line konferencie odborníkov Xella Dialóg je Efektívny návrh budov 2025+: zmeny a riešenia

Spomedzi piatich finalistov určila porota ako víťazný projekt “Town house”, ktorý je vstupnou bránou do kampusu Kingston University v štyridsaťtisícovom meste Kingston upon Thames. Dielo sme podrobne predstavili v tomto článku.
"Po prvýkrát v histórii ceny zvíťazila univerzitná budova. Ocenený projekt vytvára ideálne prostredie pre inkluzívne vzdelávanie a môže slúžiť ako modelový príklad pre verejné inštitúcie. Koncept inštitúcie otvorenej mestu a jeho obyvateľom reflektuje architektonické riešenie. Základný priestorový a vizuálny rámec definuje skelet z prefabrikovaných oceľobetónových prvkov. Zvolený konštrukčný systém umožňuje maximálne otvoriť dispozíciu a formovať priestor vo vertikálnej osi. Stavbu navonok rozširuje kolonáda a systém prepojených terás," uvádza vo vyhlásení porota.
Írske architektky a pedagogičky Yvonne Farrell (1951) a Shelley McNamara (1952) vedú v Dubline spoločný ateliér Grafton Architects už viac ako 40 rokov. Architektky sa môžu pochváliť širokým portfóliom, z ktorého do popredia vystupujú práve veľké kultúrne a školské budovy (napríklad v medzinárodnom kontexte oceňovaná univerzita Luigi Bocconi v Miláne, alebo kampus v Lime).
Aktuálna realizácia v juhozápadnej aglomerácii Londýna, s rozpočtom 50 miliónov libier (5267 €/m2) vznikla na základe vyzvanej architektonickej súťaže. Kingston University v spolupráci s Royal Institute of British Architects (RIBA) určili z päťčlenného užšieho výberu ako víťazný koncept Grafton Architects.
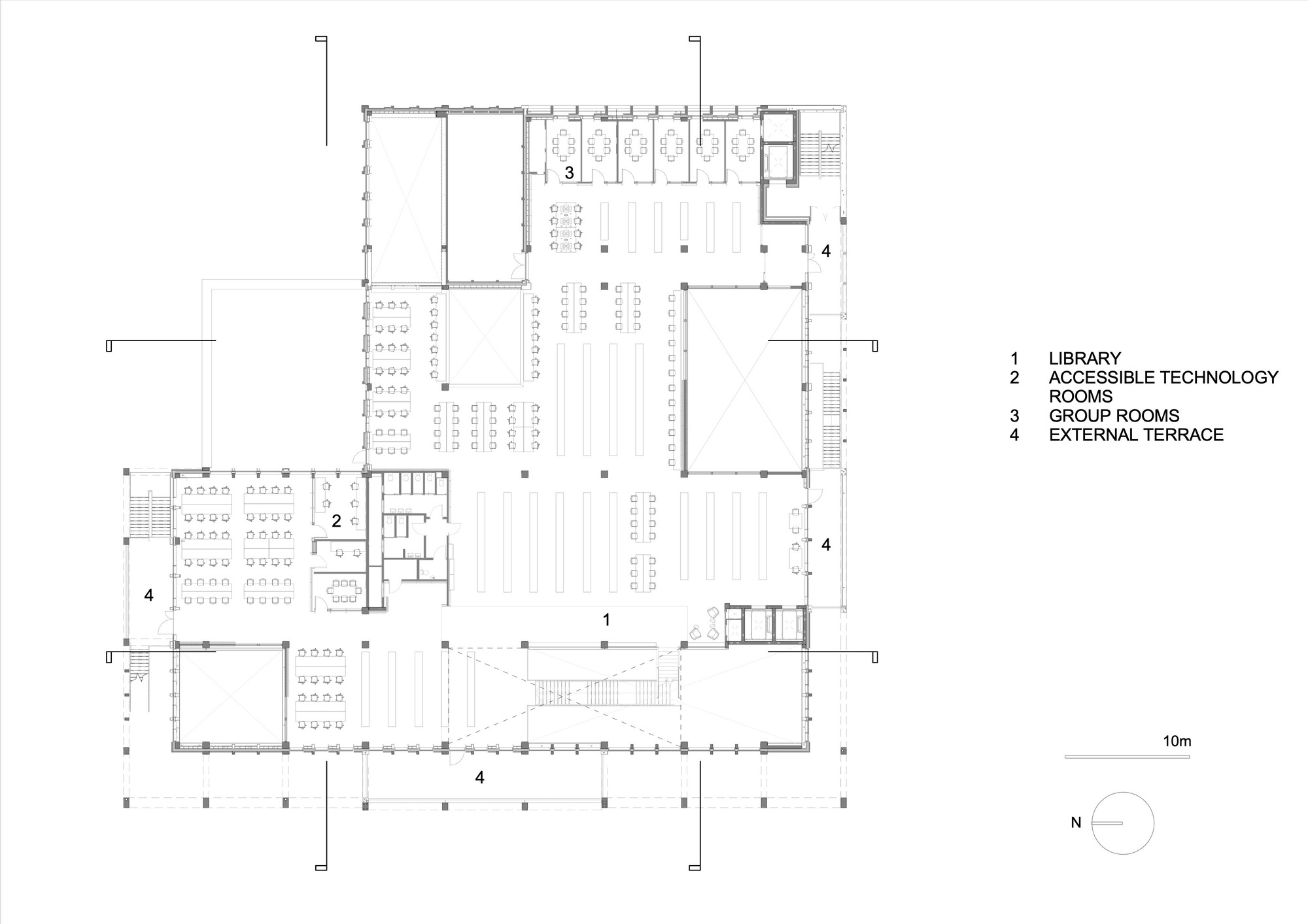
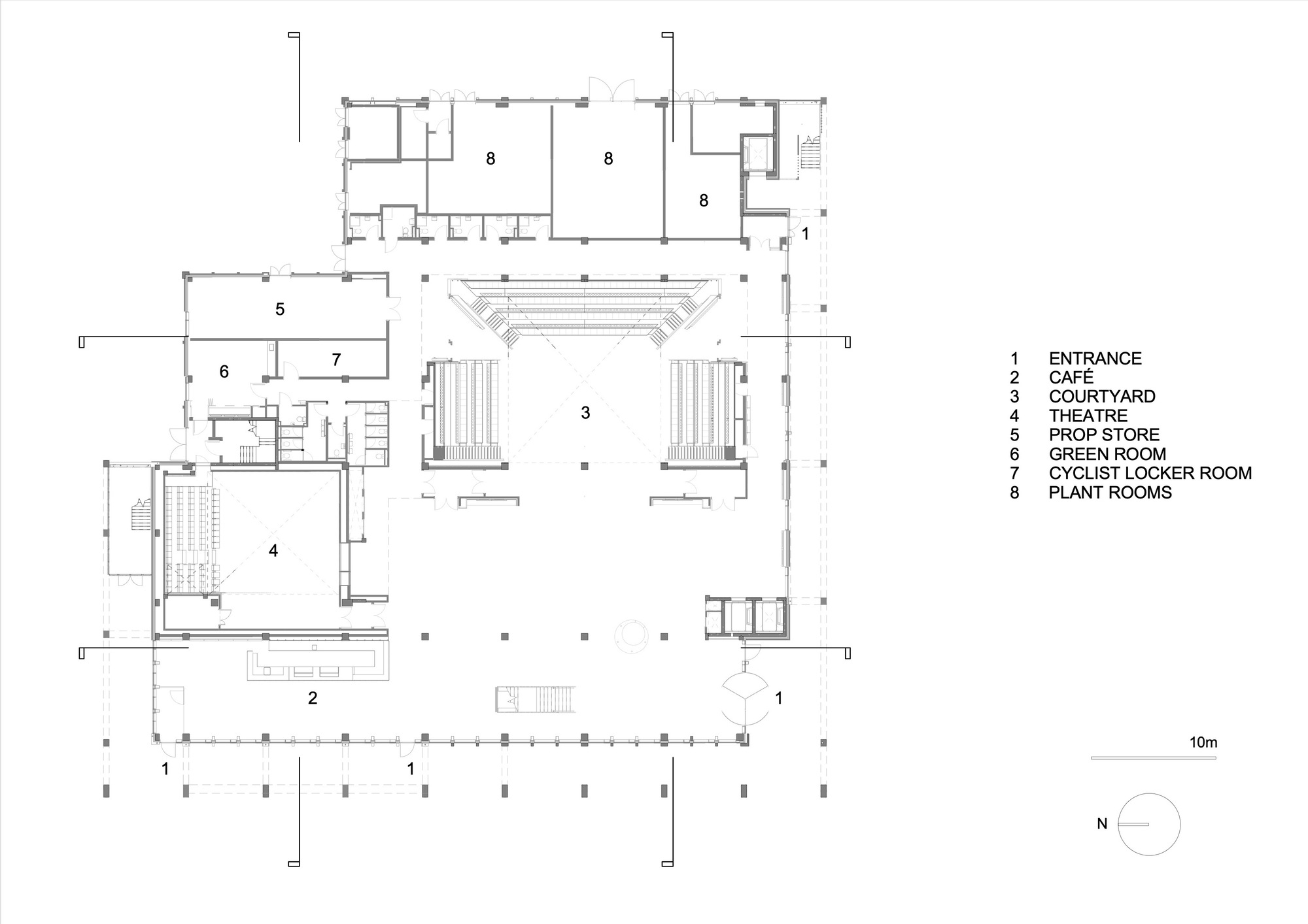
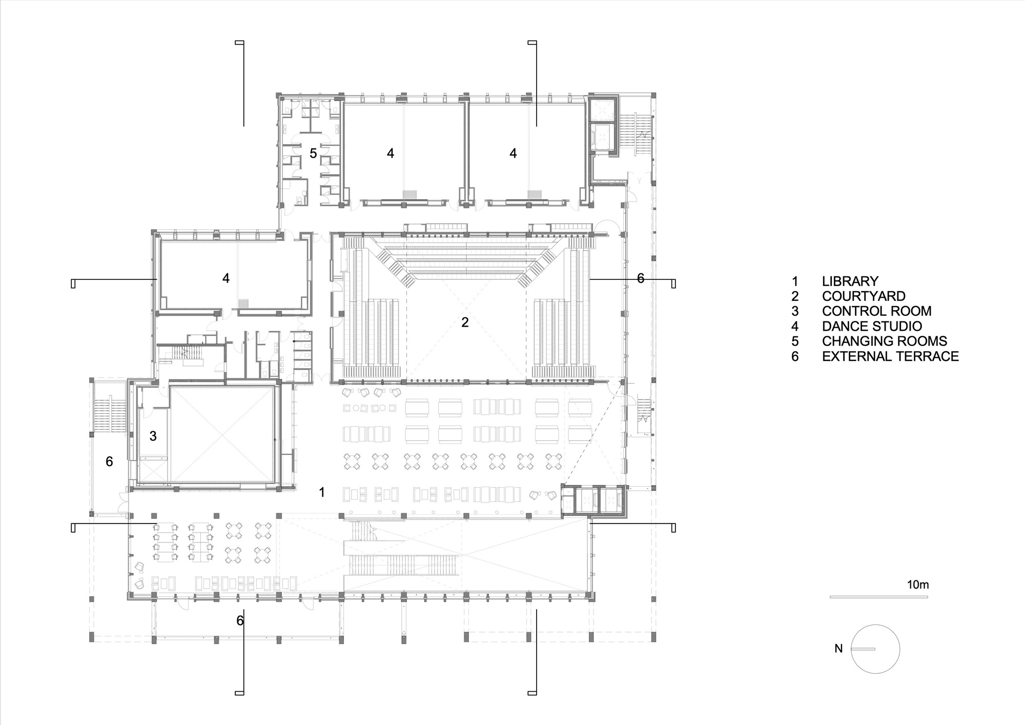
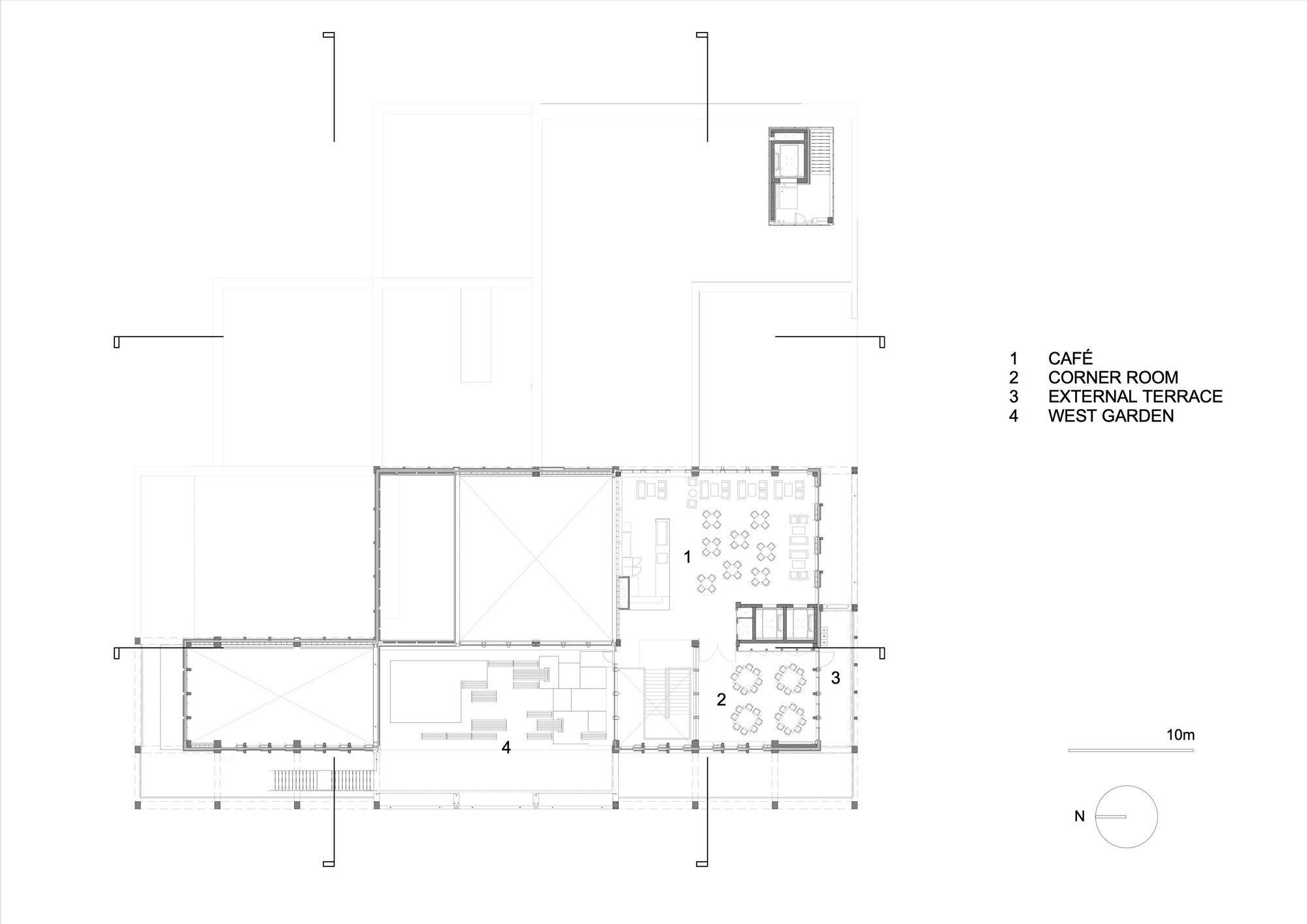
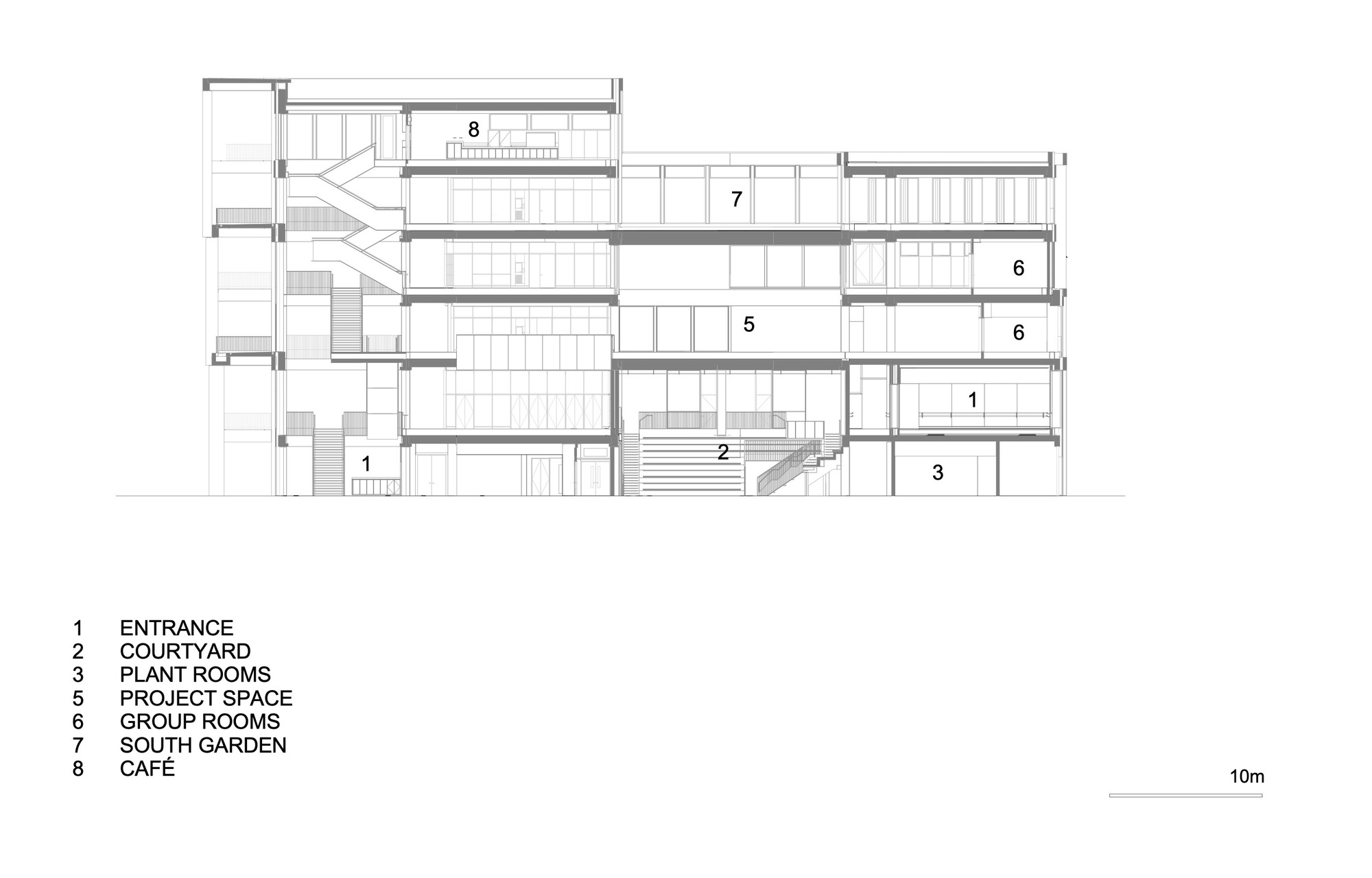
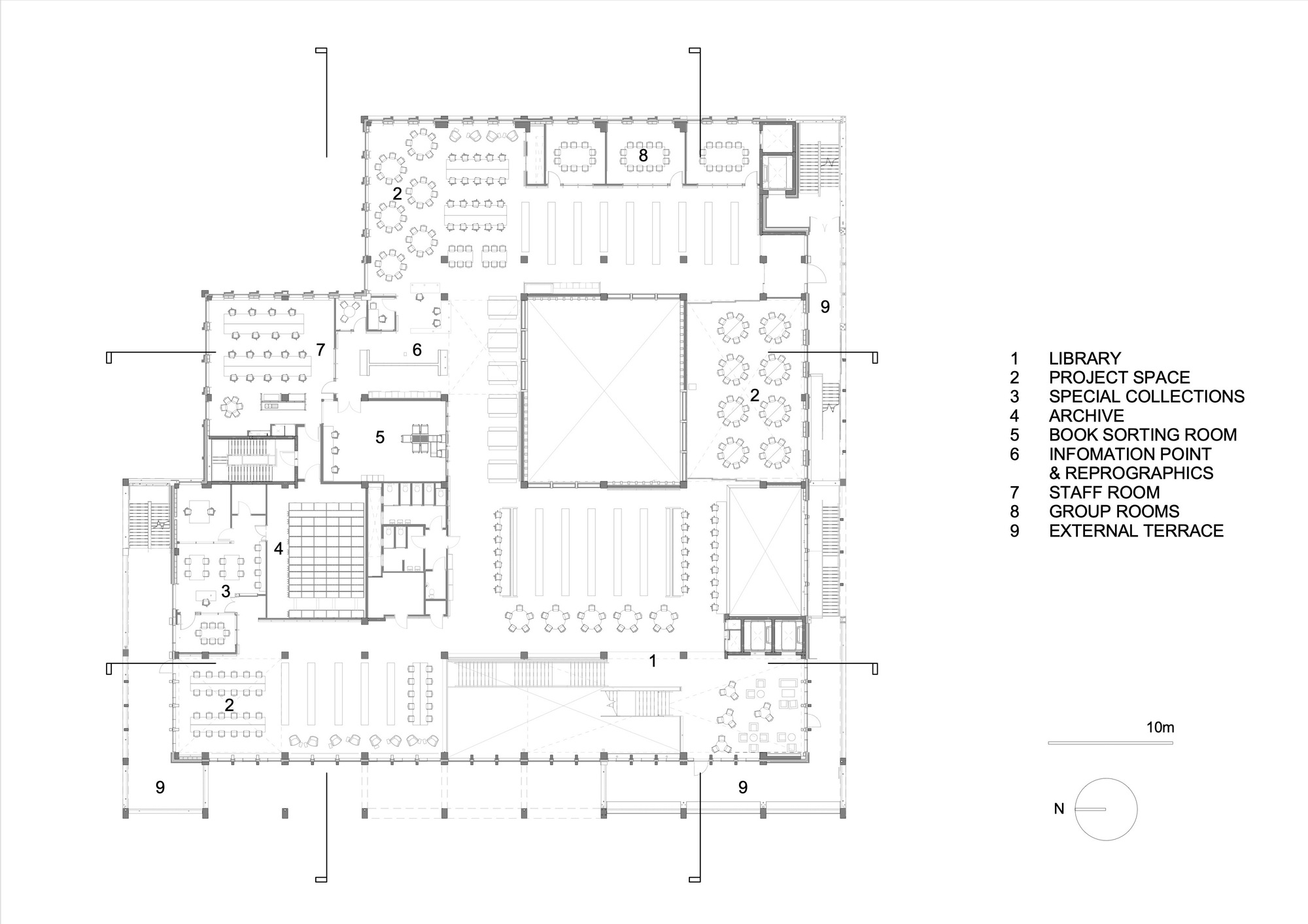
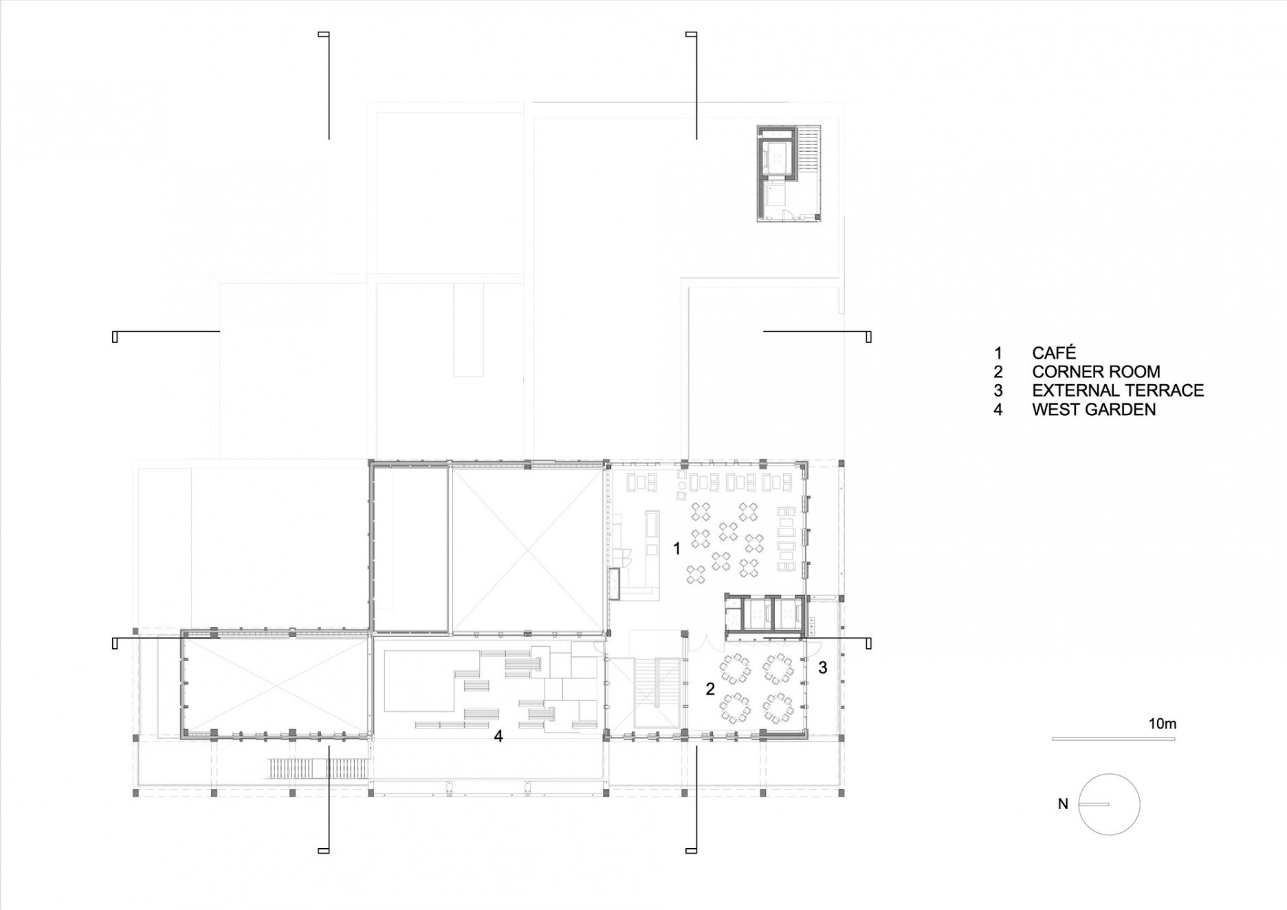
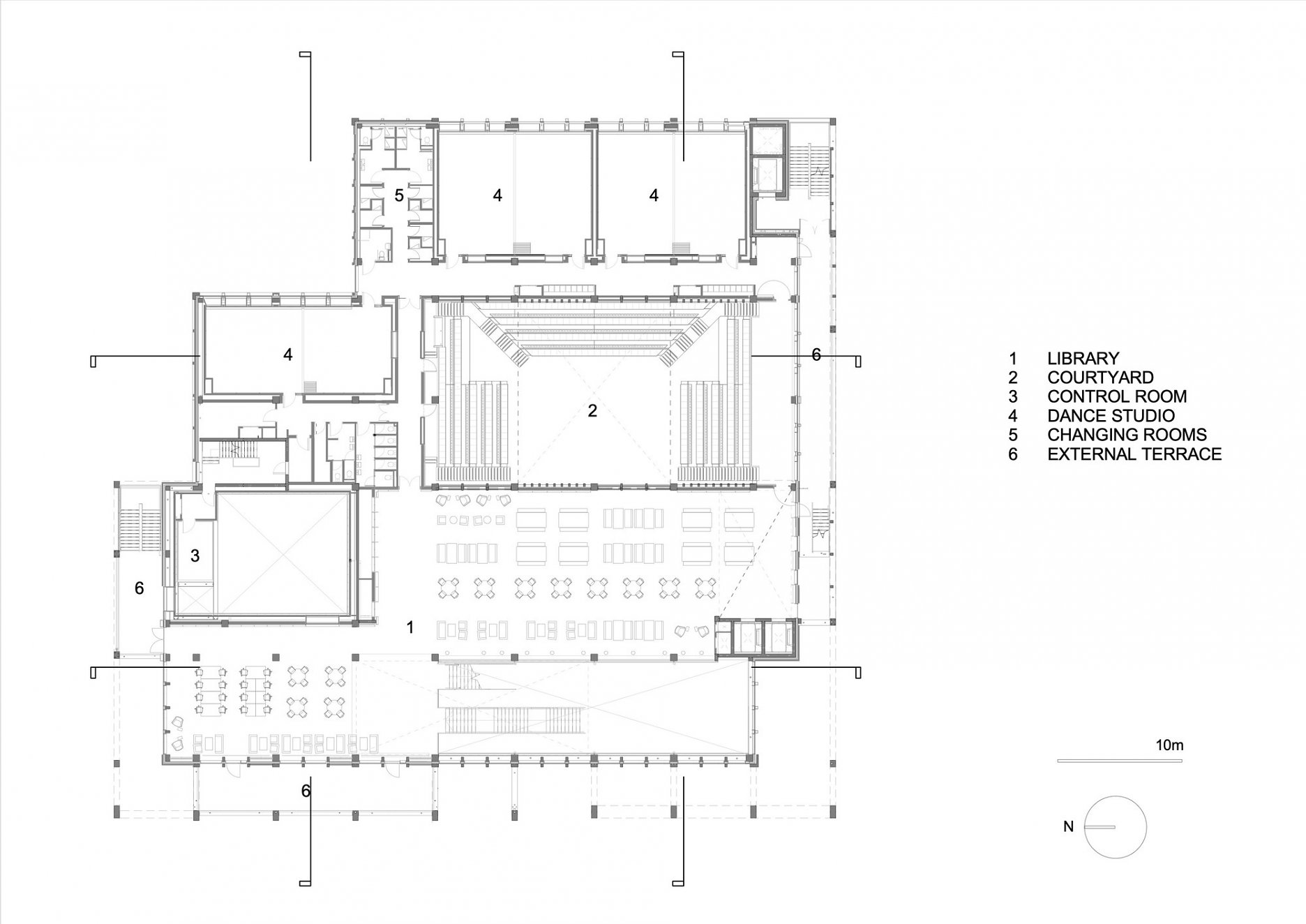
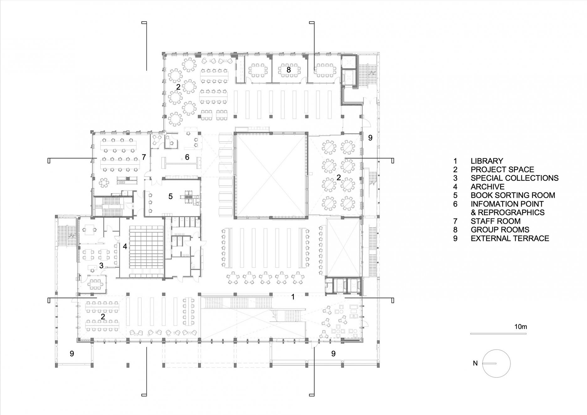
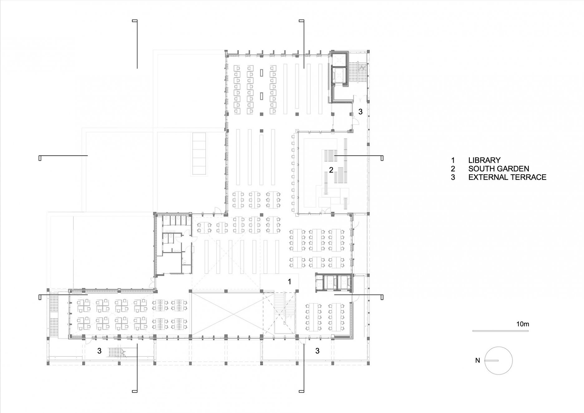
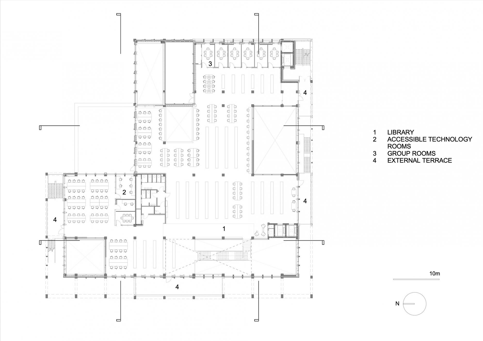
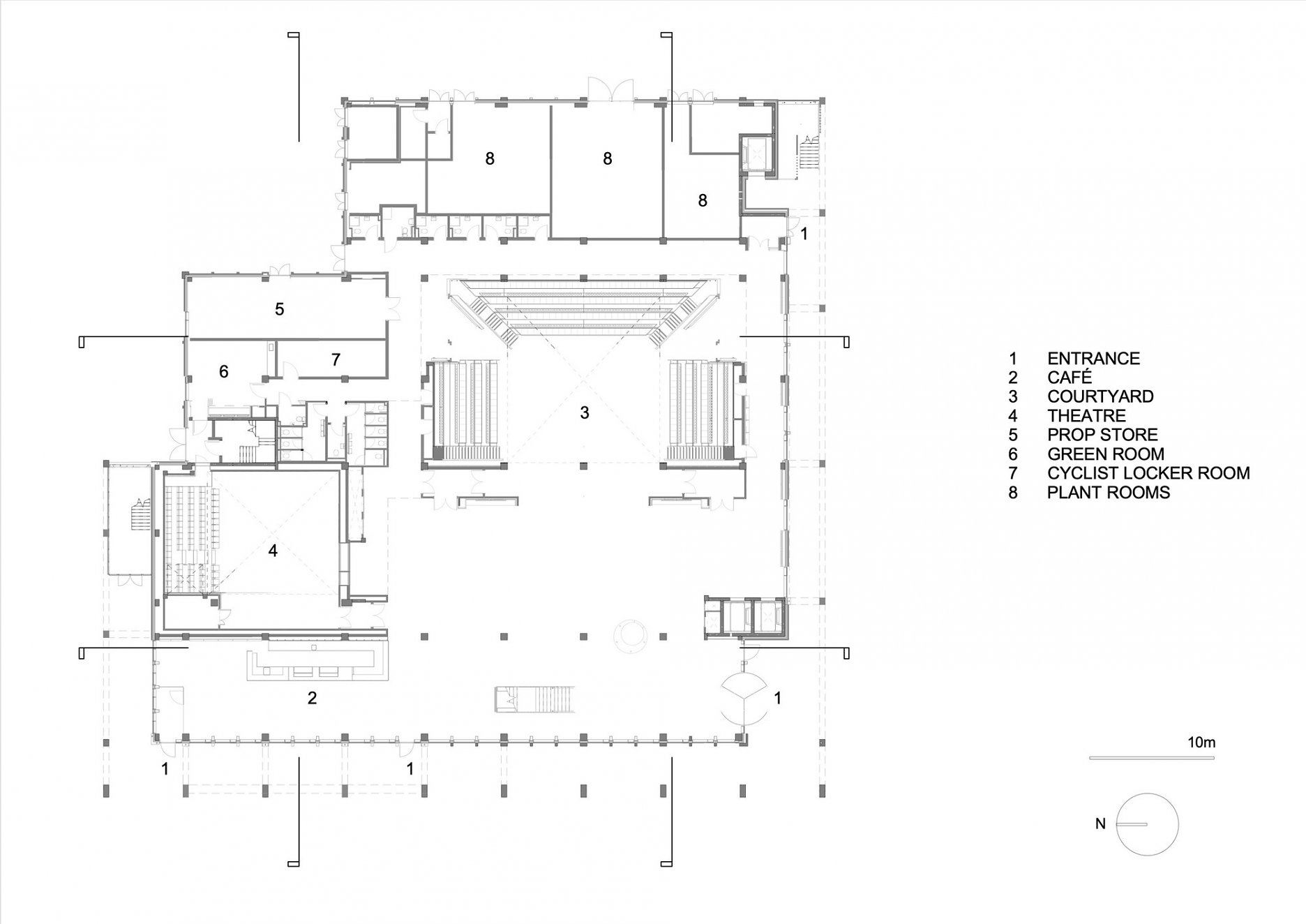
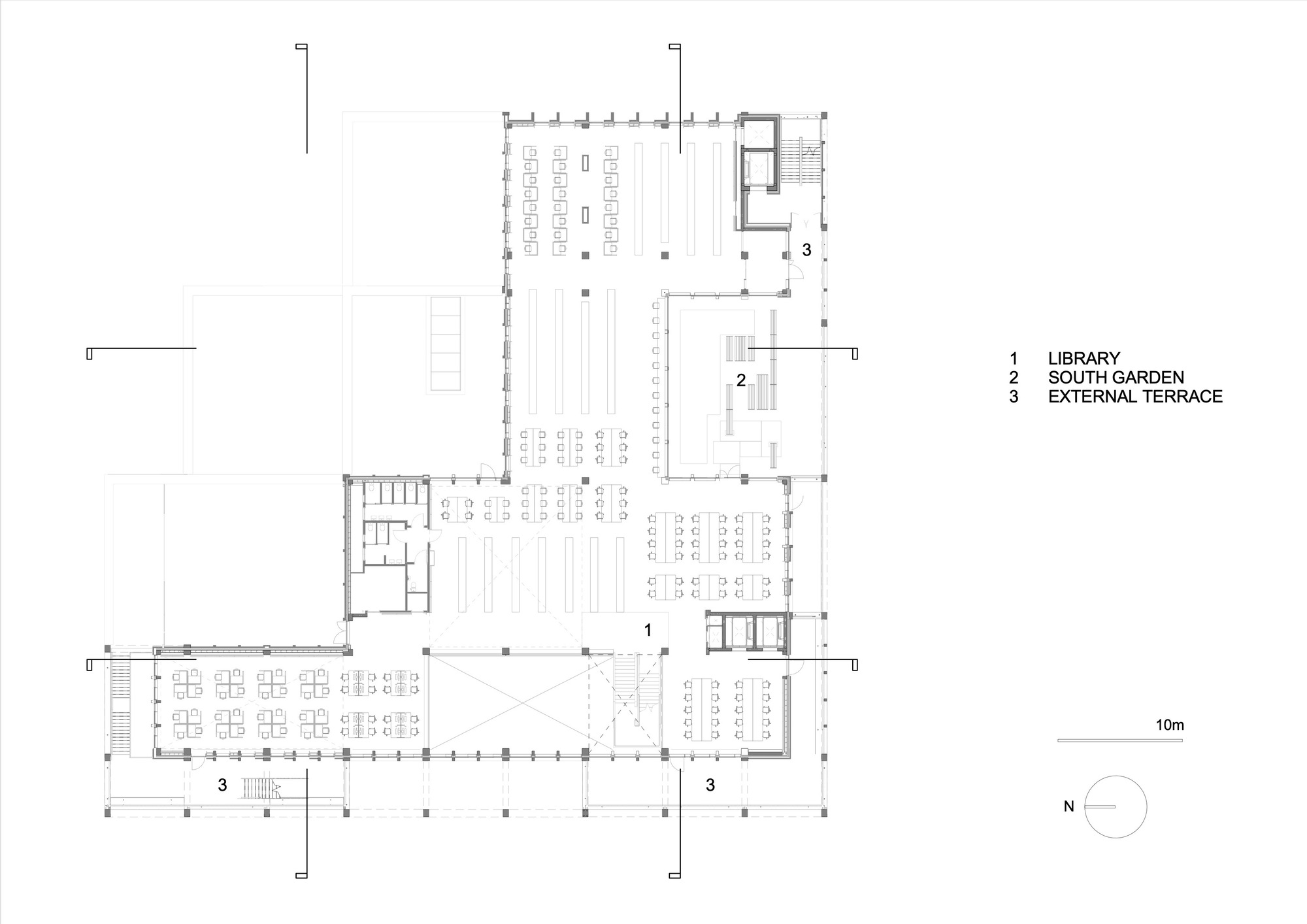
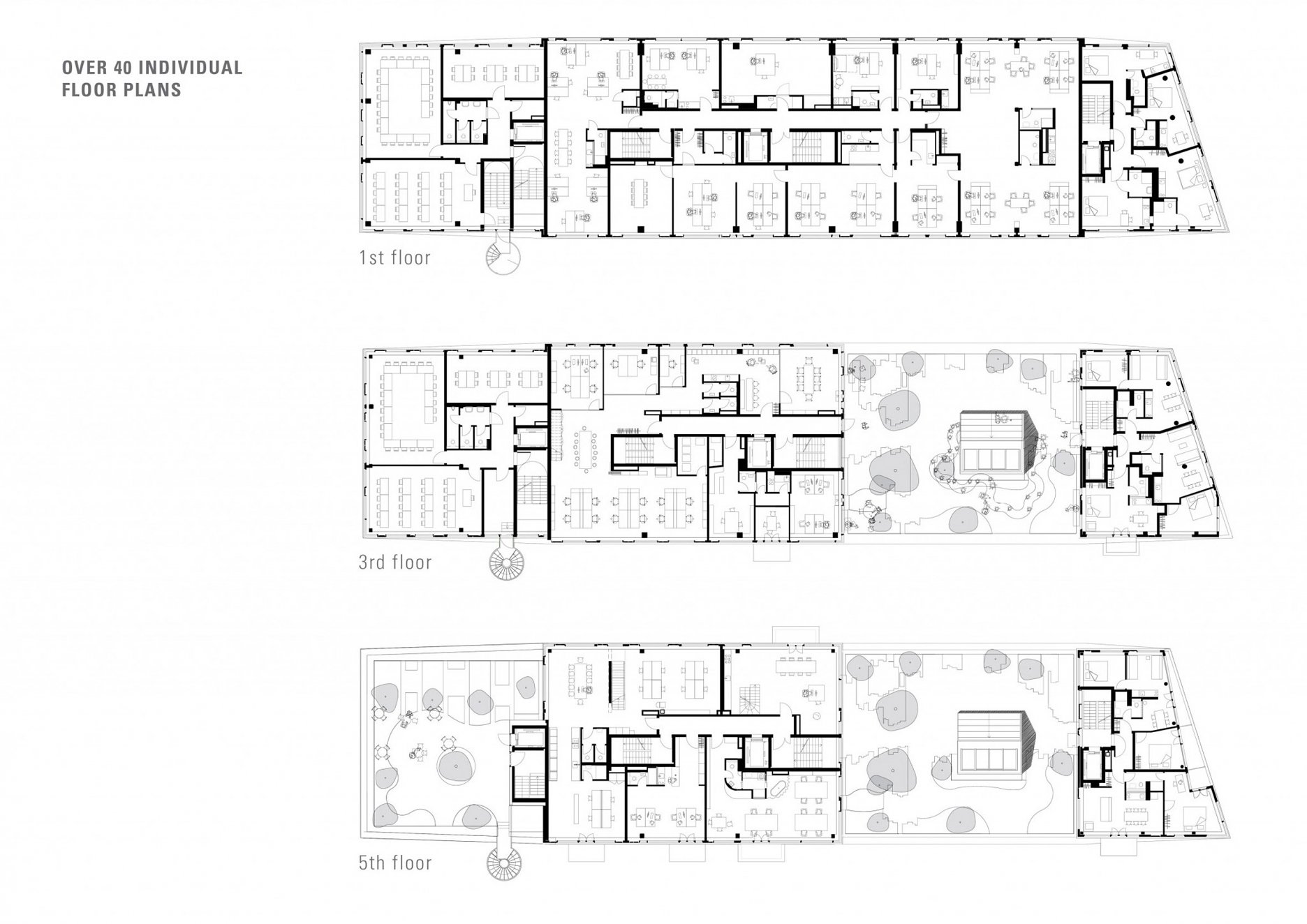
Nová univerzitná budova “Town house” je navrhnutá ako vstupná brána do kampusu Penrhyn Road. Okrem primárnej funkcie vzdelávacieho centra pre študentov, zamestnancov, absolventov a miestnu komunitu zastrešuje tiež široké spektrum kultúrnych podujatí. Flexibilné študijné priestory, hlavnú univerzitnú knižnicu, alebo študovne a archívy dopĺňajú napríklad tanečné ateliéry, kryté nádvorie s amfiteátrovým sedením, štúdiové divadlo, či dvojica kaviarní.
Matica vzájomne prepojených priestorov sa fyzicky a vizuálne prelína. Študenti, návštevníci a zamestnanci sa stávajú súčasťou prepojeného celku. Pokojné zóny zároveň vytvárajú priestor pre sústredenú prácu a štúdium. Koncept otvoreného prostredia reflektuje architektonické riešenie aj smerom do exteriéru. Najmä v nočných hodinách možno vnímať z ulice život v budove.
V súčte viac ako 50 percent plochy podlaží tvoria galérie. Priestorový koncept môžeme vnímať už vo foyer, cez ktoré plynie schodisko, ako otvorená spojnica medzi dianím v celej budove. Kaskádovo prepojené terasy na vonkajšom obvode fasády umožňujú voľný pohyb v exteriéri. Od úrovne terénu, až po rozsiahlu strešnú krajinu.
Podlažia pri stúpaní po vertikále postupne ustupujú. Na najvyšších podlažiach sa otvárajú výhľady na mesto, Temžu a a neďaleký Hampton Court.
Raster skeletu určuje štandardný modul prefabrikovaných prvkov. Surové povrchy stĺpov a trámov, nesúcich exponované rebrové dosky sú v interiéri zároveň finálnymi pohľadovými vrstvami. Nosnosť podláh zohľadňuje flexibilný priestorový koncept a možnosť budúcich zmien. Profilovaný prierez stropných dosiek umožnil jednoduchú integráciu systému stropného chladenia a akustických panelov všade tam, kde je to potrebné.
Systém predsadených terás nesie vonkajší rám, pozostávajúca tiež z prefabrikovaných segmentov. Za kolonádou z betónu s prímesou kameňa, ktorá čerpá inšpiráciu na fasáde neďalekej radnice, prebieha v druhom pláne tehlová bohato perforovaná obálka s betónovými rebrami, tehlovým obkladom a hliníkovými rámami zasklenia.
Slovensko medzi finalistami nemalo zastúpenie. Rovnako ani v shortliste 40 najlepších európskych stavieb, z ktorého porota vyberala finalistov (architektúru susedných krajín vo výbere sme predstavili v samostatnom článku). V prebiehajúcom ročníku Ceny Európskej únie za súčasnú architektúru, ktorá je všeobecne považovaná za najprestížnejšie ocenenie za architektonickú tvorbu na starom kontinente, bolo celkovo nominovaných 532 prác zo 41 krajiín. Diela navrhli nezávislí odborníci, národné profesné organizácie a poradný výbor Ceny. Diela za Slovensko nominujú Slovenská komora architektov a dvaja nezávislí experti, menovaní Nadáciou Miesa van der Rohe: Henrieta Moravčíková a Štefan Moravčík (ARCHINFO).
Súťažnú prehliadku realizovaných stavieb organizuje Európska únia a Nadácia Mies van der Rohe v Barcelone od roku 1988. Do súťaže nie je možné prihlásiť sa. Výber je založený na nomináciách, ktoré vyberajú autority z jednotlivých krajín. "Odborná porota logicky nemôže navštíviť všetky navrhnuté stavby. Nominácie nevyberáme na základe fotografií, čo je inak štandardný postup. Za každým navrhnutým dielom je rešpektovaná inštitúcia (múzeum architektúry, komora architektov, výskumné inštitúcie) a odborník, ktorý stavbu osobne navštívil, má prehľad o lokálnom aj globálnom kontexte. Autority majú pri výbere absolútnu voľnosť," vysvetlil v rozhovore proces výberu koordinátor ceny Ivan Blasi. Finálová päťka je však výnimkou. Stavby porotcovia osobne navštívia. Nemajú teda k dispozícii len grafický materiál, ale môžu sa stretnúť s architektmi, klientmi, alebo užívateľmi, ktorí môžu ponúknuť novú perspektívu pohľadu na dielo... V samotnom finále následne porota určí jednu stavbu, ktorá získa Cenu Európskej únie za súčasnú architektúru. Okrem hlavnej ceny Nadácia Mies van der Rohe v Barcelone udeľuje každoročne aj cenu pre začínajúcich architektov - Emerging Architecture Prize.
Tradičný harmonogram bienálnej prehliadky výrazne poznačila koronakríza. Proces nominácií prvýkrát prebehol v dvoch kolách, vyhodnotenie ceny sa presúvalo z roku 2021 až na jar tohto roku.
Zvyšné štyri stavby vo finále:
85 jednotiek sociálneho bývania v katalánskom meste Cornellà de Llobregat (viac tu)
Autori: peris+toral.arquitectes
Realizácia barcelonského ateliéru Peris+Toral Arquitectes. Sociálne bývanie s 85 bytovými jednotkami, modulárnou drevenou konštrukciou a flexibilnými obytnými priestormi.
Využitie 543 miestností s výmerou 13 m2 definuje krátky modul s rozponom 3,60 m. Na oceľobetónovú konštrukciu prízemia nadväzuje prefabrikovaný systém z CLT panelov, vďaka ktorému sa podarilo optimalizovať objem drevených konštrukcií na 0,24 m3/m a náklady na 950 €/m2 podlahovej plochy.
Objekt s podlahovou plochou takmer 13 tisíc metrov štvorcových vyrástol na mieste bývalého kina v katalánskom meste Cornellà de Llobregat, ktoré je súčasťou juhozápadnej časti metropolitného územia Barcelony. Projekt vo finále EU Mies Award vznikol na základe víťazného návrhu v súťaži, ktorú v roku 2017 realizovala barcelonská verejná organizácia IMPSOL-AMB.
Projekt je podľa slov ateliéru najväčšou obytnou budovou s drevenou konštrukciou v Španielsku, postavenou z 8 300 metrov kubických lokálneho dreva.
“Drevo sme zvolili najmä kvôli možnosti prefabrikácie a skráteniu času realizácie. Nezanedbateľným plusom je tiež výrazné zníženie celkovej uhlíkovej stopy stavby,” vysvetľuje architekt José Manuel Toral.
Päť podlaží, realizovaných ako drevostavba z prefabrikovaných CLT modulov, stojí na oceľobetónovej podnoži, ktorá obsiahla obchody a občiansku vybavenosť.
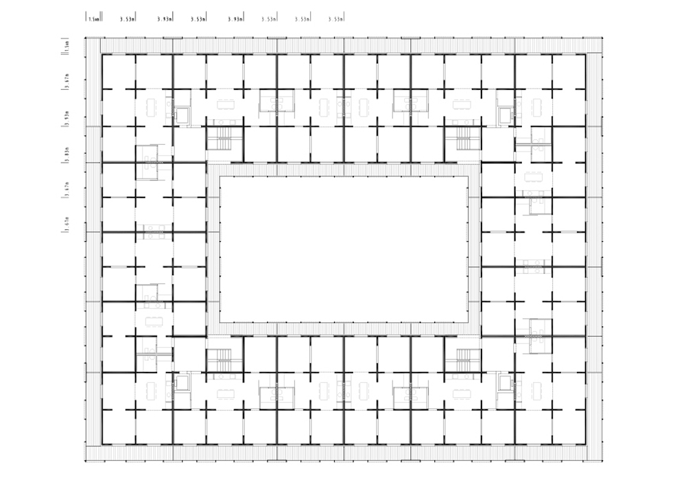
Stavba je usporiadaná okolo centrálneho nádvoria, ktoré slúži ako komunitný priestor pre obyvateľov. Vstupný portikus prepája centrálnu spoločnú zónu s verejným priestorom.
Snaha maximalizovať podlahovú plochu viedla k rozhodnutiu presunúť komunikácie na vnútorný obvod pôdorysu. Vnútorné chodby tak nahradili kryté terasy s nerušeným výhľadom do nádvoria.
Schody z masívneho dreva sú umiestnené v štyroch rohoch centrálneho nádvoria a prepájajú otvorené pavlače na každom poschodí.
Vstupné dvere do bytov sú integrované do stien obložených vlnitým plechom, ktorý vytvára jemný reliéf. Kovové pletivo, lemujúce terasy, nebráni priehľadom do nádvoria a na susedné pavlače.
Dispozícia, vychádzajúci z modulového rastra spojených miestností, sústreďuje obslužné priestory (vrátane kúpeľní a kuchýň) na vnútorný obvod pôdorysu.
Každý z bytov pozostáva z piatich alebo šiestich modulov, v závislosti od toho, či má dve alebo tri spálne. Otvorené kuchynské moduly nahrádzajú štandardné chodby. Ostatné miestnosti, nadväzujúce na centrálne priestory kuchyne, oddeľujú posuvné dvere.
Všetky byty majú preplávajúcu dispozíciu. Posuvné dvere prepájajú obytné priestory s druhou líniou terás na vonkajšom obvode fasád. Systém predsadených drevených roliet bráni prehrievaniu interiéru v letných mesiacoch.
“Práve zvolený modul, ktorý umožňuje flexibilné priestorové riešenie bytových jednotiek, vytvoril optimálne podmienky pre využitie prefabrikovaných drevených konštrukcií,” vysvetľujú architekti. Drevo sa objavuje ako pohľadová vrstva v interiéri na stropoch a podlahách.
Ateliér Peris+Toral Arquitectes vznikol v Barcelone v roku 2005. Sústredí sa predovšetkým na oblasti sociálneho bývania a verejného priestoru.
Frizz 23, Berlín (viac tu)
Autori: Deadline (Britta Jürgens + Matthew Griffin)
Frizz23 vznikol v úzkom dialógu architekta a klienta (skupiny mini-staviteľov) ako prvý nemecký kultúrny projekt využívajúci model Baugruppe.
Architekti Britta Jürgens a Matthew Griffin berlínskeho Deadline ateliéru upravili obvyklú schému a iniciovali participatívny proces pre vytvorenie pracovných priestorov pre umenie, vzdelávanie a kreatívny priemysel. Najprv zostavili skupinu okolo svojich programových cieľov. 32 malých spoločností a neziskových organizácií ohrozených rýchlou džentrifikáciou Berlína sa spojilo, aby si zabezpečili priestory pre svoje aktivity. Zoskupenie následne s projektom zvíťazilo v súťaži na predaj mestských pozemkov (zo 60 % rozhodoval predložený koncept a zo 40% ponúknutá cena). Architekti formovali výslednú prevádzkovú schému v úzkom dialógu s budúcimi užívateľmi. Každá z jednotiek je navrhnutá podľa špecifických požiadaviek klienta. Najmenšia má 23 m2, najväčšia 280 m2, niektoré z nich sú dvojpodlažné a trojpodlažné.
Novostavba vyrástla na pozemkoch, obklopujúcich bývalý kvetinový trh “Blumengrosmarkt“. Po roku 2008 začali veľkoobchod postupne nahrádzať kultúrne a umelecké aktivity. Zóna medzi Friedrichstrasse a Židovským múzeom sa stala domovom množstva umelcov, nezávislých kultúrnych a sociálnych inštitúcií, galérií, pop-up obchodov…
Projekt Frizz23 sa svojou bohatou programovou náplňou zapája do prostredia. Architekti vytvorili priestor pre organizácie zaoberajúce sa neziskovým vzdelávaním, malé kreatívne podniky a dočasné bývanie. Domov tu našlo spoločenstvo umelcov, hudobníkov, autorov, ilustrátorov, redakčných tímov… Taktiež dielne na opravu bicyklov, upcycling štúdiá a kolektívna galéria. Podľa slov autorov vzniklo životaschopné “mesto v meste”.
Priestorové usporiadanie definujú tri základné bloky. Celok pre organizáciu venujúcu sa neziskovému vzdelávaniu, blok pre inštitúcie z oblasti kreatívneho priemyslu, a štíhly trakt s loftovým bývaním. Všetky spomínané celky prepája verejne prístupný prevýšený parter so zalomenou stropnou doskou. Zvolené architektonické riešenie odkazuje na siluetu historickej tržnice, ktorá stála do roku 1953 na mieste aktuálnej stavby.
Edukačný blok na západnej strane budovy, orientovaný do Friedrichstrasse, zastrešuje seminárne miestnosti a priestory na podujatia rozložené na piatich poschodiach. Na východnej strane, orientovanej do malého námestia, sa na siedmych podlažiach nachádzajú loftové byty a kaviareň. Oba celky zvierajú centrálnu časť so spomínanou pestrou skladbou štúdií ateliérov a kancelárií. Od malých jednopodlažných jednotiek s výmerou 23 m2 až po trojposchodové živé pracovné priestory. Každý je prispôsobený individuálnym potrebám jeho majiteľov.
Stupňovitú siluetu stavby sceľuje jednotná fasáda, obložená latovaním s opaľovaného smrekovcového dreva. Pohľadovú vrstvu zo strany interiéru tvoria vo veľkej miere surové povrchy odhalených betónových monolitických konštrukcií. Nepravidelné usporiadanie okenných otvorov odráža rôznorodú funkčnú náplň.
"La Ferme du Rail", Paríž (viac tu)
Autori: Grand Huit a Melanie Drevet Paysagiste
La Ferme du Rail je prvým realizovaným projektom v rámci výzvy “Réinventer Paris“, ktorú francúzske hlavné mesto spustilo v roku 2014. Výzva pod záštitou nastupujúcej starostky Anne Hidalgovej hľadala nové využitie pre 23 vybraných lokalít v rámci mesta. Víťazné projekty vyhlásené v roku 2016, ktoré sú v súčasnosti v rôznych fázach realizácie spolu tvoria urbanistický experiment neobyčajného rozsahu.
Architekti Grand Huit and Melanie Drevet Paysagiste sa zamerali na revitalizáciu pozemku v mieste nevyužívanej železničnej trate “Petite Ceinture“, ktorá v minulosti obsluhovala tridsaťdva kilometrový vonkajší okruh mesta.
Kolobeh prevádzky farmy zahajuje zber a spracovanie organického odpadu, využívaného v permakultúrnych záhradách a skleníkoch. Sociálny rozmer projektu, zameraného na lokálne pestovanie ovocia a zeleniny je založený na práci s miestnou komunitou. Súčasťou ekosystému je tiež reštaurácia s ponukou produktov z farmy, 15 sociálnych reintegračných bytových jednotiek a päť sociálnych študentských bytov.
Projekt kladie tiež dôraz na vzdelávaciu funkciu a prezentovanie ekologických stavebných materiálov (drevostavba izolovaná slamou a opláštená neošetreným drevom). V rámci výskumnej časti projektu experimentovali autori s recyklovaným textilom, alebo na sucho kladenými múrmi (opätovne využitá dlažba z parížskych chodníkov)...
Za dva roky fungovania vyprodukovala farma viac ako 4 tony zeleniny, spracovala kompostovaním 20 ton odpadu a zamestnáva (vrátane reštaurácie) 23 ľudí, z toho 15 býva priamo na mieste.
Projekt Ferme du Rail sa zrodil z iniciatívy obyvateľov a miestnych združení. Spája mestské hospodárstvo otvorené pre všetkých so sociálnym rozmerom a podporou zraniteľných osôb.
Z33 - Dom súčasného umenia, dizajnu a architektúry, Belgicko (viac tu)
Autor: Francesca Torzo
Doplnenie historického komplexu hasseltskej bekináže vo flámskom meste Hasselt. Strohá dostavba, ktorá vznikla na základe architektonickej súťaže rozširuje budovu múzea z roku 1958. Slepá stena, orientovaná do ulice, reaguje na brutalistickú fasádu protiľahlej továrne na výrobu ginu. Protikladom je výrazne otvorené priečelie orientované do záhrady. Monolitickú uličnú fasádu, s dĺžkou 60 metrov a jedinou dilatačnou škárou v mieste zalomenia, tvorí 34 494 ručne vyrábaných tehál. Rozpočet na túto ambicióznu verejnú zákazku sa zmestil do čiastky 7 miliónov € za 4600 m2 (približne 1500 €/m2). Architekti aj preto od začiatku súťaže pracovali s podrobnými detailmi v mierke 1:20. 3 roky projektovania, 103 typov tehál, 68 testov ich farebnosti, rok trvajúca realizácia.
Historický komplex tvorí samostatný ostrov uprostred mestskej štruktúry. Záhradu obkolesuje eklektická hradba tehlových stavieb, medzi ktoré po novom patrí aj Dom pre súčasné umenie. Priestory orientované do zelenej záhrady vytvárajú svet izolovaný od ruchu centra mesta.
Belgická provincia Limburg zorganizovala bezprostredne po odkúpení pozemku susediaceho s priestormi historickej budovy múzea medzinárodnú súťaž. V prvom kole poslalo svoje portfólio 25 autorských kolektívov, z ktorých porota vybrala päticu najvhodnejších kandidátov. Tí následne predložili svoje návrhy. V druhom kole určila hodnotiaca komisia ako najkvalitnejší progresívny návrh janovského ateliéru francesca torzo architetto.
Architekti rozvoľneným pôdorysom nadväzujú na rastlú štruktúru bloku a využívajú dominantný materiál - pohľadovú pálenú tehlu. Tentokrát ale v neobvyklej forme, citujúcej podľa slov autorov rímsky opus reticulatum.
Výstavný priestor plynie na dvoch výškových úrovniach definovaných historickou budovou múzea. Monumentálny vstup sprístupňuje prízemie na úrovni ulice. Monolitická stenová konštrukcia nesie neštandardné stropy s diamantovými poliami, odlievané in situ. Nepravidelné segmenty elegantne integrujú výduchy klimatizácie. Nepravidelné výstavné priestory, ktoré sa navzájom líšia priestorovou a svetelnou atmosférou ponúkajú rôzne pohľady a priehľady do zeleného vnútrobloku.