Okenné profily z kompozitného materiálu RAU-FIPRO X od spoločnosti Rehau sú v porovnaní s tradičnými plastovými profilmi mnohonásobne...
Najnovší sortiment stolov pre zariadenie interiérov...
Spojenie moderného dizajnu, funkčnosti a svetla do harmonického architektonického prvku.
Kancelárska budova Baumit v slovinskom Trzine prešla premenou na moderné a udržateľné pracovisko. Architekti kládli dôraz...
Mottom šiesteho ročníku on-line konferencie odborníkov Xella Dialóg je Efektívny návrh budov 2025+: zmeny a riešenia
Robot WLTR predstavuje moderný prístup k murovaným konštrukciám. Vďaka automatizácii dokáže rýchlo, presne a bezpečne realizovať...
Okrem bezpečnosti majú okná aj elegantný vzhľad, pretože nie sú viditeľné žiadne uzamykacie časti kovania.
Dvere MASTER v skrytej zárubni AKTIVE je možné vyrobiť až do výšky 3 700 mm
Internorm stavia na energetickú efektívnosť a inteligentné tieniace riešenia.
Pohľad na moderné prístupy k výrobe s dôrazom na udržateľnosť.
Slovensko vo výbere zastupuje šesť realizácií.
Spoločnosť Internorm odteraz stavia na novej variante tepelnoizolačného skla od AGC, ktorá v produkcii ročne ušetrí 10...
Jubilejný 20. ročník prestížnej medzinárodnej súťaže pre študentov architektúry priniesol...
Otočné a posuvné dvere MASTER od podlahy až po strop, ponúkajú mimoriadnu variabilitu výšky, materiálu a zladenia so skrytými...
Predstavené produkty, spájajú premyslený dizajn, funkčnosť a udržateľnosť. Nábytok Materia vzniká s cieľom podporiť inšpiratívne stretnutia...

V sérii článkov predstavujeme finalistov EU mies award 2022. Dnes priblížime realizáciu ateliéru francesca torzo architetto.
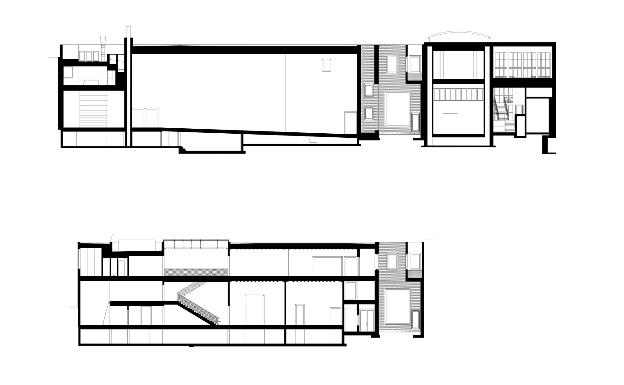
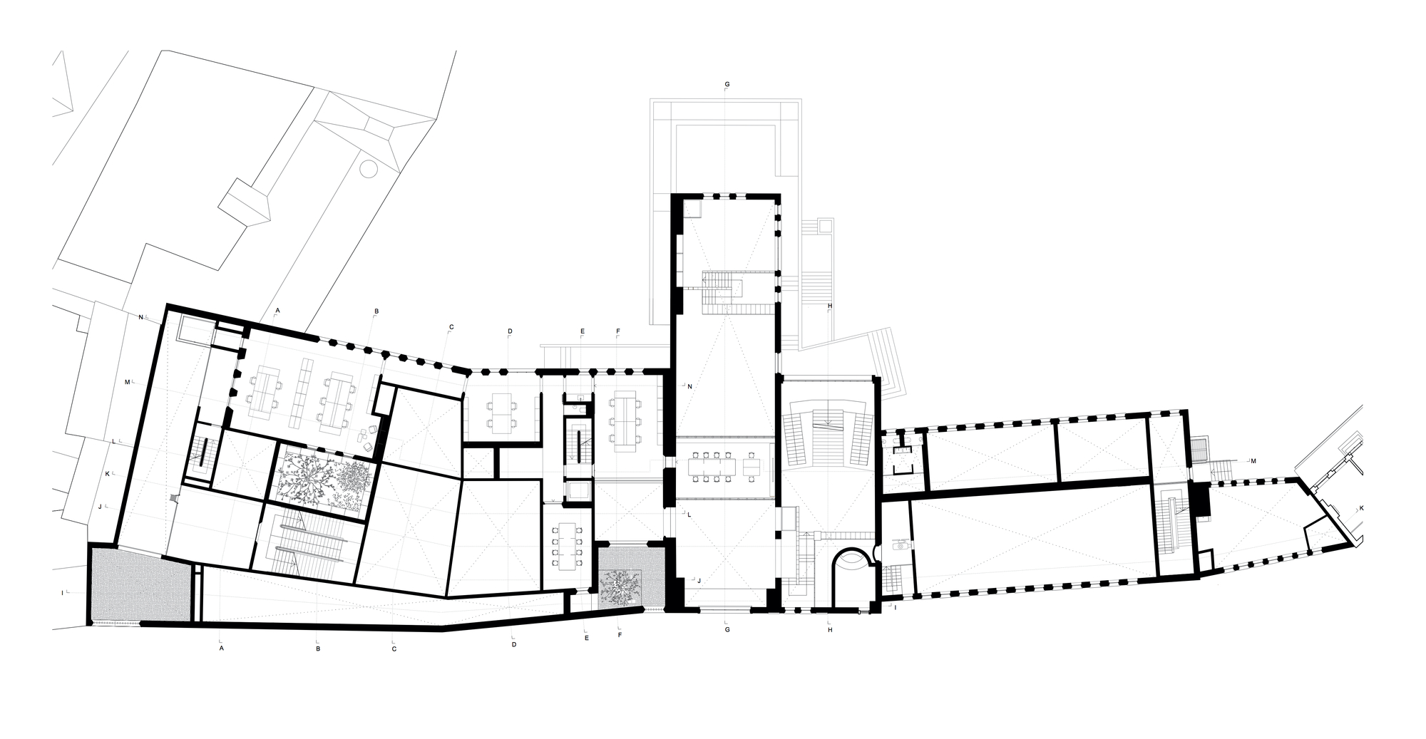
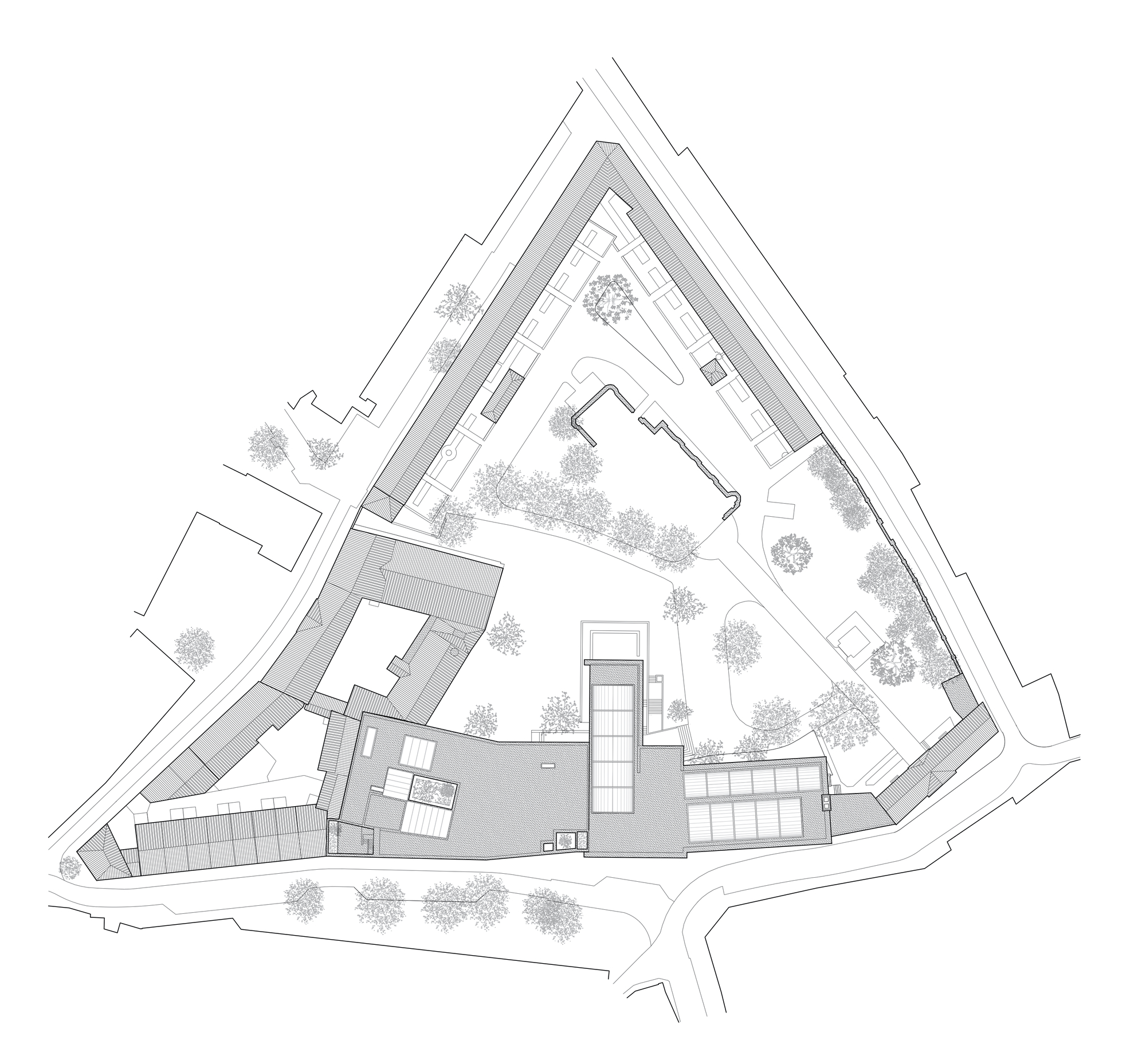
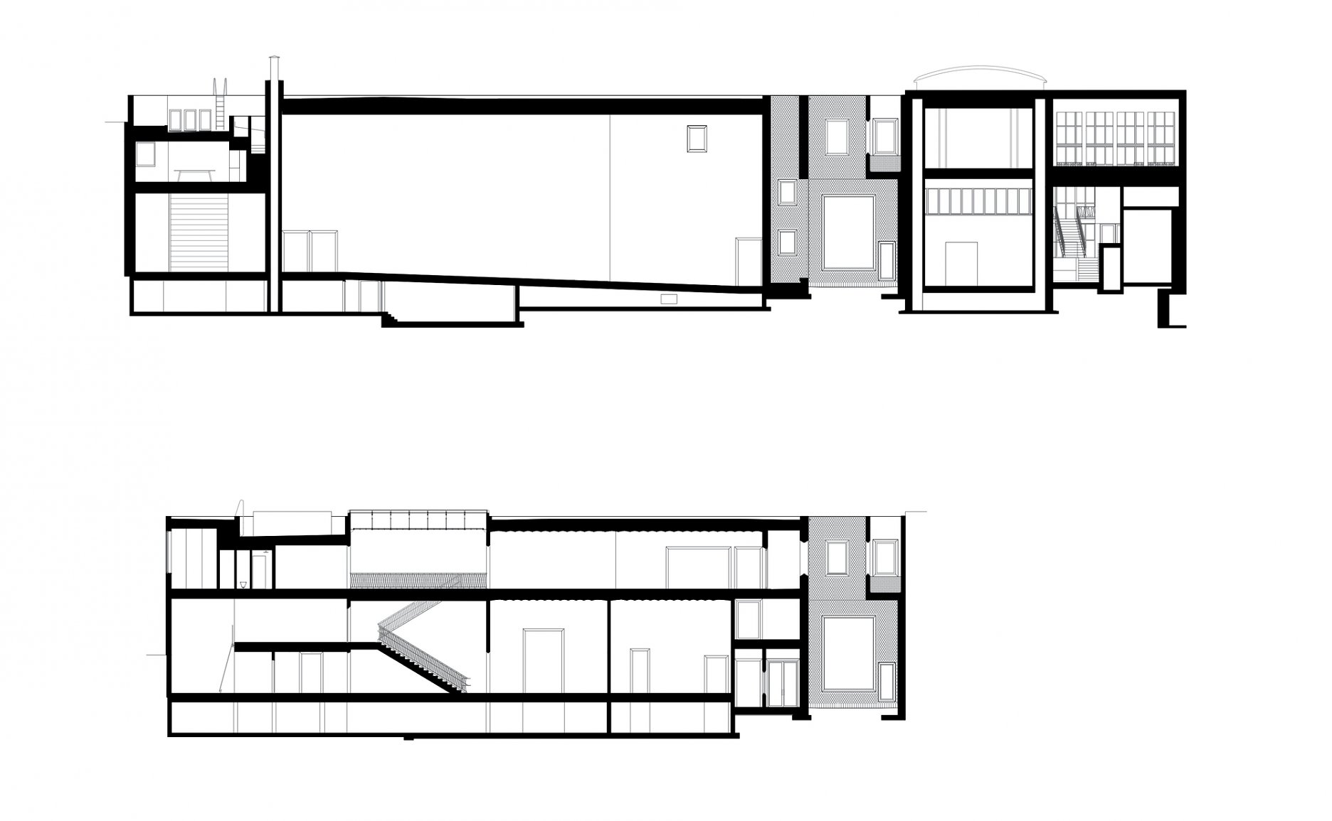
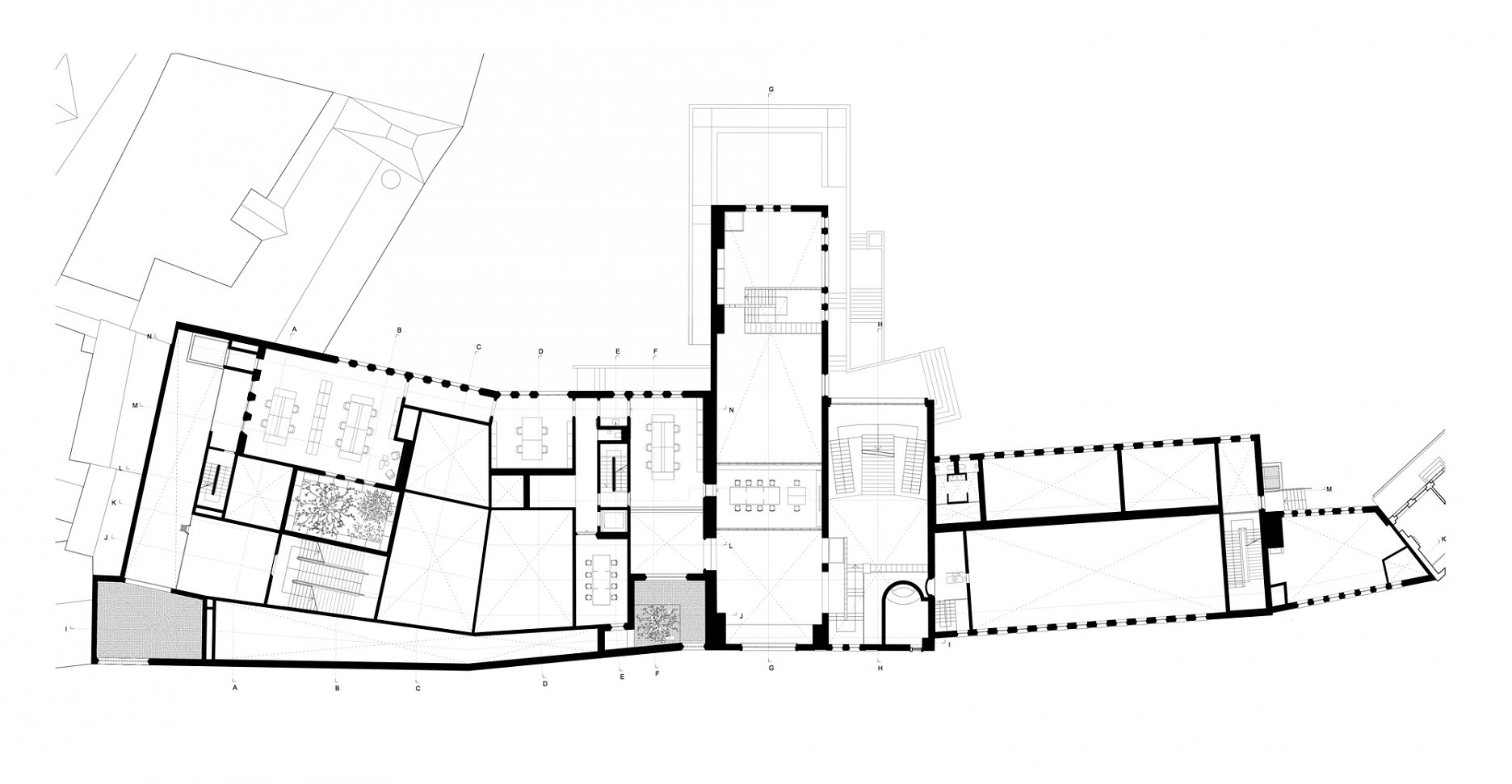
Doplnenie historického komplexu hasseltskej bekináže vo flámskom meste Hasselt. Strohá dostavba, ktorá vznikla na základe architektonickej súťaže rozširuje budovu múzea z roku 1958. Slepá stena, orientovaná do ulice, reaguje na brutalistickú fasádu protiľahlej továrne na výrobu ginu. Protikladom je výrazne otvorené priečelie orientované do záhrady. Monolitickú uličnú fasádu, s dĺžkou 60 metrov a jedinou dilatačnou škárou v mieste zalomenia, tvorí 34 494 ručne vyrábaných tehál. Rozpočet na túto ambicióznu verejnú zákazku sa zmestil do čiastky 7 miliónov € za 4600 m2 (približne 1500 €/m2). Architekti aj preto od začiatku súťaže pracovali s podrobnými detailmi v mierke 1:20. 3 roky projektovania, 103 typov tehál, 68 testov ich farebnosti, rok trvajúca realizácia.
Historický komplex tvorí samostatný ostrov uprostred mestskej štruktúry. Záhradu obkolesuje eklektická hradba tehlových stavieb, medzi ktoré po novom patrí aj Dom pre súčasné umenie. Priestory orientované do zelenej záhrady vytvárajú svet izolovaný od ruchu centra mesta.
Belgická provincia Limburg zorganizovala bezprostredne po odkúpení pozemku susediaceho s priestormi historickej budovy múzea medzinárodnú súťaž. V prvom kole poslalo svoje portfólio 25 autorských kolektívov, z ktorých porota vybrala päticu najvhodnejších kandidátov. Tí následne predložili svoje návrhy. V druhom kole určila hodnotiaca komisia ako najkvalitnejší progresívny návrh janovského ateliéru francesca torzo architetto.
Architekti rozvoľneným pôdorysom nadväzujú na rastlú štruktúru bloku a využívajú dominantný materiál - pohľadovú pálenú tehlu. Tentokrát ale v neobvyklej forme, citujúcej podľa slov autorov rímsky opus reticulatum.
Výstavný priestor plynie na dvoch výškových úrovniach definovaných historickou budovou múzea. Monumentálny vstup sprístupňuje prízemie na úrovni ulice. Monolitická stenová konštrukcia nesie neštandardné stropy s diamantovými poliami, odlievané in situ. Nepravidelné segmenty elegantne integrujú výduchy klimatizácie. Nepravidelné výstavné priestory, ktoré sa navzájom líšia priestorovou a svetelnou atmosférou ponúkajú rôzne pohľady a priehľady do zeleného vnútrobloku.
Autor: francesca torzo architetto