Advertorial

Pozvánka na 2. ročník stavebného veľtrhu BigMarket na Slovensku

Na podujatí sa predstaví až 37 vystavovateľov - popredných dodávateľov stavebných materiálov a inovácií s prezentáciou...

Hotel Hirschen Spa House, Rakúsko

Novotvar v prostredí alpskej obce.

Vytvorte si kúpeľňu snov: dizajnové riešenie od značky hansgrohe

Hansgrohe - prémiová značka kúpeľňových riešení, ponúka nadčasový dizajn, technickú precíznosť a udržateľné inovácie...

Okná Internorm za minuloročné ceny + hliníkový kryt zdarma!

Využite špeciálnu akciu Internorm: okná za minuloročné ceny a hliníkový kryt úplne zadarmo. Ponuka je časovo obmedzená!

Moderné plynové technológie: Efektivita a inovácie pre 21. storočie

Sumarizácia najdôležitejších inovácií, ktoré redefinujúcich využitie tohto energetického zdroja.

Utesňovanie spodných stavieb pomocou hydro-aktívnej fólie AMPHIBIA.

AMPHIBIA 3000 GRIP 1.3 od spoločnosti ATRO predstavuje modernú hydroizolačnú technológiu, ktorá spája vysokú odolnosť,...

Dekarbonizácia individuálneho vykurovania domácností – Green Deal evolučne a nie revolučne

Ambiciózne plány EK narazili na ekonomické možnosti domácností v jednotlivých členských štátoch –...

Minimalistické dvere IDEA – technická precíznosť a čistota prevedenia

IDEA DOOR od spoločnosti JAP prináša do interiéru čistý minimalistický vzhľad vďaka bezrámovému riešeniu a precíznej...

Dom s výhľadom na údolie, Dlouhý Most (ČR)

Kontinuita riešenia od vonkajšieho obkladu až po kovania a kľučky.

Schell Vitus – osvedčené riešenie pre sprchy a umývadlá vo verejnom sektore s viac ako desaťročnou tradíciou

Nástenné nadomietkové armatúry Vitus sú mimoriadne vhodné pre rýchlu a efektívnu...

Kompozitné okná predstavujú súčasnosť a budúcnosť

Okenné profily z kompozitného materiálu RAU-FIPRO X od spoločnosti Rehau sú v porovnaní s tradičnými plastovými profilmi mnohonásobne...

Myotis - stoly 2025

Najnovší sortiment stolov pre zariadenie interiérov...

Priemyselné sklenené priečky Dorsis Digero: svetelné rozhranie pre moderné interiéry

Spojenie moderného dizajnu, funkčnosti a svetla do harmonického architektonického prvku.

Význam prirodzeného svetla pre moderné a flexibilné pracovné prostredie

Kancelárska budova Baumit v slovinskom Trzine prešla premenou na moderné a udržateľné pracovisko. Architekti kládli dôraz...

Konferencia Xella Dialóg predstaví novinky a trendy v stavebníctve

Mottom šiesteho ročníku on-line konferencie odborníkov Xella Dialóg je Efektívny návrh budov 2025+: zmeny a riešenia

Frizz23, Berlín

Prvý nemecký kultúrny projekt využívajúci model Baugruppe.
Diela
Red 327.03.2022
9200+16
Frizz23, Berlín
Autori: Britta Jürgens, Matthew GriffinInvestor: Forum Berufsbildung e.V., FrizzZwanzig GbR, Miniloft Kreuzberg GbRZastavaná plocha: 2500 m2Podlažná plocha: 9324 m2Investičný náklad: 1636 €/m2Návrh: 2008 - 2016Realizácia: 2016 - 2018Adresa: Friedrichstraße 23a, Berlín, NemeckoPublikované: 27. marec 2022

Už v apríli bude známy laureát Ceny Európskej únie za súčasnú architektúru - EU mies award 2022. Dnes predstavíme posledného z pätice finalistov - realizáciu z Berlína, ktorá zastrešila inštitúcie z oblastí neziskového vzdelávania a kreatívneho priemyslu.

Frizz23 vznikol v úzkom dialógu architekta a klienta (skupiny mini-staviteľov) ako prvý nemecký kultúrny projekt využívajúci model Baugruppe. Architekti Britta Jürgens a Matthew Griffin berlínskeho ateliéru Deadline  upravili obvyklú schému a iniciovali participatívny proces pre vytvorenie pracovných priestorov pre umenie, vzdelávanie a kreatívny priemysel. Najprv zostavili skupinu okolo svojich programových cieľov. 32 malých spoločností a neziskových organizácií ohrozených rýchlou džentrifikáciou Berlína sa spojilo, aby si zabezpečili priestory pre svoje aktivity. Zoskupenie následne s projektom zvíťazilo v súťaži na predaj mestských pozemkov (zo 60 % rozhodoval predložený koncept a zo 40% ponúknutá cena). Architekti formovali výslednú prevádzkovú schému v úzkom dialógu s budúcimi užívateľmi. Každá z jednotiek je navrhnutá podľa špecifických požiadaviek klienta. Najmenšia má 23 m2, najväčšia 280 m2, niektoré z nich sú dvojpodlažné a trojpodlažné.

Participatívny proces
Participatívny procesAutor: Deadline

Novostavba vyrástla na pozemkoch, obklopujúcich bývalý kvetinový trh “Blumengrosmarkt“. Po roku 2008 začali veľkoobchod postupne nahrádzať kultúrne a umelecké aktivity. Zóna medzi Friedrichstrasse a Židovským múzeom sa stala domovom množstva umelcov, nezávislých kultúrnych a sociálnych inštitúcií, galérií, pop-up obchodov…

Projekt Frizz23 sa svojou bohatou programovou náplňou zapája do prostredia. Architekti vytvorili priestor pre organizácie zaoberajúce sa neziskovým vzdelávaním, malé kreatívne podniky a dočasné bývanie. Domov tu našlo spoločenstvo umelcov, hudobníkov, autorov, ilustrátorov, redakčných tímov… Taktiež dielne na opravu bicyklov, upcycling štúdiá a kolektívna galéria. Podľa slov autorov vzniklo životaschopné “mesto v meste”.

Situácia
SituáciaAutor: Deadline

Priestorové usporiadanie definujú tri základné bloky. Celok pre organizáciu venujúcu sa neziskovému vzdelávaniu, blok pre inštitúcie z oblasti kreatívneho priemyslu, a štíhly trakt s loftovým bývaním. Všetky spomínané celky prepája verejne prístupný prevýšený parter so zalomenou stropnou doskou. Zvolené architektonické riešenie odkazuje na siluetu historickej tržnice, ktorá stála do roku 1953 na mieste aktuálnej stavby.

Priestorové usporiadanie - rez
Priestorové usporiadanie - rezAutor: Deadline
Priestorové usporiadanie - axonometria
Priestorové usporiadanie - axonometriaAutor: Deadline

Edukačný blok na západnej strane budovy, orientovaný do Friedrichstrasse, zastrešuje seminárne miestnosti a priestory na podujatia rozložené na piatich poschodiach. Na východnej strane, orientovanej do malého námestia, sa na siedmych podlažiach nachádzajú loftové byty a kaviareň. Oba celky zvierajú centrálnu časť so spomínanou pestrou skladbou štúdií ateliérov a kancelárií. Od malých jednopodlažných jednotiek s výmerou 23 m2 až po trojposchodové živé pracovné priestory. Každý je prispôsobený individuálnym potrebám jeho majiteľov.

Priestorová schéma
Priestorová schémaAutor: Deadline
Pôdorys peízemia
Pôdorys peízemiaAutor: Deadline
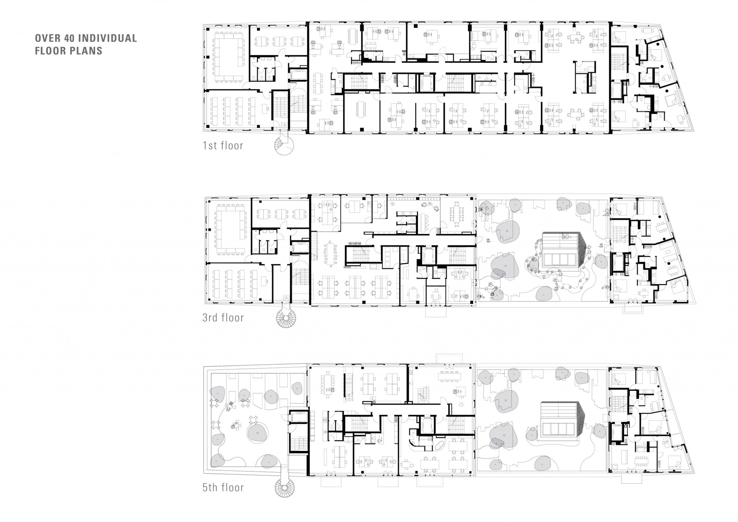
Pôdorysy poschodí
Pôdorysy poschodíAutor: Deadline
Pozdĺžny rez
Pozdĺžny rezAutor: Deadline

Stupňovitú siluetu stavby sceľuje jednotná fasáda, obložená latovaním s opaľovaného smrekovcového dreva. Pohľadovú vrstvu zo strany interiéru tvoria vo veľkej miere surové  povrchy odhalených betónových monolitických konštrukcií. Nepravidelné usporiadanie okenných otvorov odráža rôznorodú funkčnú náplň. 

Poloha diela

Britta Jürgens
Matthew Griffin

Súvisiace články

Vložené
22. február 2022
0
920
Hlavný obsahHlavný obsah
Čakajte prosím