Advertorial

Pozvánka na 2. ročník stavebného veľtrhu BigMarket na Slovensku

Na podujatí sa predstaví až 37 vystavovateľov - popredných dodávateľov stavebných materiálov a inovácií s prezentáciou...

Hotel Hirschen Spa House, Rakúsko

Novotvar v prostredí alpskej obce.

Vytvorte si kúpeľňu snov: dizajnové riešenie od značky hansgrohe

Hansgrohe - prémiová značka kúpeľňových riešení, ponúka nadčasový dizajn, technickú precíznosť a udržateľné inovácie...

Okná Internorm za minuloročné ceny + hliníkový kryt zdarma!

Využite špeciálnu akciu Internorm: okná za minuloročné ceny a hliníkový kryt úplne zadarmo. Ponuka je časovo obmedzená!

Moderné plynové technológie: Efektivita a inovácie pre 21. storočie

Sumarizácia najdôležitejších inovácií, ktoré redefinujúcich využitie tohto energetického zdroja.

Utesňovanie spodných stavieb pomocou hydro-aktívnej fólie AMPHIBIA.

AMPHIBIA 3000 GRIP 1.3 od spoločnosti ATRO predstavuje modernú hydroizolačnú technológiu, ktorá spája vysokú odolnosť,...

Dekarbonizácia individuálneho vykurovania domácností – Green Deal evolučne a nie revolučne

Ambiciózne plány EK narazili na ekonomické možnosti domácností v jednotlivých členských štátoch –...

Minimalistické dvere IDEA – technická precíznosť a čistota prevedenia

IDEA DOOR od spoločnosti JAP prináša do interiéru čistý minimalistický vzhľad vďaka bezrámovému riešeniu a precíznej...

Dom s výhľadom na údolie, Dlouhý Most (ČR)

Kontinuita riešenia od vonkajšieho obkladu až po kovania a kľučky.

Schell Vitus – osvedčené riešenie pre sprchy a umývadlá vo verejnom sektore s viac ako desaťročnou tradíciou

Nástenné nadomietkové armatúry Vitus sú mimoriadne vhodné pre rýchlu a efektívnu...

Kompozitné okná predstavujú súčasnosť a budúcnosť

Okenné profily z kompozitného materiálu RAU-FIPRO X od spoločnosti Rehau sú v porovnaní s tradičnými plastovými profilmi mnohonásobne...

Myotis - stoly 2025

Najnovší sortiment stolov pre zariadenie interiérov...

Priemyselné sklenené priečky Dorsis Digero: svetelné rozhranie pre moderné interiéry

Spojenie moderného dizajnu, funkčnosti a svetla do harmonického architektonického prvku.

Význam prirodzeného svetla pre moderné a flexibilné pracovné prostredie

Kancelárska budova Baumit v slovinskom Trzine prešla premenou na moderné a udržateľné pracovisko. Architekti kládli dôraz...

Konferencia Xella Dialóg predstaví novinky a trendy v stavebníctve

Mottom šiesteho ročníku on-line konferencie odborníkov Xella Dialóg je Efektívny návrh budov 2025+: zmeny a riešenia

Town House Kingston University, Kingston upon Thames, Spojené kráľovstvo

Vzdelanie a kultúra ako pevná súčasť života mesta.
Diela
Red 324.03.2022
9030+20
Town House Kingston University, Kingston upon Thames, Spojené kráľovstvo
Autori: Shelley McNamara, Yvonne Farrell, Ger Carty, Philippe O´Sullivan, Matt McCullagh, Joanne Lyons, James Rossa O´Hare, Jamie Conway, Shane Twohig, Leah Hogan, Darren Monahan, Eibhlín Ní Chathasaigh, Paul Durcan, Edwin Jebb, Michael StackInvestor: Kingston UniversityZastavaná plocha: 7800 m2Podlažná plocha: 9056 m2Investičný náklad: 5267 €/m2Návrh: 2015 - 2017Realizácia: 2017 - 2019Adresa: Penrhyn Rd KT1 2EQ, Kingston upon Thames, Spojené kráľovstvoPublikované: 24. marec 2022

Už v apríli bude známy laureát Ceny Európskej únie za súčasnú architektúru - EU mies award 2022. V sérii článkov postupne predstavujeme päticu finalistovDnes priblížime realizáciu ateliéru laureátiek Pritzkerovej ceny Yvonne Farrell a Shelley McNamara. “Town house” je vstupnou bránou do kampusu Kingston University v štyridsaťtisícovom meste Kingston upon Thames. 

Základný priestorový a vizuálny rámec, ktorý podlieha snahe o vytvorenie inkluzívneho priestoru pre vzdelanie a sociálnu interakciu, definuje skelet z prefabrikovaných oceľobetónových prvkov. Zvolený konštrukčný systém umožňuje maximálne otvoriť dispozíciu a formovať priestor vo vertikálnej osi.

Foto: Ed Reeve
Foto: Ed Reeve

Írske architektky a pedagogičky Yvonne Farrell (1951) a Shelley McNamara (1952) vedú v Dubline spoločný ateliér Grafton Architects už viac ako 40 rokov. Architektky sa môžu pochváliť širokým portfóliom, z ktorého do popredia vystupujú práve veľké kultúrne a školské budovy (napríklad v medzinárodnom kontexte oceňovaná univerzita Luigi Bocconi v Miláne, alebo kampus v Lime). 

Aktuálna realizácia v juhozápadnej aglomerácii Londýna, s rozpočtom 50 miliónov libier (5267 €/m2) vznikla na základe vyzvanej architektonickej súťaže. Kingston University v spolupráci s Royal Institute of British Architects (RIBA) určili z päťčlenného užšieho výberu ako víťazný koncept Grafton Architects.

Foto: Dennis Gilbert
Foto: Ed Reeve
Foto: Ed Reeve
Foto: Ed Reeve
Foto: Dennis Gilbert
Foto: Ed Reeve
Foto: Ed Reeve
Situácia
SituáciaAutor: Grafton Architects

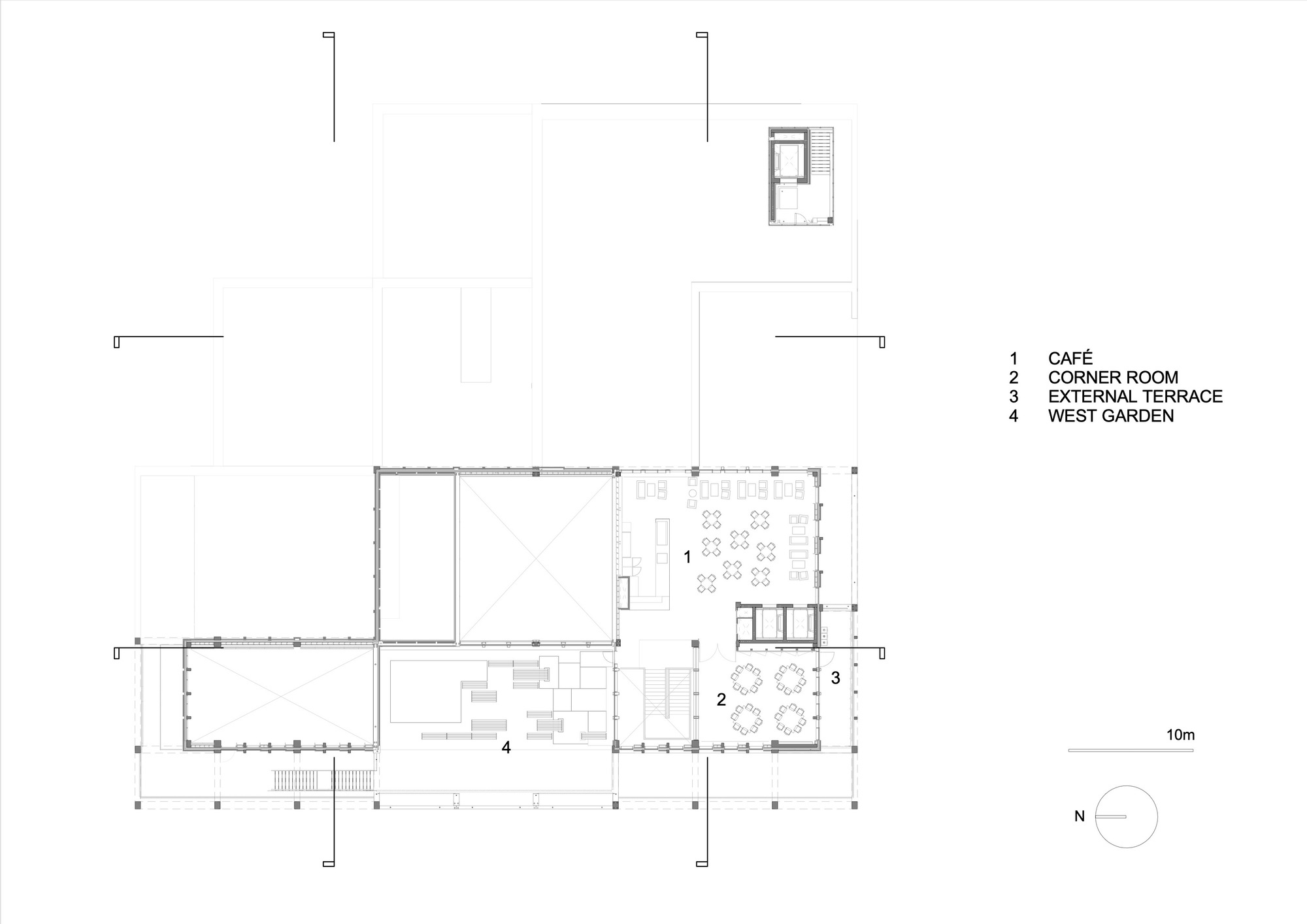
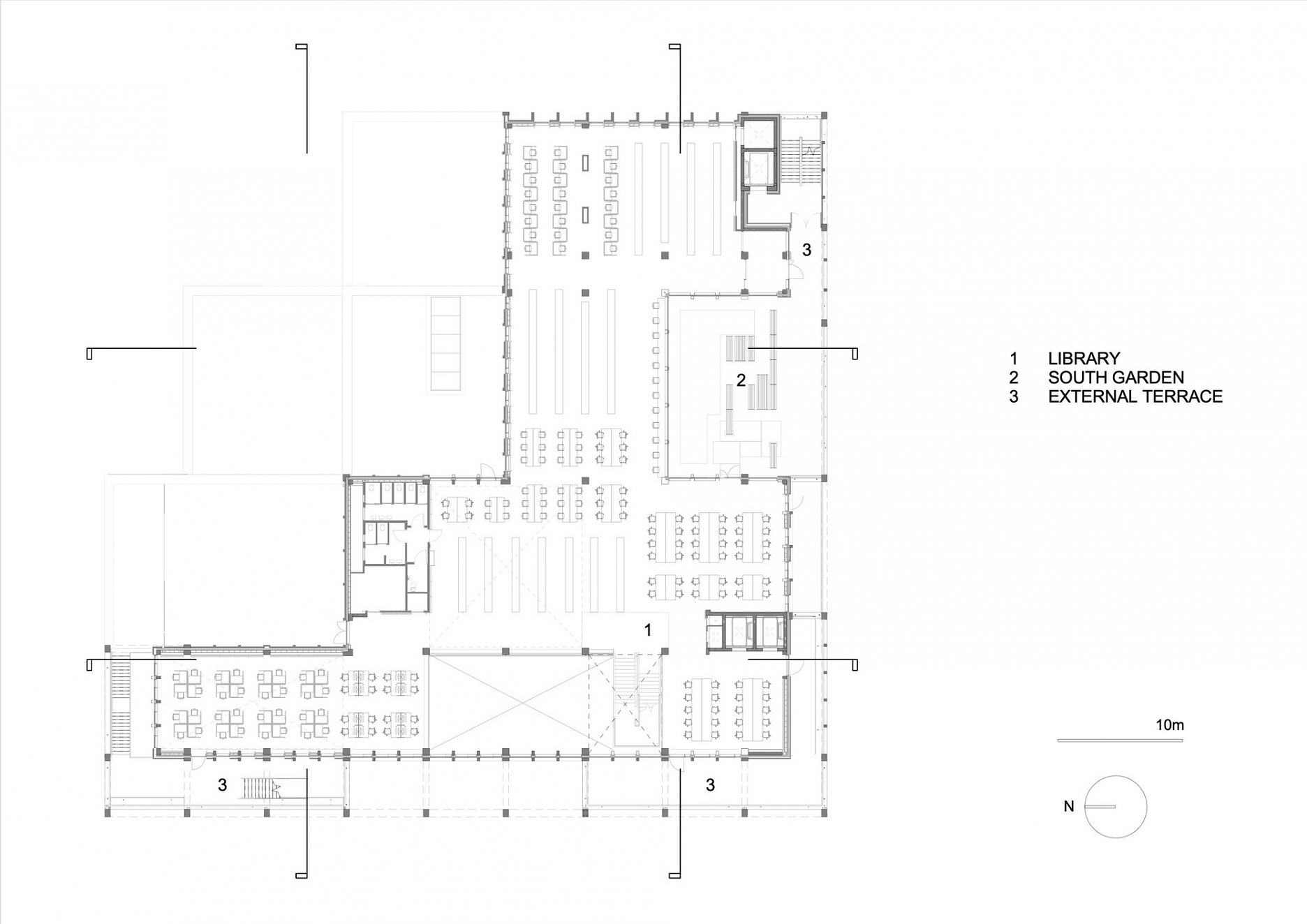
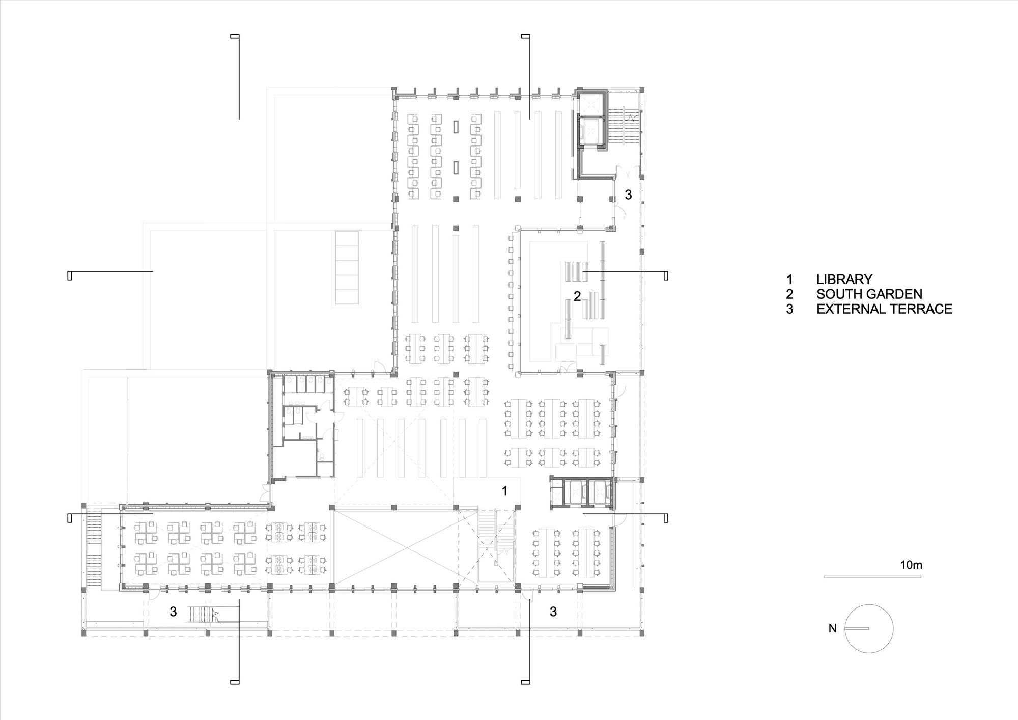
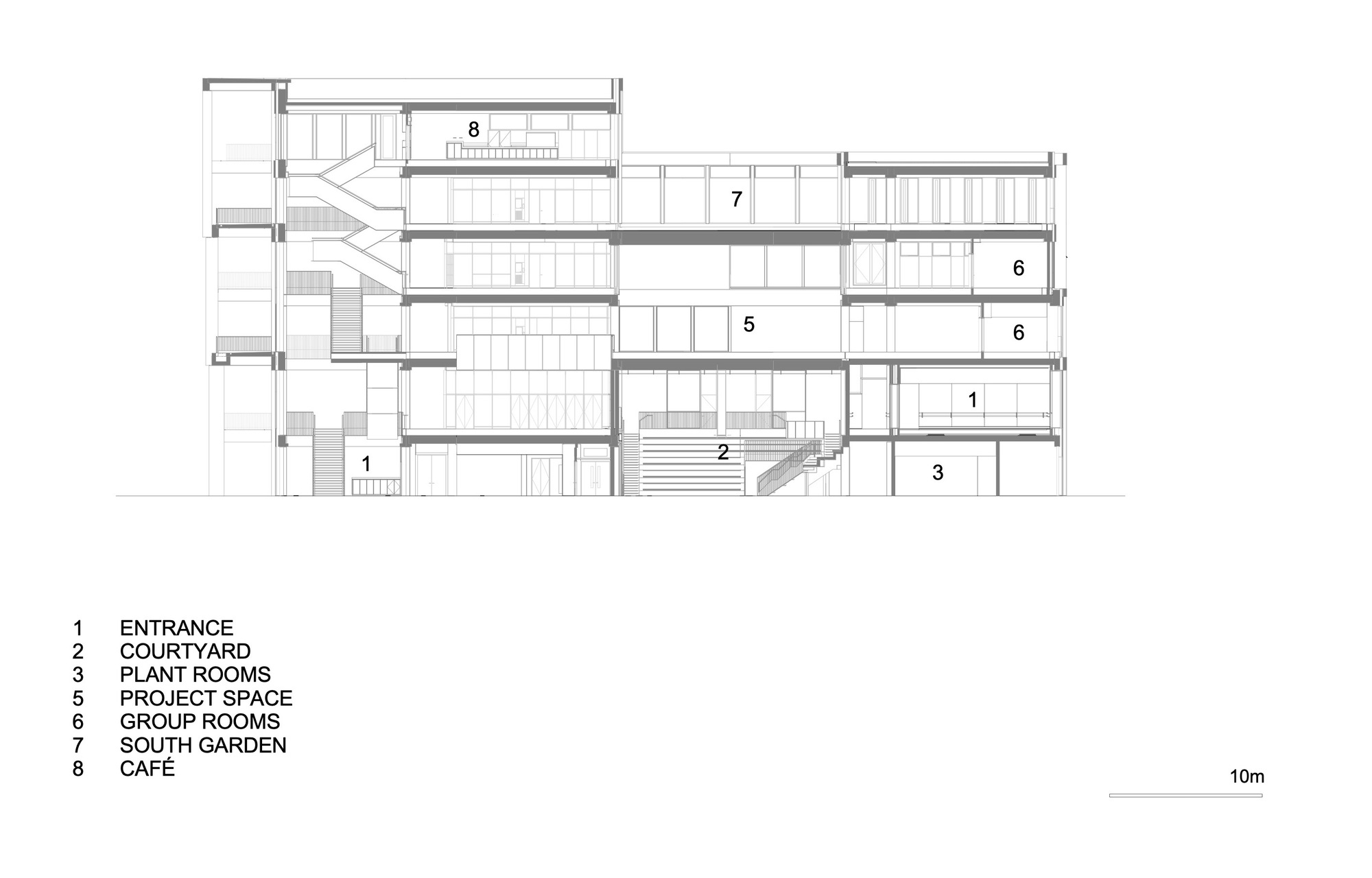
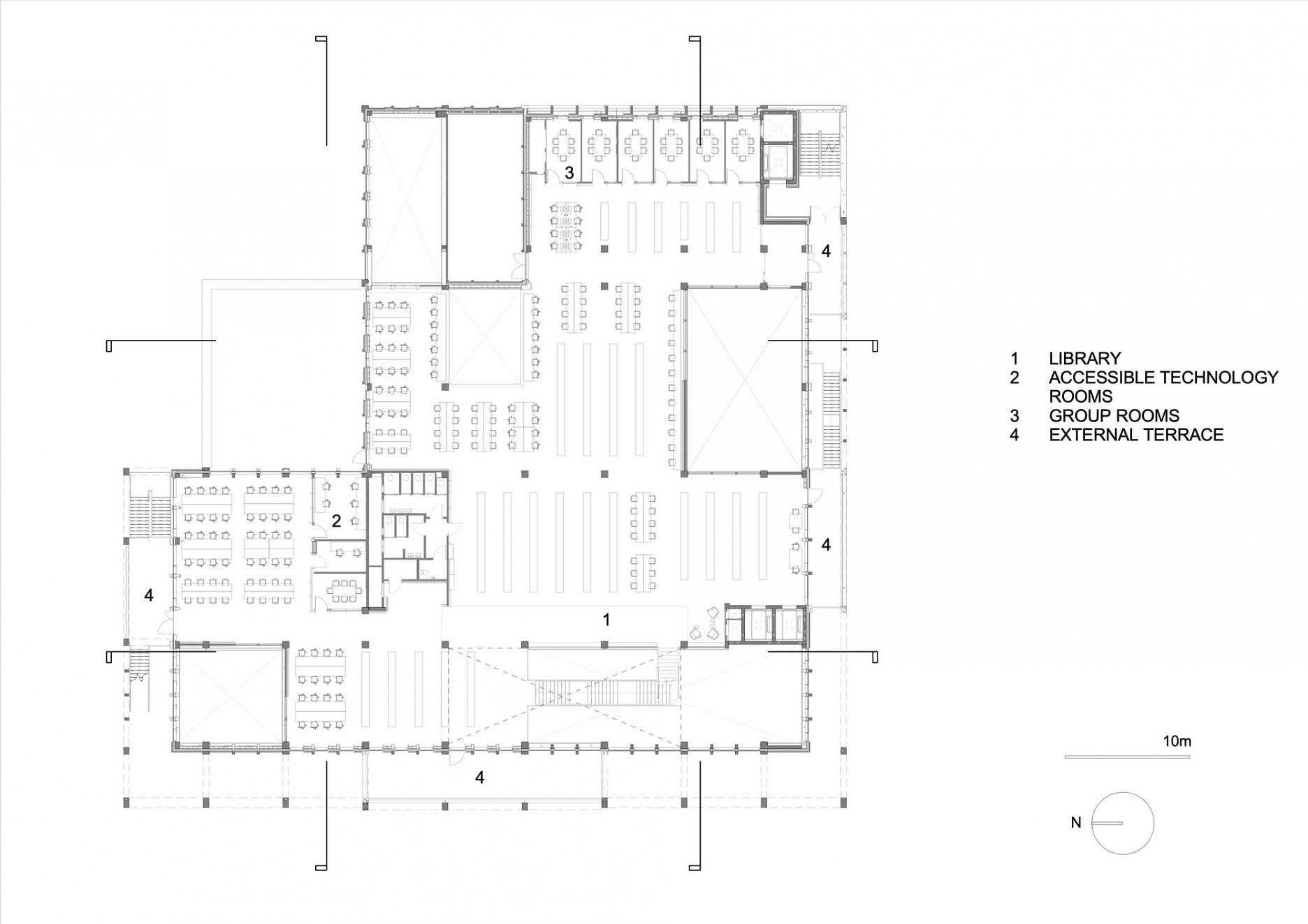
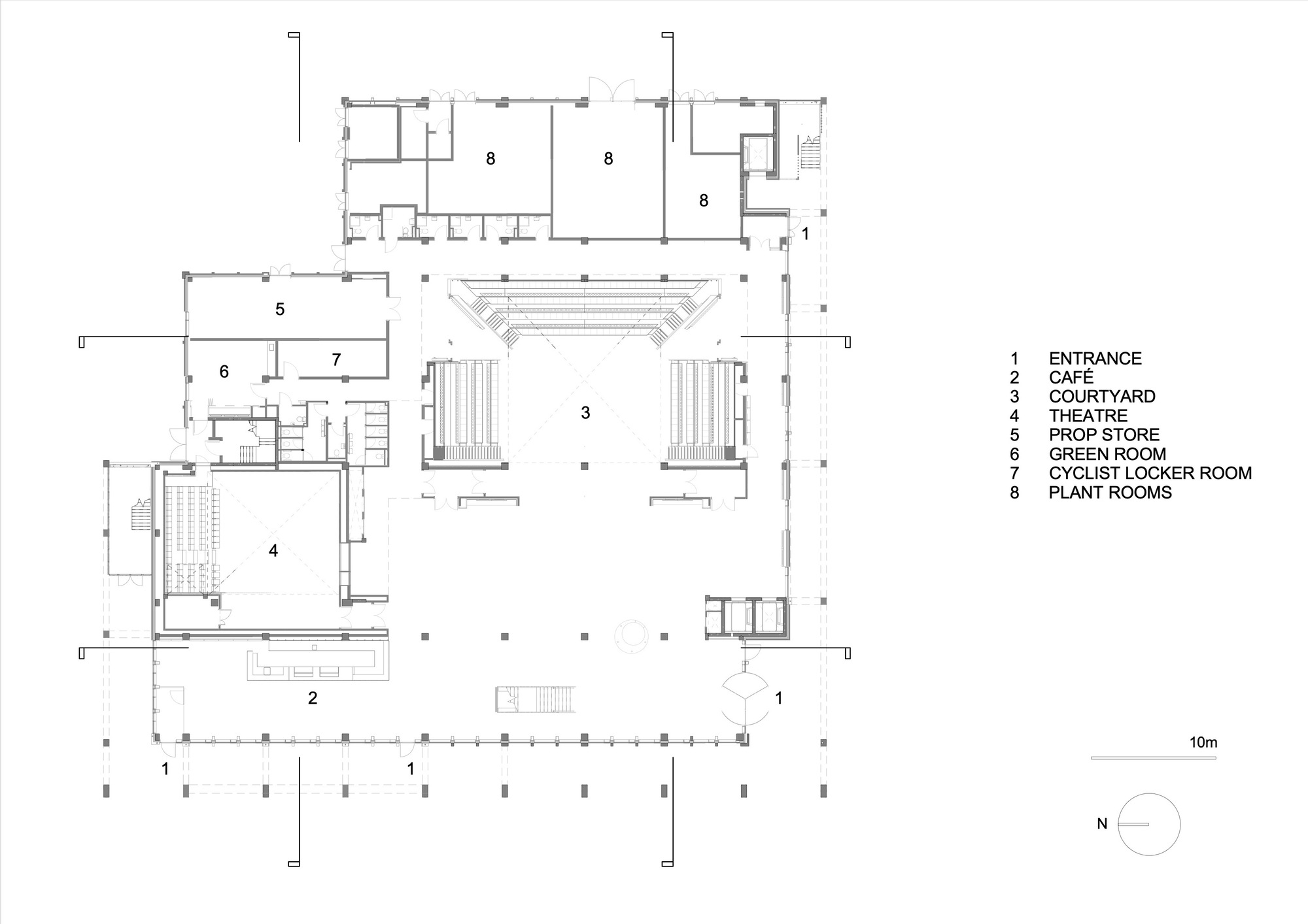
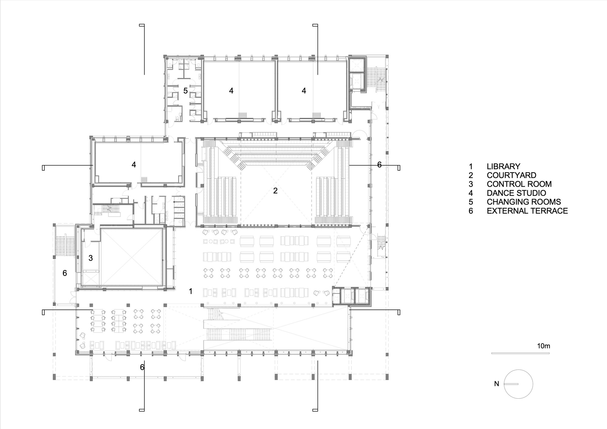
Nová univerzitná budova “Town house” je navrhnutá ako vstupná brána do kampusu Penrhyn Road. Okrem primárnej funkcie vzdelávacieho centra pre študentov, zamestnancov, absolventov a miestnu komunitu zastrešuje tiež široké spektrum kultúrnych podujatí. Flexibilné študijné priestory, hlavnú univerzitnú knižnicu, alebo študovne a archívy dopĺňajú napríklad tanečné ateliéry, kryté nádvorie s amfiteátrovým sedením, štúdiové divadlo, či dvojica kaviarní. 

Matica vzájomne prepojených priestorov sa fyzicky a vizuálne prelína. Študenti, návštevníci a zamestnanci sa stávajú súčasťou prepojeného celku. Pokojné zóny zároveň vytvárajú priestor pre sústredenú prácu a štúdium. Koncept otvoreného prostredia reflektuje architektonické riešenie aj smerom do exteriéru. Najmä v nočných hodinách možno vnímať z ulice život v budove. 

V súčte viac ako 50 percent plochy podlaží tvoria galérie. Priestorový koncept môžeme vnímať už vo foyer, cez ktoré plynie schodisko, ako otvorená spojnica medzi dianím v celej budove. Kaskádovo prepojené terasy na vonkajšom obvode fasády umožňujú voľný pohyb v exteriéri. Od úrovne terénu, až po rozsiahlu strešnú krajinu. 

Podlažia pri stúpaní po vertikále postupne ustupujú. Na najvyšších podlažiach sa otvárajú výhľady na mesto, Temžu a a neďaleký Hampton Court. 

Raster skeletu určuje štandardný modul prefabrikovaných prvkov. Surové povrchy stĺpov a trámov, nesúcich exponované rebrové dosky sú v interiéri zároveň finálnymi pohľadovými vrstvami. Nosnosť podláh zohľadňuje flexibilný priestorový koncept a možnosť budúcich zmien. Profilovaný prierez stropných dosiek umožnil jednoduchú integráciu systému stropného chladenia a akustických panelov všade tam, kde je to potrebné. 

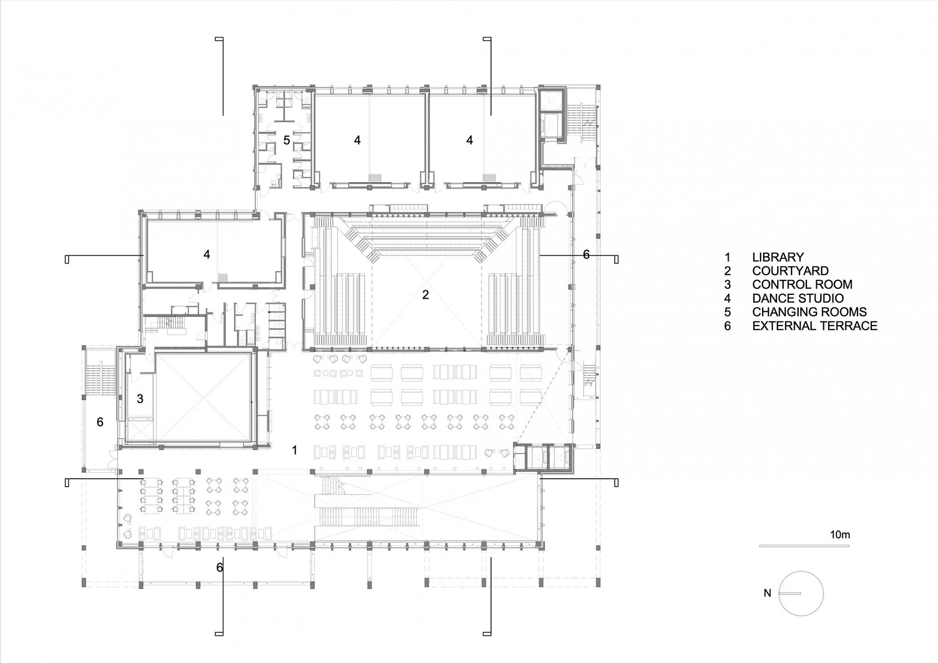
Pôdorys 1. NP
Pôdorys 1. NP
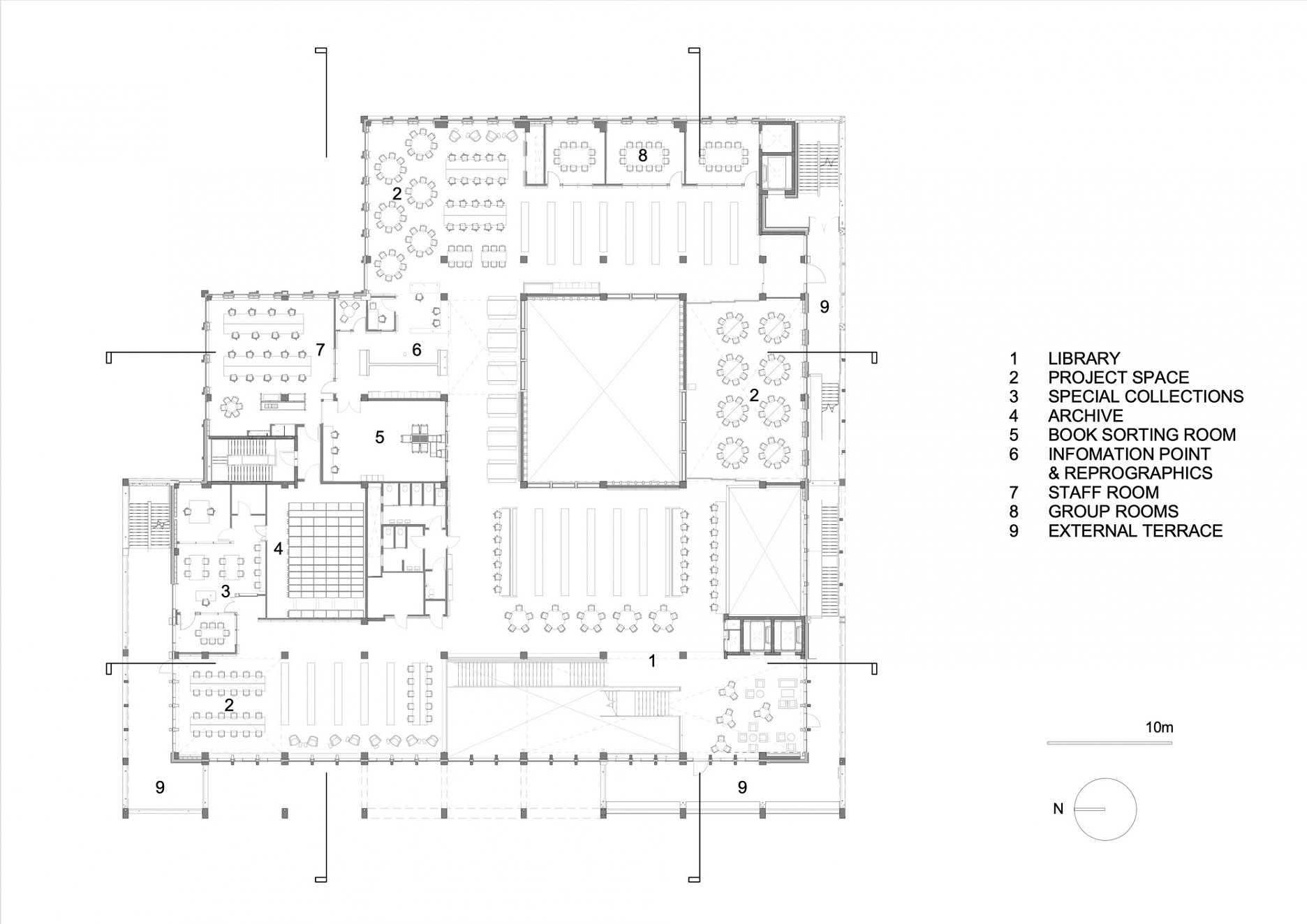
Pôdorys 2. NP
Pôdorys 2. NPAutor: Grafton Architects
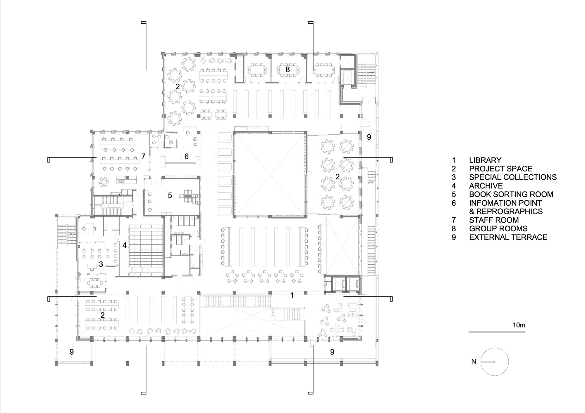
Pôdorys 3. NP
Pôdorys 3. NPAutor: Grafton Architects
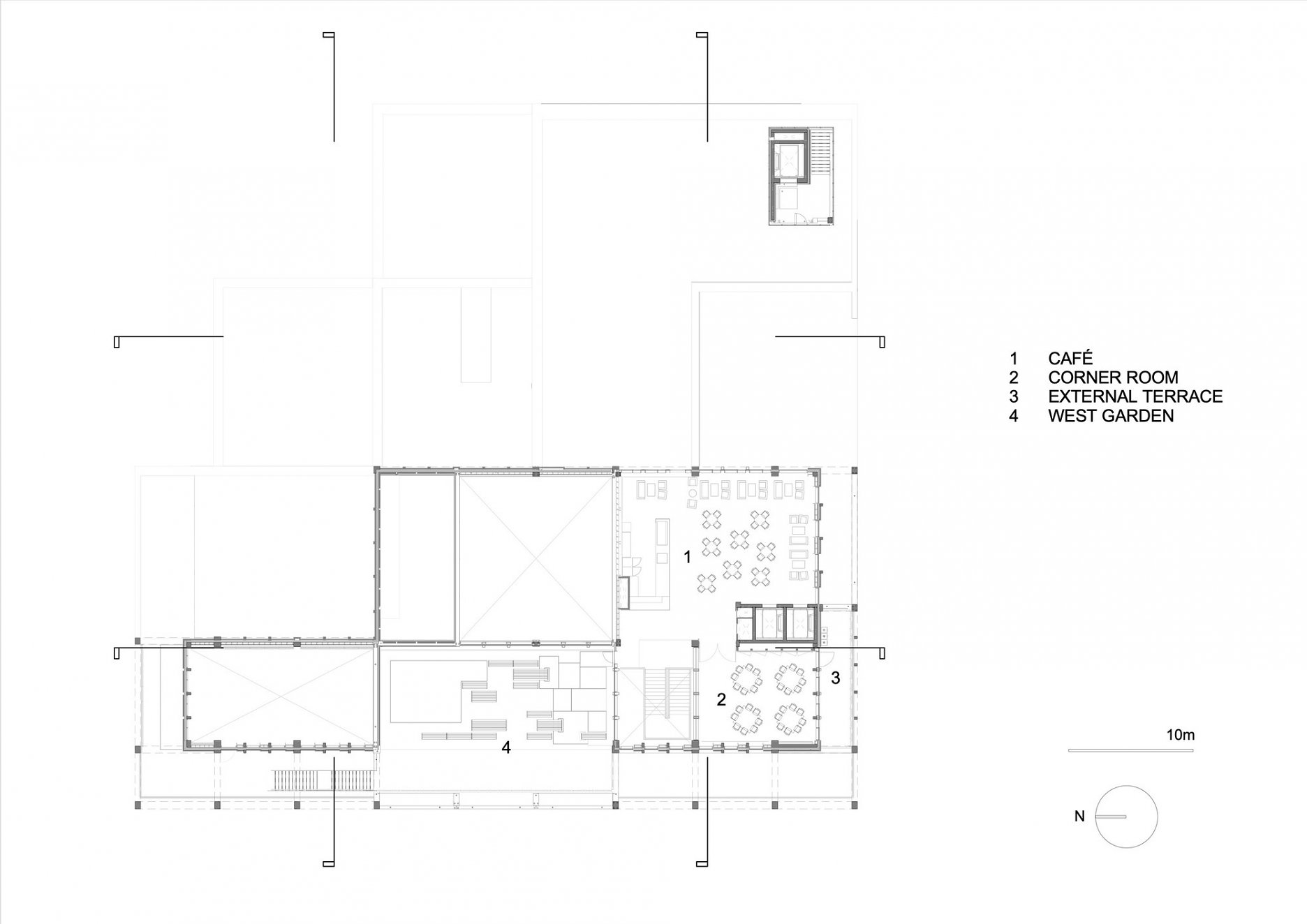
Pôdorys 4. NP
Pôdorys 4. NPAutor: Grafton Architects
Pôdorys 5. NP
Pôdorys 5. NPAutor: Grafton Architects
Pôdorys 6. NP
Pôdorys 6. NPAutor: Grafton Architects
Rez A-A´
Rez A-A´Autor: Grafton Architects
Rez B-B´
Rez B-B´Autor: Grafton Architects
Rez C-C´
Rez C-C´Autor: Grafton Architects
Rez D-D´
Rez D-D´Autor: Grafton Architects

Systém predsadených terás nesie vonkajší rám, pozostávajúca tiež z prefabrikovaných segmentov. Za kolonádou z betónu s prímesou kameňa, ktorá čerpá inšpiráciu na fasáde neďalekej radnice, prebieha v druhom pláne tehlová bohato perforovaná obálka s betónovými rebrami, tehlovým obkladom a hliníkovými rámami zasklenia.

Uličný pohľad
Uličný pohľadAutor: Grafton Architects
Schéma predsadenej konštrukcie
Schéma predsadenej konštrukcieAutor: Grafton Architects
Schematický rez uličnou fasádou
Schematický rez uličnou fasádouAutor: Grafton Architects
Detail fasády a osadenia otvorov
Detail fasády a osadenia otvorovAutor: Grafton Architects
Foto: Dennis Gilbert
Foto: Ed Reeve
Foto: Ed Reeve
Foto: Dennis Gilbert
Foto: Ed Reeve
Foto: Ed Reeve
Foto: Ed Reeve
Foto: Ed Reeve
Foto: Ed Reeve
Foto: Ed Reeve
Foto: Ed Reeve
Foto: Ed Reeve

Poloha diela

Shelley McNamara
Yvonne Farrell
Ger Carty
Philippe O´Sullivan
Matt McCullagh
Joanne Lyons
James Rossa O´Hare
Jamie Conway
Shane Twohig
Leah Hogan
Darren Monahan
Eibhlín Ní Chathasaigh
Paul Durcan
Edwin Jebb
Michael Stack

Súvisiace články

Vložené
18. február 2022
0
903
Hlavný obsahHlavný obsah
Čakajte prosím