AMPHIBIA 3000 GRIP 1.3 od spoločnosti ATRO predstavuje modernú hydroizolačnú technológiu, ktorá spája vysokú odolnosť,...
Ambiciózne plány EK narazili na ekonomické možnosti domácností v jednotlivých členských štátoch –...
IDEA DOOR od spoločnosti JAP prináša do interiéru čistý minimalistický vzhľad vďaka bezrámovému riešeniu a precíznej...
Nástenné nadomietkové armatúry Vitus sú mimoriadne vhodné pre rýchlu a efektívnu...
Okenné profily z kompozitného materiálu RAU-FIPRO X od spoločnosti Rehau sú v porovnaní s tradičnými plastovými profilmi mnohonásobne...
Najnovší sortiment stolov pre zariadenie interiérov...
Spojenie moderného dizajnu, funkčnosti a svetla do harmonického architektonického prvku.
Kancelárska budova Baumit v slovinskom Trzine prešla premenou na moderné a udržateľné pracovisko. Architekti kládli dôraz...
Mottom šiesteho ročníku on-line konferencie odborníkov Xella Dialóg je Efektívny návrh budov 2025+: zmeny a riešenia
Robot WLTR predstavuje moderný prístup k murovaným konštrukciám. Vďaka automatizácii dokáže rýchlo, presne a bezpečne realizovať...
Okrem bezpečnosti majú okná aj elegantný vzhľad, pretože nie sú viditeľné žiadne uzamykacie časti kovania.
Dvere MASTER v skrytej zárubni AKTIVE je možné vyrobiť až do výšky 3 700 mm
Internorm stavia na energetickú efektívnosť a inteligentné tieniace riešenia.
Slovensko vo výbere zastupuje šesť realizácií.
Spoločnosť Internorm odteraz stavia na novej variante tepelnoizolačného skla od AGC, ktorá v produkcii ročne ušetrí 10...

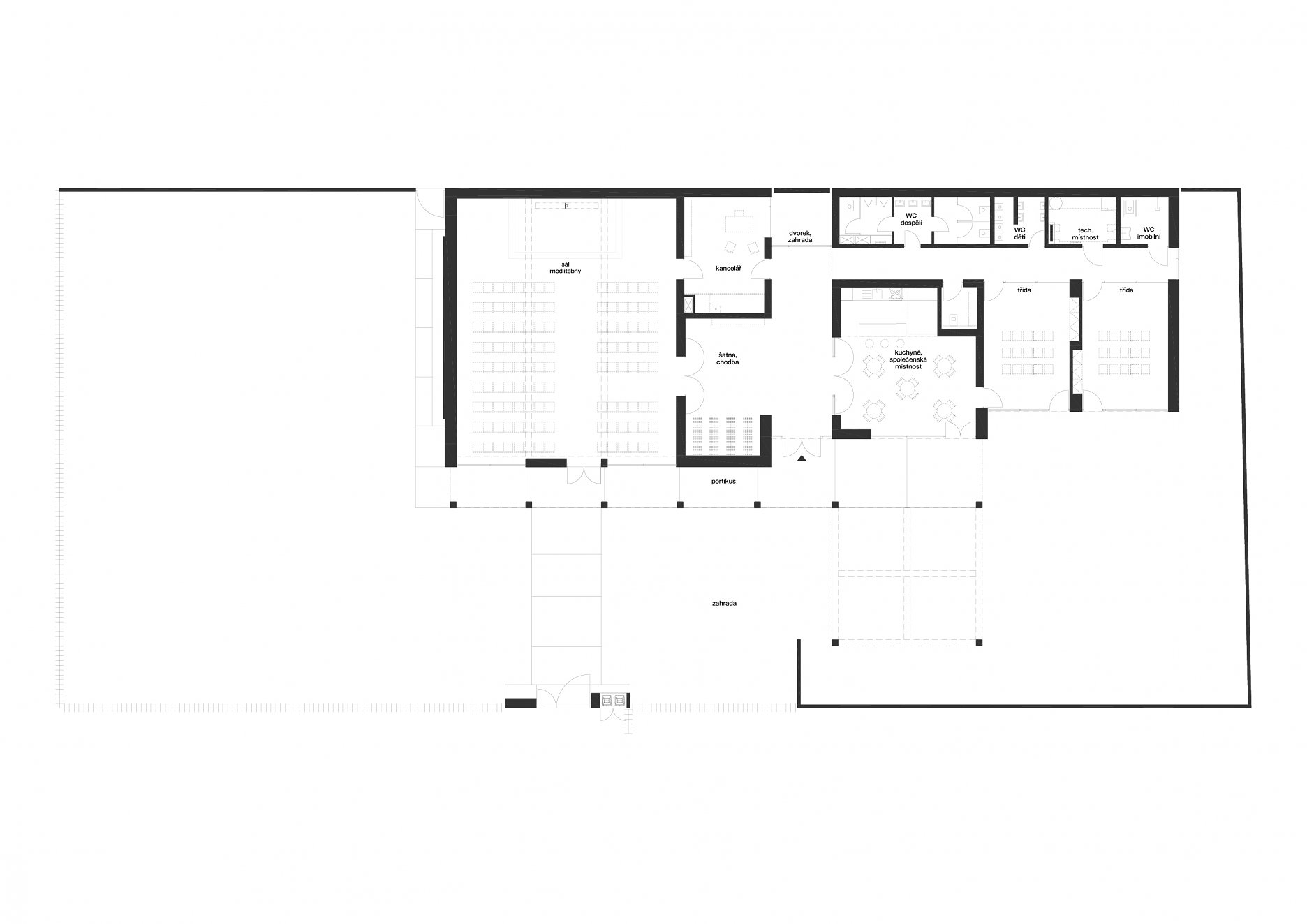
Kresťanské komunitné centrum Cirkvi bratskej v Kladne zastrešuje popri duchovných programoch aj voľnočasové aktivity pre deti, mládež i dospelých a podporu osôb v krízových situáciách.
Pôvodná budova cirkvi v radovej zástavbe, bez prístupu do záhrady a s množstvom prevádzkových obmedzení, nebola pre tieto činnosti vyhovujúca. Zadanie pre pražský ateliér QARTA Architektura zahŕňalo výber vhodnej lokality a vytvorenie zázemia modlitebne, ktoré obsiahne učebne, malú kaviareň, kanceláriu a záhradné priestory, čím podporí komunitné aktivity a ich ďalší rozvoj.
Nový objekt je podľa slov architektov koncipovaný ako záhradný pavilón
Situovanie stavby na hranici parcely uvoľňuje priestor záhrady, pričom hlavný vstup je pokračovaním osi príjazdovej komunikácie.
"Zkušenost světla a tmy, je přirozeným východiskem celého konceptu. Světlík, zdroj bazilikálního osvětlení, je postavený v ose příchodu a tvoří charakteristický prvek vnějšího i vnitřního vnímání objektu. Určuje těžiště, koncentruje a dále rozptyluje světlo, které vytváří atmosféru. Stíny a napětí mezi světlem a tmou graficky podtrhují linie prostoru," vysvetľujú koncept autori.
Výrazným architektonickými prvkami sú železobetónová pergola, profilitový svetlík s oceľovou konštrukciou a lícové murivo v exteriéri aj interiéri domu. Oceľová konštrukcia svetlíka odkazuje na industriálny génius loci.
Materiály:
Profilované sklo - svetlík
Tehlový obklad a tehlové pásky - steny exteriéru a sály
Hrubá omietka - steny exteriéru
Prefabrikovaný betón - preklady v sále, portikus
Farebné hladené omietky - učebne
Heraklíthové dosky - akustický strop v sále
MDF - drevený strop v sále
Autor: QARTA Architektura
Podklady: Linka
Fotografie: BoysPlayNice