Novotvar v prostredí alpskej obce.
Hansgrohe - prémiová značka kúpeľňových riešení, ponúka nadčasový dizajn, technickú precíznosť a udržateľné inovácie...
Využite špeciálnu akciu Internorm: okná za minuloročné ceny a hliníkový kryt úplne zadarmo. Ponuka je časovo obmedzená!
Na podujatí sa predstaví až 37 vystavovateľov - popredných dodávateľov stavebných materiálov a inovácií s prezentáciou...
Sumarizácia najdôležitejších inovácií, ktoré redefinujúcich využitie tohto energetického zdroja.
AMPHIBIA 3000 GRIP 1.3 od spoločnosti ATRO predstavuje modernú hydroizolačnú technológiu, ktorá spája vysokú odolnosť,...
Ambiciózne plány EK narazili na ekonomické možnosti domácností v jednotlivých členských štátoch –...
IDEA DOOR od spoločnosti JAP prináša do interiéru čistý minimalistický vzhľad vďaka bezrámovému riešeniu a precíznej...
Kontinuita riešenia od vonkajšieho obkladu až po kovania a kľučky.
Nástenné nadomietkové armatúry Vitus sú mimoriadne vhodné pre rýchlu a efektívnu...
Okenné profily z kompozitného materiálu RAU-FIPRO X od spoločnosti Rehau sú v porovnaní s tradičnými plastovými profilmi mnohonásobne...
Najnovší sortiment stolov pre zariadenie interiérov...
Spojenie moderného dizajnu, funkčnosti a svetla do harmonického architektonického prvku.
Kancelárska budova Baumit v slovinskom Trzine prešla premenou na moderné a udržateľné pracovisko. Architekti kládli dôraz...
Mottom šiesteho ročníku on-line konferencie odborníkov Xella Dialóg je Efektívny návrh budov 2025+: zmeny a riešenia

V nasledujúcich dňoch sa budeme snažiť predstaviť realizácie z okolitých krajín, ktoré sa dostali do výberu 40 najlepších diel v rámci Ceny európskej únie za súčasnú architektúru Mies van der Rohe Award.
Slovensko v aktuálnom ročníku reprezentuje Dostavba ZŠ v Bernolákove z dielne ateliéru BAKYTA ARCHITEKTI. Zo susedných krajín má Česká republika, Rakúsko aj Maďarsko vo výbere po jednej realizácii.
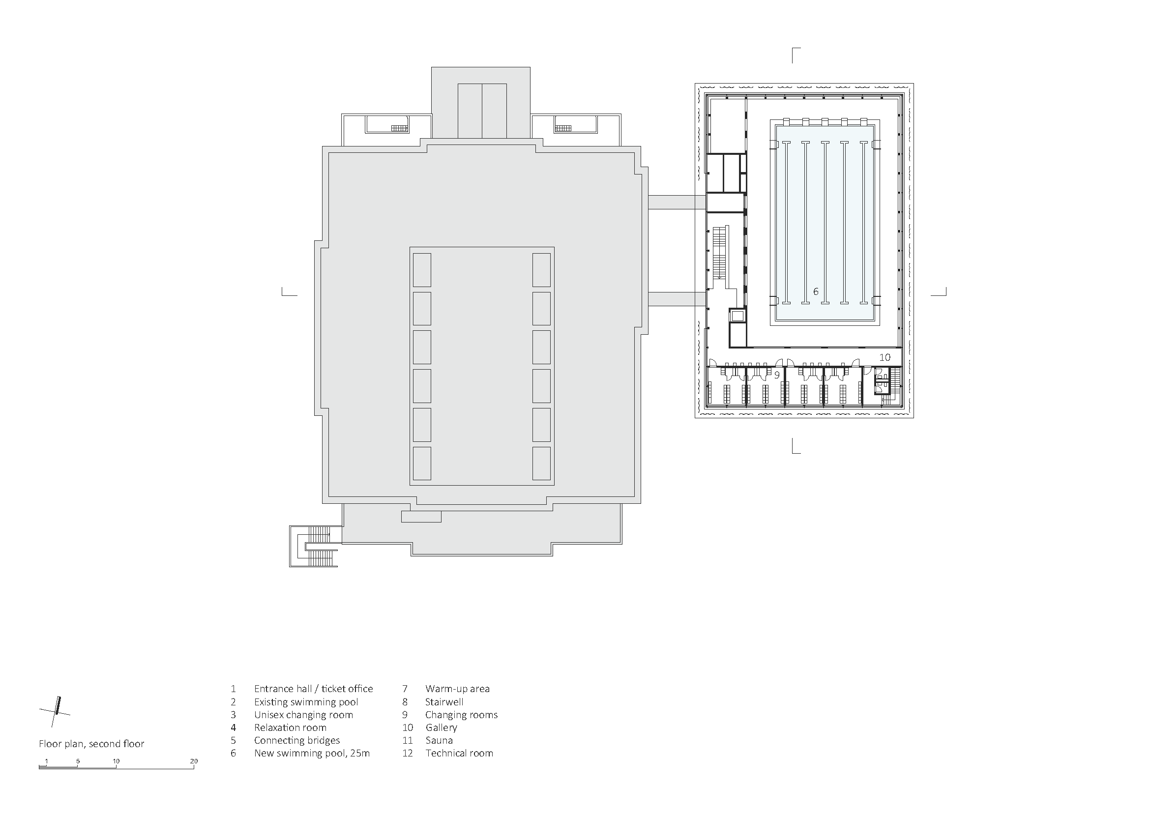
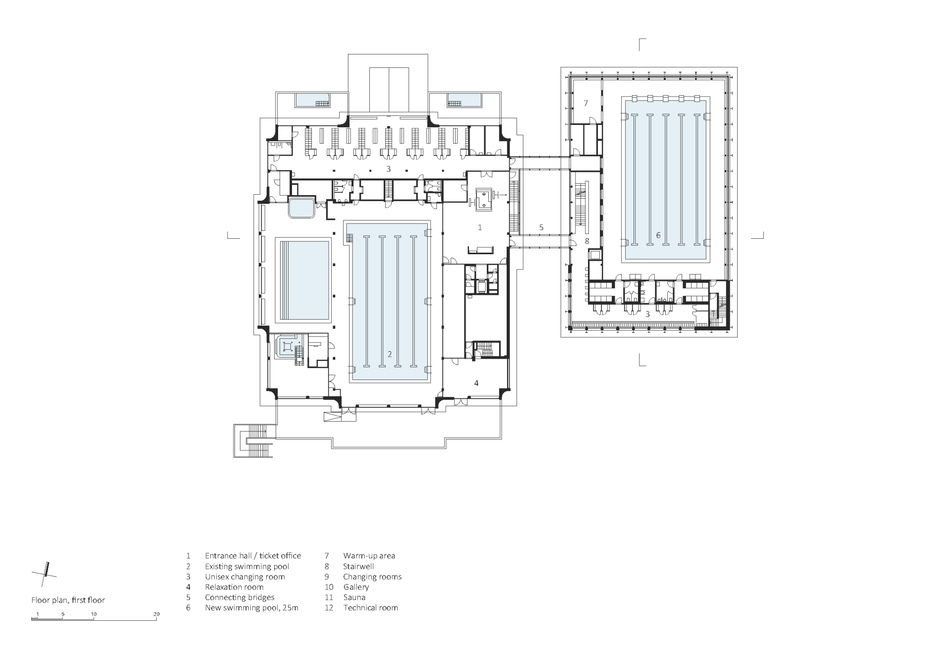
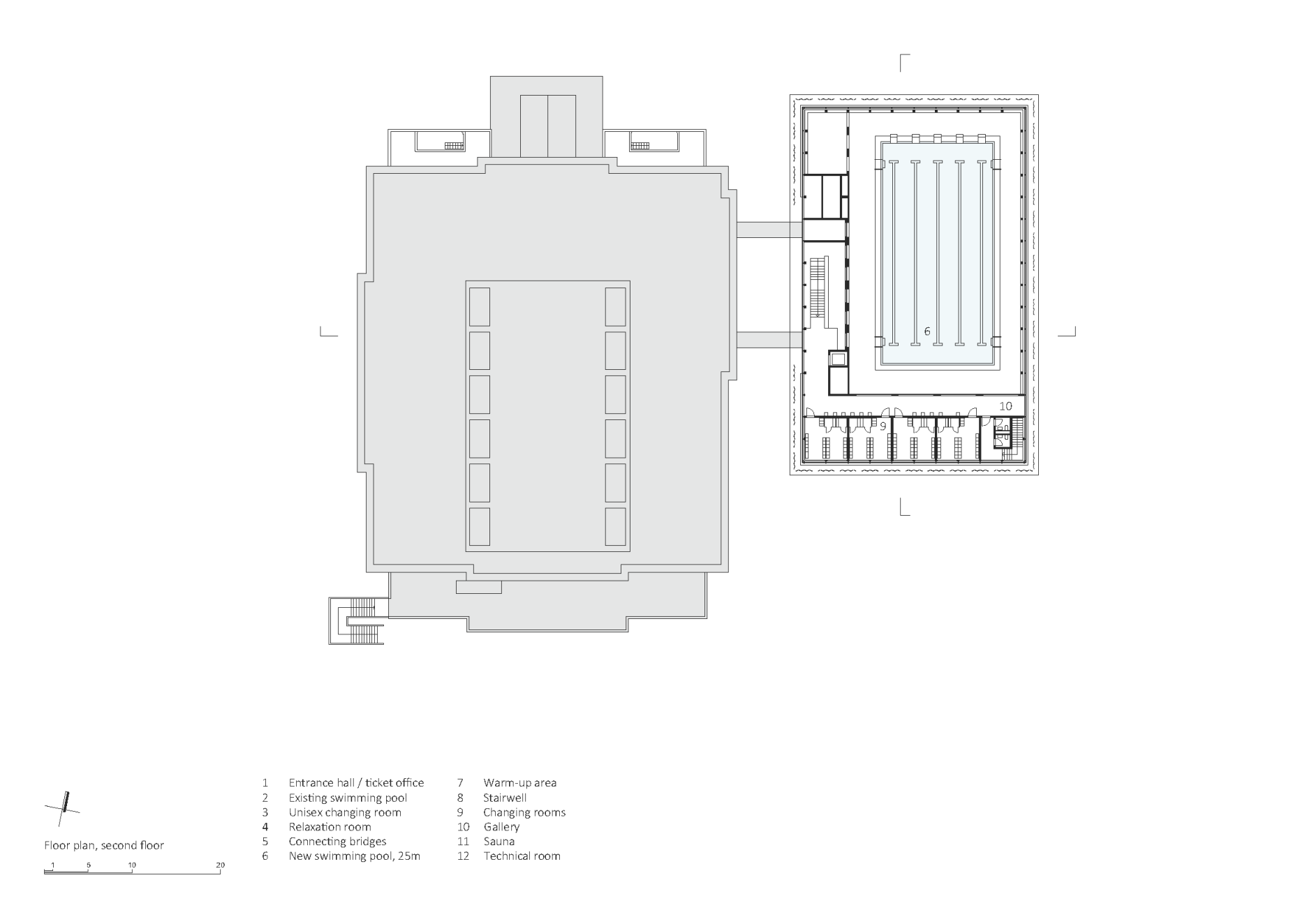
Dnes sa pozrieme do severnej časti Viedne, kde vznikla na základe architektonickej staže nová tréningová hala plavárne, ktorá rozširuje aquacentrum na sídlisku Großfeldsiedlung v mestskej časti Floridsdorf.
Objekt dopĺňa komplex z prvej polovice 80. rokov a je navrhnutý predovšetkým pre školské a klubové využitie. Autorky z ateliéru illiz architektur novostavbu od existujúceho vstupného krídla jasne odlíšili, no súčasne ju prevádzkovo presne napojili tak, aby celý areál fungoval ako jeden logický celok.
Nová hala k pôvodnej budove prilieha iba dvojicou konzolovo vysunutých prepojovacích mostov. Medzi objektmi vzniká zelená „ulička“, ktorá prirodzene vedie návštevníkov k hlavnému vstupu situovanému pod mostmi. Už pri príchode je cez veľkoplošné zasklenie čitateľné schodisko, ktoré vedie na úroveň bazénovej haly. Práve toto riešenie robí z priestoru medzi starým a novým objektom plnohodnotný pobytový medzipriestor.
Bazénová hala s bezbariérovým prístupom zastrešuje 25-metrový plavecký bazén (25 × 12,5 m) s potrebným zázemím. Do interiéru, v ktorom dominuje estetika dreveného konštrukčného systému haly z lepených lamelových prvkov, nesúcich strechu z CLT panelov. Priestor má takmer šesťmetrovú svetlú výšku. Pred fasádu umiestnili autorky treláž určenú pre popínavé rastliny, ktoré postupne menia vzhľad objeku a prispievejú k jeho začleneniu do areálu.
Dôležitou súčasťou konceptu je minimalizácia zásahov do územia. Novostavba zaberá časť pôvodného parkoviska. Spomínané riešenie prispelo k zachovaniu vzrastlých stromov a zníženiu podielu spevnených plôch. K pasívnym "zeleným" opatreniam prispieva aj výrazne presahujúca strecha a vegetačné prvky na fasáde.
Projekt zároveň zahŕňa rekonštrukciu pôvodnej haly. Zaujímavosťou je odstránenie pôvodnej strechy a zväčšenie svetlej výšky nad bazénom. Zásah umožnil realizovať nové bazilikálne osvetlenie priestoru bez oslnenia plavcov. Dielo získalo certifikáciu klimaaktiv Gold a ocenenie wienwood25. V kontexte viedenskej siete verejných plavární ide o presvedčivý príklad toho, ako sa dá technicky náročná typológia navrhnúť ako kultivovaná, udržateľná a urbanisticky čitateľná verejná stavba.
Podklady: illiz architektur
Fotografie: Hertha Hurnaus