Advertorial

Moderné plynové technológie: Efektivita a inovácie pre 21. storočie

Sumarizácia najdôležitejších inovácií, ktoré redefinujúcich využitie tohto energetického zdroja.

Utesňovanie spodných stavieb pomocou hydro-aktívnej fólie AMPHIBIA.

AMPHIBIA 3000 GRIP 1.3 od spoločnosti ATRO predstavuje modernú hydroizolačnú technológiu, ktorá spája vysokú odolnosť,...

Dekarbonizácia individuálneho vykurovania domácností – Green Deal evolučne a nie revolučne

Ambiciózne plány EK narazili na ekonomické možnosti domácností v jednotlivých členských štátoch –...

Minimalistické dvere IDEA – technická precíznosť a čistota prevedenia

IDEA DOOR od spoločnosti JAP prináša do interiéru čistý minimalistický vzhľad vďaka bezrámovému riešeniu a precíznej...

Schell Vitus – osvedčené riešenie pre sprchy a umývadlá vo verejnom sektore s viac ako desaťročnou tradíciou

Nástenné nadomietkové armatúry Vitus sú mimoriadne vhodné pre rýchlu a efektívnu...

Kompozitné okná predstavujú súčasnosť a budúcnosť

Okenné profily z kompozitného materiálu RAU-FIPRO X od spoločnosti Rehau sú v porovnaní s tradičnými plastovými profilmi mnohonásobne...

Myotis - stoly 2025

Najnovší sortiment stolov pre zariadenie interiérov...

Priemyselné sklenené priečky Dorsis Digero: svetelné rozhranie pre moderné interiéry

Spojenie moderného dizajnu, funkčnosti a svetla do harmonického architektonického prvku.

Význam prirodzeného svetla pre moderné a flexibilné pracovné prostredie

Kancelárska budova Baumit v slovinskom Trzine prešla premenou na moderné a udržateľné pracovisko. Architekti kládli dôraz...

Konferencia Xella Dialóg predstaví novinky a trendy v stavebníctve

Mottom šiesteho ročníku on-line konferencie odborníkov Xella Dialóg je Efektívny návrh budov 2025+: zmeny a riešenia

Murovací robot WLTR stavia svoj prvý dom na Slovensku

Robot WLTR predstavuje moderný prístup k murovaným konštrukciám. Vďaka automatizácii dokáže rýchlo, presne a bezpečne realizovať...

Nová éra bezpečnosti s I-tec Secure od Internorm

Okrem bezpečnosti majú okná aj elegantný vzhľad, pretože nie sú viditeľné žiadne uzamykacie časti kovania.

Skryté zárubne JAP – intenzívny zážitok z bývania

Dvere MASTER v skrytej zárubni AKTIVE je možné vyrobiť až do výšky 3 700 mm

Tienenie namiesto klimatizácie

Internorm stavia na energetickú efektívnosť a inteligentné tieniace riešenia.

BigMat International Architecture Award 2025 - vybrané diela

Slovensko vo výbere zastupuje šesť realizácií.

Redizajn kampusu Univerzity Johanna Keplera v Linci

Pohľad Zuzany Duchovej na moderný univerzitný kampus v susednom Rakúsku.
Diela
Red 331.10.2021
7100+10
Redizajn kampusu Univerzity Johanna Keplera v Linci
Autori: RIEPL RIEPL ARCHITEKTEN, Peter Riepl, Gabriele Riepl, Christof Pernkopf, Anna Detzlhofer, Sabine DessovicInvestor: BIG Bundesimmobiliengesellschaft m.b.H.,Zastavaná plocha: 150000 m2Podlažná plocha: 17830 m2Investičný náklad: 2243 EUR €/m2Návrh: 2016 - 2017Realizácia: 2018 - 2019Adresa: Altenberger Str. 69, Linz, RakúskoPublikované: 31. október 2021

Nová univerzita v neďalekom Linzi

Momentálne najväčší a najmodernejší univerzitný campus v Linzi je aktuálne nominovaný na prestížnu cenu Mies van der Rohe Award.

Žijeme síce digitálne, ale ani pandémia nezabránila Univerzite Johannesa Keplera v Linzi otvoriť minulý rok rozsiahly fyzicky vybudovaný nový univerzitný komplex na okraji mesta. Rektor Meinhard Lukas vysvetľuje cieľ tohto projektu ako snahu obstáť medzi špičkovými univerzitami v USA a Európe. „Tým, že zatraktívňujeme areál, vytvárame obrovský potenciál, Keplerova univerzita sa otvára ako miesto stretávania a dialógu.“

Projekt by pravdaže nevznikol bez aktívnej podpory štátnej politiky

Federálna spoločnosť pre nehnuteľnosti (BIG) organizovala architektonickú súťaž, implementovať ju pomáhali ministerstvá vedy a hospodárstva. Veríme, že podobného redizajnu sa dočká aj bratislavský campus VŠVU, na ktorý súťaž prebehla už pred vyše dvoma rokmi.

Širšie vzťahy - axonometria
Širšie vzťahy - axonometriaAutor: RIEPL RIEPL ARCHITEKTEN
Situácia
SituáciaAutor: RIEPL RIEPL ARCHITEKTEN

Architektonická kancelária Riepl Riepl presvedčila riešením, ktoré je založené na troch zložkách: výstavba predtým neexistujúcej vstupnej haly, prestavba a redizajn knižnice a vyvýšenie veže Technickej a prírodovednej fakulty. Nová Keplerova hala ako vstup do celého areálu univerzity poskytuje plochu asi 3 000 metrov štvorcových. Multifunkčná budova ponúka priestor na najrozmanitejšie využitie, ako sú recepcie, kultúrne a športové akcie. Knižnica, ktorá sa datuje do osemdesiatych rokov minulého storočia, sa rozširuje o nádvorie, átrium a veľké vonkajšie schodisko. Vytvára sa tým nové vzdelávacie miesto vo vnútri a atraktívne vonkajšie a komunikačné priestory.

Veža TNF je zdvihnutá „zelenou korunou“. Otvorená konštrukcia z oceľového pletiva je čiastočnú zazelenená a obohatená o plávajúcu plošinu s markízou. Budova sa stáva do diaľky rozpoznateľným orientačným bodom a zároveň ponúka fascinujúci výhľad. Pri renovácii fasády ostal zachovaný pôvodný vzhľad, ale bol prispôsobený dnešným energetickým štandardom. Výmenou všetkých okien (zhruba 5 500 metrov štvorcových plochy) sa spotreba energie zníži zhruba na polovicu. Ide o prvú dôsledne cirkulárnu univerzitu v Rakúsku - prevádzka je založená na udržateľných princípoch.

Koncepty a významy

Dominantou komplexu je zelená veža, ktorá nesie názov SOMNIUM. Autori sa dôsledne zaoberali dedičstvom miesta i konceptu mladej a akčnej univerzity. Somnium tak zosobňuje Keplerov sen o ceste na Mesiac. Podľa Keplerovho románu z roku 1608 inštalácia na veži pozýva na odpočinok a sny, keď sa môžete stretnúť s ľuďmi z areálu i mimo neho.

Založenie JKU v roku 1966 znamenalo úsvit transformácie monofunkčného priemyselného mesta, obzvlášť zaťaženého jeho nacistickou minulosťou, na otvorenú a rozmanitú mestskú štruktúru. V starej štruktúre univerzity citeľne chýbal priestor. V kombinácii s periférnym miestom z hľadiska polohy v Linzi išlo o veľmi mŕtvu zónu. Preto sa autori sústredili na to, ako stimulovať mestskú živosť.

Presné intervencie pôsobia ako katalyzátory rozmanitého a mestského života podľa týchto zásad:
Otvorené konštrukcie a plynulé prechody podporujú uvoľnené náhodné stretnutia akéhokoľvek druhu.

Nová Keplerova hala - južný pohľad
Nová Keplerova hala - južný pohľadFoto: Bruno Klomfar / EU Mies award
Nová Keplerova hala - foyer
Nová Keplerova hala - foyerFoto: Bruno Klomfar / EU Mies award
Somnium - hlavná terasa
Somnium - hlavná terasaFoto: Bruno Klomfar / EU Mies award
LIT (Linz Institute of Technology)
LIT (Linz Institute of Technology) Foto: Bruno Klomfar / EU Mies award
LIT (Linz Institute of Technology)  - interiér
LIT (Linz Institute of Technology) - interiérFoto: Bruno Klomfar / EU Mies award
JKU Learning Center
JKU Learning CenterFoto: Bruno Klomfar / EU Mies award
JKU Learning Center - otvorená čitáreň
JKU Learning Center - otvorená čitáreňFoto: Bruno Klomfar / EU Mies award

Zmiešané funkcie stimulujú život

Nejednoznačné a kontrastné prvky - jednoduché + zložité, nedokončené + čisté, integrované + stojace osamote, svetlé + tmavé... ...vytvárajú napätie, ktoré revitalizuje areál z obdobia 60. rokov
Priestory Kepler Hall a LIT Open Innovation sú úplne nové konštrukcie postavené predovšetkým z dreva a železobetónu. Plochá strecha jednopodlažnej Keplerovej haly pozostáva z primárnych a sekundárnych priehradových nosníkov, ktoré sú uložené na prefabrikovaných betónových stĺpoch, čo umožňuje preklenúť rozpon 22 m. Otvorené inovačné centrum LIT používa ako hlavný nosný rámec kompozitnú drevo-betónovú konštrukciu. Strešná konštrukcia je rozdelená na dva systémy: jeden zo štandardných nosníkov a druhý z priehradových nosníkov s oceľovými napínacími tyčami. Vzdelávacie centrum je jednopodlažný doplnok k existujúcej knižnici, v ktorom bolo potrebné posilniť existujúce železobetónové stĺpy a steny jadra. Toto rozšírenie je kombinovaným konštrukčným systémom izolačných a prefabrikovaných dutých betónových podlahových dosiek s ľahkou oceľovou konštrukciou na podporu strechy. Veľká časť nového objemu je podopretá na 14 m vysokých betónových stĺpoch. Somnium je ľahká oceľová konštrukcia, ktorá sa nachádza nad existujúcou vežou TNF. Štruktúra mreží sa skladá z priestorového rámu z oceľových profilov a napínacích tyčí, zatiaľ čo oceľové nosníky vytvárajú terasu.

Keplerova hala
Keplerova halaAutor: RIEPL RIEPL ARCHITEKTEN
Veža TNF / Somnium
Veža TNF / SomniumAutor: RIEPL RIEPL ARCHITEKTEN
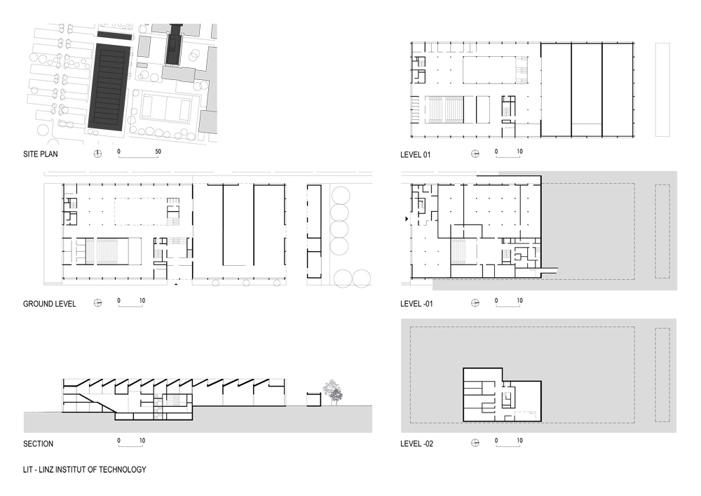
LIT (Linz Institute of Technology)
LIT (Linz Institute of Technology)Autor: RIEPL RIEPL ARCHITEKTEN
JKU Learning Center
JKU Learning CenterAutor: RIEPL RIEPL ARCHITEKTEN

 

Fotografie Michala Kevického z návštevy areálu JKU:

Foto: Michal Kevický
Foto: Michal Kevický
Foto: Michal Kevický
Foto: Michal Kevický
Foto: Michal Kevický

Text a výber fotodokumentácie: Zuzana Duchová

Poloha diela

RIEPL RIEPL ARCHITEKTEN
Peter Riepl
Gabriele Riepl
Christof Pernkopf
Anna Detzlhofer
Sabine Dessovic

Súvisiace články

Vložené
12. október 2021
0
710
Hlavný obsahHlavný obsah
Čakajte prosím