Okenné profily z kompozitného materiálu RAU-FIPRO X od spoločnosti Rehau sú v porovnaní s tradičnými plastovými profilmi mnohonásobne...
Najnovší sortiment stolov pre zariadenie interiérov...
Spojenie moderného dizajnu, funkčnosti a svetla do harmonického architektonického prvku.
Kancelárska budova Baumit v slovinskom Trzine prešla premenou na moderné a udržateľné pracovisko. Architekti kládli dôraz...
Mottom šiesteho ročníku on-line konferencie odborníkov Xella Dialóg je Efektívny návrh budov 2025+: zmeny a riešenia
Robot WLTR predstavuje moderný prístup k murovaným konštrukciám. Vďaka automatizácii dokáže rýchlo, presne a bezpečne realizovať...
Okrem bezpečnosti majú okná aj elegantný vzhľad, pretože nie sú viditeľné žiadne uzamykacie časti kovania.
Dvere MASTER v skrytej zárubni AKTIVE je možné vyrobiť až do výšky 3 700 mm
Internorm stavia na energetickú efektívnosť a inteligentné tieniace riešenia.
Pohľad na moderné prístupy k výrobe s dôrazom na udržateľnosť.
Slovensko vo výbere zastupuje šesť realizácií.
Spoločnosť Internorm odteraz stavia na novej variante tepelnoizolačného skla od AGC, ktorá v produkcii ročne ušetrí 10...
Jubilejný 20. ročník prestížnej medzinárodnej súťaže pre študentov architektúry priniesol...
Otočné a posuvné dvere MASTER od podlahy až po strop, ponúkajú mimoriadnu variabilitu výšky, materiálu a zladenia so skrytými...
Predstavené produkty, spájajú premyslený dizajn, funkčnosť a udržateľnosť. Nábytok Materia vzniká s cieľom podporiť inšpiratívne stretnutia...

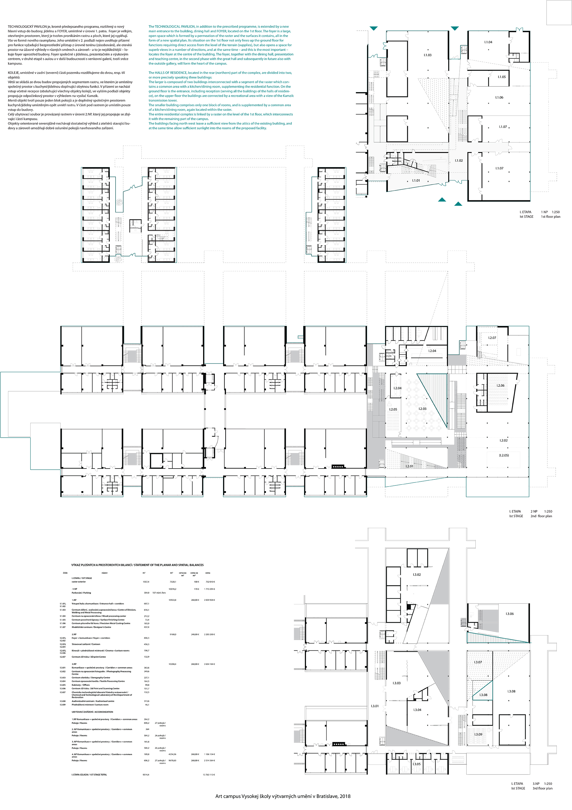
Súťaž na nový Art Campus, ktorú vyhlásila VŠVÚ v Bratislave a organizoval ateliér 2021, bola jednou z najzaujímavejších profesných výziev za posledné obdobie. Náročné zadanie a kontextuálna tvorba v jestvujúcom areáli školy sa ukázala ako ideálny priestor na konfrontáciu rôznych kreatívnych prístupov. O záujme súťažiacich svedčí kvalitná a početná účasť - 31 kompletných návrhov doručených v stanovenom termíne.
Porota rozhodovala v nasledovnom zložení:
Riadni členovia poroty:
Závislí na vyhlasovateľovi:
prof. Ing. Mgr. Petr Hájek, akad. arch.
doc. Pavel Choma, akad. mal.
prof. Ing. Štefan Klein, akad. soch.
Nezávislí na vyhlasovateľovi:
univ. dipl. Ing. arch. Aljoša Dekleva, M.Arch (Dist) AA
Mag. arch. Ernst J. Fuchs
doc. Mgr. ak. arch. Roman Brychta
prof. ak. arch. Imrich Vaško
Náhradníci poroty:
Nezávislí na vyhlasovateľovi:
Ing. arch. Peter Jurkovič
Výsledky súťaže:
Ocenení:
1. Cena (20 000 €): SLLA
Bratislava, Slovenská republika
Autori súťažného návrhu: Michal Sulo, Miriam Lišková
Spolupráca: Viktória Sabadošová, Jana Nagyová, Dominik Haviar, Lenka Baková, Boris Rusiňák, Zuzana Jančeková
Hodnotenie poroty:
Porota oceňuje jasné prevádzkové a typologické riešenie a navrhovaný systém etapizácie vrátane diferencovaného architektonického výrazu. Návrh nadväzuje na pôvodné architektonické riešenie lokality a vhodne dopĺňa nedostavané moduly školy prof. Dušana Kuzmu. Zachováva kontext s výhľadmi do okolia a nezastavaním územia za školou ponúka intenzívne využitie existujúcej atraktívnej prírodnej scenérie. V prvej fáze návrh definuje vstupný otvorený priestor medzi rozšírením existujúcej školy o technologické centrum a ubytovacie zariadenie ako otvorené námestie, ktoré sa stáva novým vstupom a verejným priestorom školy.
Porota jednoznačne odporúča vyhlasovateľovi zadať projekt autorom víťazného návrhu a zároveň navrhuje, aby sa do dopracovanej štúdie zahrnulo aj zastrešenie priestoru medzi existujúcimi budovami z druhej fázy projektu, čím by vznikla pasáž ako žiadaný aktívny sociálny priestor ateliérov školy s ich priamym prepojením do nového technologického centra.
2. Cena (12 000 €): CHYBIK+KRISTOF ASSOCIATED ARCHITECTS
Brno, Česká republika
Autori súťažného návrhu: Ing. arch. Ondřej Chybík, Ing. arch. Michal Krištof, prof. Ing. Chybík, CSc., Ing. arch. Martin Křivánek, Ing. arch. Peter Chaban
Hodnotenie poroty:
Hmotová schéma návrhu sa zakladá na urbanistickom rastri vychádzajúcom z geometrie existujúcej budovy prof. Dušana Kuzmu. Systém umožňuje flexibilný rozvoj celého územia kampusu počas všetkých fáz. Hlavnou kvalitou návrhu je umiestnenie doteraz neexistujúceho nového vstupu a na neho nadväzujúceho transparentného technologického centra, ktoré je priamym pokračovaním "nedokončeného" pôvodného projektu. Návrh vytvára príležitosť pre veľmi reprezentatívny hlavný vstup do kampusu VŠVU. Prepojenie medzi dielňami, existujúcou školou, pôvodnej a novej architektúry a dnešných pracovných procesov umeleckej akadémie 21. storočia je zásadným prínosom navrhovaného riešenia. Internát, ktorý je pavilónovo umiestnený na južnej strane územia, síce vytvára žiadaný urbanistický dialóg s okolitou obytnou štruktúrou, avšak neberie do úvahy územný plán zóny a obmedzenia súťaže.
3. Cena (7 000 €): A B.K.P.Š.
Bratislava, Slovenská republika
Autori súťažného návrhu: Ing. arch. Martin Kusý, Ing. arch. Pavel Paňák, Ing. arch. Róbert Bakyta, Ing. arch. Martin Kusý ml.
Hodnotenie poroty:
Návrh, podobne ako víťazný projekt, nadväzuje na lineárnu os zástavby prof. Dušana Kuzmu. Na mieste nedostavaných modulov rozvíja priečne lineárne hmoty technologickej časti, typologicky dobre orientovaného internátu a druhej rozvojovej etapy VŠVU. V poetických diagramoch sú demonštrované kvality riešeného územia ako topografia pozemku a výhľady do krajiny. Problematickým je etapizácia projektu, hlavne v prvej fáze projektu nepresvedčivá vnútorná cirkulačná logika kampusu s navýšenou terénnou bariérou medzi internátom a školou a bez centrálneho vstupného priestoru, ako aj formálne architektonické riešenie fasád.
Odmenení:
Odmena bez určenia poradia (1500€): DI Andreas Marth/AllesWirdGut Architektur
Viedeň, Rakúsko
Autor súťažného návrhu: DI Andreas Marth
Hodnotenie poroty:
Návrh má jednoduché a hodnotné urbanistické riešenie, ktoré správne sleduje topografiu územia. Pôvodná budova školy prof. Dušana Kuzmu je spojená s internátom a technologickým centrom novotvarom spoločného verejného priestoru, ktorý významne kultivuje prostredie kampusu a spája južný svah krajiny so severným pahorkom a lesíkom. V prvej fáze je takto vytvorená nová vstupná dominanta nového školského areálu. Parkovacie miesta v severnej časti školy sú však riešené nevhodne.
Odmena bez určenia poradia (1500€): Ing. arch. Andrej Olah/GRAU
Bratislava, Slovenská republika
Autori súťažného návrhu: Ing. arch. Andrej Olah, Ing. arch. Filip Marčák, Ing. arch. Matej Kurajda, Ing. arch. Jana Filípková, Bc. Juraj Izrael
Hodnotenie poroty:
Návrh vytvára pozdĺžnu horizontálnu platformu v osi zástavby prof. Dušana Kuzmu s odlišnou architektúrou vertikálne vrstvených typológií parkovania, vstupu, technologického centra a verejného priestoru. Ako nevhodná sa javí etapizácia dostavby druhej fázy projektu, ako aj neprehľadné dispozície technologického centra a verejných priestorov.
Odmena bez určenia poradia (1500€): Ing. arch. Ilja Skoček
Bratislava, Slovenská republika
Autori súťažného návrhu: Ing. arch. Ilja Skoček, Ing. arch. Michal Kontšek, Bc. Martina Kalivodová
Hodnotenie poroty:
Prínosom riešenia je vytvorenie nových urbánnych priestorov nádvoria existujúcej školy, ubytovania a technologického centra s jasne definovaným vstupom a plochy parkovania už v prvej fáze projektu. Problematické sa však javia samotné typológie ubytovania a technologickej časti, ako aj konfliktné budovanie bariéry na severnej hrane pozemku voči susedom a obmedzenie kvality ich bývania.
Odmena bez určenia poradia (1500€): Ing. arch. Márius Žitňanský a Ing. arch. Vladimír Šimkovič
Bratislava, Slovenská republika
Autori súťažného návrhu: Ing. arch. Márius Žitňanský, Ing. arch. Vladimír Šimkovič, Ing. arch. Peter Gonda, Ing. arch. Ľubica Dubeňová, Ing. arch. Natália Filová, Bc. Peter Bučo
Hodnotenie poroty:
Návrh rieši horizontálnu štruktúru v severnej časti pozemku, kde technologické centrum nadväzuje na existujúce dielne a dvojposchodový šachovnicový raster ubytovacích blokov a átrií, ktoré svojou hmotou nahrádzajú objem súčasného terénu pozemku so zachovaním existujúcich severných výhľadov. Nevýhodou riešenia je enormné množstvo zemných prác a dotyk so susediacimi pozemkami, ako aj nepresvedčivá druhá etapa výstavby.
Ďalší účastníci:
AKJančina
Bratislava, Slovenská republika
Autori súťažného návrhu: Ing. arch. Juraj Jančina, Ing. arch. Jozef Bátor, PhD., Ing. arch. Jozef Karlubík, Ing. arch. Romana Maľová, Ing. arch. Tomáš Medlen, Ing. Vladimír Olej
Hodnotenie poroty:
Návrh nezaujal.
Architekti Šebo Lichý
Bratislava, Slovenská republika
Autori súťažného návrhu: Mgr. arch. Igor Lichý, Ing. arch. Tomáš Šebo, Ing. arch. Aleš Hradecký PhD., Ing. arch. Emanuel Zatloukaj, Ing. arch. Dominika Kollárova, Ing. arch. Martina Bognerová - Hrašková
Hodnotenie poroty:
Návrh je skôr zložitý. Z hľadiska architektúry a prevádzky sa dá predpokladať, že by investorovi komplikoval ekonómiu a efektivitu prevádzky.
Ateliér URBAN a FISCHERS
Bratislava, Slovenská republika
Autori súťažného návrhu: Ing. arch. Dušan Fischer, Ing. arch. Ľudovít Urban
Hodnotenie poroty:
Elipsovitý tvar ubytovne je stavebne komplikovaný a finančne náročný. Riešenie technickej stavby so športoviskami na streche je zaujímavé.
Ing. arch. Michal Bogár
Bratislava, Slovenská republika
Autori súťažného návrhu: Ing. arch. Michal Bogár, Ing. arch. Mária Bogárová
Spolupráca: Ing. arch. Sára Chomčová, Ing. arch. Martina Šajgalíková, Ing. arch. Pavol Škorvánek, Ing. arch. Matej Halada, Bc. Dominika Húdoková
Hodnotenie poroty:
Stredná chodba vo forme objektu je neopodstatnene monumentálna. Etapizácia návrhu je z hľadiska výstavby sporná.
CREATERRA
Senec, Slovenská republika
Autori súťažného návrhu: Zuzana Kierulfová, Bjorn Kierulf, Barbora Hollá
Hodnotenie poroty:
Reflexné fasády sú neadekvátne môžu spôsobiť nežiaduce odlesky a odrazy pre obyvateľov okolitých domov, môžu ohrozovať aj zvieratá z priľahlých pozemkov (predovšetkým vtáky).
EHL & KOUMAR ARCHITEKTI
Praha, Česká republika
Autori súťažného návrhu: Lukáš Ehl, Tomáš Koumar, Jana Vichorcová
Hodnotenie poroty:
Návrh nerešpektuje požiadavku na časové a stavebné oddelenie prvej a druhej etapy výstavby. Prevádzky sú previazané a požadovaný postup vylučujú.
ENDORFINE
Bratislava, Slovenská republika
Autori súťažného návrhu: Ing. arch. Tomáš Dupkala, Ing. arch. Štefan Petras, Ing. arch. Matúš Repka, Ing. arch. Pavol Ružbarský
Hodnotenie poroty:
Návrh je logický a utilitárny. Čierne bloky sú možno až príliš ponuré.
FKF design
Komárno, Slovenská republika
Autori súťažného návrhu: Ing. arch. Ladislav Vikartovský, Ing. arch. Gábor Nagy, Gábor Kovács, Dávid Nyul
Spolupráca: Zoltán Gazdag
Hodnotenie poroty:
Tri objekty sú kultivované a minimalistické. Príliš sa však izolujú od urbanistického kontextu a nemajú vzájomne previazanú prevádzku ako medzi sebou, tak ani s existujúcou budovou školy.
Kolčák architekti
Bratislava, Slovenská republika
Autori súťažného návrhu: Ing. arch. Marek Kolčák, Ing. Radovan Rusnák
Hodnotenie poroty:
Architektúra nadstavieb, akýchsi vzducholodí, pôsobí agresívnym a nepatričným dojmom.
Ing. arch. Ján Mihalov
Prešov, Slovenská republika
Autori súťažného návrhu: Ing. arch. Ján Mihalov, Ing. arch. Stanislav Dučay
Hodnotenie poroty:
Architektonické riešenie návrhu považuje porota za sporné a nevhodné ako vizuálny obraz VŠVU.
MS architekti
Praha, Česká republika
Autori súťažného návrhu: akad. arch. Pavel Hřebecký, Bc. Jan Novotný, Ing. arch. Kateřina Holotová, Ing. arch. Michal Šourek
Hodnotenie poroty:
Návrh spĺňa základné parametre zadania. Architektúra návrhu má, podľa názoru poroty, bližšie k administratívnemu komplexu, než ku kempusu umeleckej školy.
Ovo Grabczewscy architekci
Katowice, Poľsko
Autori súťažného návrhu: Barbara Grabczewska, Oskar Grabczewski, Marek Grabczewski
Hodnotenie poroty:
Návrh svojou atmosférou odkazuje skôr k obytnému súboru stavieb, než k charakteru kempusu umeleckej školy.
Pedro Pitarch Alonso
Madrid, Španielsko
Autor súťažného návrhu: Pedro Pitarch Alonso
Hodnotenie poroty:
Návrh je z hľadiska architektonického výrazu a zložitosti stavebných konštrukcií nákladný a dá sa predpokladať, že bude komplikovať ekonómiu prevádzky a hladké fungovanie kempusu.
PHA
Banská Bystrica, Slovenská republika
Autori súťažného návrhu: Ing. arch. Branislav Hovorka, Ing. arch. Martin Paulíny
Hodnotenie poroty:
Hlavnou slabinou návrhu je problematické riešenie požiadavky na etapizáciu výstavby.
PLURAL
Bratislava, Slovenská republika
Autori súťažného návrhu: Martin Jančok, Michal Janák, Zuzana Kovaľová, Ruslan Dimov
Hodnotenie poroty: Návrh je ako presný stroj. Obytné budovy a ich orientácie umožňujú výhľady na krajinu a mesto. Problémom je obiehanie ateliérov a dielní cez okružnú chodbu.
Ren Ito Arq.
Porto, Portugalsko
Autori súťažného návrhu: Ren Ito, Mária Miličková, Petr Lhoťan, Sofia Augusto, Magdalena Bogdanova, Shinichi Kinumi
Hodnotenie poroty:
Návrh je spracovaný schematicky, avšak v dostatočnej podrobnosti pre jeho posúdenie. Nová zástavba na severnej strane areálu vytvára hradbu a zabraňuje tak pohľadovému kontaktu s krajinou a mestom.
RO_AR Szymon Rozwalka architects
Swinoujscie, Poľsko
Autori súťažného návrhu: Mgr. Inż. arch. Szymon Rozwałka, Ing. arch. Ada Rypl-Žabčiková, Ing. arch. Kristina Smržová
Hodnotenie poroty:
Komplikovaná a zložitá architektúra predstavuje vysoké náklady na prevádzku a údržbu.
RULES
Bratislava, Slovenská republika
Autori súťažného návrhu: Ing. arch. Rudolf Lesňák, Ing. arch. Zuzana Knežníková, Mgr. art. Tomáš Kučera, Ing. arch. Adam Lukačovič, Jakub Zelenčík
Hodnotenie poroty:
Architektonické riešenie návrhu nepovažuje porota za reprezentatívny vizuálny obraz umeleckej akadémie 21. storočia. Problematická sa javí aj etapizácia, kde v prvej fáze nová škola za existujúcou budovou nedáva VŠVU novú identitu..
Růžička a partneři
Praha, Česká republika
Autori súťažného návrhu: Ing. arch. David Neuhäusl, Ing. arch. Matěj Hunal, Ing. arch. Veronika Paľová, Ing. arch. Jakub Zelenák
Hodnotenie poroty:
Architektúra návrhu je minimalistická a kultivovaná. Stavby sú však príliš izolované od svojho okolia a príliš ignorujú prevádzku existujúcich budov.
SPDe
Bratislava, Slovenská republika
Autori súťažného návrhu: Ing. arch. Štefan Lichvár, Ing. arch. akad. arch. Mária Lichvárová, Ing. arch. Michal Petráš, Doc. Ing. arch. Alexander Schleicher, PhD.
Spolupráca: Ing. arch. Lucia Kučerová, Ing. arch. Tomáš Kuric, Ing. arch. Barbora Lichtmanová, Ing. Marián Lauko
Hodnotenie poroty:
Návrh má sporné riešenie exteriérových priestorov s ohľadom na urbanistický potenciál miesta. Monumentalita priestoru vstupnej časti nezodpovedá areálu umeleckej školy.
Studio Perspektiv
Praha, Česká republika
Autori súťažného návrhu:
Ing. arch. Martin Stára, Ing. arch. Jan Antal
Hodnotenie poroty:
Kampus je spracovaný profesionálne vo všetkých disciplínach architektonického návrhu. Jeho architektúra ale skôr zodpovedá komerčnému developmentu, než kampusu vysokej školy.
Arch. Dipl. Ing. Max Uteh
Viedeň, Rakúsko
Autori súťažného návrhu: Arch. Dipl. -Ing. Max Utech, Dipl.-Ing. Urban Žunko, Mgr. art. Peter Szilágyi
Hodnotenie poroty:
Kompaktnosť bloku je zaujímavá, problematická je jeho prílišná izolácia od zbytku školy.
zerozero
Prešov, Slovenská republika
Autori súťažného návrhu: Ing. arch. Irakli Eristavi, Ing. arch. Pavol Šilla, Ing. arch. Juraj Červený, Bc. Ondrej Jurčo
Hodnotenie poroty:
Návrh je jednoduchý a utilitárny. Monumentalita architektúry návrhu príliš neprospieva a pripomína skôr významnú vládnu inštitúciu. Porota sa domnieva, že jazyk architektúry by mal (u tohto typu zadania) mať bližšie k neformálnej prevádzke umeleckej školy.
V prílohe nájdete zápis z hodnotiaceho zasadnutia poroty:
Pre úplnosť informácie dopĺňame zloženie autorského kolektívu pôvodných budov areálu VŠVU na Drotárskej ceste v Bratislave:
Autori:
Prof. Ing. arch. Dušan Kuzma, 1980 projektant IPO Školské stavby 1981
AA Atelier Architektúry autori Prof. Ing. arch. Akad. arch. Ján M. Bahna,
Akad. arch. Igor Palčo 2000
Spoluautori:
Miloš Juráni, Zuzana Pajerchinová, Július Toma, Miroslav Tomík 2000