Advertorial

Hotel Hirschen Spa House, Rakúsko

Novotvar v prostredí alpskej obce.

Vytvorte si kúpeľňu snov: dizajnové riešenie od značky hansgrohe

Hansgrohe - prémiová značka kúpeľňových riešení, ponúka nadčasový dizajn, technickú precíznosť a udržateľné inovácie...

Okná Internorm za minuloročné ceny + hliníkový kryt zdarma!

Využite špeciálnu akciu Internorm: okná za minuloročné ceny a hliníkový kryt úplne zadarmo. Ponuka je časovo obmedzená!

Pozvánka na 2. ročník stavebného veľtrhu BigMarket na Slovensku

Na podujatí sa predstaví až 37 vystavovateľov - popredných dodávateľov stavebných materiálov a inovácií s prezentáciou...

Moderné plynové technológie: Efektivita a inovácie pre 21. storočie

Sumarizácia najdôležitejších inovácií, ktoré redefinujúcich využitie tohto energetického zdroja.

Utesňovanie spodných stavieb pomocou hydro-aktívnej fólie AMPHIBIA.

AMPHIBIA 3000 GRIP 1.3 od spoločnosti ATRO predstavuje modernú hydroizolačnú technológiu, ktorá spája vysokú odolnosť,...

Dekarbonizácia individuálneho vykurovania domácností – Green Deal evolučne a nie revolučne

Ambiciózne plány EK narazili na ekonomické možnosti domácností v jednotlivých členských štátoch –...

Minimalistické dvere IDEA – technická precíznosť a čistota prevedenia

IDEA DOOR od spoločnosti JAP prináša do interiéru čistý minimalistický vzhľad vďaka bezrámovému riešeniu a precíznej...

Dom s výhľadom na údolie, Dlouhý Most (ČR)

Kontinuita riešenia od vonkajšieho obkladu až po kovania a kľučky.

Schell Vitus – osvedčené riešenie pre sprchy a umývadlá vo verejnom sektore s viac ako desaťročnou tradíciou

Nástenné nadomietkové armatúry Vitus sú mimoriadne vhodné pre rýchlu a efektívnu...

Kompozitné okná predstavujú súčasnosť a budúcnosť

Okenné profily z kompozitného materiálu RAU-FIPRO X od spoločnosti Rehau sú v porovnaní s tradičnými plastovými profilmi mnohonásobne...

Myotis - stoly 2025

Najnovší sortiment stolov pre zariadenie interiérov...

Priemyselné sklenené priečky Dorsis Digero: svetelné rozhranie pre moderné interiéry

Spojenie moderného dizajnu, funkčnosti a svetla do harmonického architektonického prvku.

Význam prirodzeného svetla pre moderné a flexibilné pracovné prostredie

Kancelárska budova Baumit v slovinskom Trzine prešla premenou na moderné a udržateľné pracovisko. Architekti kládli dôraz...

Konferencia Xella Dialóg predstaví novinky a trendy v stavebníctve

Mottom šiesteho ročníku on-line konferencie odborníkov Xella Dialóg je Efektívny návrh budov 2025+: zmeny a riešenia

Park Pamięci Wielkiej Synagogi w Oświęcimiu, Poľsko

Skromné a predsa nepriehľadnuteľné.
Diela
Red 327.01.2022
8210+18
Park Pamięci Wielkiej Synagogi w Oświęcimiu, Poľsko
Autori: Bartosz Haduch, Łukasz MarjańskiSpolupráca: Magdalena Poprawska, Robert Haponik, Maria KoczurInvestor: Żydowskie Centrum EdukacyjnePlocha pozemku: 693 m2Návrh: 2019 - 2019Realizácia: 2019 - 2019Adresa: Berka Joselewicza 5, Osvienčim, PoľskoPublikované: 27. január 2022

V nasledujúcich článkoch predstavíme realizácie z okolitých krajín, ktoré sa dostali do užšieho výberu EU mies award 2022. Začíname komorným projektom so silným odkazom u našich severných susedov. 

“Takmer pred desiatimi rokmi som náhodou natrafil na krásny odpadový materiál – sivé pieskovcové dosky s nespočetnými nepravidelnými rezmi. Dlhé roky som hľadal adekvátnu príležitosť, ako využiť platne s rozmermi 220 x 120 cm. Nakoniec som správny projekt našiel v meste Osvienčim,” začína rozprávanie o genéze projektu architekt Bartosz Haduch z poľského ateliéru NArchitekTURA. Práve materiál, klasifikovaný ako priemyselný odpad sa stal leitmotívom pamätného parku v meste Osvienčim, ktorý sa dostal do výberu poroty v rámci aktuálneho ročníku Ceny Európskej únie za súčasnú architektúru.

Foto: Piotr Strycharski

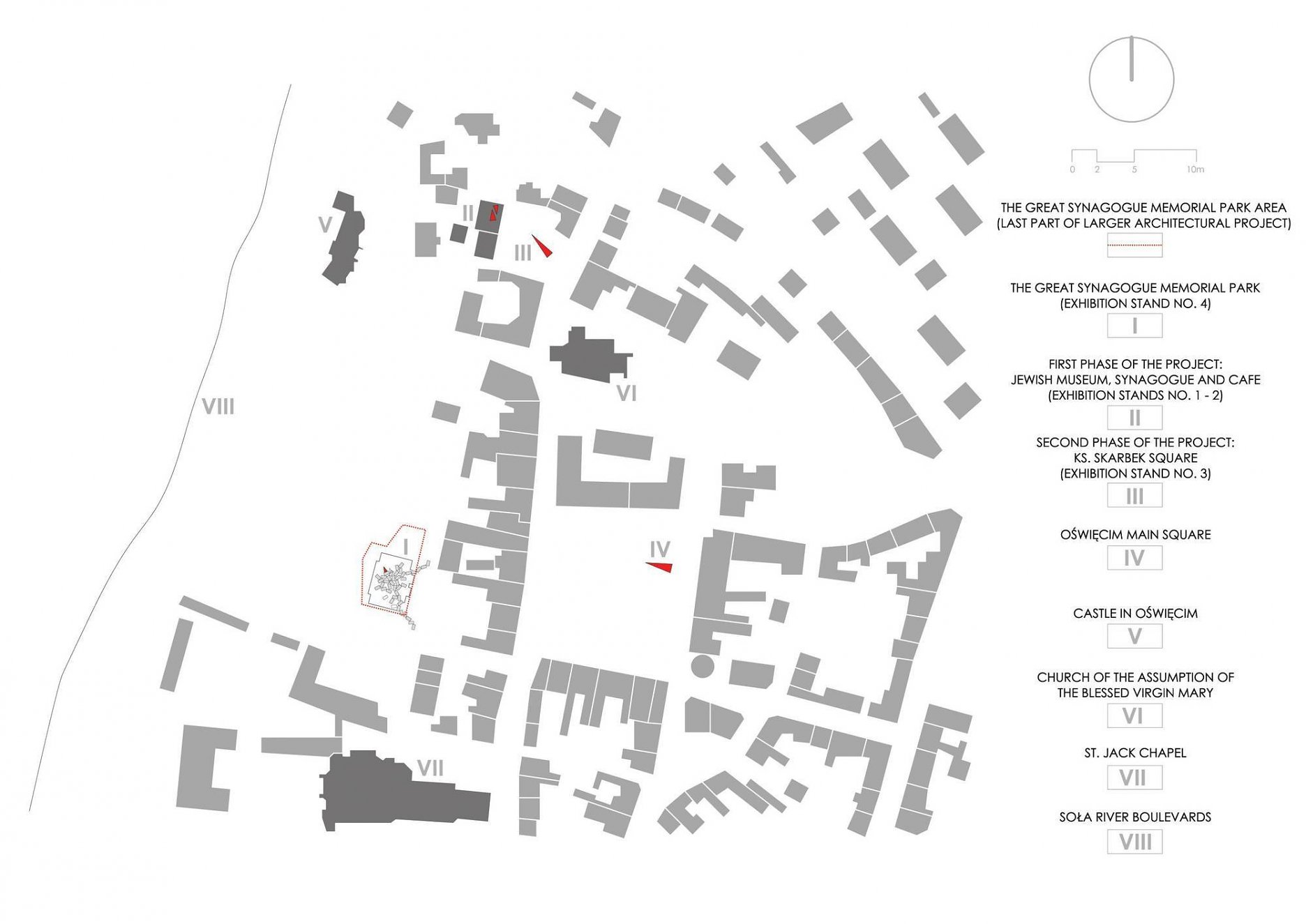
Pietne miesto vzniklo na mieste základov najväčšej synagógy v meste, ktorú podpálili nemeckí okupanti v noci z 29. na 30. novembra 1939. Prázdny priestor postupne zrástol, historické svedectvo sa zachovalo iba v spomienkach najstarších pamätníkov. Osemdesiat rokov po zničení synagógy sa obyvatelia Osvienčimu rozhodli na mieste základov Veľkej synagógy zriadiť pamätný park. Projekt, ktorý iniciovalo Židovské centrum v Osvienčime sa uskutočnil vďaka finančnej zbierke a podpore obyvateľov mesta, verejných inštitúcií, aj potomkov preživších osvienčimských Židov.

Foto: Piotr Strycharski

Architektonické riešenie parku je skromné v materiáloch a nárokoch na realizáciu, naopak bohaté vo výraze, metaforách, posolstve. Nielen statické a mŕtve, odkazujúce na minulosť. Ale tiež živé, aktívne, s pohľadom do budúcnosti.

Foto: Piotr Strycharski

Odkazy na minulosť nadobúdajú v projekte rôzne podoby. Obrys vypálenej synagógy vymedzuje úzky obrubník, ktorý oddeľuje priestor od okolitej hustej zelene. Vstupy do parku sú orientované k obľúbeným peším trasám. Smerujú tiež k dvom miestnym dominantám - kostolu Nanebovzatia Panny Márie a Kaplnke Panny Márie, Pomocnice kresťanov. Nový park sa otvára malebnej panoráme nábreža rieky Soła. 

Širšie vzťahy: NArchitekTURA
Situácia: NArchitekTURA

V priestore dominuje mozaika vytvorená zo spomínaných štyridsiatich sivých pieskovcových platní. Nepravidelné usporiadanie blokov, z materiálu podobného podlahe pôvodnej synagógy, tvorí chodníky vedúce k ďalším dôležitým bodom: Vonkajší výstavný modul prezentuje históriu synagógy (jeho stvárnenie odkazuje na predchádzajúci projekt ateliéru NArchitekTURA - neďaleké židovské centrum v Osvienčime), fragment zachovanej historickej podlahy chrámu, vodný prvok, korténové lavičky a luster, ktorý je kópiou artefaktu nájdeného tu pri archeologických prácach. Rozmery, tvary a materialitu nových foriem spája nielen židovská tradícia, ale tiež univerzálna symbolika, čitateľná pre rôzne vyznania a kultúry.

Axonometria
AxonometriaŠiršie vzťahy: NArchitekTURA
Diagram
DiagramŠiršie vzťahy: NArchitekTURA

Otvorený charakter priestoru nabáda k rôznym spôsobom využitia a interpretácie. Ústredný motív “cesty životom“ znázorňujú nespočetné línie zarezané v pieskovcových platniach. Vytvárajú jedinečný reliéf, ktorý mení svoju podobu v závislosti od dennej doby a počasia. Jedinečná drobnokresba povrchov vznikla náhodou v kamenárstve, kde sa dosky s rozmermi 220 x 120 cm používali ako podložky na rezanie menších formátov. Platne klasifikované ako odpad oživili architekti ako gesto odporu proti nadmernému využívaniu prírodných zdrojov. 

Foto: Piotr Strycharski
Foto: Piotr Strycharski
Foto: Bartosz Haduch
Foto: Piotr Strycharski
Foto: Bartosz Haduch
Foto: Bartosz Haduch
Foto: Bartosz Haduch

“Križujúce sa línie nadobúdajú symbolický rozmer. Bez jasného začiatku alebo konca smerujú k nekonečnu. Hustá sieť rezových línií evokuje cesty ľudského života, ktoré sa niekedy len pretínajú, inokedy spájajú, aby plynuli spoločným smerom. Zdanlivo abstraktná mozaika môže pripomínať aj dnes už neexistujúce urbanistické usporiadanie predvojnového mesta - jeho ulice, chodníky a budovy. Táto „vytesaná“ história Osvienčimu, Veľkej synagógy a ruín, ktoré zostali po jej zničení, má za cieľ uchovať spomienku na minulosť s varovným odkazom do budúcnosti a zároveň osláviť súčasnosť. Často sa sám seba pýtam, ako sa bude v budúcnosti interpretovať posolstvo ukryté v štyridsiatich kusoch platní v parku…“  dopĺňa na záver architekt Bartosz Haduch.

Foto: Bartosz Haduch

Podklady: NArchitekTURA
Fotografie: Piotr Strycharski a Bartosz Haduch

Poloha diela

Bartosz Haduch
Łukasz Marjański

Súvisiace články

Vložené
21. január 2022
0
821
Hlavný obsahHlavný obsah
Čakajte prosím