Advertorial

Pozvánka na 2. ročník stavebného veľtrhu BigMarket na Slovensku

Na podujatí sa predstaví až 37 vystavovateľov - popredných dodávateľov stavebných materiálov a inovácií s prezentáciou...

Hotel Hirschen Spa House, Rakúsko

Novotvar v prostredí alpskej obce.

Vytvorte si kúpeľňu snov: dizajnové riešenie od značky hansgrohe

Hansgrohe - prémiová značka kúpeľňových riešení, ponúka nadčasový dizajn, technickú precíznosť a udržateľné inovácie...

Okná Internorm za minuloročné ceny + hliníkový kryt zdarma!

Využite špeciálnu akciu Internorm: okná za minuloročné ceny a hliníkový kryt úplne zadarmo. Ponuka je časovo obmedzená!

Moderné plynové technológie: Efektivita a inovácie pre 21. storočie

Sumarizácia najdôležitejších inovácií, ktoré redefinujúcich využitie tohto energetického zdroja.

Utesňovanie spodných stavieb pomocou hydro-aktívnej fólie AMPHIBIA.

AMPHIBIA 3000 GRIP 1.3 od spoločnosti ATRO predstavuje modernú hydroizolačnú technológiu, ktorá spája vysokú odolnosť,...

Dekarbonizácia individuálneho vykurovania domácností – Green Deal evolučne a nie revolučne

Ambiciózne plány EK narazili na ekonomické možnosti domácností v jednotlivých členských štátoch –...

Minimalistické dvere IDEA – technická precíznosť a čistota prevedenia

IDEA DOOR od spoločnosti JAP prináša do interiéru čistý minimalistický vzhľad vďaka bezrámovému riešeniu a precíznej...

Dom s výhľadom na údolie, Dlouhý Most (ČR)

Kontinuita riešenia od vonkajšieho obkladu až po kovania a kľučky.

Schell Vitus – osvedčené riešenie pre sprchy a umývadlá vo verejnom sektore s viac ako desaťročnou tradíciou

Nástenné nadomietkové armatúry Vitus sú mimoriadne vhodné pre rýchlu a efektívnu...

Kompozitné okná predstavujú súčasnosť a budúcnosť

Okenné profily z kompozitného materiálu RAU-FIPRO X od spoločnosti Rehau sú v porovnaní s tradičnými plastovými profilmi mnohonásobne...

Myotis - stoly 2025

Najnovší sortiment stolov pre zariadenie interiérov...

Priemyselné sklenené priečky Dorsis Digero: svetelné rozhranie pre moderné interiéry

Spojenie moderného dizajnu, funkčnosti a svetla do harmonického architektonického prvku.

Význam prirodzeného svetla pre moderné a flexibilné pracovné prostredie

Kancelárska budova Baumit v slovinskom Trzine prešla premenou na moderné a udržateľné pracovisko. Architekti kládli dôraz...

Konferencia Xella Dialóg predstaví novinky a trendy v stavebníctve

Mottom šiesteho ročníku on-line konferencie odborníkov Xella Dialóg je Efektívny návrh budov 2025+: zmeny a riešenia

Atelierhaus C.21, Viedeň

Práca, bývanie, komunita...
Diela
Red 305.02.2022
11940+20
Atelierhaus C.21, Viedeň
Autori: Werner NeuwirthSpolupráca: Gaban Büllingen, Robert Hahn, Isolde RajekInvestor: Robert HahnPlocha pozemku: 3383 m2Podlažná plocha: 7375 m2Návrh: 2019 - 2021Realizácia: 2019 - 2021Adresa: Maria-Lassnig-Straße 33, Viedeň, RakúskoPublikované: 5. február 2022

Predstavujeme projekt komunitného bývania vo viedenskej štvrti Sonnwendviertel Ost, neďaleko hlavnej železničnej stanice. Ďalšie dielo z pätice rakúskych realizácií ktoré sa dostalo do užšieho výberu EU mies award 2022.

Dom na úzkom pozemku, vedľa koľajiska hlavnej vlakovej stanice. Nepravidelné otvory na fasáde otvárajú pohľad na neobvyklú priestorovú štruktúru. Téza architekta Wernera Neuwirtha “Vytvoriť priestor a čakať čo sa stane” definovala otvorenú a flexibilnú štruktúru individuálnych priestorových jednotiek, ktoré dokážu zastrešiť prácu, bývanie, alebo pokojne aj obe funkcie súčasne. Atelierhaus C.21 odráža progresívne princípy aplikované pri plánovaní štvrte Sonnwendviertel Ost a nachádza sa iba niekoľko desiatok metrov od projektu Gleis 21, ktorý sa takisto dostal do aktuálneho užšieho výberu EU Mies Award. Pozemok vo východnom cípe územia, priamo popri koľajniciach našiel nové, zmysluplné využitie.

Nový uhol pohľadu

Architekt a maliar Werner Neuwirth žije a tvorí v úzadí. Žiadne profesionálne profilové fotografie, minimum rozhovorov a verejných vystúpení. Webová stránka, ktorej adresu namiesto obvyklého mena tvorí štvorica čísel nikde neuvádza kontakt a nezobrazuje galériu projektov. Atelierhaus C.21 je iba siedmou Neuwirthovou realizáciou dokončenou za posledných 20 rokov. Ako sprievod k stavbe vydal architekt knihu viazanú v sivom plátne, ktorú opäť nikde nepropaguje. “Kto má záujem, nájde si ju,“ vysvetľuje. Podobné konštatovanie platí aj o aktuálnej realizácii. Novostavba vo viedenskej štvrti Sonnwendviertel ale tentokrát neunikla pozornosti poroty aktuálneho ročníka EU Mies Award. 

Realizácia, ktorá prepája svety práce a bývania v mnohých ohľadoch prekračuje hranice bežnej typológie. Východiskom bol úzky pozemok v bezprostrednom susedstve koľají hlavnej železničnej stanice, kde staršie územné plány počítali s izolačnou zeleňou. Neskorší koncept urbanistu Alberta Wimmera počítal v zóne s klasickou schémou: skladové priestory a administratíva vedľa železnice, široká obslužná ulica, a bývanie orientované do líniového parku. Po tom, čo sa ukázalo, že potreba bývania výrazne prevyšuje dopyt po klasických kancelárskych a obchodných priestoroch, bol v rámci participatívneho procesu pod vedením Maxa Riedera vypracovaný nový územný plán s menšími stavebnými pozemkami a výrazne redukovanou individuálnou dopravou. Úzky švík, vymedzený koľajiskom a cestou zostával stále vymedzený pre “podradnejšie” funkcie. Werner Neuwirth sa s tým odmietal zmieriť. Pre architekta znamenali komplikované východiská, výzvu a kus slobody. Navyše život na rušnej dopravnej tepne nepovažoval iba za prekážku, ale tiež za zaujímavý benefit.

Práca, bývanie, komunita...

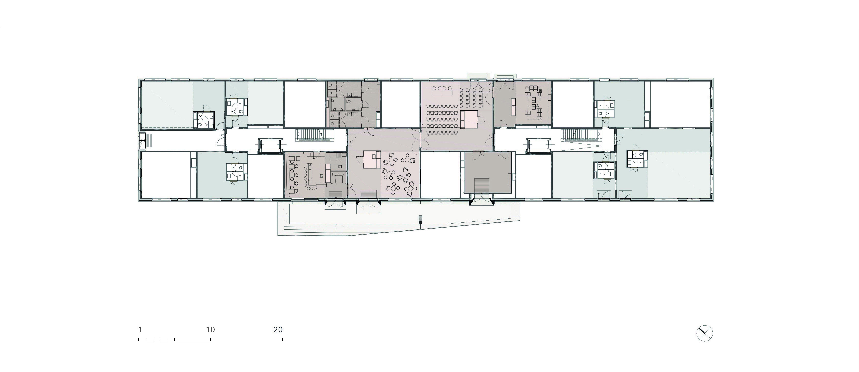
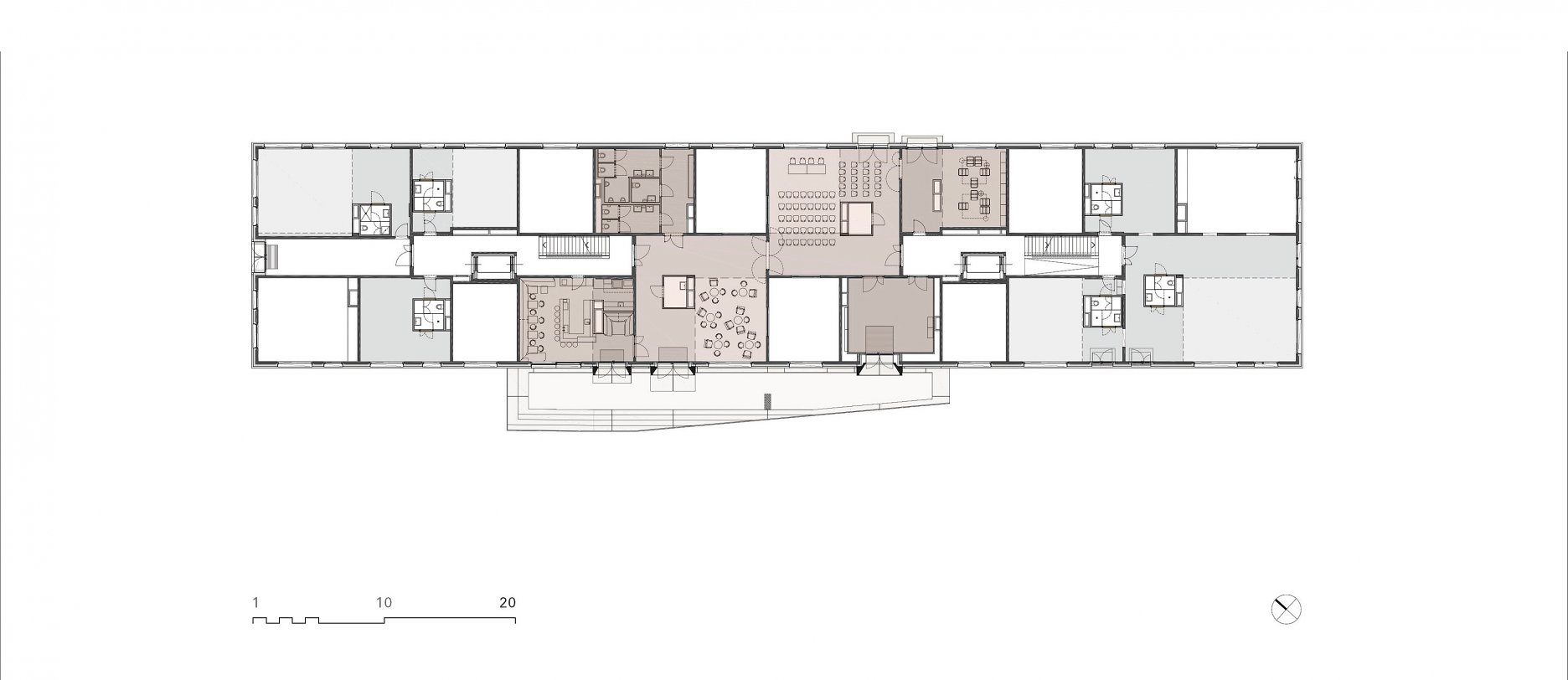
“Vytvoriť priestor a čakať čo sa stane,” opisuje Neuwirth základnú tézu projektu. Namiesto jasného definovania budúceho využitia vytvára stavba jednoduchý rámec, ktorý dokáže pojať širokú paletu funkcií a vysporiadať sa s ich budúcim živelným vývojom. Žiadne štandardizované kancelárie, obývačky, spálne… “Len čo sa človek odkloní od zaužívaných zvykov, vzniká určitá neistota. Nie každý sa dokáže vysporiadať s takouto slobodou” hovorí Neuwirth. Aj preto sa ako najvhodnejšia klientela pre budúce využitie stavby javili kreatívci a umelci. Vznikol koncept ateliérového domu - pojmu, ktorý nedefinuje stavebný zákon ani žiadna legislatíva. Ide o voľne interpretovanú typológiu komerčných priestorov. Objem zapĺňa 78 ateliérov, dve galérie a kaviareň. To, čo zvonku vyzerá ako jednoduchý kváder, je vo vnútri trojrozmerné puzzle v štýle M. C. Eschera. Precízne koncipovaný systém kombinuje priestory s výškou 5,70 a 2,70 metrov do troch základných modulov, určujúcim prvkom je vždy hygienické jadro. “Nespočetné množstvo času zabralo práve trasovanie inštalačných šácht s ohľadom na flexibilné využitie priestoru,” vysvetľuje architekt. Veľké okno, malé okno, odhalené betónové steny... Čo nasleduje, je umelecká sloboda.

Dokonca aj prízemie a suterén sa riadia rovnakým systémom demokraticko-geometrického purizmu. V závislosti od toho, či je dielik skladačky dole, hore, v rohu alebo v strede, výsledok je vždy iný. Horizontálnym alebo vertikálnym spojením dvoch, alebo viacerých dielikov puzzle sa možnosti znásobujú. Aj pri obmedzení na jednu jednotku, pridanie galérie dokáže vytvoriť novú izbu. 

Všetky ateliéry našli svojich majiteľov. Niektoré sú ešte prázdne, iné už zdobia plátna a črepníky... Betónovo-sivé základné moduly, ktoré boli spočiatku rovnaké, smerujú k individualite. Komplikované priestorové usporiadanie prebieha aj na najvyššie poschodie, ktoré nie je jednoducho horizontálne zrezané. Tvorí jednotlivé strešné terasy s výhľadmi na Viedeň, ktoré rámujú pravouhlé výrezy vo fasáde. 

Štruktúra:

78 ateliérov: 40 – 120 m² a 6 dielní: 40 – 175 m² 2 galérie, kaviareň, salón, foyer, skladový priestor 460m², 31 parkovacích miest, strešné terasy

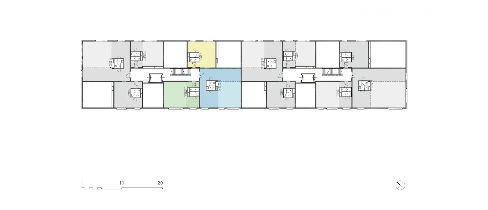
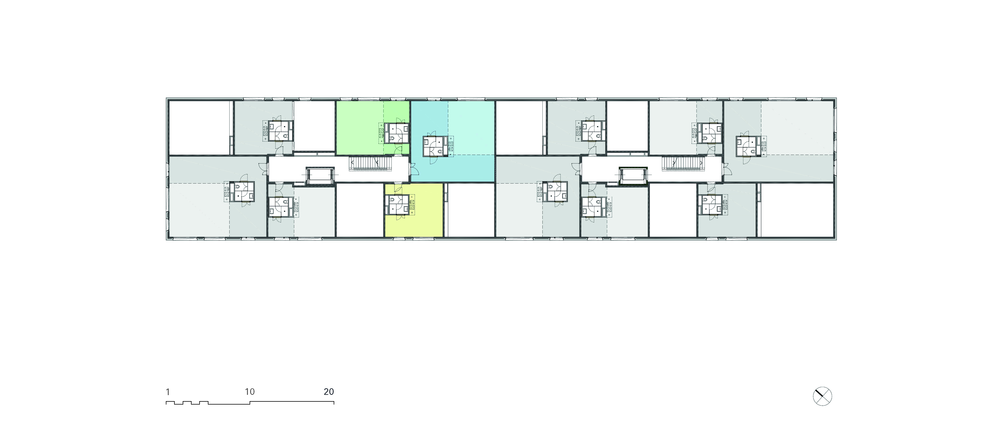
Základný stavebný modul tvoria jednotky A, B a C, ktorých súčasťou je hygienické jadro s WC, sprchou, umývadlom a prípojkami pre práčku a malú kuchyňu. Typická svetlá výška je 2,70 m v jednotkách B a C a 5,70 m v hlavnom priestore. Skladbu 84 ateliérových jednotiek rozširuje strešná terasa, a foyer so salónom na prízemí, ktoré sú voľne dostupné pre komunitu. Spoločné priestory dopĺňa malá kaviareň a galéria.

Stoickú geometrickú obálku stavby uvoľňujú nepravidelné perforácie, ktoré reflektujú vnútorné priestorové riešenie. Úprimnú vonkajšiu formu podčiarkuje surové materiálové riešenie.

Foto: Stefan Müller
Foto: Stefan Müller
Foto: Stefan Müller
Foto: Stefan Müller
Foto: Stefan Müller
Situácia
SituáciaAutor: Werner Neuwirth
Pôdorys prízemia
Pôdorys prízemiaAutor: Werner Neuwirth
Typický pôdorys "A"
Typický pôdorys "A"Autor: Werner Neuwirth
Typický pôdorys "B"
Typický pôdorys "B"Autor: Werner Neuwirth
Typické ateliérové jednotky
Typické ateliérové jednotkyAutor: Werner Neuwirth
Pozdĺžny rez
Pozdĺžny rezAutor: Werner Neuwirth

Podklady: Werner Neuwirth
Fotografie: Stefan Müller

Poloha diela

Werner Neuwirth

Súvisiace články

Vložené
28. január 2022
0
1194
Hlavný obsahHlavný obsah
Čakajte prosím