Novotvar v prostredí alpskej obce.
Hansgrohe - prémiová značka kúpeľňových riešení, ponúka nadčasový dizajn, technickú precíznosť a udržateľné inovácie...
Využite špeciálnu akciu Internorm: okná za minuloročné ceny a hliníkový kryt úplne zadarmo. Ponuka je časovo obmedzená!
Na podujatí sa predstaví až 37 vystavovateľov - popredných dodávateľov stavebných materiálov a inovácií s prezentáciou...
Sumarizácia najdôležitejších inovácií, ktoré redefinujúcich využitie tohto energetického zdroja.
AMPHIBIA 3000 GRIP 1.3 od spoločnosti ATRO predstavuje modernú hydroizolačnú technológiu, ktorá spája vysokú odolnosť,...
Ambiciózne plány EK narazili na ekonomické možnosti domácností v jednotlivých členských štátoch –...
IDEA DOOR od spoločnosti JAP prináša do interiéru čistý minimalistický vzhľad vďaka bezrámovému riešeniu a precíznej...
Kontinuita riešenia od vonkajšieho obkladu až po kovania a kľučky.
Nástenné nadomietkové armatúry Vitus sú mimoriadne vhodné pre rýchlu a efektívnu...
Okenné profily z kompozitného materiálu RAU-FIPRO X od spoločnosti Rehau sú v porovnaní s tradičnými plastovými profilmi mnohonásobne...
Najnovší sortiment stolov pre zariadenie interiérov...
Spojenie moderného dizajnu, funkčnosti a svetla do harmonického architektonického prvku.
Kancelárska budova Baumit v slovinskom Trzine prešla premenou na moderné a udržateľné pracovisko. Architekti kládli dôraz...
Mottom šiesteho ročníku on-line konferencie odborníkov Xella Dialóg je Efektívny návrh budov 2025+: zmeny a riešenia

Medzi najdôležitejšie kultúrne udalosti posledných rokov u našich západných susedov patrí transformácia industriálneho areálu v Pardubiciach na modernú kultúrno-spoločenskú časť mesta. Fungujúce partnerstvo verejného, súkromného a neziskového sektora umožnilo realizáciu rozsiahleho projektu, na ktorom sa podieľajú výrazné mená z českej architektonickej obce. Prvú dokončenú etapu z dielne TRANSAT architekti, ktorá premenila priestorné haly pôvodnej mylnice na výstavné priestory Gočárovej galérie sme predstavili pred rokom.
Dnes sa do komplexu na brehu rieky Chrudimka pozrieme opäť. Tentokrát priblížime projekt oživenia susedného sila, nominovaný v aktuálnom ročníku Českej ceny za architektúru, ktorý vznikol podľa návrhu kolektívu Prokš Přikryl architekti. Spomínané projekty tvoria súčasť nedávno slávnostne otvorenej prvej etapy prestavby a dostavby areálu bývalých Automatických mlynov, na ktorej sa podieľal aj tím Šépka architekti (objekty Sféra, GAMPA, verejné priestranstvá). V druhej etape výstavby pribudnú do súboru tri nové bytové a komerčné objekty. Stavby doplnené o občiansku vybavenosť navrhuje Zette ateliér pod vedením architekta Zdeňka Balíka, ktorý stál pri zrode celej myšlienky revitalizácie brownfieldu po boku investorov Lukáša Smetanu a Mariany Smetanovej.
Krátky exkurz do histórie
Národná kultúrna pamiatka Winternitzovy automatické mlýny patrí medzi prvé realizácie Josefa Gočára. Dve porovnateľne výrazné etapy výstavby v rokoch 1910 - 1911 a 1920 - 1924 reflektujú vývoj dobových architektonických tendencií. Od ranej moderny k národnému slohu - paralelne k dvom fázam pohonu mlyna vodnou a elektrickou energiou. V prvej etape vytvoril Gočár lapidárnu hmotu mlyna pozdĺž rieky Chrudimka. Neskôr k nej pridal najvyššie poschodie. Pribudli tiež dve veže, prepojené oblúkovým premostením do podoby mýtickej Ištarinej brány - vodárenská veža a samostatná veža sila. Až v spomínanej druhej fáze dopĺňa architekt stavbu cimburím geometricky abstrahovaných lastovičích chvostov.
Vnútri bola stavba podriadená technológii ukladania a spracovania obilia na najvyššej technickej úrovni svojej doby. Konštrukčne pozoruhodná je päťpodlažná mlynica, delená drevenými stropmi, ktoré nesie raster oceľových stĺpov a prievlakov. Ostatné konštrukcie tvorí železobetón a tehlové murivo.
Genéza projektu
Po ukončení výroby, ktorá prebiehala nepretržite viac ako sto rokov, bola väčšina technologického vybavenia odstránená. Areál sa v krátkom slede stal národnou kultúrnou pamiatkou. V roku 2015 ho v dražbe získali manželia Smetanovci, s cieľom priniesť novú náplň a využitie.
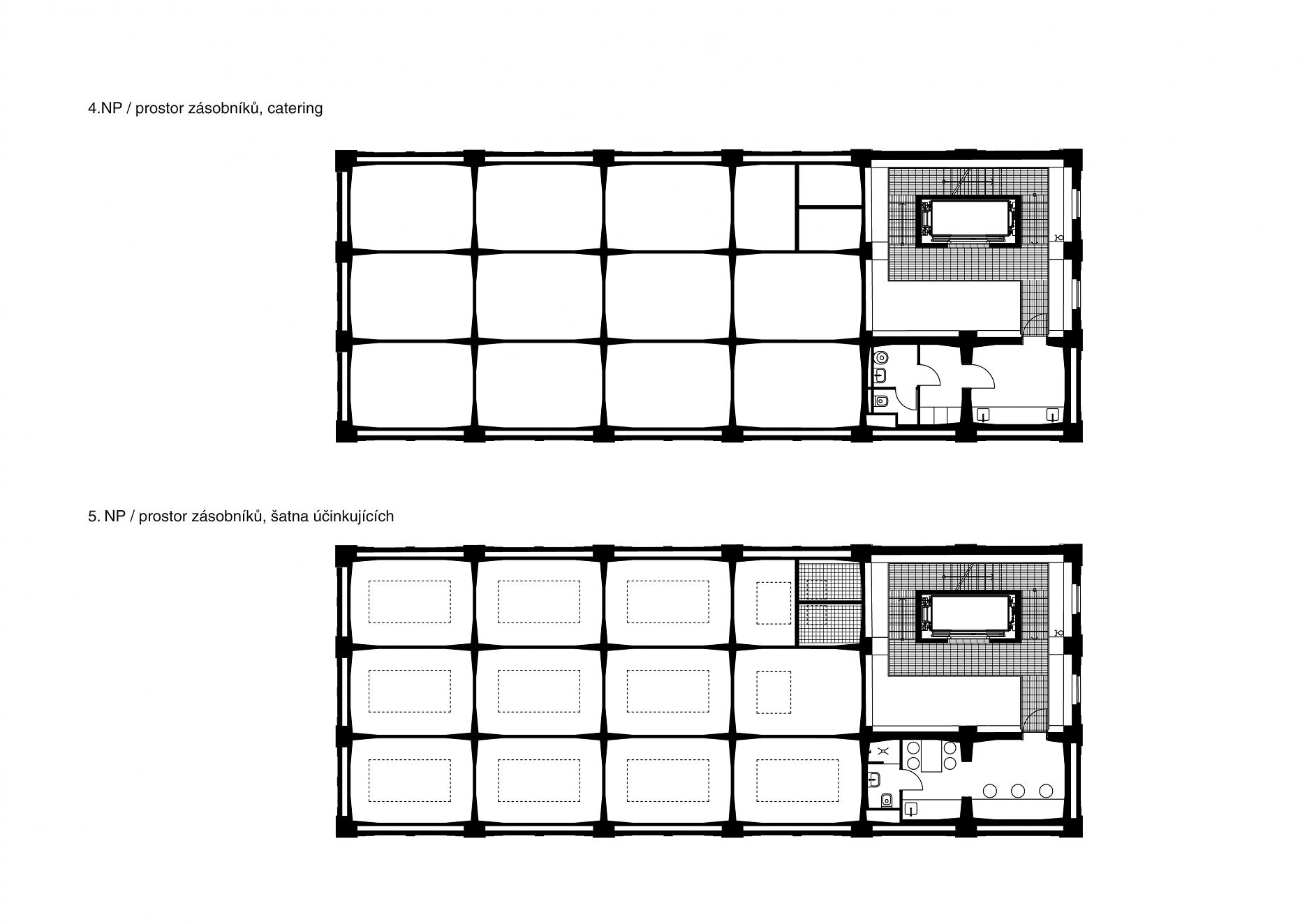
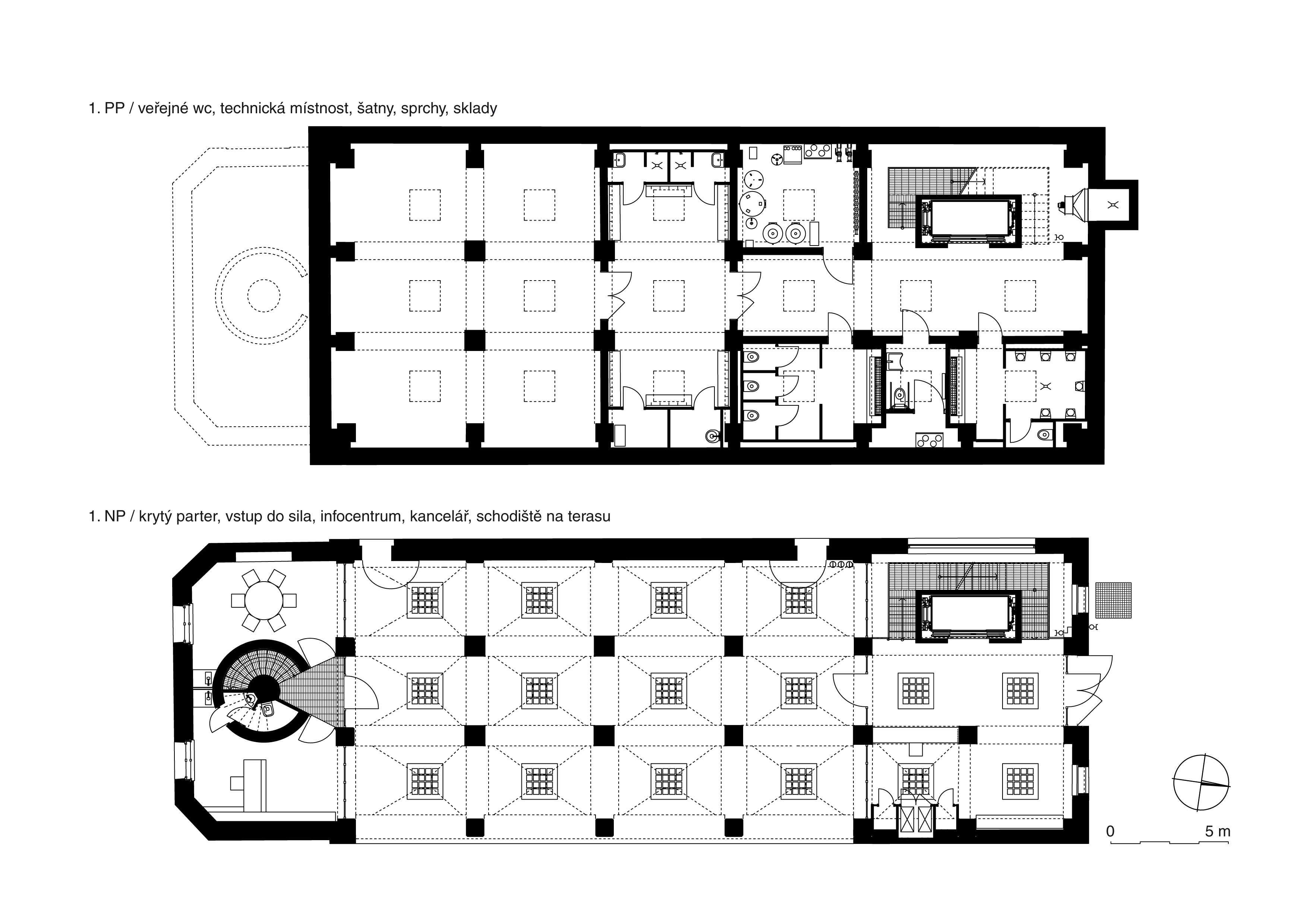
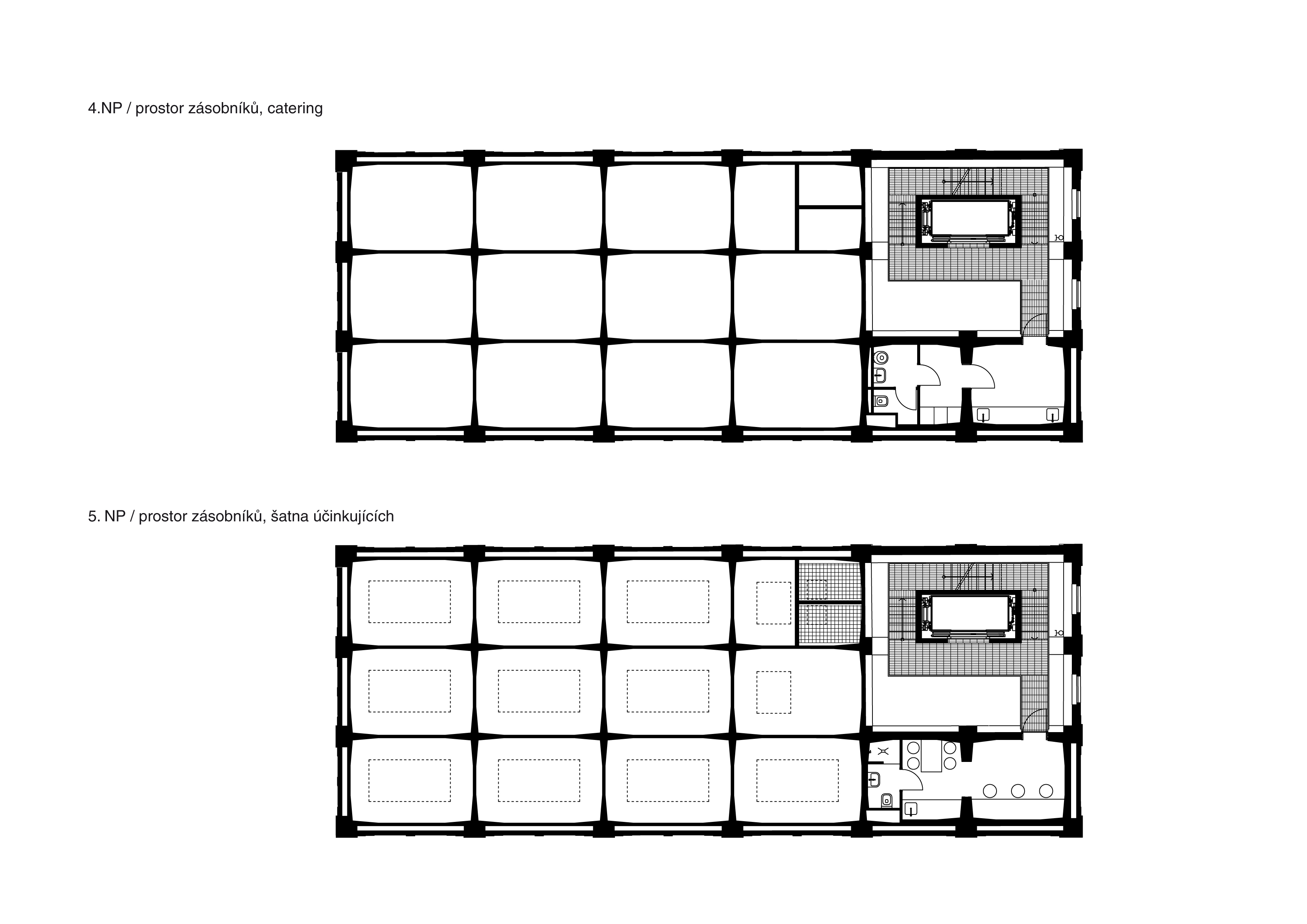
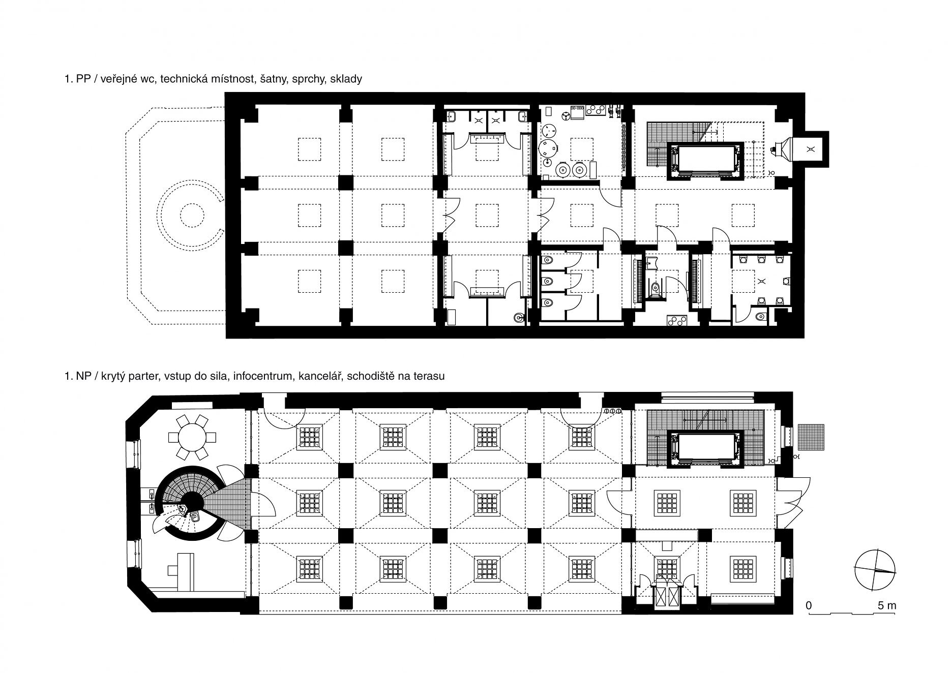
Objekt sila po viac ako sto rokoch naplnila spoločenská funkcia. Vo viacúčelovej hornej sále sa konajú divadlá, prednášky, koncerty a spoločenské akcie. Strešná terasa s barom ponúka novú vyhliadku na mesto. V sprístupnených násypníkoch je výstavný priestor a odhalený parter slúži ako krytý verejný priestor. Suterén s verejnými toaletami zaisťuje zázemie pre celé nové námestie.
Objekt-stroj pôvodne tvorili tri základné časti: technológia (firma Prokop a synovia), skeletová konštrukcia (dielo staviteľa Pollerta) a vonkajší plášť (architekt Josef Gočár). Práve vďaka Josefovi Gočárovi, ktorý patrí medzi kľučových českých autorov XX. storočia, nevnímajú stavbu obyvatelia mesta iba ako jeden z mnohých industriálnych objektov. Už krátko po výstavbe si zvykli na neho ako na významnú súčasť architektonickej identity sídla.
Rez pôvodnou fasádou
Najvýraznejším zásahom ateliéru Prokš Přikryl architekti je otvorenie stavby z oboch bočných strán a vytvorenie krytého podlubia v priestore pod násypníkmi. "Myšlenka otevření budovy do náměstí šla ruku v ruce s celkovým otevřením areálu městu po více než sto letech. Otevření bran, otevření parteru. Otevřeli jsme i cihelný sokl velkým otvorem, který byl doposud tajemně uzavřený. Odkryté zásobníky obilí daly krytému prostoru atmosféru. Ze strany mezi mlýny a silem je parter propojen v místech původních dveří. Z druhé strany je sokl naopak široce prolomen novým otvorem." vysvetľujú architekti.
Rovnako ako v minulosti, aj dnes jednotlivé výškové úrovne sila spája jediné komunikačné jadro. Hlavnou zmenou je vloženie sály do bývalého technologického priestoru na šiestom podlaží. Tá má výsostnú polohu nad celým areálom. Spoločne so sálou je bezbariérovo sprístupnená aj strecha objektu.
Pre silo a jeho technológiu je typická vertikalita. Sklobetónové podlahy otvárajú pre prirodzené svetlo dráhu cez všetky podlažia až do suterénu. Suterén, vyhĺbený medzi masívnymi stĺpmi, slúži ako priestor pre nové zázemie. Mohol vzniknúť vďaka tomu, že stĺpy sú založené hlbšie, než pôvodné prieskumy predpokladali. Architektom sa podarilo sprístupniť aj vnútro zásobníkov na obilie na úrovni druhého podlažia. Tu je vidieť samotnú podstatu sila.
Farebnosť a výraznú materialitu prenechávajú autori fasádam. Vnútro je tlmené, uberá sa cestou nekontrastného dopĺňania pôvodnej substancie. Môžeme vnímať dobovú patinu, a stopy po vybúraných priečkach.
Technické informácie
Stavebné zásahy sa týkali najmä kompletného podpivničenia objektu, vloženia komunikačného jadra a vybudovania sálového priestoru na mieste stĺpovej siene v 6. podlaží. Stav storočného betónu, zodpovedajúceho dnes približne triede C16/20, bol veľmi dobrý, nevykazoval žiadne poruchy a nebola nutná sanácia. Vodorovné konštrukcie ale nevyhovovali požiadavkam na výpočtové zaťaženie a preto boli všetky nahradené novými.
Suterén sa vzhľadom na úroveň hladiny podzemnej vody realizoval ako biela vaňa z vodostavebného betónu v pohľadovej kvalite so stenami hr. 300 mm. Celá konštrukcia je uložená na existujúce základové pätky a spriahnutá so stĺpmi. Výpočtom bolo overené riziko vztlaku. Medzi trámami skeletu bola na celú výšku objektu vybetónovaná výťahová šachta. Šachtu obopína oceľové schodnice z roštov, kotvené cez schodnice do stien šachty. Špecifickou situáciou bolo vyrezanie otvorov s veľkosťou dverí (920/2250 mm) do monolitických stien zásobníkov obilia.
Pre novú sálu sa v 6. N.P. odstránil strop, stĺpy, strešná doska a atika. Z pôvodnej konštrukcie zostalo zachované iba obvodové murivo. Po odbúraní strešnej dosky sa statická schéma zmenila z rámu na voľne stojace steny, votknuté do stropnej dosky a preto boli steny počas prác stužené dočasnou oceľovou konštrukciou. V obvodovom murive sa k existujúcim stĺpom pribetónovali nové v tvare písmena C. Realizovala sa pochôdzna plochá strecha, atika bola spätne vymurovaná, šachtu ukončila strešná nadstavba z pohľadového betónu.
Určujúci bodom požiarno-bezpečnostného riešenia tvorila spoločenská sála na úrovni 6. N.P. a strešná terasa, z ktorých vedie iba jedna úniková cesta. Schodiskový priestor je chránenou únikovou cestou typu "B" s núteným pretlakovým vetraním. Ventilátor je umiestnený v suteréne, výduch v strešnej nadstavbe. Prefabrikované sklobetónové podlahové panely na prízemí a v sále slúžia aj ako požiarna deliaca konštrukcia. Atypické prvky vykazujú odolnosť až 90 minút.
Objekt je vykurovaný len čiastočne. Nadzemné vykurované priestory sú vzhľadom na pamiatkovo chránené fasády izolované zvnútra. Použité boli kalcium-silikátové dosky hr. 75 mm, ktoré v rámci celoročnej bilancie vodných pár zmenšujú zaťaženie existujúcich konštrukcií. Objekt je vykurovaný tepelným čerpadlom typu zem - voda. Zdroj tepla tvorí šesť geotermálnych vrtov hĺbky 120 m v prednej časti areálu. Vzduchotechnika je decentralizovaná, vybavená rekuperáciou. Hlavná jednotka na vetranie sály je umiestnená na streche nadstavby. Všetky systémy vykurovania, vetrania a osvetlenia riadi centrálny systém správy objektu.
Vízia budúcej podoby areálu po dokončení 2. etapy výstavby:
Materiály:
Autor: Prokš Přikryl architekti
Podklady: Linka
Fotografie: Petr Polák