Novotvar v prostredí alpskej obce.
Hansgrohe - prémiová značka kúpeľňových riešení, ponúka nadčasový dizajn, technickú precíznosť a udržateľné inovácie...
Využite špeciálnu akciu Internorm: okná za minuloročné ceny a hliníkový kryt úplne zadarmo. Ponuka je časovo obmedzená!
Na podujatí sa predstaví až 37 vystavovateľov - popredných dodávateľov stavebných materiálov a inovácií s prezentáciou...
Sumarizácia najdôležitejších inovácií, ktoré redefinujúcich využitie tohto energetického zdroja.
AMPHIBIA 3000 GRIP 1.3 od spoločnosti ATRO predstavuje modernú hydroizolačnú technológiu, ktorá spája vysokú odolnosť,...
Ambiciózne plány EK narazili na ekonomické možnosti domácností v jednotlivých členských štátoch –...
IDEA DOOR od spoločnosti JAP prináša do interiéru čistý minimalistický vzhľad vďaka bezrámovému riešeniu a precíznej...
Kontinuita riešenia od vonkajšieho obkladu až po kovania a kľučky.
Nástenné nadomietkové armatúry Vitus sú mimoriadne vhodné pre rýchlu a efektívnu...
Okenné profily z kompozitného materiálu RAU-FIPRO X od spoločnosti Rehau sú v porovnaní s tradičnými plastovými profilmi mnohonásobne...
Najnovší sortiment stolov pre zariadenie interiérov...
Spojenie moderného dizajnu, funkčnosti a svetla do harmonického architektonického prvku.
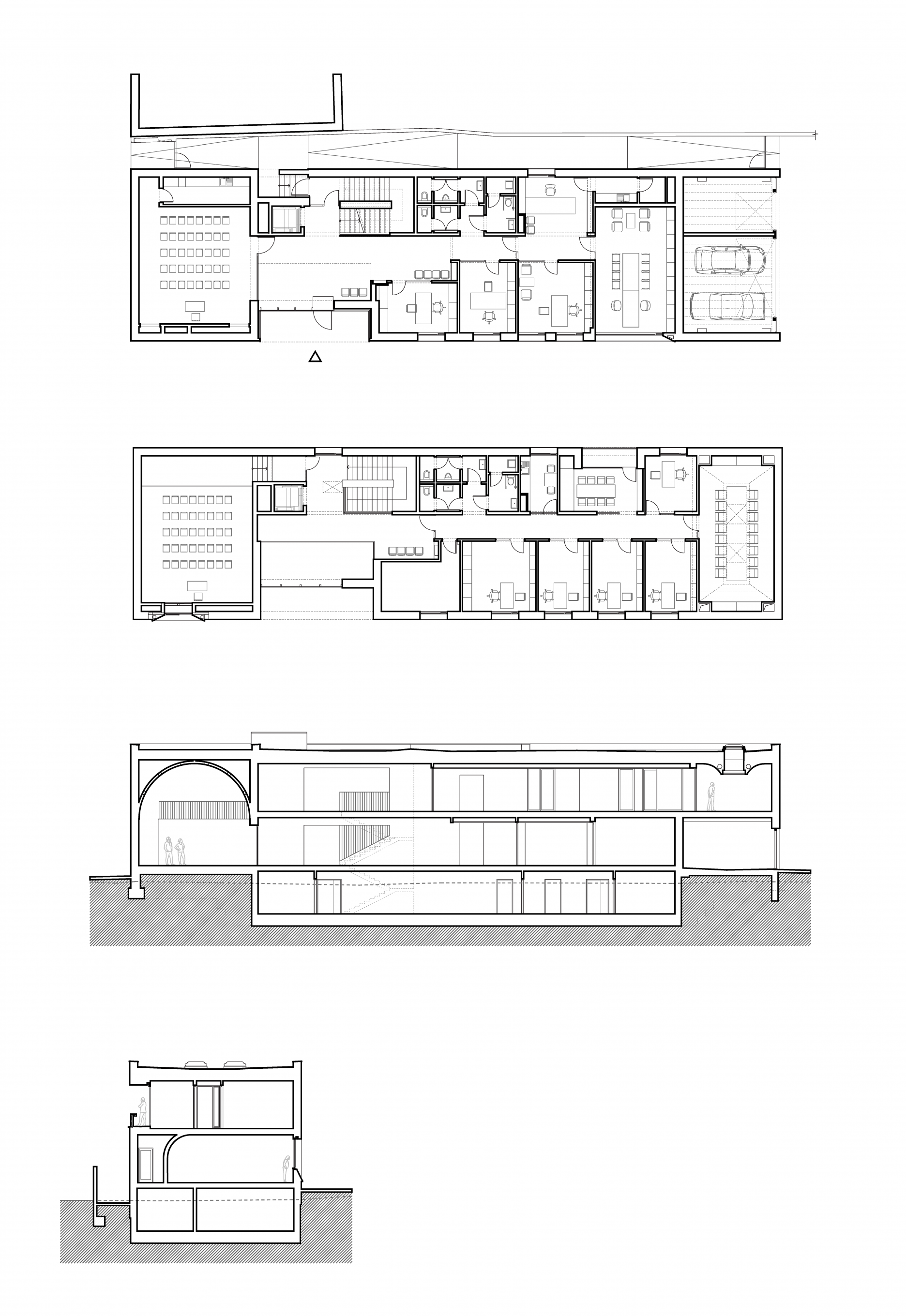
Kancelárska budova Baumit v slovinskom Trzine prešla premenou na moderné a udržateľné pracovisko. Architekti kládli dôraz...
Mottom šiesteho ročníku on-line konferencie odborníkov Xella Dialóg je Efektívny návrh budov 2025+: zmeny a riešenia

Vyhlásenie výsledkov Ceny ARCH 2023 prebehlo 22. júna v priestoroch Galérie mesta Bratislavy (Mirbachov palác). Počas večera, ktorý sa niesol v neformálnej atmosfére si hlavnú cenu odniesol prešovský ateliér zerozero za dielo "Mestský úrad Leopoldov". Realizáciu sme podrobne predstavili v samostatnom článku.
Obhliadka 9 nominovaných diel sa uskutočnila v dňoch 1. 6. 2023 a 2. 6. 2023 za účasti medzinárodnej poroty, ktorá pozostávala z nasledovných členov: Ing. arch Irena Dorotjaková - výkonná redaktorka magazínu ARCH, Ing. arch. Igor Teplan - prezident Spolku architektov Slovenska, Ing. arch. Benjamín Brádňanský - člen architektonickej kancelárie N/A a víťaz CENY ARCH 2022, Mgr. art. Vít Halada - člen architektonickej kancelárie N/A a víťaz CENY ARCH 2022 a Szabolcs Molnár - predseda poroty a člen ateliéru Paradigma Ariadné.
Cena ARCH je cenou časopisu ARCH o architektúre a inej kultúre. Ustanovil ju v roku 1998 zakladateľ časopisu architekt Martin Mašek v spolupráci so šéfredaktorkou Henrietou Moravčíkovou a členmi redakčnej rady s úmyslom vyzdvihnúť pozoruhodné diela domácej architektonickej scény. Cena sa udeľuje každoročne architektonickému dielu, ktoré medzinárodná porota (v ktorej sa striedajú renomovaní kritici a kritičky architektúry) uzná za najvýraznejší architektonický čin reflektovaný v uplynulom období na stránkach časopisu ARCH.
Laureát Ceny ARCH 2023: Mestský úrad Leopoldov / ateliér zerozero (Dielo sme podrobne predstavili tu)
Adresa: Hlohovecká cesta 104/2, Leopoldov
Autori: zerozero - Irakli Eristavi, Pavol Šilla, Juraj Červený
Spolupráca: Martin Ratkoš (stavebné riešenie), Vladimír Durbák a Viliam Hrubovčák (statika)
Investor: Mesto Leopoldov
Projekt: 2015 - 2018
Realizácia: 2019 - 2022
Plocha riešeného územia: 1988,50 m2
Plocha verejného priestoru: 1229,37 m2
Zastavaná plocha rekonštrukcie: 306,13 m2
Zastavaná plocha novostavby: 428,93 m2
Úžitková plocha rekonštrukcie: 266,52 m2
Úžitková plocha novostavby: 845,67 m2
"Je to stavba z verejných zdrojov a vidieť na nej mnoho odvahy, nepôsobí ako nízkorozpočtová realizácia. Autori si určili momenty, ktoré vedia akcentovať za minimálne peniaze, vedeli si nájsť priority, kde pridať a kde netreba. Je výbornou ukážkou toho, že aj z verejných peňazí sa dá navrhnúť a zrealizovať dobrá stavba. V pozitívnom zmysle slova najviac obyčajná a normálna."
Foto: Matej Hakár
Špeciálna cenu redakcie ARCH - Nakladatelství Forum: Rodinný dom v Perneku / Ján Studený (Dielo sme podrobne predstavili tu)
Autori: Ján Studený
Spolupráca: Daniel Silva, Maroš Bátora
Projekt: 2009 - 2014, realizácia: 2010 - ?
Pozemok: 1 500 m2
Zastavaná plocha: 120m2
Úžitková plocha: 200 m2
Obostavaný priestor: 440 m3
Náklady: 200 000 €
"Jednoduchý dom, ktorý využíva terénne danosti pozemku a splýva s prostredím. Poskytuje tak bývaniu čo najväčšie spojenie s okolitou prírodou. Pôdorys domu v tvare rovnoramenného lichobežníka zrkadlí jeho pozdfžny profil. Spodný obytný priestor je voľný, nedelený. Je to multifunkčná miestnosť, kde sa jedáva, ale tiež premieta, odohrávajú sa tam súkromnejšie aj spoločenskejšie činnosti, ktoré ten priestor prijíma a v zásade sa tomu vždy nejako mierne prispôsobí..."
Foto: Alex Shoots Buildings
Rekapitulácia nominácií na cenu ARCH 2023:
Bytový dom Nová Dunajská , Bratislava (Dielo sme podrobne predstavili tu)
Adresa: Dunajská ulica 29, Bratislava
Autori: JRKVC - Peter Jurkovič, Marcel Dzurilla, Kristína Tomanová
Investor: Boax, s. r. o.
Realizácia: 2017 - 2018
Pozemok: 778 m2
Zastavaná plocha: 464 m2
Úžitková plocha: 2 306 m2
"Obytný dom je nový, ale pritom akoby na ulici stál odjakživa. Cítiť z neho určitý typ materiálovej kvality, zároveň to nie je nijaká architektonická exhibícia. Takmer si ho nevšimneš, možno práve preto má takú veľkú silu. Je mi na ňom veľmi sympatické aj pritiahnutie parteru k zemi, ako keby tam dom ležal. Je to naozaj asi jedna z kValitatívne najvvdarenejších realizácií na Dunajskej z posledného obdobia."
Foto: Peter Jurkovič
Loft, Bratislava (Viac tu)
Adresa: Živnostenská, Bratislava
Autori: GutGut - Lukáš Kordík, Štefan Polakovič, Samuel Zeman, Jana Benková
Projekt: 2014
Realizácia: 2014 - 2015
Podlahová plocha: 108m2
"Loft dobre ilustruje spôsob, akým ateliér pracuje. Z trojizbáku, pevne vvmedzeného stenami, sa stal úplne otvorený priestor, kde ani jedna priečka nie je dotiahnutá až po strop. Polohy pôvodných vybúraných stien sú naznačené na drevenej parketovej podlahe rozdielnym vzorom. Zachovaná ostala tiež pôvodná poloha dverí, ktoré v otvorenom priestore pôsobia ako portály a naznačujú, ako byt pôvodne fungoval. Teraz už žije vlastným životom."
Foto: Lukáš Kordík, Daniel Kordík
Rekonštrukcia SNG v Bratislave (Dielo sme podrobne predstavili tu)
Adresa: Riečna 1, Bratislava
Autori: Architekti BKPŠ - Martin Kusý, Pavol Paňák
Investor: Slovenská národná galéria
Realizácia: 1/2016 - leto 2022
Hrubá podlažná plocha: 27911 m'
Čistá výstavná plocha: 5385 m2
Čistá depozitárna plocha: 1844 m2
"Rekonstrukce udržuje svetovou úroveň původní architektury, mimo jiné i tím, že společně s novými intervencemi tvorí symbiotický celek. Všechna rozhodnutí sú autonomní, zároveň se rada puvodních konstrukcí zajímavým způsobem premísťuje do jiných kontextu a konstelací, takže vzniká z puvodního díla dílo nové. Pritom se vždy dá najít architektura původní, dá se identiflkovat, dá se číst jako text nebo diagram. Výsledek je pro opravdu velice inspirativní, zajímavý."
Foto: Matej Hakár
Pink Whale, Bratislava (Viac tu)
Adresa: Nábrežie armádneho generála Ludvíka Svobodu 1,888rkm, 8ratislava-Staré Mesto
Autori: Ľubomír Šolika a kolektív
Investor: ARTAMI s. r. o.
Projekt: 2021 - ?
Realizácia: 2021 - ?
Pozemok: 1400 m2
Zastavaná plocha: 1400 m2
Úžitková plocha: 1100 m2
"Byl jednou jeden ekonom, který si spočítal, že svoboda je je lehčí než plátek sýra. Tak koupil nákladní tanker, zaparkoval ho v Bratislavě pod hradem a udělal z něj veřejný prostor. Z toho, čo našel podpalubí udělal divadlo, bar i dětské hřiště. Kdyby musel vyřizovat papíry, už by to dávno zabalil."
Foto: Ivan Kalev
Vila Bôrik, Žilina (Dielo sme podrobne predstavili tu)
Autori: PLURAL - Martin Jančok, Michal Janák, Zuzana Kovalová, Ruslan Dlmov
Spolupráca: Michal Marcinov (krajinná architektúra), Katarína Kyselová (statika),
Samuel Šlmonovlč (ocelové konštrukcie)
Projekt: 2017 - 2019
Realizácia: 2019 - 2021
Úžitková plocha: 260 m2
Náklady: 800 000€
"Dom ponúka veľmi vyhranené názory na to, čo architektúra je, a snaží sa ich napĺňať... Pri tomto dome možno vnímať aj organické skladanie častí. Telo ako hlavný priestor, ku ktorému sa pridávajú dalšie - nohy, krídla, schodisko, prístrešok, zimná záhrada... - umožňujú tomu telu nejako fungovať, zabezpečujú ho."
Foto: Maxime Delvaux
Ateliér Daniela Fischera, Bratislava-Devínska Nová Ves (Dielo sme podrobne predstavili tu)
Autor: Peter Stec
Investor: Daniel Fischer s manželkou
Projekt: 2019 - 2021
Realizácia: 2021 - 2022
Pozemok: 274 m2
Zastavaná plocha: 58 m2 ( + 30 m2 kryštál)
Úžitková plocha: 45 m2
Obstavaný priestor: 215 m2 (+ 150 m2 kryštál)
"Jednoduchý objem v zlatom reze, presvetlený difúznym severným svetlom a priamo prepojený so záhradou. S existujúcim domom prepája ateliér translucentný kryštál vstupného priestoru s miestom na parkovanie a uskladnenie pláten, ktorý predstavuje rozhranie medzi komplexitou kontextu a abstrakciou novostavby."
Foto: Ján Kekeli
Alan Prekop & Zheni / Grão & stôl v DNA (Viac o Grão tu)
Názov: Grão
Adresa: Jesenského 12, Bratislava-Staré Mesto
Autor: Alan Prekop
Spolupráca: Ctrl space, Tangle
Investori: Tomáš Chalupa, Martin Chalupa
Projekt: 2021
Realizácia: 2022
Úžitková plocha: 30 m2
Náklady 10 000 €
"V Grão vystupujú do popredia jednotlivé elementy - objekty, z ktorých je priestor poskladaný. Sú veľmi špecifické, efektné. Všetky elementy pracujú so svetlom, respektíve svietidlom, hoci len veľmi subtílne. Svetlo, ako niečo veľmi efemérne, sa v tom priestore materializuje v rôznych formách a mierach."
Názov: DNA Eurovea
Adresa: Pribinova 1, Bratislava-Ružinov
Autor: Alan Prekop
Spolupráca: (stôl) Zheni
Investorka: Karolína Volková
Projekt: 2022
Realizácia: 2022
Úžitková plocha: 320 m2
"Manikúrový stôl, reprezentuje dominantnú funkciu priestoru a zároveň je v jeho centre. Každý, kto k nemu príde, by mal pocítiť, že nesedí za obyčajným dreveným laminátovým stolom, ale za nejakým umeleckým predmetom. Realizácia potláča hranicu medzi dizajnom a umením, pôsobí ako vizuálny a haptický stimul. Zariaďovací predmet, ktorý môže byť aj sám o sebe malou architektúrou..."
Foto: Sarah Weiss, Zheni