Na podujatí sa predstaví až 37 vystavovateľov - popredných dodávateľov stavebných materiálov a inovácií s prezentáciou...
Novotvar v prostredí alpskej obce.
Hansgrohe - prémiová značka kúpeľňových riešení, ponúka nadčasový dizajn, technickú precíznosť a udržateľné inovácie...
Využite špeciálnu akciu Internorm: okná za minuloročné ceny a hliníkový kryt úplne zadarmo. Ponuka je časovo obmedzená!
Sumarizácia najdôležitejších inovácií, ktoré redefinujúcich využitie tohto energetického zdroja.
AMPHIBIA 3000 GRIP 1.3 od spoločnosti ATRO predstavuje modernú hydroizolačnú technológiu, ktorá spája vysokú odolnosť,...
Ambiciózne plány EK narazili na ekonomické možnosti domácností v jednotlivých členských štátoch –...
IDEA DOOR od spoločnosti JAP prináša do interiéru čistý minimalistický vzhľad vďaka bezrámovému riešeniu a precíznej...
Kontinuita riešenia od vonkajšieho obkladu až po kovania a kľučky.
Nástenné nadomietkové armatúry Vitus sú mimoriadne vhodné pre rýchlu a efektívnu...
Okenné profily z kompozitného materiálu RAU-FIPRO X od spoločnosti Rehau sú v porovnaní s tradičnými plastovými profilmi mnohonásobne...
Najnovší sortiment stolov pre zariadenie interiérov...
Spojenie moderného dizajnu, funkčnosti a svetla do harmonického architektonického prvku.
Kancelárska budova Baumit v slovinskom Trzine prešla premenou na moderné a udržateľné pracovisko. Architekti kládli dôraz...
Mottom šiesteho ročníku on-line konferencie odborníkov Xella Dialóg je Efektívny návrh budov 2025+: zmeny a riešenia

Prácu ateliéru PLURAL charakterizuje dôsledná analytickú cesta, hľadanie a následné konfrontovanie možných riešení a foriem. Spomínaný prístup je jasne čitateľný pri Novej synagóge v Žiline (CE ZA AR 2018 v kategórii Obnova a prestavba), alebo typologicky bližšom Dome v dome (CE ZA AR 2017 v kategórii Rodinné domy). Aktuálna realizácia nie je výnimkou.
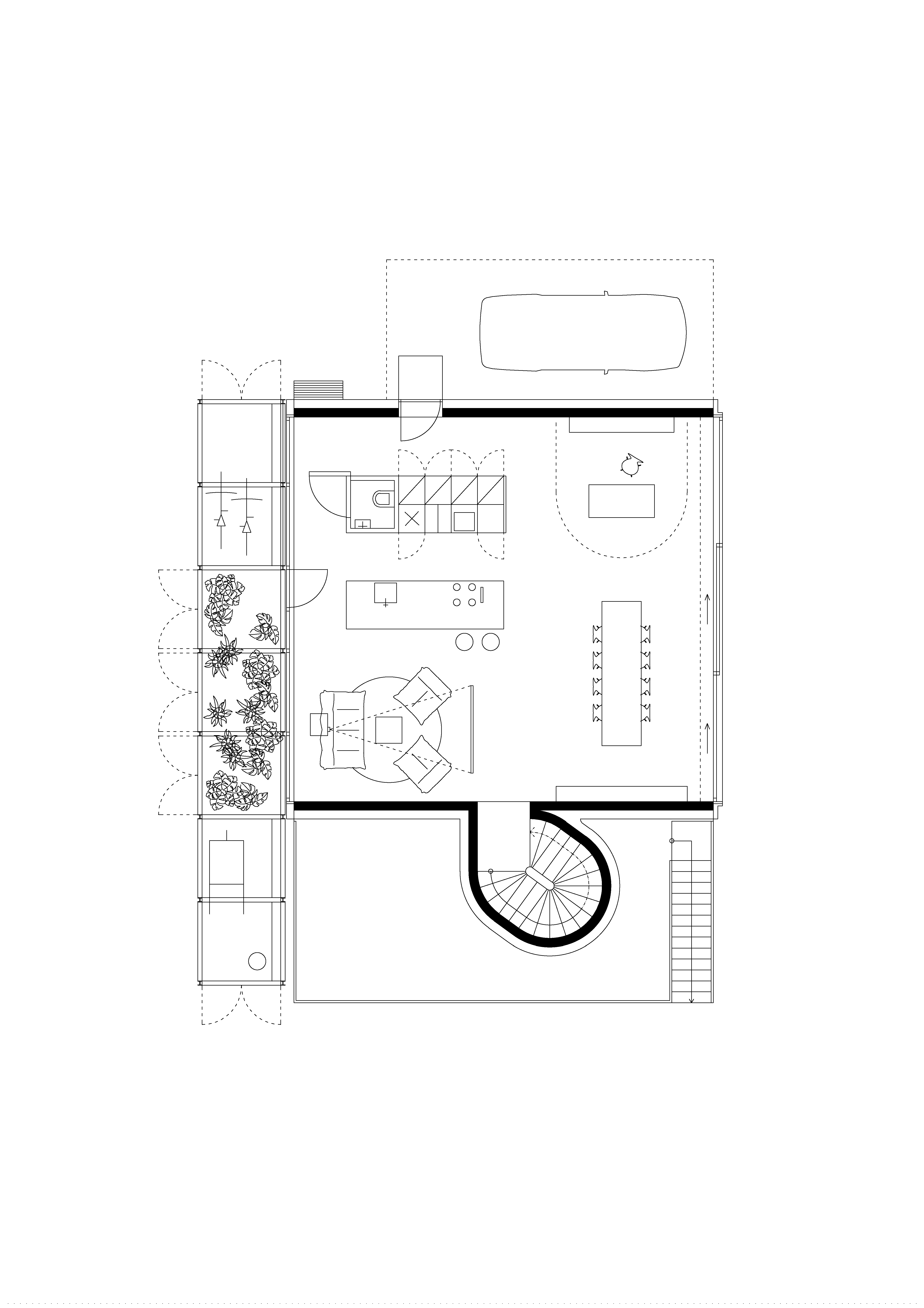
Mestská vila objemovo korešponduje s okolitou zástavbou tým, že ukrýva zhruba tretinu svojho programu do podzemného podlažia presvetleného patiom pod úrovňou terénu. Samotný dom pozostáva z troch podlaží, z ktorých každé reprezentuje odlišnú organizáciu priestoru (otvorené spoločenské podlažie, mriežka súkromných miestností, sústava priechodných miestností). Všetky podlažia prepája charakteristické točité schodisko umiestnené mimo štvorcový pôdorys ústrednej časti domu. Ďalšími špecifickými prvkami vily, ktoré doplňujú jej základný kubický objem, sú západná “účelová fasáda” tvoriaca filter medzi ulicou a interiérom a pultové prestrešenie označujúce vstup do domu na jeho severnej strane.
"Výnimočný architektonický koncept, v ktorom sa urbanistické riešenie, konštrukcia, materiálové riešenie aj dôraz na detail prepájajú v jeden konzistentný celok. Priestorovo bohatý svet interiéru sa prepisuje do formy domu a vytvára jedinečnú architektúru, ktorá znesie porovnanie v medzinárodnej mierke" hodnotí realizáciu porota v rámci aktuálneho ročníku CE ZA AR.
Bývanie v Žilinskej časti bôrik posunula hodnotiaca komisia Ceny za architektúru medzi 24 nominovaných diel, ktoré sa budú uchádzať o hlavnú cenu v jednotlivých kategóriách.
Detailný popis diela
Prostredie, v ktorom sa vila nachádza, je charakteristické pomerne homogénnou zástavbou solitérnych rodinných domov vo viac-menej pravidelných rozostupoch. Jednotlivým domom prislúchajú záhrady, ktoré spoločne tvoria súvislú záhradnú krajinu. Navrhovaný rodinný dom rešpektuje túto typickú prerušovanú zástavbu a zaberá miesto, na ktorom stál pôvodný dom. Súčasne nepriznáva svoj celkový objem tým, že využíva podzemné podlažie, do ktorého sústredí tretinu svojho programu.
Samotný dom je trojpodlažný, pozostávajúci z dvoch nadzemných a jedného podzemného podlažia, pričom každé z podlaží reprezentuje formálne odlišnú organizáciu priestoru. Charakteristické točité schodisko, spájajúce všetky tri podlažia domu, je umiestnené mimo štvorcový pôdorys ústrednej časti domu, čo umožňuje voľnejšie narábanie s dispozíciou jednotlivých podlaží. Ďalšími špecifickými prvkami vily, ktoré dopĺňajú jej základný kubický objem, sú západná “účelová” fasáda tvoriaca filter medzi ulicou a interiérom a trojuholníkové prestrešenie pred vstupom do domu na jeho severnej strane.
Prvé nadzemné podlažie (spoločenská časť) je koncipované ako otvorený plán, jeden súvislý priestor, v ktorom sú voľne rozmiestnené prvky mobiliáru. Umožňuje naplno využiť potenciál východo-západnej orientácie pozemku a presvetľuje celé podlažie z týchto dvoch strán, zachycujúc rôzne svetelné atmosféry počas celého dňa. Voľná dispozícia umožňuje rôzne spôsoby a konfigurácie využitia prízemia. Západná predsadená “účelová” fasáda v tomto prípade tvorí filter súkromia do ulice v podobe uzavretej predzáhrady a úložných priestorov.
Druhé nadzemné podlažie (individuálne izby) je striktne nadelené, s miestnosťami v rohoch, medzi ktorými sú situované kúpeľne, prístupné vždy z dvoch priľahlých izieb. Centrálny obslužný priestor so vstupmi do jednotlivých izieb je presvetlený strešným svetlíkom. Západná “účelová” fasáda na tomto podlaží prepája izby orientované na západ, od ulice im zabezpečuje patričné súkromie a vo svojej južnej časti umožňuje aj kontakt s východným svetlom.
Podzemné podlažie (doplnková časť) je presvetlené cez patio pod úrovňou terénu na južnej strane domu a zahŕňa viacúčelový priestor ateliéru, saunu a technické zázemie domu. Je samostatne prístupné prostredníctvom exteriérového schodiska priamo zo záhrady.
Nosný systém objektu tvorí sústava monolitických železobetónových konštrukcií. Dve protiľahlé obvodové steny na juhu a severe nesú druhé nadzemné podlažie, ktorého stropy a priečky tvoria jeden súvislý priestorový nosník. Zavetrenie konštrukcie zabezpečuje vertikálny tubus schodiska.
Podklady: PLURAL
Fotografie: Maxime Delvaux
Použité materiály a riešenia:
Okná a dvere - systém Schüco AWS/ADS 75.SI
Zdvižno-posuvné elementy - systému Schüco ASS 70.HI.
Presklená stena a strešný svetlík - systému Schüco FWS 50.
Všetko s povrchovou úpravou elox E6/EV1 vo farbe prírodného hliníka.