Objavte riešenia Dorsis, ktoré spájajú minimalistický vzhľad s vysokou variabilitou, funkčnosťou a spracovaním na mieru.
Súčasné bývanie v prostredí budapeštianskej vilovej štvrte.
Moderné strešné okná ponúkajú pohodlné ovládanie aj lepšiu ochranu domácnosti počas celého roka.
Rad interiérových dverí DIVA DOOR od spoločnosti J.A.P. ponúka čistý dizajn a variabilné riešenia pre súčasné interiéry.
REHAU Window Solutions na veľtrhu Fensterbau Frontale 2026
Sortiment Slim Line zahŕňa pestrý výber dekorov a textúr.
Európska značka okien oslavuje jubileum: za 95 rokov sa vyvinula na najväčšiu medzinárodne pôsobiacu okennú značku a inovačného...
Na podujatí sa predstaví až 37 vystavovateľov - popredných dodávateľov stavebných materiálov a inovácií s prezentáciou...
Novotvar v prostredí alpskej obce.
Hansgrohe - prémiová značka kúpeľňových riešení, ponúka nadčasový dizajn, technickú precíznosť a udržateľné inovácie...
Využite špeciálnu akciu Internorm: okná za minuloročné ceny a hliníkový kryt úplne zadarmo. Ponuka je časovo obmedzená!
Sumarizácia najdôležitejších inovácií, ktoré redefinujúcich využitie tohto energetického zdroja.
AMPHIBIA 3000 GRIP 1.3 od spoločnosti ATRO predstavuje modernú hydroizolačnú technológiu, ktorá spája vysokú odolnosť,...
Ambiciózne plány EK narazili na ekonomické možnosti domácností v jednotlivých členských štátoch –...
IDEA DOOR od spoločnosti JAP prináša do interiéru čistý minimalistický vzhľad vďaka bezrámovému riešeniu a precíznej...

Ateliér PRO-STORY navrhol konverziu priemyselného areálu bývalej Piettovej papierne v Plzni, ktorej korene siahajú do roku 1870. Objekty postavené v štýle industriálnej gotiky a najvyšší murovaný komín v západných Čechách sa stanú integrálnou súčasťou novej obytnej zóny s rozsahom 1700 bytových jednotiek, ktorá vzniká v blízkosti centra pri rieke Radbuza v mestskej časti Slovany.
Brownfield v živote mesta
Plzeň patrila desaťročia medzi významné priemyselné centrá. Rozsiahle výrobné komplexy sa stali neoddeliteľnou súčasťou jej urbanistickej štruktúry a zásadne ovplyvnili budúci vývoj mesta.
K najvýznamnejším určite patrí aj papiereň Slovany. Najväčší rozmach zažívala po roku 1878, keď ju kúpili bratia Piettovci pôvodom z Alsaska. Do Plzne priniesli dlhoročné skúsenosti s výrobou papiera, ale aj zásadnú inováciu – vďaka priateľstvu s Františkom Křižíkom bola továreň ako jedna z prvých vybavená elektrickými oblúkovými lampami, čo zabezpečilo výrazné zlepšenie kvality výroby a nárast objednávok. Papiereň úspešne fungovala aj po znárodnení, prevádzka bola postupne obmedzovaná a až na prelome tisícročí, v roku 2005, úplne ukončená. Až do začiatku revitalizácie v roku 2022 bol areál prenajímaný ako skladové a výrobné priestory.
Najmä v deväťdesiatych rokoch minulého storočia zažila Plzeň utlmenie či reorganizáciu mnohých priemyselných prevádzok. Z areálov pevne zakotvených v mestskej štruktúre sa čoskoro stala záťaž, ktorá doplácala na neochotu riešiť ich nové využitie. Spolu s relatívne dostupnými prímestskými pozemkami to viedlo k postupnému rozdrobeniu mesta do aglomerácie. Výraznú suburbanizáciu západočeskej metropoly sa však v posledných rokoch darí spomaľovať a vízia mesta sa vracia k územnej udržateľnosti. Neoddeliteľnou súčasťou tohto prístupu je zmysluplné využívanie rozsiahlych brownfieldov s napojením na širšie funkčné vzťahy celomestského významu.
Revitalizácia
Developer pojal plánovanú konverziu areálu tak, aby bola ekonomicky životaschopná, pragmatická a zároveň využila genius loci.
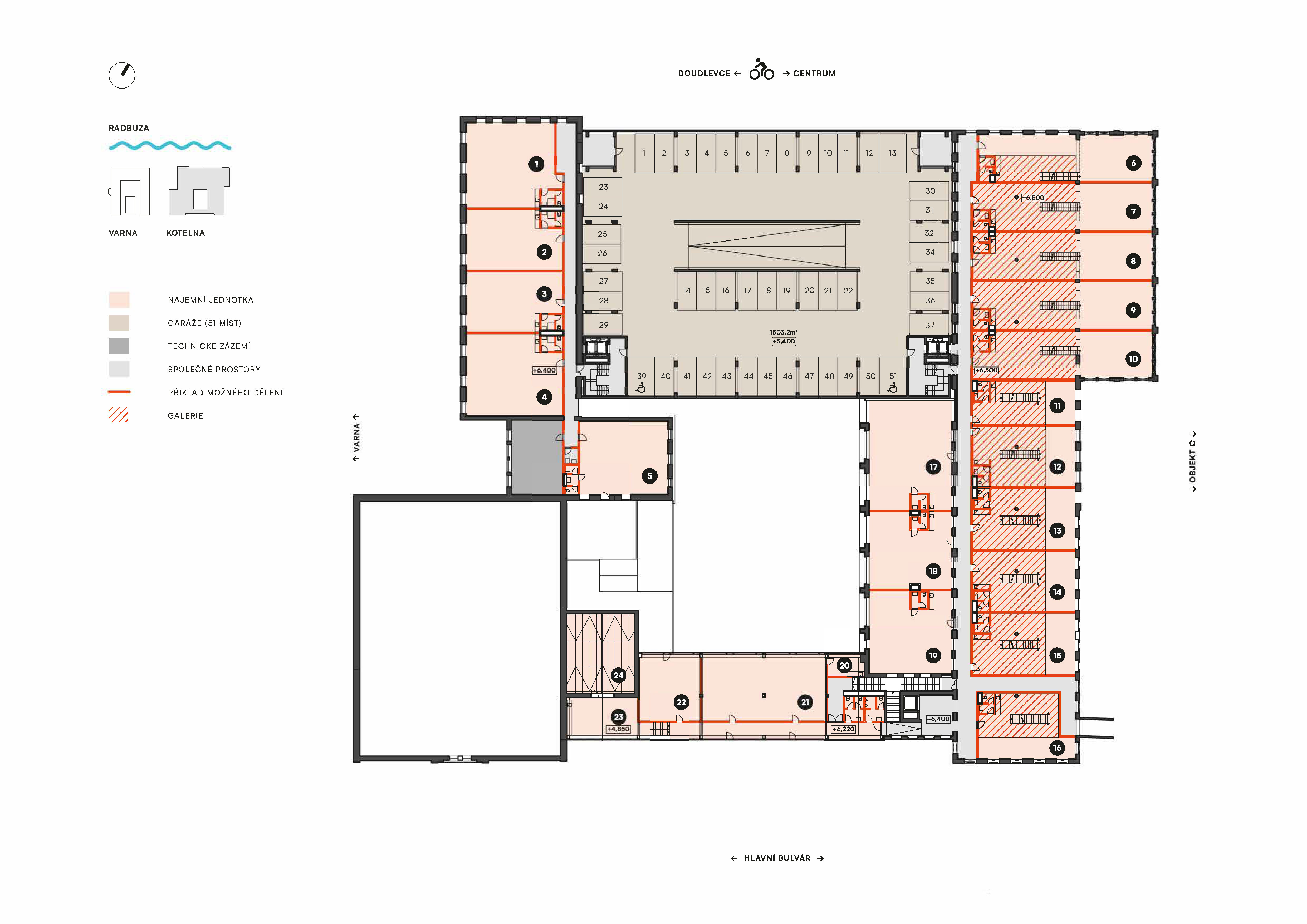
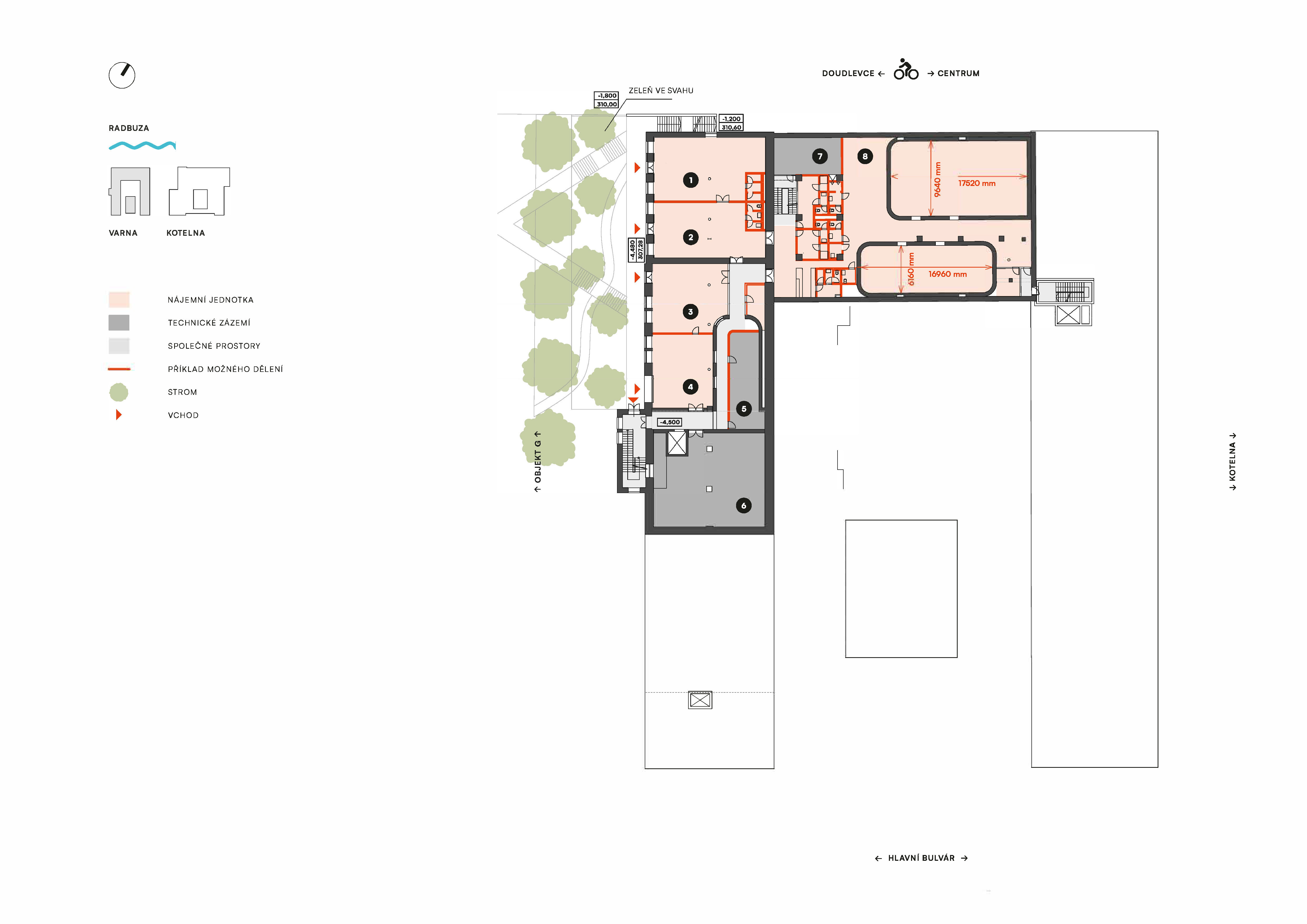
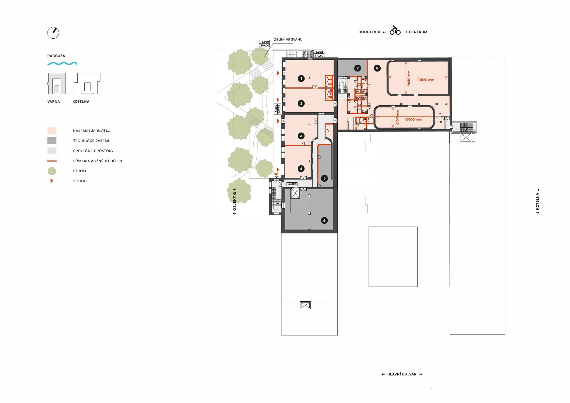
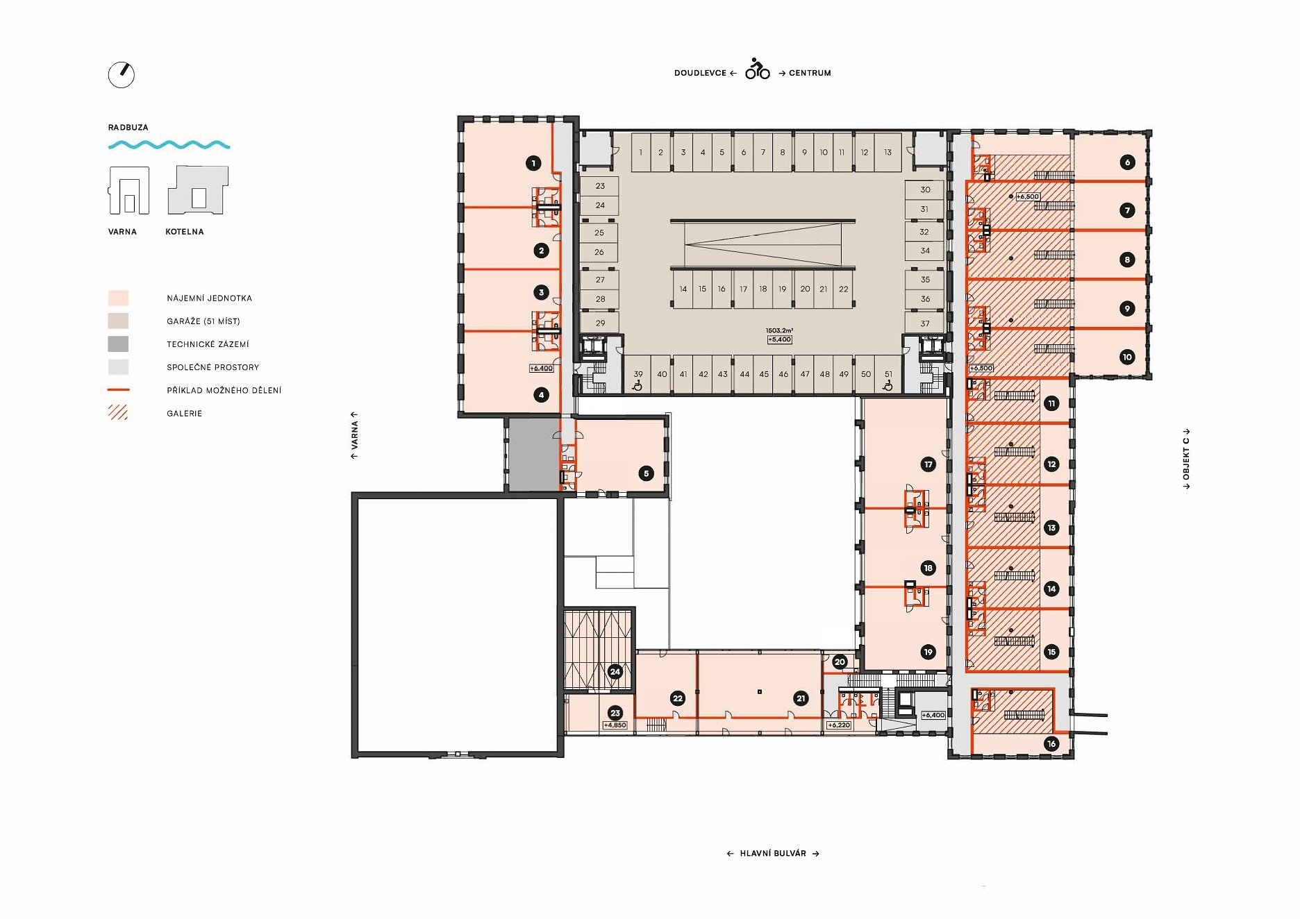
V pomerne dobrom stave sa v areáli zachovali pamiatkovo chránené objekty starej papierne. Blok kotolne tvorí v podstate jadro pôvodnej papierne, vybudovanej v rokoch 1871–73. Druhý blok, varňa, bývalá celulózka, vznikol neskôr, po roku 1885. Tehlové budovy v duchu industriálnej gotiky začali veľmi rýchlo po ukončení prevádzky lákať k novému využitiu. Prvou lastovičkou sa v roku 2012 stalo Kultúrne centrum Papírna, ktoré sa čoskoro etablovalo ako medziodborová platforma a dôležitý bod spoločenského diania.
„Investoři se velmi často snaží vše rekonstruovat do dokonalé podoby, imitovat nové, ale je to kontraproduktivní. Podle mě se nejlépe cítíme v místech s určitou patinou, historií, příběhem. V zákoutích historie provázaných se současností. A o tom celý projekt konverze bloků, potažmo Nové Papírny je – můžu odpočívat u řeky nebo v parku, bydlet v novém domě s veškerým komfortem a zároveň si užívat atmosféru a historický odkaz, který z měst často mizí,“ popisuje autor prestavby, Jiří Zábran.
Projekt
Ateliér PRO-STORY stojí za komplexným návrhom Novej Papierne vrátane úprav územného generelu. „Jednou z klíčových deviz areálu je blízkost řeky a Papírenského parku, který projde kompletní rekonstrukcí. Naší prvotní myšlenkou bylo propojení parku a náplavky pomocí širokých ulic,“ popisuje Jiří Zábran ideu, ktorá pozitívne ovplyvnila celý areál. Údolná poloha totiž umožnila navýšiť výškovú úroveň navrhovaných bytových domov a uvoľniť tak ich zastavanú plochu verejnému priestoru. Ten tak získa charakter bulváru s novovzniknutým námestím medzi blokmi varne a kotolne. „Využíváme vzniklé vnitrobloky jako piazzetty pro možný kulturní program, umístění předzahrádek, volnočasové využití, parkování pro cyklisty a podobně,“ dopĺňa Jiří Zábran.
Tradičné tvaroslovie v súčasnej interpretácii
Historické budovy v duchu industriálnej gotiky budú zbavené nevhodných novodobých prístavieb. Citlivo ich doplní niekoľko nových drobných objektov. V bloku varne navrhujú architekti smerom k plánovanému bulváru aj náplavke oblúkové zastrešenie vychádzajúce z pôvodného tvaroslovia výrobnej haly. Vnútro bloku by malo prejsť odstránením jednej z výrazne širších hál, ktoré narúšajú pôdorysnú stopu objektu. „Pro blok Varny jsme zvolili pro změnu pilovitý motiv zastřešení, který jednak vychází z industriálního výrazu areálu a zároveň nám umožňuje vhodně propojit výškově nesourodé objekty,“ vysvetľuje Jiří Zábran návrh archetypálnych hmôt.
Vizualizácie:
Výkresy:
Fotografie súčasného stavu:
Podklady: Linka
Ateliér: PRO-STORY
Fotografie súčasného stavu: Petr Polák
Vizualizácie: Red Peppers