Okenné profily z kompozitného materiálu RAU-FIPRO X od spoločnosti Rehau sú v porovnaní s tradičnými plastovými profilmi mnohonásobne...
Najnovší sortiment stolov pre zariadenie interiérov...
Spojenie moderného dizajnu, funkčnosti a svetla do harmonického architektonického prvku.
Kancelárska budova Baumit v slovinskom Trzine prešla premenou na moderné a udržateľné pracovisko. Architekti kládli dôraz...
Mottom šiesteho ročníku on-line konferencie odborníkov Xella Dialóg je Efektívny návrh budov 2025+: zmeny a riešenia
Robot WLTR predstavuje moderný prístup k murovaným konštrukciám. Vďaka automatizácii dokáže rýchlo, presne a bezpečne realizovať...
Okrem bezpečnosti majú okná aj elegantný vzhľad, pretože nie sú viditeľné žiadne uzamykacie časti kovania.
Dvere MASTER v skrytej zárubni AKTIVE je možné vyrobiť až do výšky 3 700 mm
Internorm stavia na energetickú efektívnosť a inteligentné tieniace riešenia.
Pohľad na moderné prístupy k výrobe s dôrazom na udržateľnosť.
Slovensko vo výbere zastupuje šesť realizácií.
Spoločnosť Internorm odteraz stavia na novej variante tepelnoizolačného skla od AGC, ktorá v produkcii ročne ušetrí 10...
Jubilejný 20. ročník prestížnej medzinárodnej súťaže pre študentov architektúry priniesol...
Otočné a posuvné dvere MASTER od podlahy až po strop, ponúkajú mimoriadnu variabilitu výšky, materiálu a zladenia so skrytými...
Predstavené produkty, spájajú premyslený dizajn, funkčnosť a udržateľnosť. Nábytok Materia vzniká s cieľom podporiť inšpiratívne stretnutia...

Autorom architektonickej štúdie je ateliér ADOM M STUDIO architekta Martina Paška, ktorý sa podieľal na viacerých rekonštrukciách industriálnych pamiatok, napríklad aj oceňovanej Elektrárni Piešťany.
„Verím, že sme našli najideálnejší model pre využitie priestoru a vdýchnutie nového života do Jurkovičovej teplárne,“ hovorí Martin Paško.
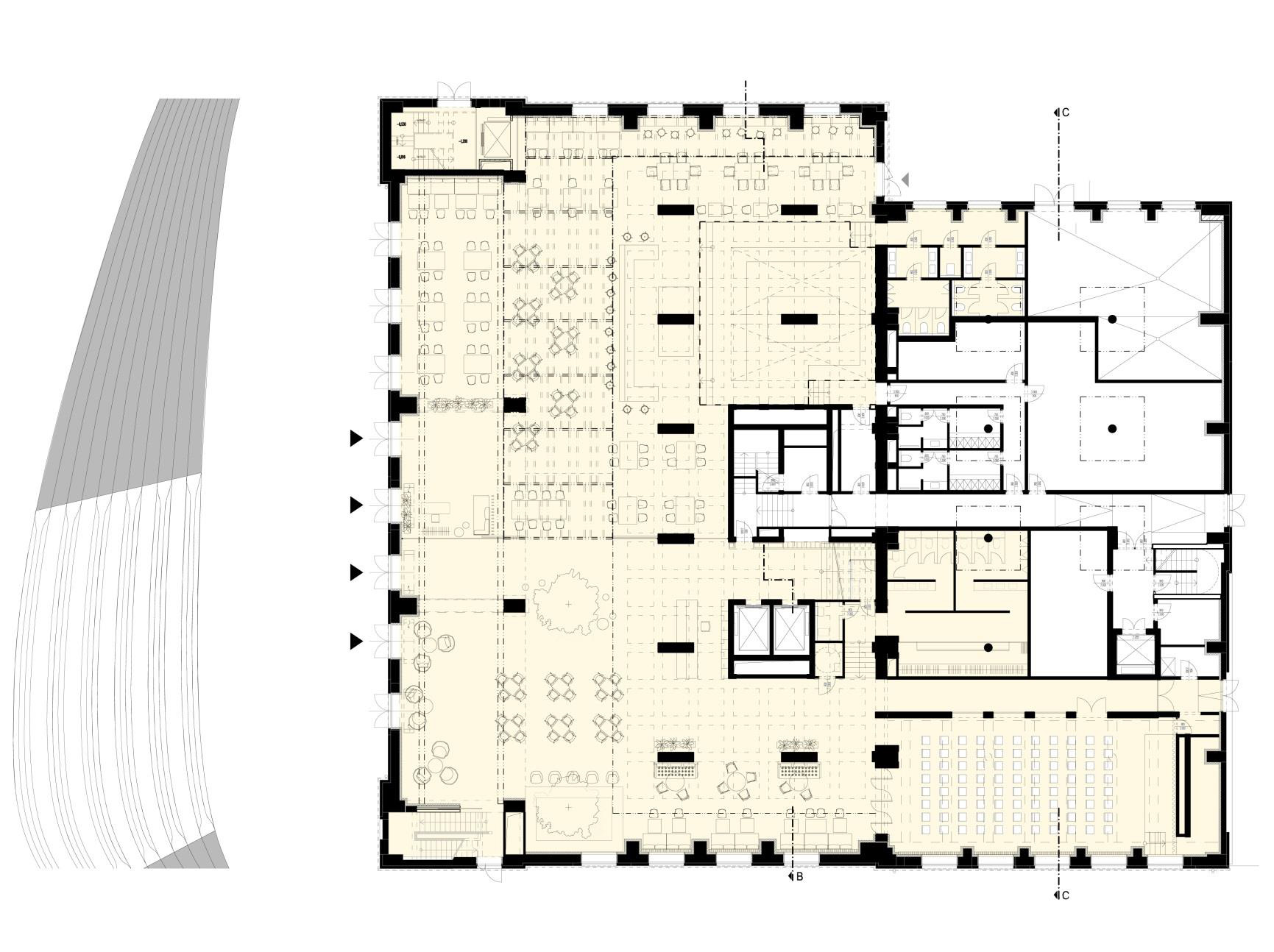
Architektonické riešenie využíva voľnú dispozíciu bývalej kotolne a turbínovej haly pre vostavbu nových podlaží. Mal by tu vzniknúť coworkingový priestor (podobne ako v novej Mlynici) pre ľudí a spoločnosti z kreatívneho priemyslu, architektov, startupy a menšie IT firmy. Pamiatka by mala zároveň zostať otvorená aj širokej verejnosti.
Komplexná rekonštrukcia budovy Jurkovičovej teplárne si vyžiada investíciu viac ako 11 miliónov EUR. Jej dokončenie sa očakáva v priebehu roku 2020 spolu s prvou fázou rezidenčných veží. Industriálna pamiatka sa tak stane súčasťou projektu Sky Park od Zahy Hadid. Celkovo by malo v zrekonštruovanom objekte vzniknúť päť tísíc štvorcových metrov kancelárii, určených najmä pre kreatívcov.
Členenie budovy na kotolňu a turbínovú halu ostáva v projekte zachované. V priestornejšej a staršej kotolni bude na prízemí situovaný hlavný vstupný priestor, s verejne prístupným lobby, kaviarňami a reštauráciami. Plocha bude otvorená na celú výšku objektu. Okolo centrálneho priestoru presvetleného lineárnym svetlíkom budú rozmiestnené coworkingové a kancelárske priestory. Tie nájdu svoje miesto na štyroch "vložených úrovniach". Na druhom poschodí vznikne univerzálny eventový priestor.
Na prízemí menšej turbínovej haly bude auditórium s kapacitou pre sto ľudí. Na poschodiach pribudnú ďalšie kancelárske priestory. Na streche haly by mala byť vytvorená rozsiahla terasa. Predpolie teplárne bude tvoriť zapustené "námestíčko" so stupňovitým sedením.
História objektu
Tepláreň bola postavená pred viac ako polstoročím podľa projektu Dušana Jurkoviča. Stavba dokončená v roku 1944 fungovala ako súčasť niekdajšej priemyselnej zóny na Čulenovej ulici v Bratislave. Mohutný železobetónový skelet, obložený lícovým murivom, bol v čase vzniku dominantou areálu.
Najstaršou hmotou výrobného objektu elektrární je kotolňa kubického tvaru s obdĺžnikovými tabuľkovými oknami. K nej bola o niečo neskôr pristavaná turbínová hala s obdĺžnikovým pôdorysom. Ďaľšia prístavba dokončená v roku 1950 predĺžila halu smerom na sever. Objekt bol však počas nedávnych búracích prác “skrátený”, keďže predmetom pamiatkovej ochrany bola len jeho staršia časť.
Okrem režného tehlového obkladu je pre Jurkovičovu tvorbu typický aj motív monumentálnej hmoty s nárožnými vežičkami. Dominantná západná osemosová fasáda je ohraničená po stranách dvoma vežovými rizalitmi. Východnej fasáde zasa dominuje vežička ustúpená do vnútra objektu, v ktorej je situované schodisko. Ukončená je rovnou strechou s vystupujúcou rímsou. Jej fasáda je v spodnej časti členená tromi radmi vysokých viactabuľkových okien. Ďalším zaujímavým prvkom sú komínové telesá pripomínajúce pri diaľkových pohľadoch renesančné cimburie.
Na kotolňu nadväzuje spomínaná turbínová hala, kde architekt použil vysoké vertikálne okná. Západná fasáda sa vyznačuje symetrickou kompozíciou. Výrazným motívom je dvojica vertikálnych okien, ktoré v duchu funkcionalistickej estetiky odrážajú vnútorné členenie priestoru. Kotolňa a turbínová hala sú dôležitou súčasťou vývojového reťazca priemyselného staviteľstva na území Bratislavy. Od roku 2008 im patrí štatút národnej kultúrnej pamiatky.
Bratislavská tepláreň ponúka možnosť zmysluplne využiť dielo zo záverečného obdobia tvorby jedného z najvýznamnejších klasikov slovenskej architektúry. Uvidíme ako sa to vo výsledku podarí.
Podklady a vizualizácie: Penta Real Estate