Advertorial

95 rokov Internorm: 30 miliónov okien a dverí z Rakúska

Európska značka okien oslavuje jubileum: za 95 rokov sa vyvinula na najväčšiu medzinárodne pôsobiacu okennú značku a inovačného...

Pozvánka na 2. ročník stavebného veľtrhu BigMarket na Slovensku

Na podujatí sa predstaví až 37 vystavovateľov - popredných dodávateľov stavebných materiálov a inovácií s prezentáciou...

Hotel Hirschen Spa House, Rakúsko

Novotvar v prostredí alpskej obce.

Vytvorte si kúpeľňu snov: dizajnové riešenie od značky hansgrohe

Hansgrohe - prémiová značka kúpeľňových riešení, ponúka nadčasový dizajn, technickú precíznosť a udržateľné inovácie...

Okná Internorm za minuloročné ceny + hliníkový kryt zdarma!

Využite špeciálnu akciu Internorm: okná za minuloročné ceny a hliníkový kryt úplne zadarmo. Ponuka je časovo obmedzená!

Moderné plynové technológie: Efektivita a inovácie pre 21. storočie

Sumarizácia najdôležitejších inovácií, ktoré redefinujúcich využitie tohto energetického zdroja.

Utesňovanie spodných stavieb pomocou hydro-aktívnej fólie AMPHIBIA.

AMPHIBIA 3000 GRIP 1.3 od spoločnosti ATRO predstavuje modernú hydroizolačnú technológiu, ktorá spája vysokú odolnosť,...

Dekarbonizácia individuálneho vykurovania domácností – Green Deal evolučne a nie revolučne

Ambiciózne plány EK narazili na ekonomické možnosti domácností v jednotlivých členských štátoch –...

Minimalistické dvere IDEA – technická precíznosť a čistota prevedenia

IDEA DOOR od spoločnosti JAP prináša do interiéru čistý minimalistický vzhľad vďaka bezrámovému riešeniu a precíznej...

Dom s výhľadom na údolie, Dlouhý Most (ČR)

Kontinuita riešenia od vonkajšieho obkladu až po kovania a kľučky.

Schell Vitus – osvedčené riešenie pre sprchy a umývadlá vo verejnom sektore s viac ako desaťročnou tradíciou

Nástenné nadomietkové armatúry Vitus sú mimoriadne vhodné pre rýchlu a efektívnu...

Kompozitné okná predstavujú súčasnosť a budúcnosť

Okenné profily z kompozitného materiálu RAU-FIPRO X od spoločnosti Rehau sú v porovnaní s tradičnými plastovými profilmi mnohonásobne...

Myotis - stoly 2025

Najnovší sortiment stolov pre zariadenie interiérov...

Priemyselné sklenené priečky Dorsis Digero: svetelné rozhranie pre moderné interiéry

Spojenie moderného dizajnu, funkčnosti a svetla do harmonického architektonického prvku.

Význam prirodzeného svetla pre moderné a flexibilné pracovné prostredie

Kancelárska budova Baumit v slovinskom Trzine prešla premenou na moderné a udržateľné pracovisko. Architekti kládli dôraz...

Loft Řevničov

Príklad neobvyklej rekonštrukcie pekárenskej sýpky od českého architekta Pavela Martineka ukazuje možnosť ako sa zachovať k starým industriálnym objektom, ktoré už neplnia svoju funkciu a ako využiť ich potenciál napríklad na netradičnú formu bývania akou je vertikálne usporiadanie loftu.
Diela
Red 404.04.2016
40870+8
Loft Řevničov
Autori: Ing. arch. Pavel MartinekInvestor: Petr Wimmer – Palladium.cz, a.s.Plocha pozemku: 318 m2Podlažná plocha: 140 m²Realizácia: 2012 - 2014Adresa: Husova ulice 524, Řevničov, Česká republikaPublikované: 4. apríl 2016

Rekonštruovaná sýpka sa nachádza v brownfielde bývalej pekárne na východnom okraji obce Řevničov. Pekáreň pôvodne tvorila areál s vnútorným dvorom obklopeným hospodárskymi budovami. Dodnes zostali z areálu zachované Iba objekty tvoriace uličnú líniu - sýpka, komín a pôvodný mlyn.

foto: Ondřej Pokorný

Programová náplň pre využitie sýpky sa nehľadala ľahko. Investor vedený snahou zachrániť objekt zvažoval viacero možností, ako s objektom naložiť. Sprvu sa uvažovalo o využití pre jeho vlastné reprezentatívne kancelárie alebo bývanie, nakoniec sa však rozhodol pre byty na ďalší predaj.

Situácia
Situácia

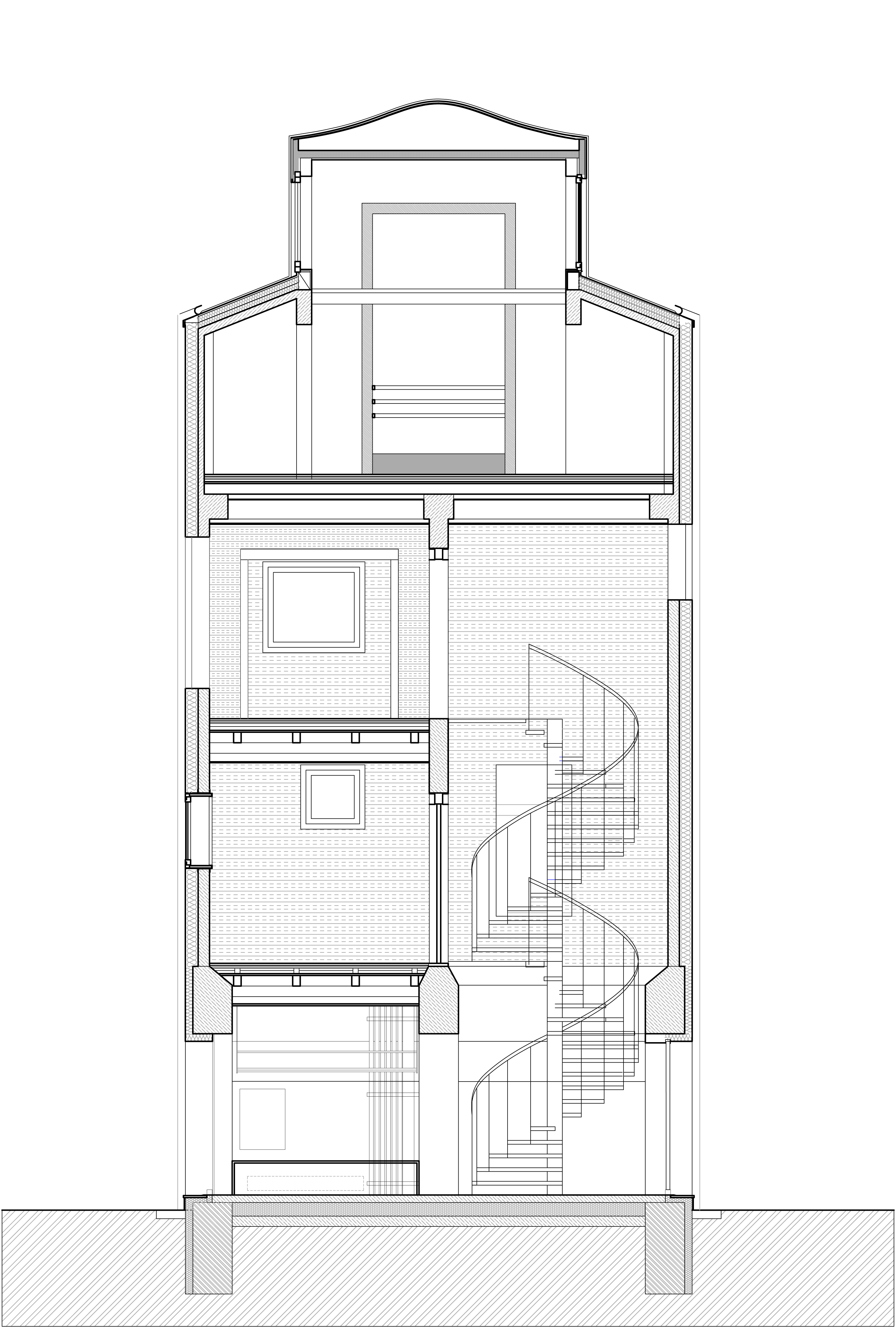
Od začiatku bolo jasné, že vertikálne bývanie nie je pre úplne štandardného klienta. O to viac sa architekt snažil aby bol konečný výraz presvedčivý a cielený na špecifický okruh záujemcov. Dispozícia je navrhnutá pre štvorčlennú rodinu. Celý priestor je definovaný vnútorným nosným krížom sýpky, kde po vložení stropov na každom podlaží vznikli štyri miestnosti 3 x 3 m. Tie sme vyrezávaním otvorov do vnútorného kríža prepojili. Limitom bola statika budovy. Nižšie podlažia tvoria dennú zónu, na najvyššom podlaží sú rozľahlé spálne. Prínosom pre vnímanie vnútorného priestoru je skutočnosť, že prízemie a najvyššie podlažie sú nedelené a fungujú ako jeden priestor.

Pôdorys 1.NP
Pôdorys 1.NP
Pôdorys 2.NP
Pôdorys 2.NP
Pôdorys 3.NP
Pôdorys 3.NP
Pôdorys 4.NP
Pôdorys 4.NP
Priečny rez
Priečny rez

Po konštrukčnej stránke bola rekonštrukcia po celú dobu pomerne neistým počinom. Subtílne betónové obvodové steny hr. 7 cm sa počas rekonštrukcie rozpadali, celé posledné podlažie so zakrivenou strieškou sa nakoniec rozdrobilo natoľko, že muselo byť vymurované znova. Následné vyrezávanie otvorov do plášťa a vnútorného kríža spolu s ďalšími remeselnými prácami priebežne poškodzovalo vnútorný pohľadový povrch betónu. Nakoniec boli povrchy po sanácii zjednotené bielym náterom. Vonkajší plášť mal zachovať abstraktný výraz vertikálneho tubusu, preto bola zvolená voľná kompozícia okien v líci zateplenej fasády. Zrovnanie značne krivých stien zateplením do roviny bolo po remeselnej stránke asi najťažšou úlohou. V interiéri sa naopak jednalo o koordinácii inštalácií, ktorých všetky vertikálne trasy sú vedené pohľadovo. Bolo potrebné čo najšetrnejšie "prejsť" cez skeletové prízemie. Iba v prípade kuchyne a kúpeľne sa použila predstena. Pôvodné liatinové schodisko bolo repasované a osadené medzi jedálňou na 3. NP a spálňou na najvyššom podlaží.

foto: Ondřej Pokorný

Projekt a realizácia prebehli niekoľko rokov podľa finančných možností investora. Projektom bol skôr len koncept a následné rozkreslenie zásadných detailov s koordináciou profesií. Všetko vznikalo prevažne na základe autorského dozoru. Loft je dokončený na úroveň základných povrchových úprav, celý rad ďalších vnútorných detailov a vybavenie (osvetlenie, kuchyne, sklo priečky v prízemí) bude dokončený až budúcim majiteľom.

foto: Ondřej Pokorný
foto: Ondřej Pokorný
foto: Ondřej Pokorný
foto: Ondřej Pokorný
Vstupná hala
Vstupná halafoto: Ondřej Pokorný
Najvyššie podlažie určené pre ateliér
Najvyššie podlažie určené pre ateliérfoto: Ondřej Pokorný
foto: Ondřej Pokorný
Pôvodné liatinové schodisko
Pôvodné liatinové schodiskofoto: Ondřej Pokorný
Pôvodný stav sila pred rekonštrukciou
Pôvodný stav sila pred rekonštrukciou

Pozrite si zaujímavé video o tejto stavbe, ktoré priniesol Adam Gebrian vo svojom programe Gebrian versus . Možete si ho pozrieť tu, alebo kliknutím na obrázok nižšie.

Prílohy

  1. image/jpegvideo.jpg

Podklady: Pavel Martinek

Poloha diela

Ing. arch. Pavel Martinek
Vložené
4. apríl 2016
0
4087
Hlavný obsahHlavný obsah
Čakajte prosím