Na podujatí sa predstaví až 37 vystavovateľov - popredných dodávateľov stavebných materiálov a inovácií s prezentáciou...
Novotvar v prostredí alpskej obce.
Hansgrohe - prémiová značka kúpeľňových riešení, ponúka nadčasový dizajn, technickú precíznosť a udržateľné inovácie...
Využite špeciálnu akciu Internorm: okná za minuloročné ceny a hliníkový kryt úplne zadarmo. Ponuka je časovo obmedzená!
Sumarizácia najdôležitejších inovácií, ktoré redefinujúcich využitie tohto energetického zdroja.
AMPHIBIA 3000 GRIP 1.3 od spoločnosti ATRO predstavuje modernú hydroizolačnú technológiu, ktorá spája vysokú odolnosť,...
Ambiciózne plány EK narazili na ekonomické možnosti domácností v jednotlivých členských štátoch –...
IDEA DOOR od spoločnosti JAP prináša do interiéru čistý minimalistický vzhľad vďaka bezrámovému riešeniu a precíznej...
Kontinuita riešenia od vonkajšieho obkladu až po kovania a kľučky.
Nástenné nadomietkové armatúry Vitus sú mimoriadne vhodné pre rýchlu a efektívnu...
Okenné profily z kompozitného materiálu RAU-FIPRO X od spoločnosti Rehau sú v porovnaní s tradičnými plastovými profilmi mnohonásobne...
Najnovší sortiment stolov pre zariadenie interiérov...
Spojenie moderného dizajnu, funkčnosti a svetla do harmonického architektonického prvku.
Kancelárska budova Baumit v slovinskom Trzine prešla premenou na moderné a udržateľné pracovisko. Architekti kládli dôraz...
Mottom šiesteho ročníku on-line konferencie odborníkov Xella Dialóg je Efektívny návrh budov 2025+: zmeny a riešenia

(Včera 12.5.2016 získala Rekonštrukcia Bielej veže cenu Grand Prinx českej obce architektov. Gratulujeme.)
Biela veža, jedna z najvýznamnejších stavieb v Hradci Králové a nehnuteľná kultúrna pamiatka bola postavená medzi rokmi 1574 a 1581 na západnom okraji Veľkého námestia, v samotnom srdci historického centra mesta. Veža susedí s katedrálou Svätého Ducha. Jedná sa o goticko-renesančnú, 72 metrov vysokú vežu, ktorá slúži predovšetkým ako zvonica. Ukrýva druhý najväčší zvon v Čechách - Augustin. Veža predtým slúžila ako strážna a hlásna veža s hodinami. Celá veža je postavená ("integrovaná") do južnej časti staršej kaplnky sv. Klimenta, ktorej zvyšky sa zachovali dodnes v konštrukcii veže (napríklad oporný pilier s lomeným oblúkom južného priečelia kaplnky).
Pri veľkých rekonštrukčných prácach v poslednej štvrtine 20. storočia došlo k zásadným zásahom do hmotnej podstaty pamiatky, ktoré znamenali na jednej strane statickú stabilizáciu veže, na druhej však zásadný úbytok autentických detailov a nevhodne použitú injektáž. Čistením povrchov došlo k zásadnému narušeniu historických materiálov a ku vzniku dlhodobých problémov. Spoločne s nevhodnou prístavbou pokladnice tak vznikol impulz ku kompletnej rekonštrukcii objektu.
Pôvodný účel veže - zvonica (Kampanila), hlásna a strážna veža bol historickým vývojom zmenený na súčasnú vyhliadkovú vežu s funkčnou zvonicou. Základný koncept riešenia vychádza z celkovej potreby rekonštrukcie stavby. Doplnený je snahou vniesť nový život do kultúrnej pamiatky. Architekti využili princíp prelínania jednotlivých stavebných celkov v čase a priestore.
Reštaurátorským spôsobom boli kompletne opravené všetky poškodené časti. Do vyčisteného historického priestoru veže boli po odstránení všetkých nežiaducich a nehodnotných konštrukcií vložené súčasné prvky interiéru - schodisko, podesty, výstavné a interaktívne prvky s výučbovými a zábavnými programami. Spoločne s odhalenou krásou historickej stavby sa cesta k cielenej vyhliadke na najvyššom poschodí veže stáva intenzívnym zážitkom po celú dobu prehliadky. Nová vstupná trojpodlažnej prístavba vznikla na mieste pôvodnej nevyhovujúce pokladnice z 80. rokov 20. storočia.
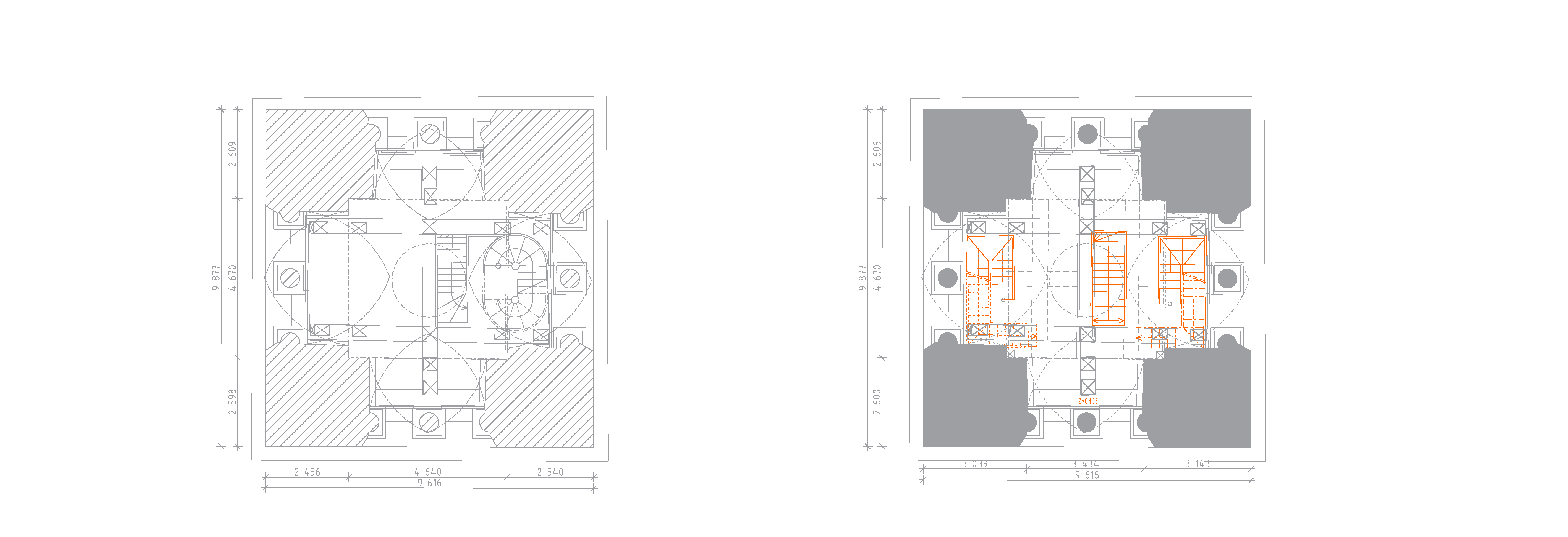
Výkresová časť:
So zložitou otázkou riešenia vnútornej klímy historického objektu sa návrh vysporiadal centrálne riadeným vykurovaním a odvlhčovaním. Vnútorná klíma v interiéri veže je pomocou čidiel sledovaná a vzduch je do objektu hnaný cez sokel. Vo vyšších poschodiach je naopak odvádzaný v závislosti na aktuálnej potrebe (napr. automatickým otváraním žalúzií a okien na ochodze či núteným vetraním v parapetoch niektorých okien).
Drevené výplne portálov zvonového poschodia nahradili pôvodné nevyhovujúce okenice z poslednej veľkej rekonštrukcie. Nové žalúzie sú v celej ploche portálov (vrátane parapetnej výplne a vrchného lomeného oblúka) otočné a pri zvonení výrazne pomáhajú šíreniu zvuku do okolia. Ich otáčanie je diaľkovo ovládané a v prípade potreby odvetrania vlhkosti z veže sa sami otvoria.
Na 4.NP až 6.NP obieha schodisko okolo interaktívneho priebežného panelu. Tento zobrazovací element audiovizuálnej techniky umožňuje návštevníkom prezentovať akýkoľvek obsah, závislý napríklad na type prehliadky - naučný (pre dopoludňajšie prehliadky škôl), historický a pod. Panel je rozdelený na 3 časti podľa jednotlivých podest, kde je vždy spodná obrazovka opatrená možnosťou dotykového ovládania užívateľom.
Do vyčistených priestorov veže bolo vsadené nové oceľové schodisko.
Na pôvodné miesto na deviatom (hodinovom) podlaží sa podarilo vrátiť historický hodinový stroj z prvej polovice 19. storočia, ktorého autorom je známy český mechanik, konštruktér a hodinár Josef Božek. Zreštaurovaný exponát, ktorý je sám o sebe kultúrnou pamiatkou bol navyše doplnený o pôvodné kamenné závažia a je teda možné ho rozpohybovať.
Do pôvodne úplne neprístupnej miestnosti nad vstupom do kaplnky sv. Klimenta (cez priechod vežou z južného priečelia) bolo umiestnené umelecké dielo. Artefakt vysoký 3,8 m je skleneným modelom Bielej veže v mierke 1:20. Model zachytáva Bielu vežu v prieniku s predpokladanou podobou pôvodnej gotickej kaplnky, z ktorej veža vyrastá.
Sklenený podhľad otvára nevšedný pohľad na krovnú konštrukciu nasvietenú statickými a dynamickými svetlami s možnosťou nastavenia celého farebného spektra. Okrem pohľadov do všetkých štyroch svetových strán sa tak návštevníkom po vystúpení do najvyššieho poschodia veže ponúka ešte pohľad piaty – smerom nahor.
Novinkou sú posuvné spodné ramená schodíšť na poschodí zvonice. Toto riešenie ponúka zvonárom ideálny manipulačný priestor pre zvonenie, ktoré sa koná približne dvanásťkrát do roka pri významných udalostiach. Nové bezpečnostné úpravy umožňujú prítomnosť verejnosti pri zvonení priamo v priestore veže.
Samostatnou kapitolou je oprava zvonovej stolice, ktorej havarijný stav (predovšetkým stav drevených konštrukcií skrytých pod podlahou) bol odhalený až po zahájení rekonštrukcie. Nevyhovujúce prvky boli vymenené za použitia historických tesárskych postupov a nástrojov. Samotná príprava, tesanie a osadzovanie na priestranstve pred katedrálou sa stalo akýmsi dlhodobým happeningom.
Dôvod, prečo boli pri rekonštrukcii zvolené tesané trámy nie sú len požiadavky pamiatkarov, investora alebo predvádzanie remesla. Cieľom bolo opravovať historické konštrukcie tak, aby neutrpela ich kultúrna hodnota (tzn. Pri obnove technických parametrov zostala zachovaná remeselná úroveň a estetická hodnota). Tesanie umožňuje ľahko sa prispôsobiť rozmerovej nejednotnosti trámov, ktorá je pre historické stavby typická.
Celý interiér veže je nasvietený a ozvučený. Väčšina svetiel je navyše v režimoch RGB s možnosťou nastavenia svetelného spektra, a to vrátane podsvietenia schodiskových stupňov, skleneného modelu, zvonu s podkrovnou konštrukciou či exponátu historického hodinového stroja. Je tak možné meniť dynamicky atmosféru jednotlivých druhov prehliadok.
Prehliadka Bielej veže po rekonštrukcii:
Interiéry pred rekonštrukciou:
Podklady: Architekti Chmelík a partneři