Na podujatí sa predstaví až 37 vystavovateľov - popredných dodávateľov stavebných materiálov a inovácií s prezentáciou...
Novotvar v prostredí alpskej obce.
Hansgrohe - prémiová značka kúpeľňových riešení, ponúka nadčasový dizajn, technickú precíznosť a udržateľné inovácie...
Využite špeciálnu akciu Internorm: okná za minuloročné ceny a hliníkový kryt úplne zadarmo. Ponuka je časovo obmedzená!
Sumarizácia najdôležitejších inovácií, ktoré redefinujúcich využitie tohto energetického zdroja.
AMPHIBIA 3000 GRIP 1.3 od spoločnosti ATRO predstavuje modernú hydroizolačnú technológiu, ktorá spája vysokú odolnosť,...
Ambiciózne plány EK narazili na ekonomické možnosti domácností v jednotlivých členských štátoch –...
IDEA DOOR od spoločnosti JAP prináša do interiéru čistý minimalistický vzhľad vďaka bezrámovému riešeniu a precíznej...
Kontinuita riešenia od vonkajšieho obkladu až po kovania a kľučky.
Nástenné nadomietkové armatúry Vitus sú mimoriadne vhodné pre rýchlu a efektívnu...
Okenné profily z kompozitného materiálu RAU-FIPRO X od spoločnosti Rehau sú v porovnaní s tradičnými plastovými profilmi mnohonásobne...
Najnovší sortiment stolov pre zariadenie interiérov...
Spojenie moderného dizajnu, funkčnosti a svetla do harmonického architektonického prvku.
Kancelárska budova Baumit v slovinskom Trzine prešla premenou na moderné a udržateľné pracovisko. Architekti kládli dôraz...
Mottom šiesteho ročníku on-line konferencie odborníkov Xella Dialóg je Efektívny návrh budov 2025+: zmeny a riešenia

Ateliéry Architekti Šebo Lichý a ROAR vstupovali do rozpracovaného projektu pre územné konanie. Prostredníctvom dynamicky sa meniacej fasády, lodžií a terás výrazne štruktúrovali navrhovaný administratívny blok. Architektúra, ktorá reaguje na východiskové podmienky, otvára zamestnancom prístup do exteriéru v dostupných vzdialenostiach od pracovného stola.
Realizáciu predstavíme so sprievodným textom Imricha Vaška, ktorý je jedným z autorov projektu:
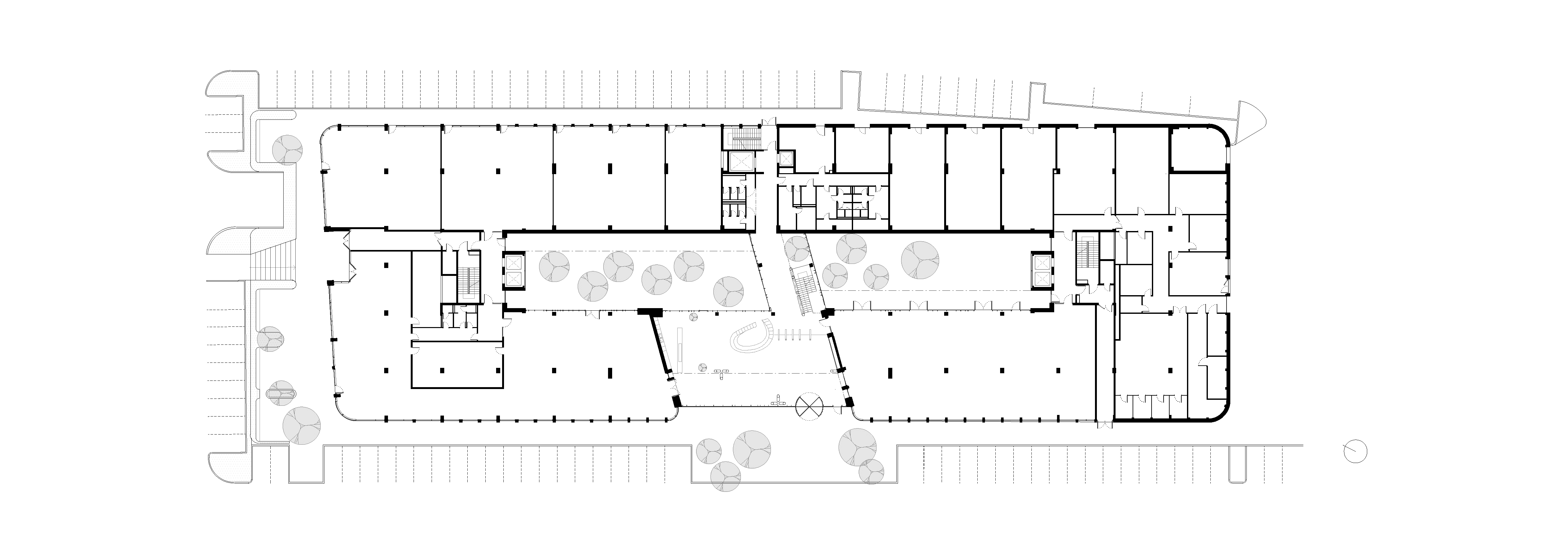
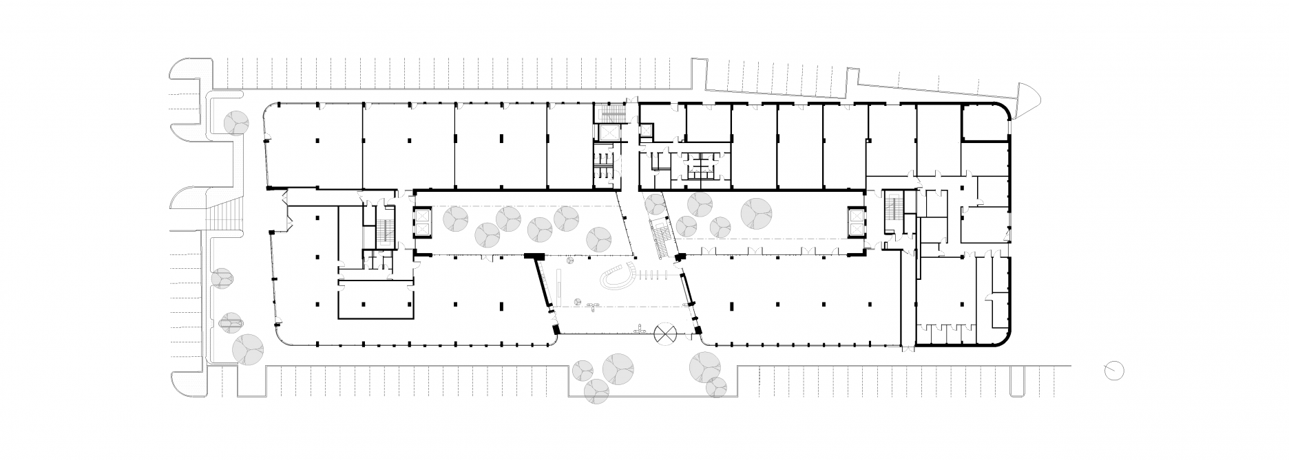
Galvaniho Business Centrum V je posledným realizovaným blokom bratislavského obchodno-administratívneho komplexu medzi Galvaniho ulicou a diaľnicou D1, ktorý tvoria nákupné parky a centrá, pasáže, showroomy, hotely a prenajímateľné administratívne komplexy. GBC 5 je administratívna budova, ktorá dynamickou fasádou a meniacou sa tektonikou okien parametricky reaguje na svetelné podmienky a orientáciu voči svetovým stranám. Široké panoramatické výhľady na svahy Karpát a sever Bratislavy, husté vertikálne slnolamy na južnej strane a pozdĺžne východné a západné fasády meniacej sa geometrie perforácií s nepravidelnými fasádnymi átriami so zeleňou prinášajú do predmestského generického urbanizmu osviežujúcu zmenu a autentický dizajn. GBC 5 sa svojimi architektonickými a stavebno-technickými riešeniami snaží reagovať na všetky kritické otázky a nové výzvy súčasného navrhovania. K nevyhnutnosti zmeny architektonického navrhovania a riešenia problematiky mesta a developovanej krajiny nás dnes núti aj posledná skúsenosť s globálnou pandemickou krízou a nastávajúcou klimatickou zmenou.
Bloková forma administratívneho komplexu v tvare písmena C rešpektuje stavebnú dispozíciu pozemku, svetlo-technické podmienky, ekonomiku stavby a dnešné technologické trendy riešenia kancelárskych budov. Prevádzkové dispozície variabilných prenajímateľných priestorov umožňujú aplikovať individualizované riešenia prevádzky, cirkulácií a dizajnu kancelárskej krajiny. Architektúra GBC 5 poskytuje všetkým svojim klientom benefity dizajnu „zelenej architektúry“ s koncepciou zelených terás, lodžií a otvorených priestorov za účelom zlepšeného pracovného prostredia. Krajina stromov pred hlavným vstupom vytvára bio-estetiku vstupného portálu, vestibulu a átria komplexu, kde ekológia štruktúry stromov prirodzene tieni presklenú fasádu interiéru krajiny a vytvára organickú tieňohru živej prírody v technologickom svete.
Architektonické riešenie GBC 5 sa vyznačuje rôznorodosťou typológie vnútorných a vonkajších priestorov, dynamickej tektoniky architektonických konštrukcií, otvorov, povrchov, obkladov, prírodných materiálov a čierno-bielej farebnosti. Systém rôznych otvorených lodžií na všetkých poschodiach so zeleňou a čerstvým vzduchom je nielen určujúcim prvkom architektúry budovy, ale aj aktuálnym trendom zmeneného architektonického navrhovania pracovného prostredia v nových podmienkach. Možnosť generovania prirodzene vetraných oddychových priestorov so zeleňou v dostupnej vzdialenosti od pracovného stola sa v čase pandemickej krízy stáva novou nutnosťou. Zelený háj pred vstupom do budovy pokračuje aj na zelenú strechu vestibulu a hlavnú terasu objektu, čím sa potvrdzuje idea architektonického konceptu prerastania živej prírody a administratívnej stavby. Terasa je otvoreným parkom umožňujúcim zamestnancom bezprostredný prístup do exteriéru, čo umožňuje aj prenikanie svetla a slnka do vnútorného otvoreného priestoru zeleného átria. Zelená terasa nad hlavným vstupom delí administratívnu budovu na dve symetrické časti a zároveň akcentuje aj hlavný vstup do obidvoch uzavretých dispozičných častí objektu.
GBC 5 je mnohofunkčným objektom a komplexným prevádzkovým organizmom, kde sa križujú rôzne typy prenajímateľných kancelárskych dispozícií a cirkulačných okruhov obsluhované zložitými sieťami technologickej podpory s aplikáciami najnovších trendov kancelárskych priestorov. Diferencované potreby nájomcov a poloverejných, verejných obchodných a obslužných prevádzok stravovania, oddychu, prestávok a kontaktu s prírodou zvyšujú nároky sa štandardy pracovného priestoru. Technológie digitalizovaného štandardu, fyzických a hygienických vlastností stavby, dopravnej obslužnosti a kapacity verejnej dopravy, rôznych aplikácií, áut, bicyklov a elektrických kolobežiek permanentne menia architektonické parametre navrhovania.
Nejednoznačné a zložité cirkulačné diagramy architektonickej prevádzky sa premietajú aj do hybridnosti architektonickej formy modernistických monofunkčných typológií. Významný architekt transformácie mesta do globálneho spoločensko-ekonomického priestoru Rem Koolhaas vyhlasuje, že už nastal koniec identity mesta, miesta a ulice. Príbeh mesta je dnes nahradený pojmom veľkosť. To, čo sa dnes označuje ako mesto, je obslužnou megaštruktúrou informačnej spoločnosti, ako sú kancelárie, shopping, automobilová doprava a parkoviská. V takomto generickom meste, bez tradičných verejných priestorov, parkov a zelene vzniká požiadavka na autentický dizajn novej urbánnej mikroštruktúry simulujúcej chýbajúci verejný mestský priestor.
Architekti a autori GBC 5 Šebo - Lichý majú vo svojom architektonickom manifeste desať zásad navrhovania ako náročnosť, angažovanosť, konceptuálnosť, radikálnosť, presnosť, urbánnosť, sviežosť, generatívnosť, provokatívnosť a autentičnosť. Jedenástym a hlavným bodom manifestu je ambícia byť zelený, čo dokumentujú svojím prístupom k navrhovaniu v ich predchádzajúcich projektoch so zelenou fasádou v bratislavskej centrále ITB na Mickiewiczovej ulici v rodinnom dome “medzi stromami” alebo v developerskom projekte záhradného mesta Čerešne. Nielen inšpirácia prírodou, ale hlavne aktívne a zodpovedné navrhovanie integrujúce prírodu, jej princípy a zdravé životné prostredie sú predpoklady nevyhnutných nových stratégií tvorby premyslených mestských verejných aj súkromných, obytných aj komerčných architektonických priestorov. GBC 5 je takouto architektúrou generovanou revidovanými prostriedkami moderny pre novú kultúru životného prostredia 21. storočia.
Použité materiály a riešenia: Okná a dvere su zo systemu Schüco AWS/ADS 75.SI, fasádne konštrukcie Schüco FW 50 a použité boli aj protipožiarne konštrukcie zo systému Schüco.
Podklady: Architekti Šebo Lichý