Na podujatí sa predstaví až 37 vystavovateľov - popredných dodávateľov stavebných materiálov a inovácií s prezentáciou...
Novotvar v prostredí alpskej obce.
Hansgrohe - prémiová značka kúpeľňových riešení, ponúka nadčasový dizajn, technickú precíznosť a udržateľné inovácie...
Využite špeciálnu akciu Internorm: okná za minuloročné ceny a hliníkový kryt úplne zadarmo. Ponuka je časovo obmedzená!
Sumarizácia najdôležitejších inovácií, ktoré redefinujúcich využitie tohto energetického zdroja.
AMPHIBIA 3000 GRIP 1.3 od spoločnosti ATRO predstavuje modernú hydroizolačnú technológiu, ktorá spája vysokú odolnosť,...
Ambiciózne plány EK narazili na ekonomické možnosti domácností v jednotlivých členských štátoch –...
IDEA DOOR od spoločnosti JAP prináša do interiéru čistý minimalistický vzhľad vďaka bezrámovému riešeniu a precíznej...
Kontinuita riešenia od vonkajšieho obkladu až po kovania a kľučky.
Nástenné nadomietkové armatúry Vitus sú mimoriadne vhodné pre rýchlu a efektívnu...
Okenné profily z kompozitného materiálu RAU-FIPRO X od spoločnosti Rehau sú v porovnaní s tradičnými plastovými profilmi mnohonásobne...
Najnovší sortiment stolov pre zariadenie interiérov...
Spojenie moderného dizajnu, funkčnosti a svetla do harmonického architektonického prvku.
Kancelárska budova Baumit v slovinskom Trzine prešla premenou na moderné a udržateľné pracovisko. Architekti kládli dôraz...
Mottom šiesteho ročníku on-line konferencie odborníkov Xella Dialóg je Efektívny návrh budov 2025+: zmeny a riešenia

Kancelárie firmy, poskytujúcej technologické inovácie a IT riešenia, využívajú celé južné krídlo administratívnej budovy GBC 5 na Galvaniho ulici v Bratislave. Koncept interiéru pracovných priestorov vytvorili architekti zo štúdia coolstock na základe hĺbkového prieskumu potrieb zamestnancov. Prioritou pritom bolo interné prepojenie a komunikácia v rámci projektovo orientovanej spoločnosti.
Realizáciu bližšie predstavia autori:
Asseco - Interkatívna zóna
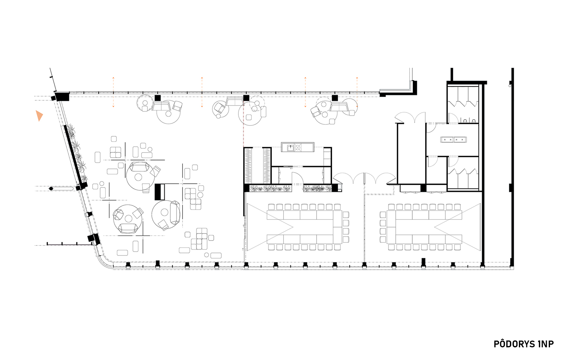
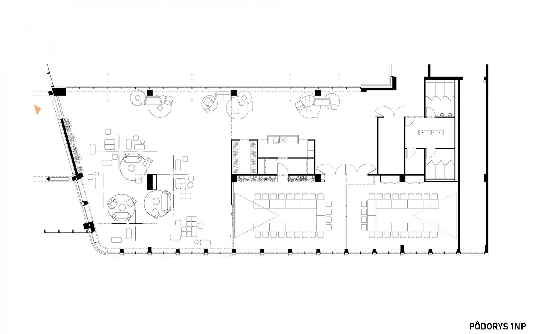
Južné krídlo parteru administratívnej budovy GBC V predstavuje integrálnu súčasť firemných priestorov spoločnosti Asseco CE, v ktorej je situovaná variabilná interaktívna zóna, koncipovaná ako agilné pracovisko. Jej hlavnú sálu je možné prepojiť s jednou alebo oboma zasadačkami vďaka skladacím priečkam. Bez stavebných zásahov, dodatočného personálu a v krátkom čase tak vzniknú otvorené priestory pre konferencie, školenia, prednášky či firemné podujatia a prezentácie podporujúce na jednej strane kreativitu a spoluprácu, s modulárnym nábytkom, ale aj s tichými samostatnými pracovnými zónami v prípade potreby. K dispozícii je kuchyňa so zázemím pre catering a toalety pre návštevníkov.
Asseco - Kancelárske priestory
Dispozícia pracovných priestorov je efektívna a prehľadná, no zároveň funkčne, priestorovo a vizuálne bohatá. Namiesto tradičných chodieb vytvárame multifunkčný, pôdorysne členitý (a skutočne) komunikačný priestor, ktorý tvorí chrbticu celej prevádzky. Vznikajú v ňou "zálivy", naplnené pracovnými či oddychovými mikropriestormi, ktorých úlohou je spájať ľudí, podporovať sociálny a pracovný kontakt medzi kolegami. Vďaka internému schodisku prestávajú byť podlažia bariérou pre tento kontakt. Dôraz sme kládli aj na oddychové priestory, najmä ich správnu funkčnú segregáciu. Gastro zariadenia sa členia od malých coffee pointov, cez uzatvorené kuchyne s jedálňou až po firemnú kaviareň.
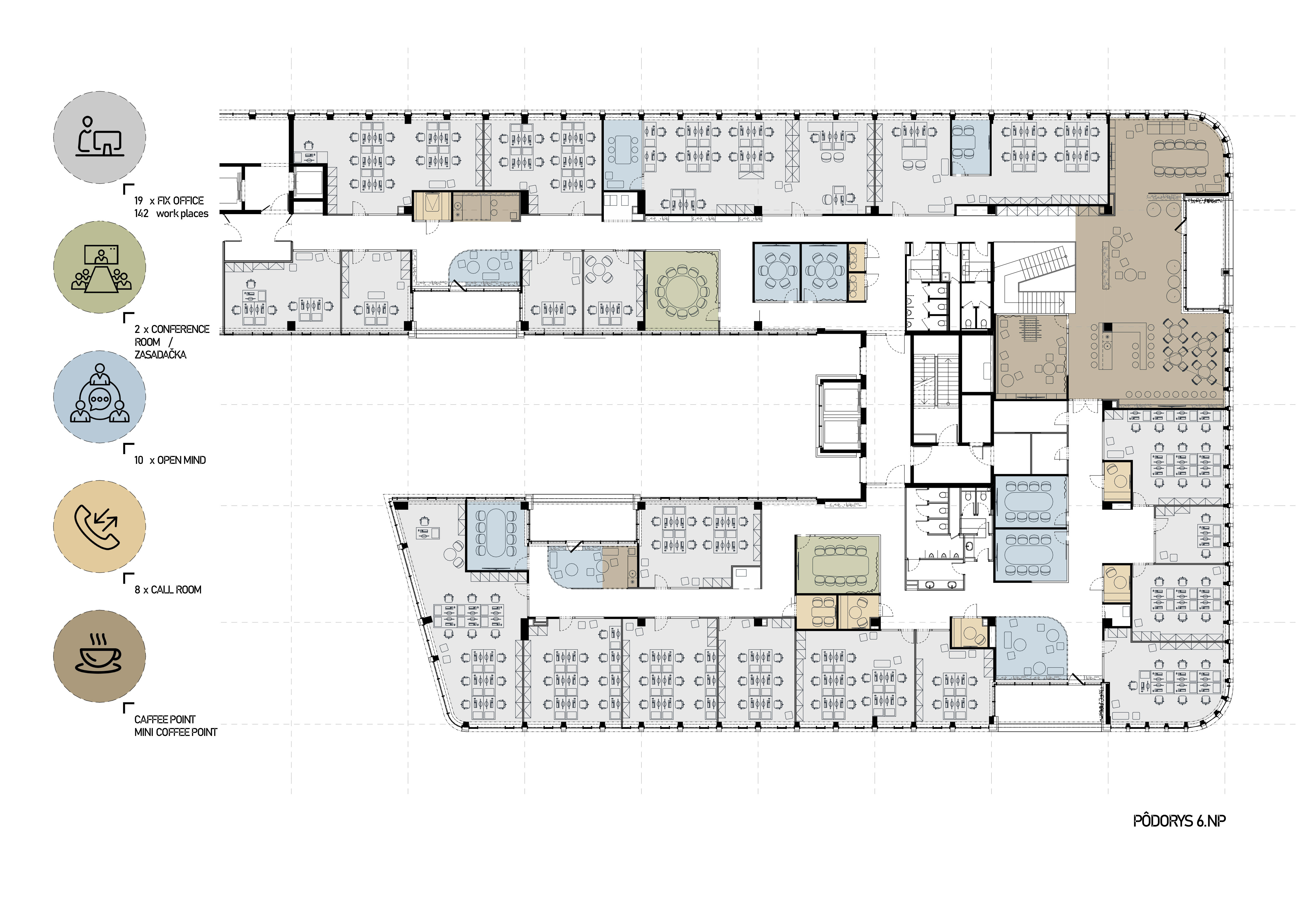
Koncepcia dispozície je postavená na členení priestoru podľa jednotlivých typov práce, pokrývajúcich všetky potreby jednotlivcov aj tímov, ale aj rôzne typy pováh v tíme a samozrejme činností, potrebných pre vývoj softvéru, ktoré sa prelínajú s priestormi určenými pre psychický alebo tiež fyzický relax. Zamestnanci tak počas pracovnej doby migrujú (pomyselnou) "kancelárskou krajinou". Uzatvorené kancelárie, "call roomy" rôznych veľkosti (1 až 4 miest) pre sústredenú prácu alebo citlivú komunikáciu, video hovory ale aj menšie brainstormingy sa striedajú s multimediálne vybavenými zasadačkami rôznych veľkostí či tímovými "open mind" pre operatívne alebo projektové pracovné stretnutia s kolegami alebo obchodné jednania s biznis partnermi.
Fotografie z kancelárskych priestorov vedenia spoločnosti na 7.NP:
Podklady: coolstock
Fotografie: Nora & Jakub Čaprnka a coolstock