Novotvar v prostredí alpskej obce.
Hansgrohe - prémiová značka kúpeľňových riešení, ponúka nadčasový dizajn, technickú precíznosť a udržateľné inovácie...
Využite špeciálnu akciu Internorm: okná za minuloročné ceny a hliníkový kryt úplne zadarmo. Ponuka je časovo obmedzená!
Na podujatí sa predstaví až 37 vystavovateľov - popredných dodávateľov stavebných materiálov a inovácií s prezentáciou...
Sumarizácia najdôležitejších inovácií, ktoré redefinujúcich využitie tohto energetického zdroja.
AMPHIBIA 3000 GRIP 1.3 od spoločnosti ATRO predstavuje modernú hydroizolačnú technológiu, ktorá spája vysokú odolnosť,...
Ambiciózne plány EK narazili na ekonomické možnosti domácností v jednotlivých členských štátoch –...
IDEA DOOR od spoločnosti JAP prináša do interiéru čistý minimalistický vzhľad vďaka bezrámovému riešeniu a precíznej...
Kontinuita riešenia od vonkajšieho obkladu až po kovania a kľučky.
Nástenné nadomietkové armatúry Vitus sú mimoriadne vhodné pre rýchlu a efektívnu...
Okenné profily z kompozitného materiálu RAU-FIPRO X od spoločnosti Rehau sú v porovnaní s tradičnými plastovými profilmi mnohonásobne...
Najnovší sortiment stolov pre zariadenie interiérov...
Spojenie moderného dizajnu, funkčnosti a svetla do harmonického architektonického prvku.
Kancelárska budova Baumit v slovinskom Trzine prešla premenou na moderné a udržateľné pracovisko. Architekti kládli dôraz...
Mottom šiesteho ročníku on-line konferencie odborníkov Xella Dialóg je Efektívny návrh budov 2025+: zmeny a riešenia

Adaptácia nadstavby v bratislavskom bytovom dome premenila pôvodne utilitárny priestor na otvorené mestské bývanie s jasným ťažiskom okolo očisteného tehlového komína. Kľúčom riešenia z dielne ateliéru coolstock bolo odstránenie podhľadov a odkrytie krovu, vloženie samostatných drevených vstavieb kúpeľní, doplnenie strešných okien a pochôdzneho svetlíka.
Realizáciu bližšie predstavíme prostredníctvom sprievodného autorského textu:
Premena konvenčného priestoru s utilitárnou dispozíciou v nadstavbe bytového domu z roku 1933 na komfortný, veľkorysý staromestský byt si vyžiadala rozsiahle zásahy do takmer všetkých jeho stavebných konštrukcií. Architektonická koncepcia prestavby bytu stojí na štyroch základných myšlienkach, ktorými sú (1) leitmotív centrálneho krbu a komína, (2) atmosféra vzdušného podkrovného bytu, (3) prirodzené denné svetlo a (4) vstavby hygienických a úložných priestorov.
(1) Pôvodne neviditeľný komín, skrytý v priečkach technických priestorov v strede východiskovej dispozície, sa mení na vizuálny leitmotív bytu. Nová dispozícia stavia teleso komína s krbom do pozície ústredného solitéru v ťažisku dispozície, vytvára okolo neho prázdny priestor a dovoľuje pohyb po jeho obvode. Komín, povrchovo očistený na tehlové murivo, je teraz viditeľný z celého obytného priestoru a v priehľadoch aj z ostatných miestností bytu. Za komínom vznikla otvorená pracovňa, opticky oddelená od ostatnej časti hlavného obytného priestoru.
(2) Na dosiahnutie parametrov a atmosféry podkrovného bytu bolo potrebné odstrániť pôvodné sadrokartónové podhľady a odhaliť časť krovu. Železobetónový strop nad východnou časťou bytu limituje jeho svetlú výšku, ale vďaka vysokej, otvorenej centrálnej časti dostáva hlavný obytný priestor potrebný objem a optickú vzdušnosť.
(3) Do priestoru s vyššou svetlou výškou sú vložené vstavby dvoch kúpeľní s vlastným stropom. Nad nimi je otvorený úložný priestor, prístupný cez mobilný rebrík. Vstavby sú konštrukčne navrhnuté ako opláštené drevené rámové konštrukcie. Do stien vstavieb sú integrované aj časti zariadenia bytu, ako sú vysoká časť kuchynskej linky, šatník pri vstupe alebo pracovný stôl. Všetky tieto prvky sú vizuálne zjednotené jedným súvislým, priebežným dreveným obkladom, ktorý v pôdoryse obopína komín.
(4) Byt je počas celého dňa presvetlený prirodzeným denným svetlom. Do šikmej strechy boli doplnené strešné okná, ktoré privádzajú svetlo do hĺbky dispozície. Do stropu kúpeľne je vložený pochôdzny svetlík, ktorý do nej prepúšťa svetlo spod strechy. Svetelná atmosféra v byte sa počas roka prirodzene mení, využívajúc výhodu strešnej polohy.
Materiálové riešenie kombinuje dubové drevo, biele povrchy omietok a zabudovaného nábytku a tehlové murivo s akcentmi z umelého kameňa a antracitovými solitérmi. Atypické nábytkové moduly sú doplnené kvalitným mobiliárom renomovaných značiek. V byte je integrovaná inteligentná elektroinštalácia.
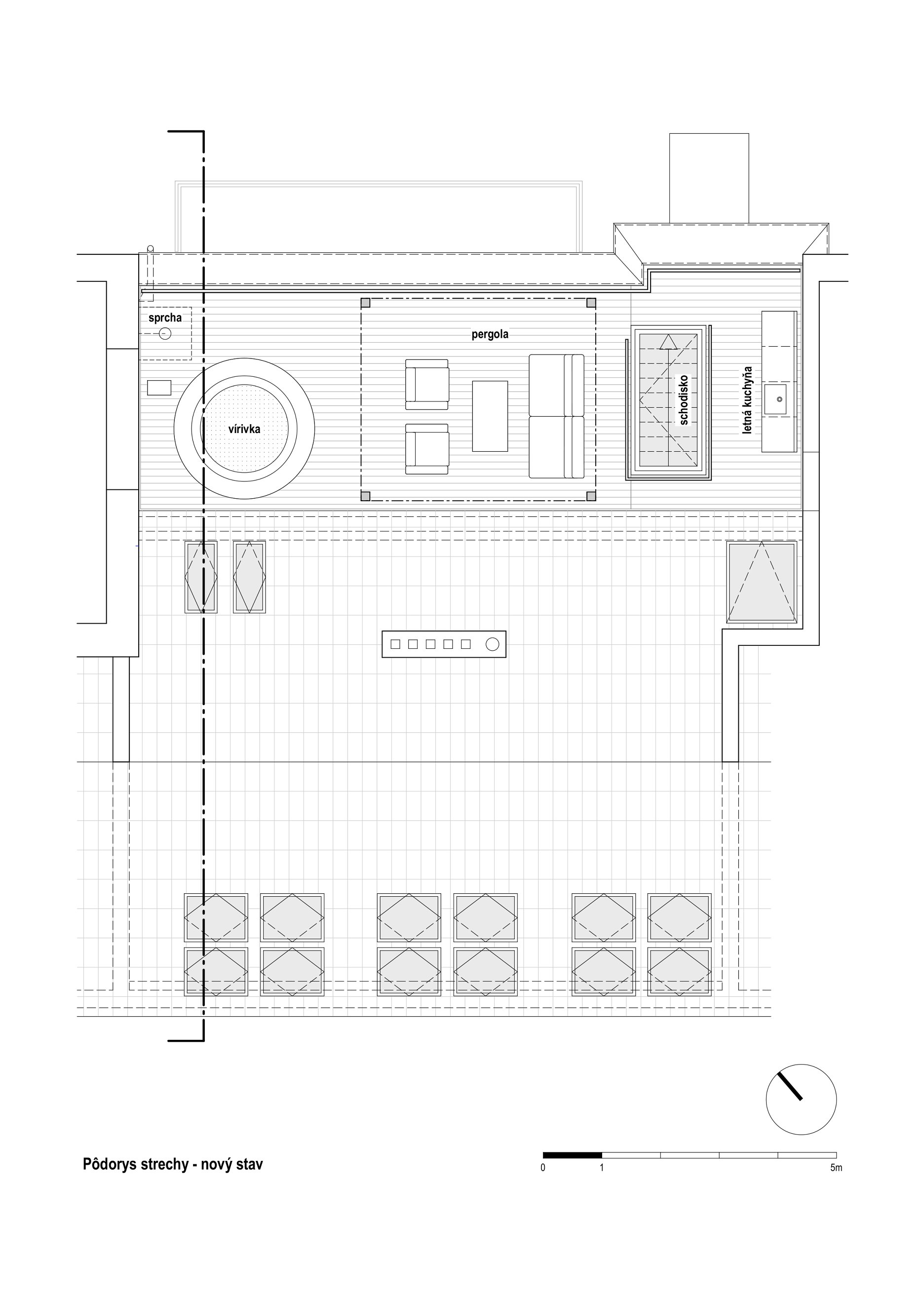
Súčasťou bytu je strešná terasa, prístupná cez schodisko a strešný výklopný svetlík, ktorá bude dokončená v ďalšej etape. Projekt interiéru riešil prípravu technických inštalácií pre letnú kuchyňu, vírivku s vonkajšou sprchou a pre pergolu so sedením. Prvá skica vznikla v júli 2019 a byt bol dokončený začiatkom roka 2025.
Podklady: coolstock
Fotografie: Jakub Čaprnka