Advertorial

Pozvánka na 2. ročník stavebného veľtrhu BigMarket na Slovensku

Na podujatí sa predstaví až 37 vystavovateľov - popredných dodávateľov stavebných materiálov a inovácií s prezentáciou...

Hotel Hirschen Spa House, Rakúsko

Novotvar v prostredí alpskej obce.

Vytvorte si kúpeľňu snov: dizajnové riešenie od značky hansgrohe

Hansgrohe - prémiová značka kúpeľňových riešení, ponúka nadčasový dizajn, technickú precíznosť a udržateľné inovácie...

Okná Internorm za minuloročné ceny + hliníkový kryt zdarma!

Využite špeciálnu akciu Internorm: okná za minuloročné ceny a hliníkový kryt úplne zadarmo. Ponuka je časovo obmedzená!

Moderné plynové technológie: Efektivita a inovácie pre 21. storočie

Sumarizácia najdôležitejších inovácií, ktoré redefinujúcich využitie tohto energetického zdroja.

Utesňovanie spodných stavieb pomocou hydro-aktívnej fólie AMPHIBIA.

AMPHIBIA 3000 GRIP 1.3 od spoločnosti ATRO predstavuje modernú hydroizolačnú technológiu, ktorá spája vysokú odolnosť,...

Dekarbonizácia individuálneho vykurovania domácností – Green Deal evolučne a nie revolučne

Ambiciózne plány EK narazili na ekonomické možnosti domácností v jednotlivých členských štátoch –...

Minimalistické dvere IDEA – technická precíznosť a čistota prevedenia

IDEA DOOR od spoločnosti JAP prináša do interiéru čistý minimalistický vzhľad vďaka bezrámovému riešeniu a precíznej...

Dom s výhľadom na údolie, Dlouhý Most (ČR)

Kontinuita riešenia od vonkajšieho obkladu až po kovania a kľučky.

Schell Vitus – osvedčené riešenie pre sprchy a umývadlá vo verejnom sektore s viac ako desaťročnou tradíciou

Nástenné nadomietkové armatúry Vitus sú mimoriadne vhodné pre rýchlu a efektívnu...

Kompozitné okná predstavujú súčasnosť a budúcnosť

Okenné profily z kompozitného materiálu RAU-FIPRO X od spoločnosti Rehau sú v porovnaní s tradičnými plastovými profilmi mnohonásobne...

Myotis - stoly 2025

Najnovší sortiment stolov pre zariadenie interiérov...

Priemyselné sklenené priečky Dorsis Digero: svetelné rozhranie pre moderné interiéry

Spojenie moderného dizajnu, funkčnosti a svetla do harmonického architektonického prvku.

Význam prirodzeného svetla pre moderné a flexibilné pracovné prostredie

Kancelárska budova Baumit v slovinskom Trzine prešla premenou na moderné a udržateľné pracovisko. Architekti kládli dôraz...

Konferencia Xella Dialóg predstaví novinky a trendy v stavebníctve

Mottom šiesteho ročníku on-line konferencie odborníkov Xella Dialóg je Efektívny návrh budov 2025+: zmeny a riešenia

Rodinný dom Dunajská Lužná

Dom urobený s dobrým gustom. Striedme gestá, vyvážený výsledok.
Diela
Red 314.02.2017
81230+43
Rodinný dom Dunajská Lužná
Ateliér: CompassAutori: Ing. arch. Juraj Benetin, Ing. arch. Matej Grébert, Ing. arch. Miroslava GašparováSpolupráca: Ing. arch. Peter CibulkaPlocha pozemku: 623 m2 Zastavaná plocha: 203 m2Podlažná plocha: 266 m2Návrh: 2013 - 2014Realizácia: 2014 - 2015Adresa: Nové Košariská , Dunajská Lužná, SlovenskoPublikované: 14. február 2017

V tlačenej podobe bol objekt prezentovaný v poslednom ARCH-u. Výstižné sprievodné slovo napísala Zuzana Tóthová. Prinášame jej pôvodný text:

Betónová nadčasovosť

Dom v Dunajskej Lužnej je realizovaný na rozhraní pôvodnej obce a prímestskej krajiny, obklopený typickou individuálnou zástavbou postavenou zdanlivo bez záujmu o architektúru.

Foto: Pavel Meluš

Prostredie a veľkosť

Dom priniesol do tohto susedstva novú kvalitu nielen v interiérovom priestore pre rodinu, ale v danej situácii aj v riešení pozemku, kde domy striktne rešpektujúce uličnú čiaru sú zväčša osadené na stred šírky pozemku. Compass architekti dosiahli krížením hmôt rôznej výšky a ich osadením takmer na hranu pozemku kompaktnú a veľkú záhradu. Vytvorili intímne prostredie dvorovej časti, kam je výhľad takmer zo všetkých izieb domu. Dom zvonku poskytuje jednoznačnú identifikáciu – v jednopodlažnej hmote sú obslužno-technické priestory domu a dvojpodlažná hmota je miestom obytnej časti, ktorá je jednoducho rozdelená v rámci podlaží na nočnú a dennú zónu.

Foto: Pavel Meluš

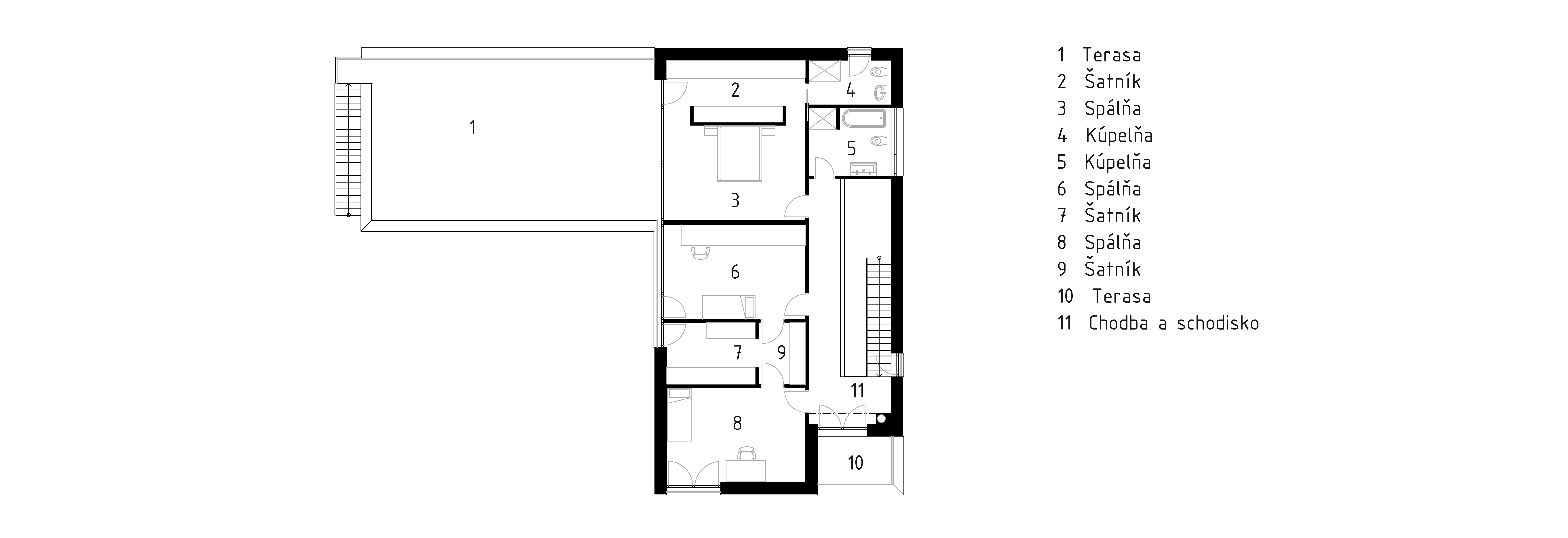
Práca s hmotou, jej krížením a vzájomným posúvaním, ako aj poloha a veľkosť okien vyvolávajú dojem menšieho objemu, akým dom v skutočnosti disponuje. Vo vstupnom podlaží je okrem dvojgaráže, technologickej miestnosti so šatníkom a celej dennej časti domu (kuchyňa, jedáleň, obývacia izba) zakomponovaná aj hosťovská izba s kúpeľňou a toaletou a pracovňa. Druhé poschodie je vyhradené spálňam – sú tu dve detské spálne so spoločným prechodným šatníkom a kúpeľňou a rodičovská takisto s vlastným šatníkom a kúpeľňou. Prosto priestorový program, pri ktorom by sme opticky predpokladali oveľa väčší objem.

Foto: Pavel Meluš
Situácia
Situácia
Pôdorys 1. NP
Pôdorys 1. NP
Pôdorys 2. NP
Pôdorys 2. NP
Rezy
Rezy

Konštrukcia a interiér

Dva biele prelínajúce sa kubusy a tmavo orámované okná jednoznačne napovedajú charakter elegantného domu. Architekti sa v návrhu vyrovnávali s typickou výzvou modernej „presklenej“ architektúry a našli vyvážený pomer medzi otvorením domu do okolia a ochranou pred stratou súkromia jednotlivých izieb. V neposlednom rade však museli takéto otvorené riešenie pretaviť do zodpovedajúceho a optimálneho konštrukčného riešenia. Rozpätia a široká konzola druhého podlažia po celej jeho dĺžke vyžadované týmto návrhom boli zhmotnené v železobetónovej konštrukcii.

Pohľady
Pohľady

Konzola druhého podlažia vytvára zároveň prirodzené tienenie obytným priestorom dennej časti na báze princípu Sokratovho domu. Železobetón sa ako vhodný stavebný materiál osvedčil nielen z konštrukčných, ale i z estetických dôvodov, keďže vkusu domácich zodpovedal jednoznačne pohľadový betón v kombinácii s drevom. Betónové konštrukcie sa v pohľadovej kvalite objavujú cielene v rôznych polohách interiéru v rámci celého domu. Ich estetický výraz umocňuje charakter interiéru, nie sú dominantné, ale stávajú sa prirodzenou súčasťou priestoru plynúceho až do exteriéru.

Foto: Pavel Meluš
Foto: Pavel Meluš
Foto: Pavel Meluš
Foto: Pavel Meluš

Motív nadčasovosti

Svetovo známy fínsky architekt Alvar Aalto, ktorý architektúru považoval za fenomén patriaci k významným prvkom kvality života, vyjadril svoju filozofiu slovami: „V architektúre vždy existuje nejaký hlbší motív, ktorý vykukuje akoby spoza rohu: myšlienka na stvorenie raja. To je jediný zmysel a účel našich budov. Ak nebudeme nosiť túto myšlienku stále so sebou, budú naše stavby obyčajnejšie, triviálnejšie a život sa stane… – teda, čo vôbec zostane zo života? Každá budova, každé architektonické dielo je symbolom, ktorý nám má ukázať, že chceme tu na zemi vystavať raj pre obyčajných smrteľníkov.“

V Dunajskej Lužnej je tým motívom a myšlienkou, ktorá je korením celého návrhu, jeho nadčasovosť. Možno viac interiér ako vonkajší vzhľad tohto moderného domu môže vyvolať polemiku o nadčasovosti architektúry, o nadčasovosti výrazu, ktorá je tak často skloňovaná v architektúre rodinných domov pri použití kubických objemov, pri ich prepájaní v overenej kompozičnej schéme, ktorou dosiahnete aj optimálne dispozičné riešenia. Podľa slovníka slovenského jazyka nadčasový je nezávislý od času, nepodliehajúci zmenám, ktoré sa odohrávajú v čase, trvalý, večný...

Dom v Dunajskej Lužnej tieto ambície napĺňa. Použité sú všade len dva typy podláh – buď dlažba alebo drevená dubová palubovka. Steny a stropy sú betónové alebo bielo omietnuté, v kúpeľniach so sivým obkladom. Vstavané nábytky sú všetky tiež materiálovo a farebne len v čierno-bielej palete v kombinácii s drevom. V celom dome vlastne nie je potrebný skriňový nábytok, keďže súčasťou všetkých spální sú šatníky. Jednoduchou výmenou doplnkov alebo textílií, teda drobnou zmenou materiálu alebo farebného akcentu možno docieliť rôzne vnímanie, rôznu farebnosť, rôzny štýl... a pritom dosiahnuť riešenia, ktoré ani po rokoch užívania nestratia na kvalite a aktuálnosti, nebudú „out“. Steny a stropy z pohľadového betónu dávajú interiéru autentickú atmosféru a vytvárajú príjemný kontrast s dreveným mobiliárom.

Biela omietka vonkajších stien v kombinácii s antracitovými rámami otvorov, zábradlím a oplotením na druhej strane dopĺňajú harmóniu exteriéru. Aj v tomto prípade sa tvarová jednoduchosť a farebná striedmosť s charakterom súčasnej moderny stali základom dobrého domu.

Podklady: Compass Architekti 
Text: Zuzana Tóthová 
Slovo recenzentky bolo publikované  v časopise ARCH 1-2/2017

Ateliér

Poloha diela

Ing. arch. Juraj Benetin
Ing. arch. Matej Grébert
Ing. arch. Miroslava Gašparová

Súvisiace články

Vložené
10. február 2017
0
8123
Hlavný obsahHlavný obsah
Čakajte prosím