Advertorial

Pozvánka na 2. ročník stavebného veľtrhu BigMarket na Slovensku

Na podujatí sa predstaví až 37 vystavovateľov - popredných dodávateľov stavebných materiálov a inovácií s prezentáciou...

Hotel Hirschen Spa House, Rakúsko

Novotvar v prostredí alpskej obce.

Vytvorte si kúpeľňu snov: dizajnové riešenie od značky hansgrohe

Hansgrohe - prémiová značka kúpeľňových riešení, ponúka nadčasový dizajn, technickú precíznosť a udržateľné inovácie...

Okná Internorm za minuloročné ceny + hliníkový kryt zdarma!

Využite špeciálnu akciu Internorm: okná za minuloročné ceny a hliníkový kryt úplne zadarmo. Ponuka je časovo obmedzená!

Moderné plynové technológie: Efektivita a inovácie pre 21. storočie

Sumarizácia najdôležitejších inovácií, ktoré redefinujúcich využitie tohto energetického zdroja.

Utesňovanie spodných stavieb pomocou hydro-aktívnej fólie AMPHIBIA.

AMPHIBIA 3000 GRIP 1.3 od spoločnosti ATRO predstavuje modernú hydroizolačnú technológiu, ktorá spája vysokú odolnosť,...

Dekarbonizácia individuálneho vykurovania domácností – Green Deal evolučne a nie revolučne

Ambiciózne plány EK narazili na ekonomické možnosti domácností v jednotlivých členských štátoch –...

Minimalistické dvere IDEA – technická precíznosť a čistota prevedenia

IDEA DOOR od spoločnosti JAP prináša do interiéru čistý minimalistický vzhľad vďaka bezrámovému riešeniu a precíznej...

Dom s výhľadom na údolie, Dlouhý Most (ČR)

Kontinuita riešenia od vonkajšieho obkladu až po kovania a kľučky.

Schell Vitus – osvedčené riešenie pre sprchy a umývadlá vo verejnom sektore s viac ako desaťročnou tradíciou

Nástenné nadomietkové armatúry Vitus sú mimoriadne vhodné pre rýchlu a efektívnu...

Kompozitné okná predstavujú súčasnosť a budúcnosť

Okenné profily z kompozitného materiálu RAU-FIPRO X od spoločnosti Rehau sú v porovnaní s tradičnými plastovými profilmi mnohonásobne...

Myotis - stoly 2025

Najnovší sortiment stolov pre zariadenie interiérov...

Priemyselné sklenené priečky Dorsis Digero: svetelné rozhranie pre moderné interiéry

Spojenie moderného dizajnu, funkčnosti a svetla do harmonického architektonického prvku.

Význam prirodzeného svetla pre moderné a flexibilné pracovné prostredie

Kancelárska budova Baumit v slovinskom Trzine prešla premenou na moderné a udržateľné pracovisko. Architekti kládli dôraz...

Konferencia Xella Dialóg predstaví novinky a trendy v stavebníctve

Mottom šiesteho ročníku on-line konferencie odborníkov Xella Dialóg je Efektívny návrh budov 2025+: zmeny a riešenia

Rodinný dom Devín - compass architekti

"Taký normálny dom" - v najlepšom zmysle slova. V podstate nič nebráni, aby bežná stavebná produkcia bola na takejto úrovni. Asi iba kultúrna úroveň stavebníkov a ich (ne)ochota nájsť si gramotných architektov(?)
Diela
Red 324.06.2016
78730+28
Rodinný dom Devín - compass architekti
Ateliér: CompassAutori: Ing. arch. Matej Grébert, Ing. arch. Juraj Benetin, Ing. Peter CibulkaInvestor: súkromná osobaPlocha pozemku: 688 m2 Zastavaná plocha: 115 m2Podlažná plocha: 180,09 m2Obostavaný objem: 860 m3 Návrh: 2011 - 2012Realizácia: 2013 - 2015Adresa: Devín , Bratislava, SlovenskoPublikované: 24. jún 2016

Rodinný dom je situovaný na svahovitom pozemku so severo-západnou orientáciou. Prístup naň je zo severo-východnej strany z ulice. Okolitú zástavu tvoria rodinné domy. Objekt je umietstnený na východnej strane pozemku tak, že rešpektuje odstupové vzdialenosti stanovené stavebným úradom.

Situácia
Situácia
foto: Pavel Meluš

Vjazd do garáže je riešený cez prístupovú rampu, ktorá umožňuje aj odstavenie dvoch motorových vozidiel. 1.PP tvorí dvojgaráž, technické a skladové priestory.

Pôdorys 1. PP
Pôdorys 1. PP

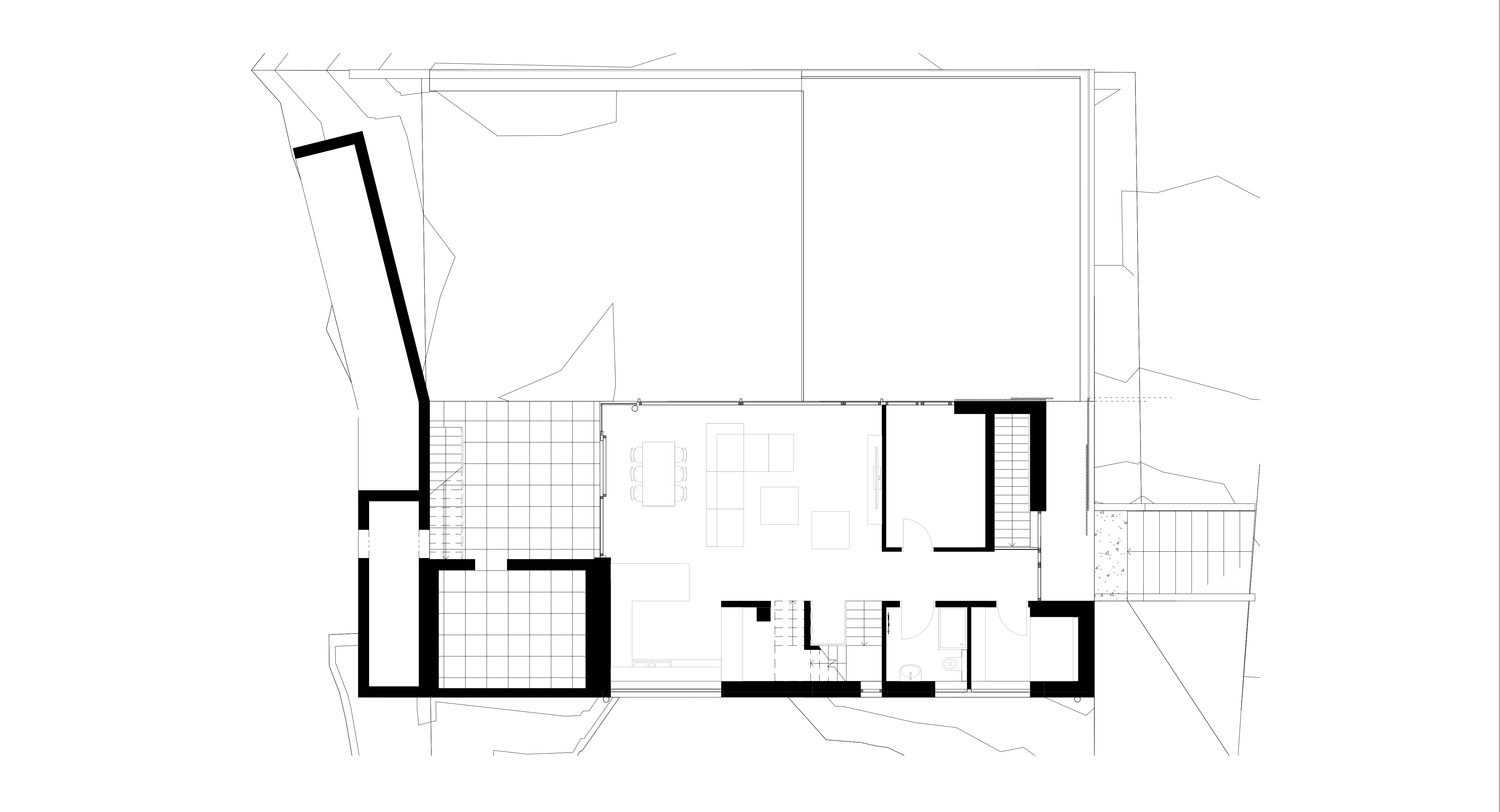
Na 1. NP sa nachádza obytná časť s kuchyňou a jedálňou. Na prízemí je tiež hosťovská izba, kúpelňa. Z obytnej miestnosti je priamy prístup na terasy a záhradu. Pozemok je z dôvodu, že sa nachádza vo svahu, upravený vybudovaním oporného múru z východnej strany ktorým sa vyrovná terénna nerovnosť. 

Pôdorys 1. NP
Pôdorys 1. NP

Na druhom nadzemnom podlaží je nočná časť domu kde sa nachádzajú spálne a hygienické miestnosti a pracovňa. Osadenie vo svahu umožňuje východ z 2.NP na terasu, nakoľko je dom čiastočne zapustený v teréne. Nočná časť má západnú orientáciu. Dom disponuje dvoma parkovacími miestani v garáži a dvoma odstavnými plochami na príjazdovej rampe. Odkladacie priestory a šatníky sú dostatočne nadimenzované. Veľkoryso riešené obývacie izby sú otvorené do záhrady cez veľkoformátové posuvné okná.

Pôdorys 2. NP
Pôdorys 2. NP
foto: Pavel Meluš
foto: Pavel Meluš
foto: Pavel Meluš
foto: Pavel Meluš
foto: Pavel Meluš
foto: Pavel Meluš
foto: Pavel Meluš
foto: Pavel Meluš
Priečny rez
Priečny rez
Pozdĺžny rez
Pozdĺžny rez
Juhovýchodný pohľad
Juhovýchodný pohľad
Juhozápadný pohľad
Juhozápadný pohľad
Severovýchodný pohľad
Severovýchodný pohľad
Severozápadný pohľad
Severozápadný pohľad

Ateliér

Poloha diela

Ing. arch. Matej Grébert
Ing. arch. Juraj Benetin
Ing. Peter Cibulka

Súvisiace články

Vložené
15. jún 2016
0
7873
Hlavný obsahHlavný obsah
Čakajte prosím