Na podujatí sa predstaví až 37 vystavovateľov - popredných dodávateľov stavebných materiálov a inovácií s prezentáciou...
Novotvar v prostredí alpskej obce.
Hansgrohe - prémiová značka kúpeľňových riešení, ponúka nadčasový dizajn, technickú precíznosť a udržateľné inovácie...
Využite špeciálnu akciu Internorm: okná za minuloročné ceny a hliníkový kryt úplne zadarmo. Ponuka je časovo obmedzená!
Sumarizácia najdôležitejších inovácií, ktoré redefinujúcich využitie tohto energetického zdroja.
AMPHIBIA 3000 GRIP 1.3 od spoločnosti ATRO predstavuje modernú hydroizolačnú technológiu, ktorá spája vysokú odolnosť,...
Ambiciózne plány EK narazili na ekonomické možnosti domácností v jednotlivých členských štátoch –...
IDEA DOOR od spoločnosti JAP prináša do interiéru čistý minimalistický vzhľad vďaka bezrámovému riešeniu a precíznej...
Kontinuita riešenia od vonkajšieho obkladu až po kovania a kľučky.
Nástenné nadomietkové armatúry Vitus sú mimoriadne vhodné pre rýchlu a efektívnu...
Okenné profily z kompozitného materiálu RAU-FIPRO X od spoločnosti Rehau sú v porovnaní s tradičnými plastovými profilmi mnohonásobne...
Najnovší sortiment stolov pre zariadenie interiérov...
Spojenie moderného dizajnu, funkčnosti a svetla do harmonického architektonického prvku.
Kancelárska budova Baumit v slovinskom Trzine prešla premenou na moderné a udržateľné pracovisko. Architekti kládli dôraz...
Mottom šiesteho ročníku on-line konferencie odborníkov Xella Dialóg je Efektívny návrh budov 2025+: zmeny a riešenia

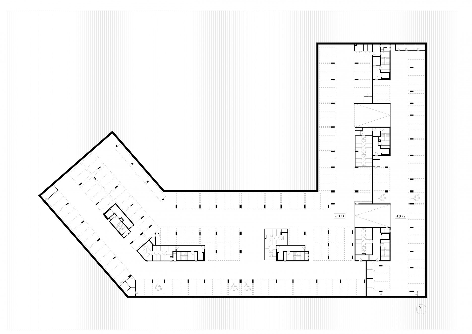
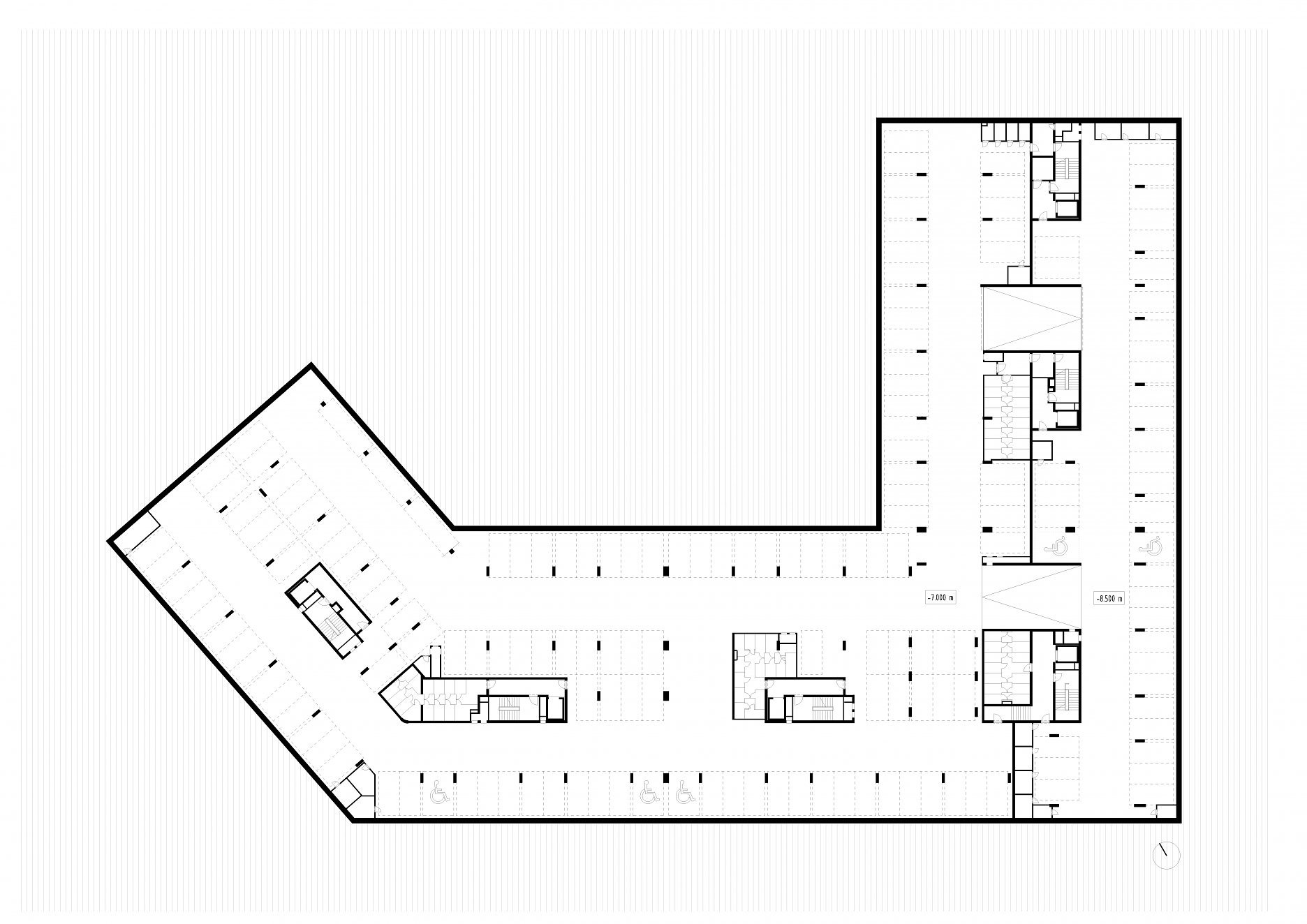
ZWIRN 1 je prvým realizovaným blokom v rámci prebiehajúcej revitalizácie bývalého areálu Bratislavskej cvernovej továrne. Nové riešenie zóny vzišlo z medzinárodnej architektonicko-urbanistickej súťaže, v ktorej zvíťazil návrh kolektívu COMPASS ARCHITEKTI. Koncept bratislavského ateliéru spočíva vo vytvorení polyfunkčných mestských blokov. Tri približne rovnako veľké celky prirodzene vstupujú do kontextu radiálnej urbanistickej kompozície s ťažiskom Dulovho námestia a prepájajú v minulosti rozdelené zóny po obvode “megabloku” pôvodného industriálneho areálu. Nové riešenie blokovej štruktúry zóny ZWIRN prináša otvorenie priečnych priehľadov a prepojení a elimináciu tranzitnej dopravy, s dôrazom na kvalitu verejných priestorov. Jednotlivé bloky dopravne obsluhujú komunikácie ukončené vjazdmi do podzemných garáží.
ZWIRN 1 je prvou realizovanou etapou polyfunkčných mestských blokov. Priamo nadväzuje na predošlé investičné činnosti v území: pamiatkovú obnovu budovy Pradiarne a realizáciu námestia s podzemnými garážami. Zároveň definuje charakter výstavby aj pre ďalšie pripravované etapy - ZWIRN 2 a ZWIRN 3.
Aktuálne dokončená etapa zahŕňa dvojicu bytových domov, prepojených objektom podzemnej garáže. Každý z objektov pozostáva z troch sekcií. Dispozície bytových domov plynú okolo ústredných komunikačných jadier. Realizácia ponúka pestrý mix 267 bytov rôznych veľkostných kategórií, spolu s ponukou viacerých typov vonkajších pobytových plôch - balkónov, lodžií, terás, strešných terás a predzáhradiek… Na prízemí, v priamej väzbe na okolité pešie trasy, nájdeme priestory pre obchodné prevádzky a služby. Vzniká tak predpoklad zapojenia nového celku do existujúcej mestskej štruktúry.
Základné hmotové riešenie bloku do veľkej miery definujú svetlotechnické limity v území. Architektonické stvárnenie kompaktného objemu charakterizuje artikulácia fasád prostredníctvom segmentov lodžií a balkónov, ktorých poloha a rozsah reflektuje charakter okolia. Smerom do námestia a rušnej ulice Košická je orientovaný lodžiový systém. Balkónový systém smeruje do kľudnejšieho vnútrobloku a bočnej slepej komunikácie. Na uličnej fasáde od Košickej zároveň kompozične dopĺňa rytmus lodžiového systému.
Použité architektonické a stavebné riešenia kladú dôraz na striedmosť výrazových prostriedkov, zjednocovanie dizajnových riešení a trvácnosť použitých materiálov. Materiálový a farebný súlad fasád objektu a interiéru spoločných priestorov bytových domov dotvára charakter solídneho mestského bloku. Súčasne vytvára priestor pre budúce nánosy života svojich obyvateľov.
Fasádu v polohe hlavných vstupov do jednotlivých sekcií dotvárajú veľkoplošné keramické mozaiky. Svojim výtvarným spracovaním oživujú a identifikujú každý vchod.
Vonkajšie pobytové plochy tvorí najmä vnútroblok objektu, kde sa uplatňuje výrazne výškové členenie terénu. Výsadbu s dôrazom na prírodný charakter dopĺňa jednoduchý mobiliár pre oddych a aktívne trávenie voľného času.
Použité materiály a riešenia:
Podklady: COMPASS ARCHITEKTI
Fotografie: Matej Hakár a DYNAMEET visual studio