Advertorial

Pozvánka na 2. ročník stavebného veľtrhu BigMarket na Slovensku

Na podujatí sa predstaví až 37 vystavovateľov - popredných dodávateľov stavebných materiálov a inovácií s prezentáciou...

Hotel Hirschen Spa House, Rakúsko

Novotvar v prostredí alpskej obce.

Vytvorte si kúpeľňu snov: dizajnové riešenie od značky hansgrohe

Hansgrohe - prémiová značka kúpeľňových riešení, ponúka nadčasový dizajn, technickú precíznosť a udržateľné inovácie...

Okná Internorm za minuloročné ceny + hliníkový kryt zdarma!

Využite špeciálnu akciu Internorm: okná za minuloročné ceny a hliníkový kryt úplne zadarmo. Ponuka je časovo obmedzená!

Moderné plynové technológie: Efektivita a inovácie pre 21. storočie

Sumarizácia najdôležitejších inovácií, ktoré redefinujúcich využitie tohto energetického zdroja.

Utesňovanie spodných stavieb pomocou hydro-aktívnej fólie AMPHIBIA.

AMPHIBIA 3000 GRIP 1.3 od spoločnosti ATRO predstavuje modernú hydroizolačnú technológiu, ktorá spája vysokú odolnosť,...

Dekarbonizácia individuálneho vykurovania domácností – Green Deal evolučne a nie revolučne

Ambiciózne plány EK narazili na ekonomické možnosti domácností v jednotlivých členských štátoch –...

Minimalistické dvere IDEA – technická precíznosť a čistota prevedenia

IDEA DOOR od spoločnosti JAP prináša do interiéru čistý minimalistický vzhľad vďaka bezrámovému riešeniu a precíznej...

Dom s výhľadom na údolie, Dlouhý Most (ČR)

Kontinuita riešenia od vonkajšieho obkladu až po kovania a kľučky.

Schell Vitus – osvedčené riešenie pre sprchy a umývadlá vo verejnom sektore s viac ako desaťročnou tradíciou

Nástenné nadomietkové armatúry Vitus sú mimoriadne vhodné pre rýchlu a efektívnu...

Kompozitné okná predstavujú súčasnosť a budúcnosť

Okenné profily z kompozitného materiálu RAU-FIPRO X od spoločnosti Rehau sú v porovnaní s tradičnými plastovými profilmi mnohonásobne...

Myotis - stoly 2025

Najnovší sortiment stolov pre zariadenie interiérov...

Priemyselné sklenené priečky Dorsis Digero: svetelné rozhranie pre moderné interiéry

Spojenie moderného dizajnu, funkčnosti a svetla do harmonického architektonického prvku.

Význam prirodzeného svetla pre moderné a flexibilné pracovné prostredie

Kancelárska budova Baumit v slovinskom Trzine prešla premenou na moderné a udržateľné pracovisko. Architekti kládli dôraz...

Konferencia Xella Dialóg predstaví novinky a trendy v stavebníctve

Mottom šiesteho ročníku on-line konferencie odborníkov Xella Dialóg je Efektívny návrh budov 2025+: zmeny a riešenia

Administratívno skladový areál Sliačska

Konverzia starej priemyselnej haly na kancelársku budovu. Dobrý príklad, ako by sa to dalo robiť pri mnohých ďalších chátrajúcich budovách.
Diela
Red 318.05.2016
31710+18
Administratívno skladový areál Sliačska
Ateliér: Compass, CompassAutori: Ing. arch. Matej Grébert, Ing. Mgr. art. Juraj Kurpaš, Ing. Roman ČambalInvestor: Slovunit SliačskaZastavaná plocha: 3 044,00 m²Podlažná plocha: 5 706,83 m²Obostavaný objem: 30 650,00 m²Návrh: 2013 - 2016Realizácia: 2015 - 2016Adresa: Sliačska 10235, Bratislava, SlovenskoPublikované: 18. máj 2016

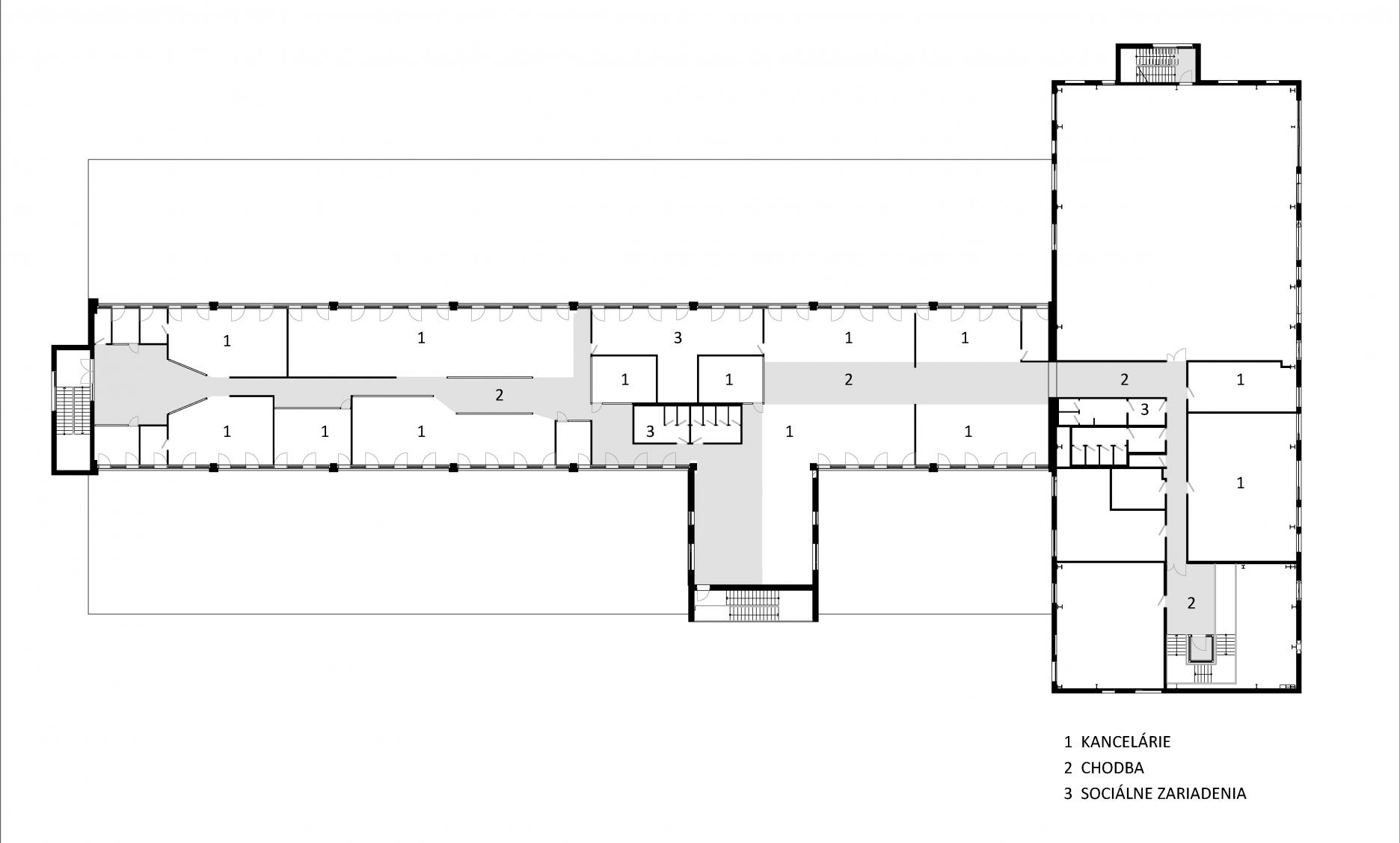
Zámerom architektov bolo priznať priemyselnú minulosť bývalej výrobnej haly Výskumného ústavu zváračského, oživiť túto chátrajúcu budovu a vytvoriť v nej nové priestory kancelárií, skladov, obchodov a občianskej vybavenosti s osobitým industriálnym dizajnom. Areál sa nachádza na Sliačskej ulici. Napojenie na Sliačsku ulicu je z Račianskej ulice. 

Foto: Pavel Meluš

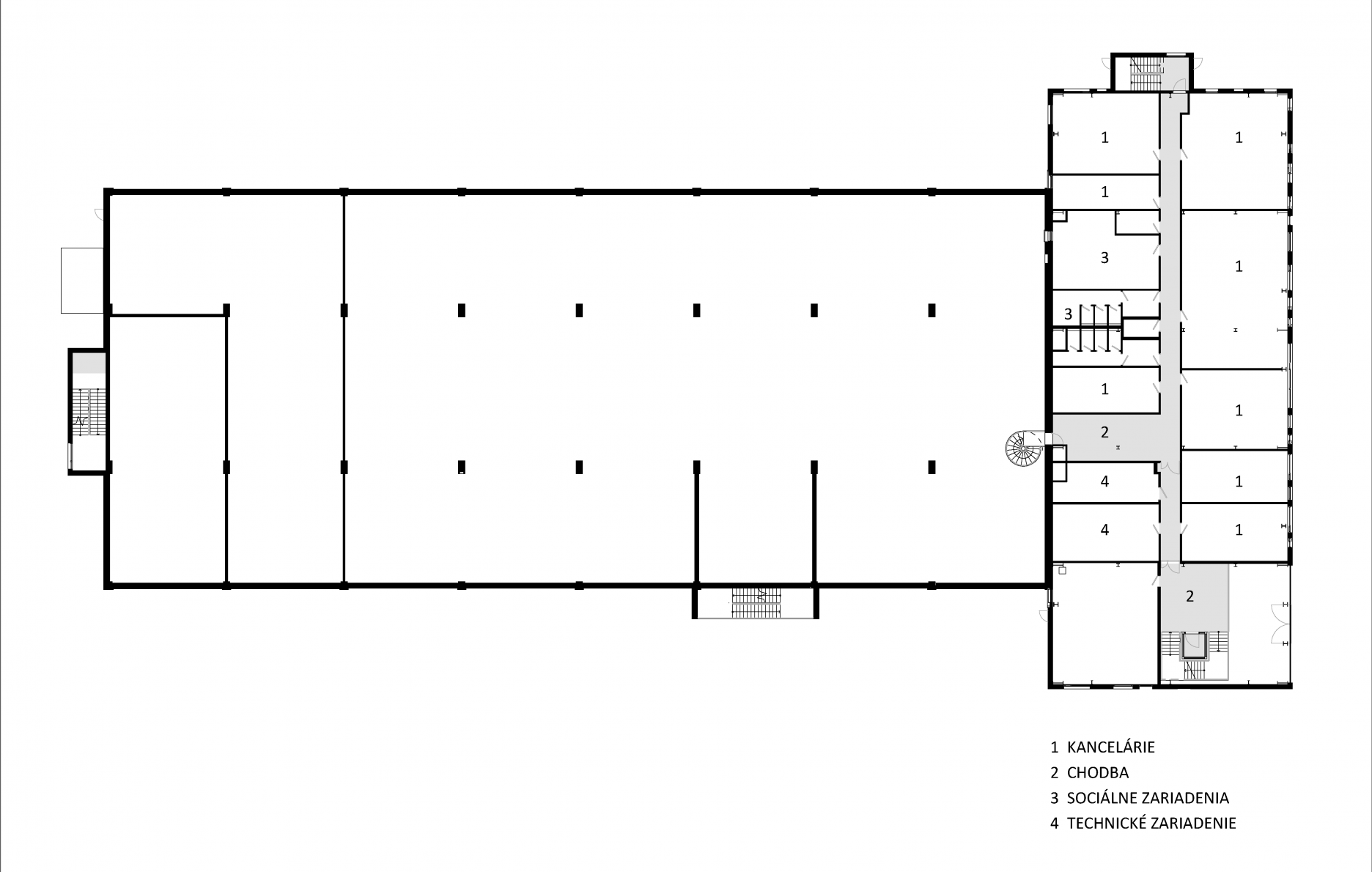
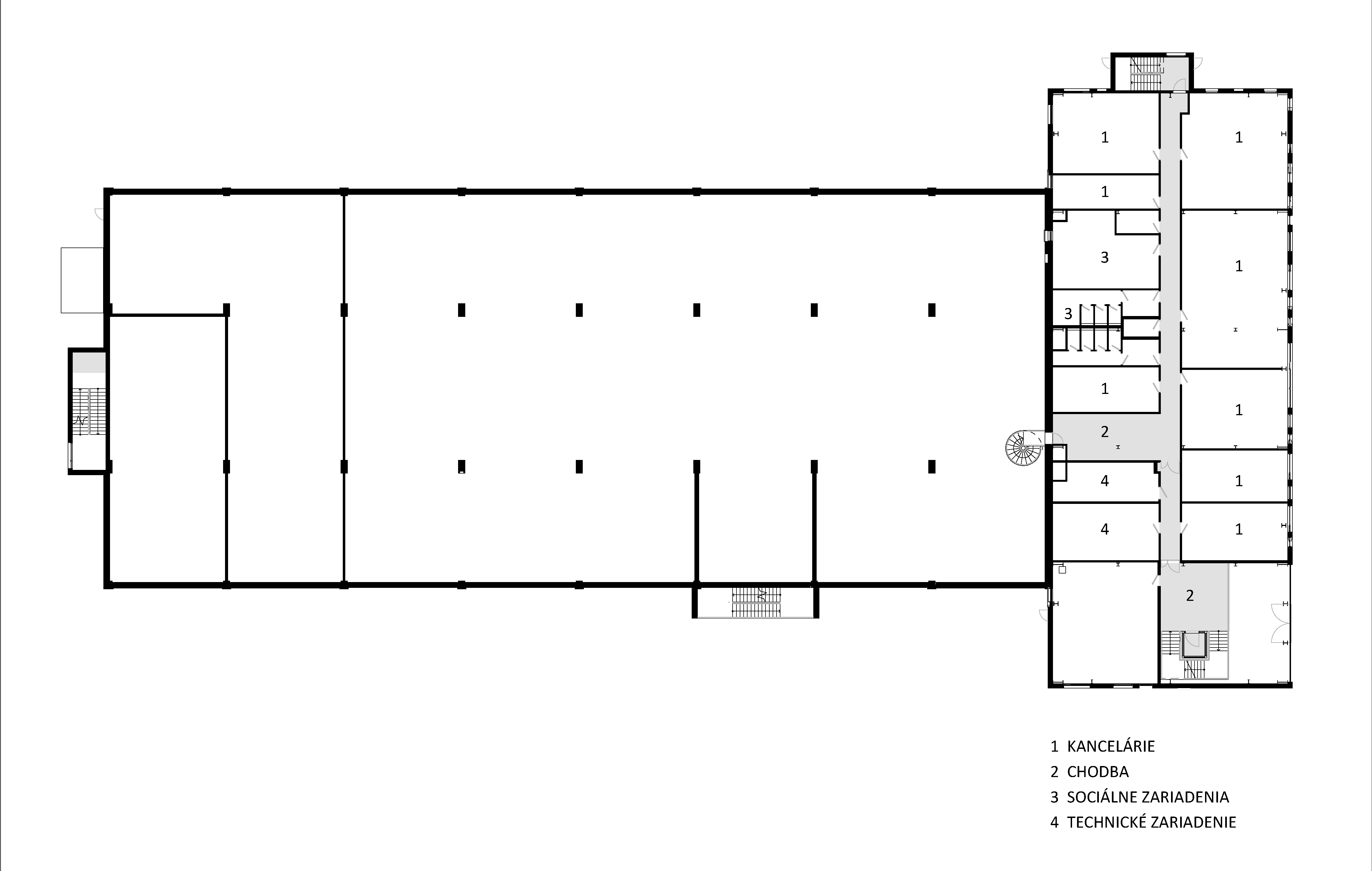
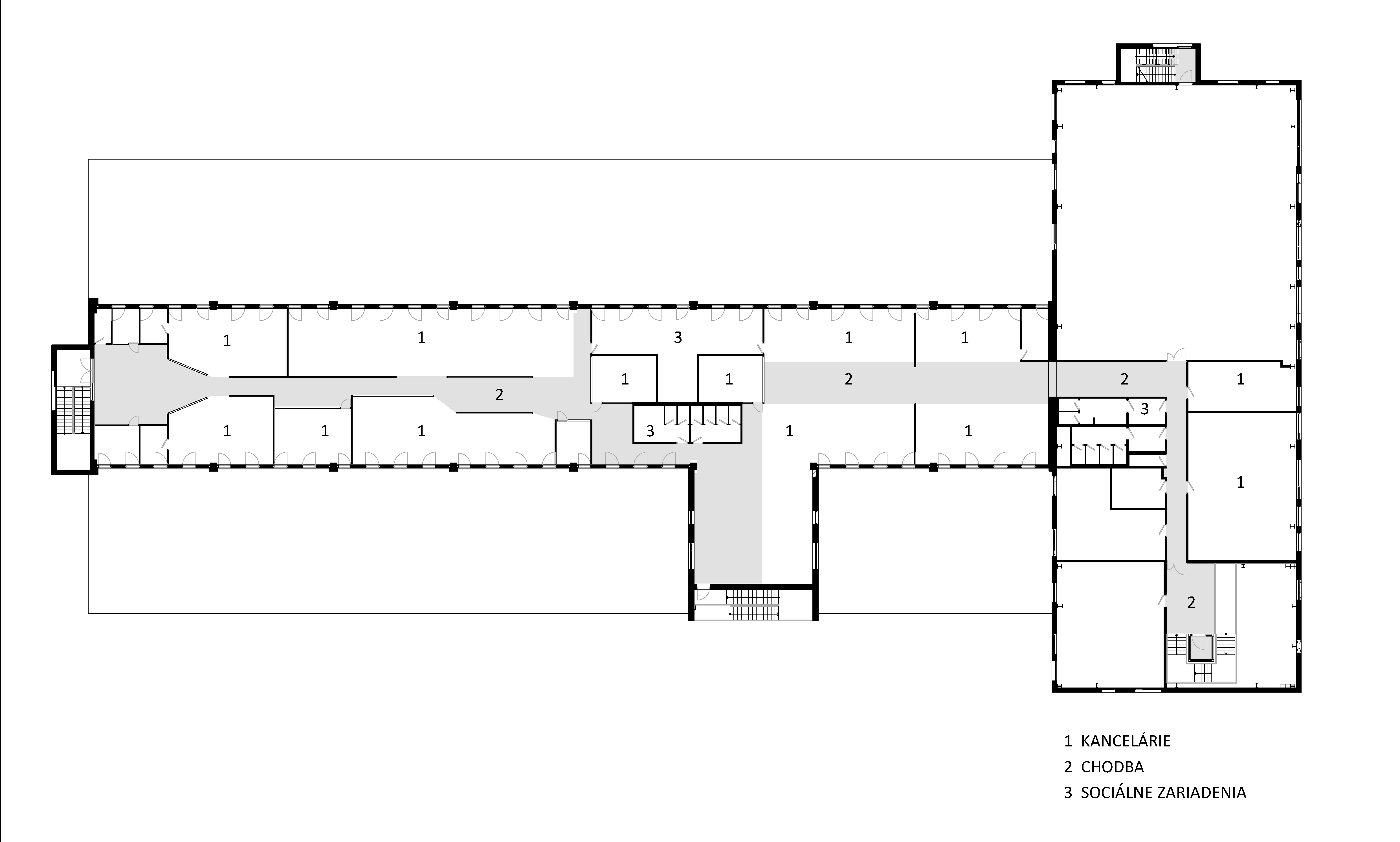
Priemyselná hala má tvar T. Stavba sa skladá z dvoch častí - oceľovej a betónovej, postavených v rôznych časových obdobiach. V prednej časti pri Sliačskej ulici boli vstavané tri podlažia. Na prízemí vznikli obchodné prevádzky a na poschodiach kancelárie. Vstupná hala ostala v pôvodnej výške, otvorila sa tak celá  do ulice.  V pozdĺžnej časti smerom do dvora Zváračského ústavu sú umiestnené skladové jednotky so samostatnými vchodmi, využiteľné aj na malú remeselnú výrobu. Na celej dĺžke haly bolo na úrovni 3.np vytvorené ďalšie podlažie s kanceláriami. Predná časť je architektonicky výtvarnejšia, zadná technickejšia.

Pôdorys 1. NP
Pôdorys 1. NP
Pôdorys 2. NP
Pôdorys 2. NP
Pôdorys 3. NP
Pôdorys 3. NP

Objekt bol pred začiatkom rekonštrukcie očistený od všetkých vnútorných deliacich priečok, dverí. Na fasáde boli odstránené výplňové konštrukcie ako sú okná, dvere a zasklené steny.  V okolí objektu boli odstránené všetky existujúce garážové bloky nachádzajúce sa na pozemku.  Pre vytvorenie nových okenných výplňových konštrukcií bola odstránená severovýchodná fasáda a juhozápadná fasáda prednej haly. Do ostatných fasád prednej časti haly boli vytvorené okenné otvory vyrezávaním, a vkladaním prekladových prvkov. Nové obvodové steny sú monolitické železobetónové hr. 200 mm. Steny sú stabilizačne previazané v úrovni stropov nad 1.NP a 2.NP s monolitickými stropnými doskami. Uličná fasáda je orientovaná zo severovýchodnej strany.

Foto: Pavel Meluš
Foto: Pavel Meluš
Foto: Pavel Meluš
Foto: Pavel Meluš

Priestory vstupnej haly využívajú celú výšku pôvodného výrobného objektu. Celá hala sa tak otvorilad o ulice.

Foto: Pavel Meluš
Foto: Pavel Meluš

Odhalená oceľová konštrukcia v kancelárskych priestoroch oživuje priemyselnú minulosť bývalej výrobnej haly.

Foto: Pavel Meluš
Foto: Pavel Meluš

Interiér kancelárií nad skladovými priestormi. Pôvodné betónové konštrukcie ostali tiež odhalené.

Foto: Pavel Meluš

Skladové jednotky so samostatnými vchodmi sa nachádzajú v pozdĺžnej časti budovy smerom do dvora Zváračského ústavu.

Foto: Pavel Meluš

Pomocné dvojramené betónové schodisko je uzatvorené železobetónovými stenami s oknami. V zrkadle je zábradlie s pásoviny.

Foto: Pavel Meluš
Rezy
Rezy
Pohľady
Pohľady
Pohľady
Pohľady

Poloha diela

Ing. arch. Matej Grébert
Ing. Mgr. art. Juraj Kurpaš
Ing. Roman Čambal

Súvisiace články

Vložené
18. máj 2016
0
3171
Hlavný obsahHlavný obsah
Čakajte prosím