Na podujatí sa predstaví až 37 vystavovateľov - popredných dodávateľov stavebných materiálov a inovácií s prezentáciou...
Novotvar v prostredí alpskej obce.
Hansgrohe - prémiová značka kúpeľňových riešení, ponúka nadčasový dizajn, technickú precíznosť a udržateľné inovácie...
Využite špeciálnu akciu Internorm: okná za minuloročné ceny a hliníkový kryt úplne zadarmo. Ponuka je časovo obmedzená!
Sumarizácia najdôležitejších inovácií, ktoré redefinujúcich využitie tohto energetického zdroja.
AMPHIBIA 3000 GRIP 1.3 od spoločnosti ATRO predstavuje modernú hydroizolačnú technológiu, ktorá spája vysokú odolnosť,...
Ambiciózne plány EK narazili na ekonomické možnosti domácností v jednotlivých členských štátoch –...
IDEA DOOR od spoločnosti JAP prináša do interiéru čistý minimalistický vzhľad vďaka bezrámovému riešeniu a precíznej...
Kontinuita riešenia od vonkajšieho obkladu až po kovania a kľučky.
Nástenné nadomietkové armatúry Vitus sú mimoriadne vhodné pre rýchlu a efektívnu...
Okenné profily z kompozitného materiálu RAU-FIPRO X od spoločnosti Rehau sú v porovnaní s tradičnými plastovými profilmi mnohonásobne...
Najnovší sortiment stolov pre zariadenie interiérov...
Spojenie moderného dizajnu, funkčnosti a svetla do harmonického architektonického prvku.
Kancelárska budova Baumit v slovinskom Trzine prešla premenou na moderné a udržateľné pracovisko. Architekti kládli dôraz...
Mottom šiesteho ročníku on-line konferencie odborníkov Xella Dialóg je Efektívny návrh budov 2025+: zmeny a riešenia

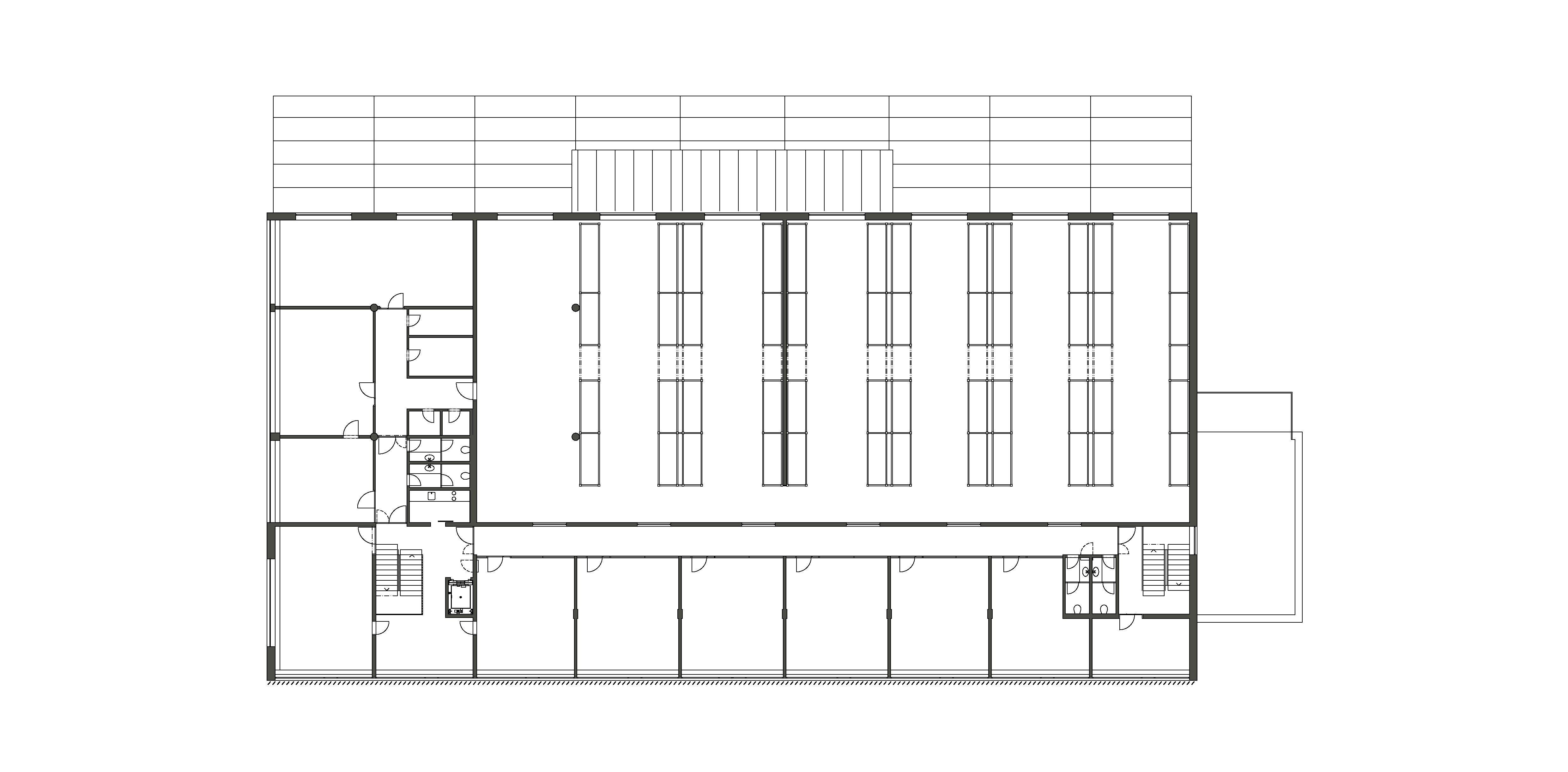
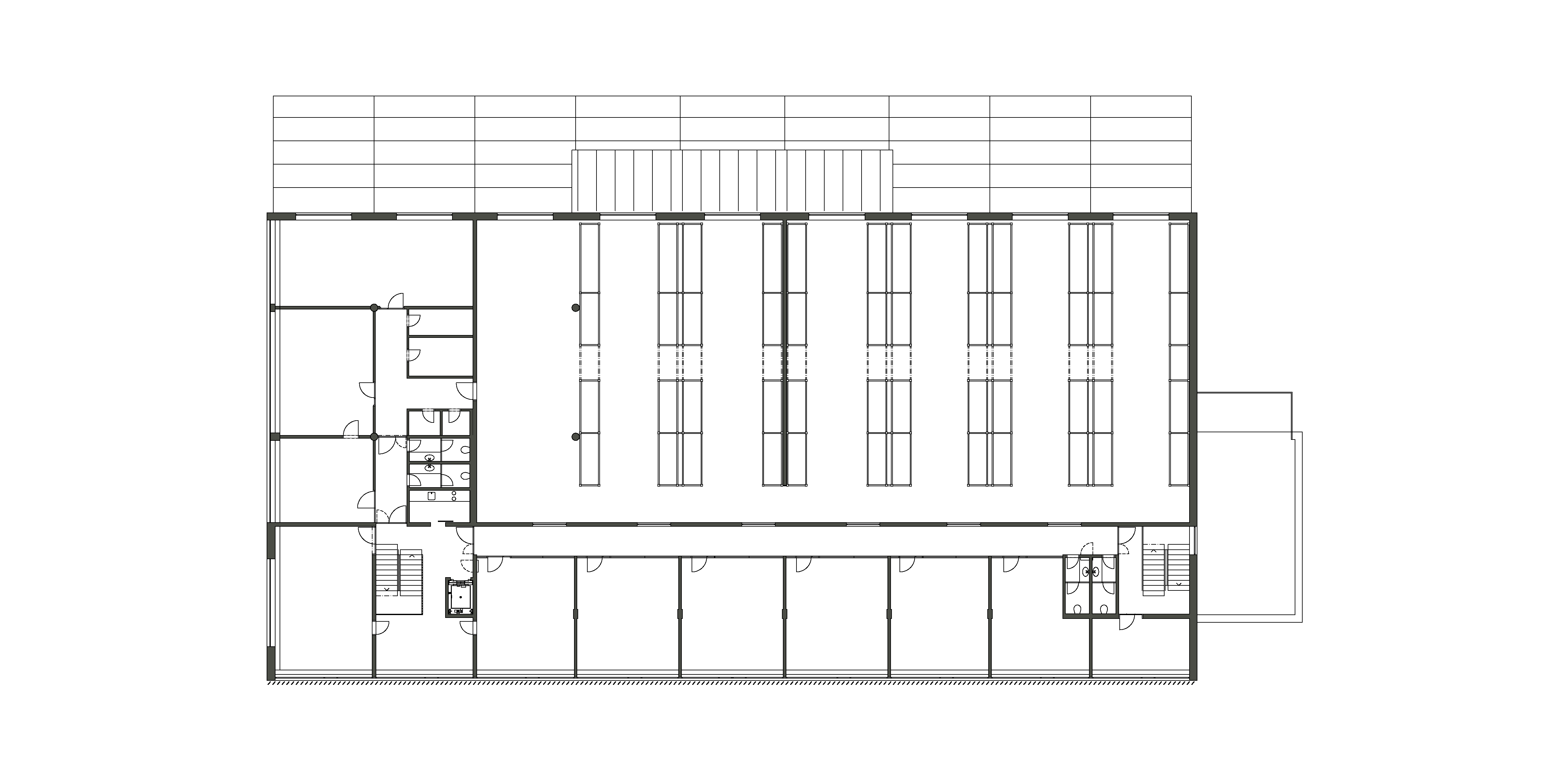
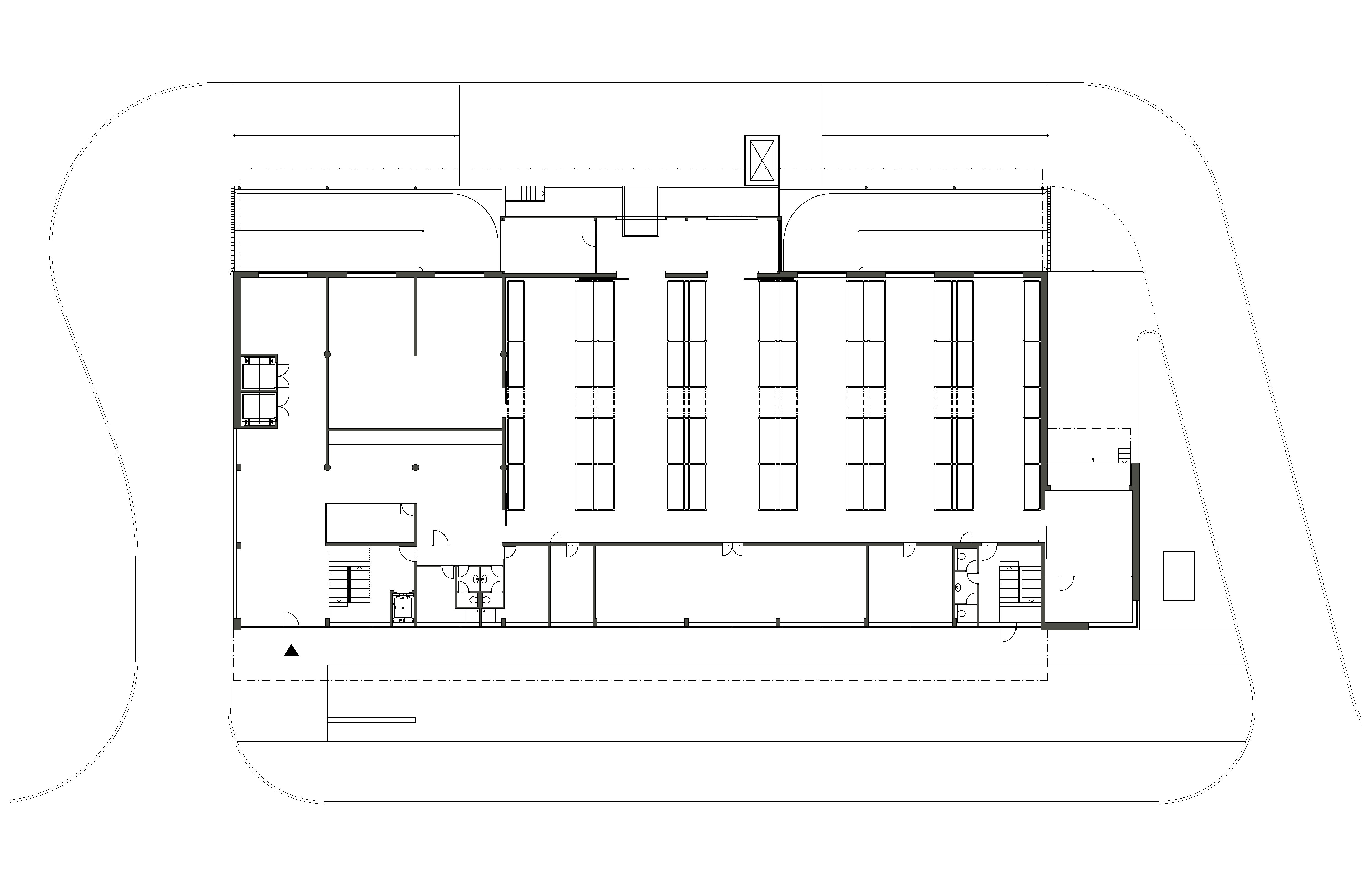
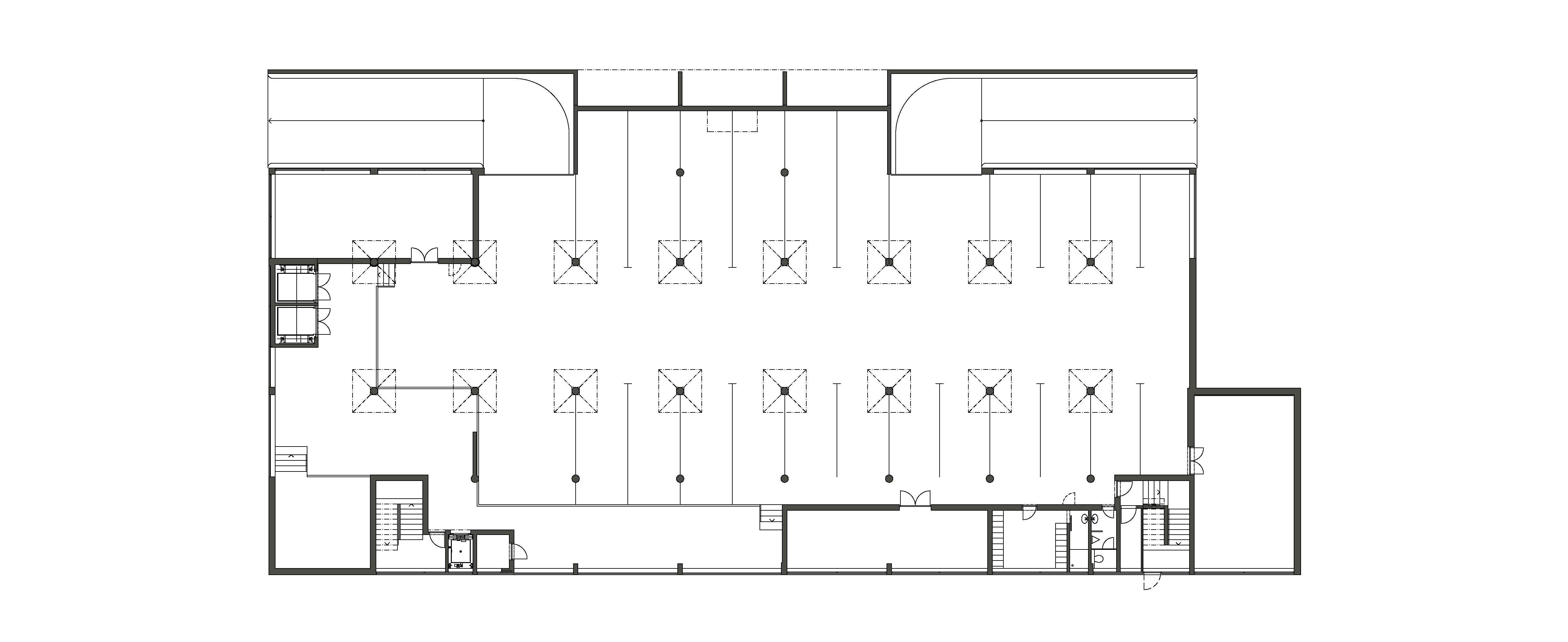
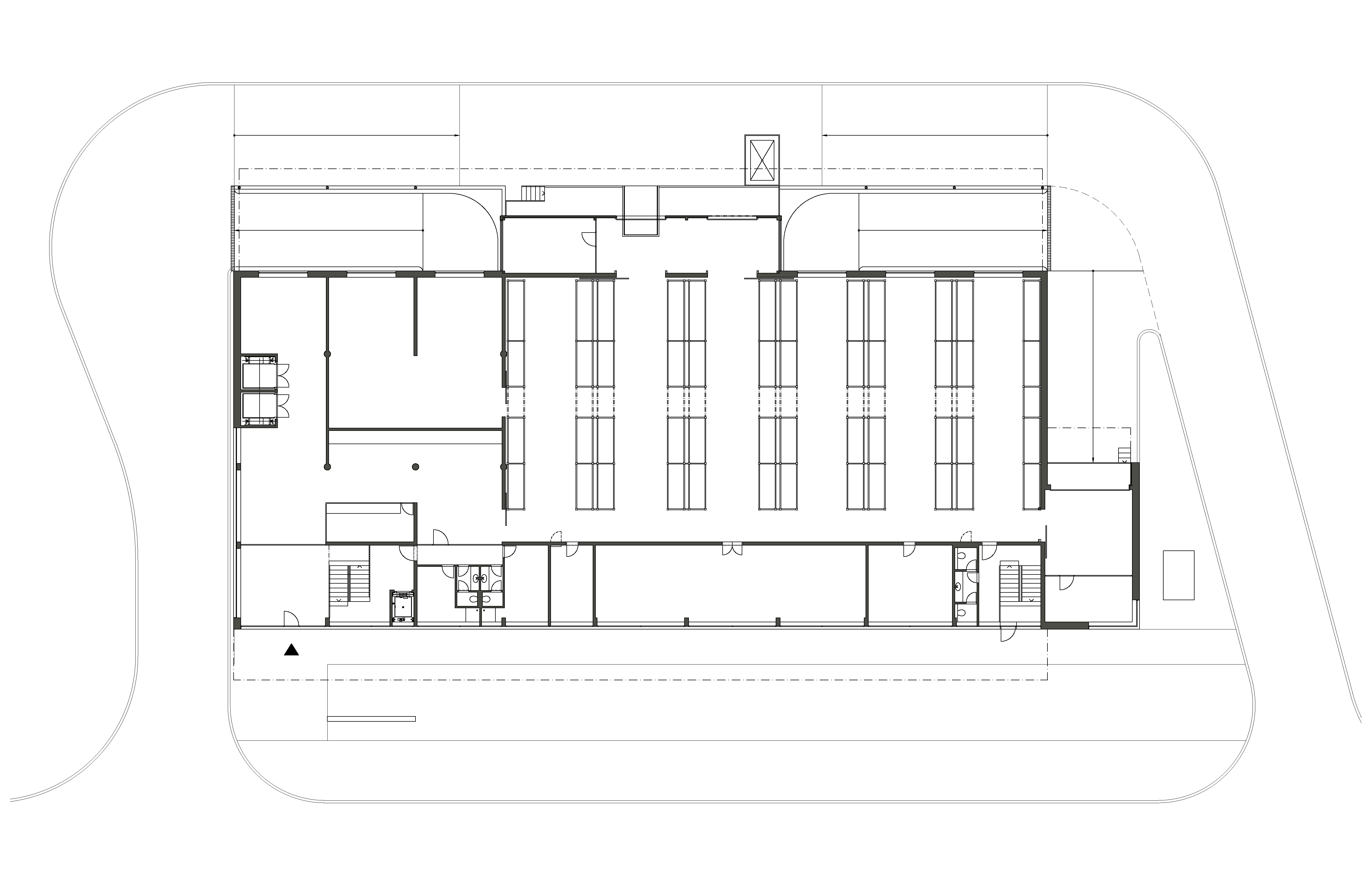
Nová budova firmy Intherpharm sa nachádza v Podunajských Biskupiciach, na križovatke ulíc Dvojkrížna a Korytnická. Hranice pozemku kopírujú línie hlavných dopravných ťahov v území. Z východnej strany je parcela ohraničená železničnou traťou a na západe susedí s frekventovanou cestou. Okolie nového distribučného a skladového centra je naozaj rôznorodé. Tvorí ho zmes rôznych funkcií a vnemov – paneláky, priemyselné haly, areál školy, rodinné domy...
Objekt je sídlom, skladom a distribučným centrom spoločnosti, ktorú živí farmaceutický priemysel. Firma obchoduje s liečivami, zdravotníckym materiálom a malou zdravotníckou technikou.
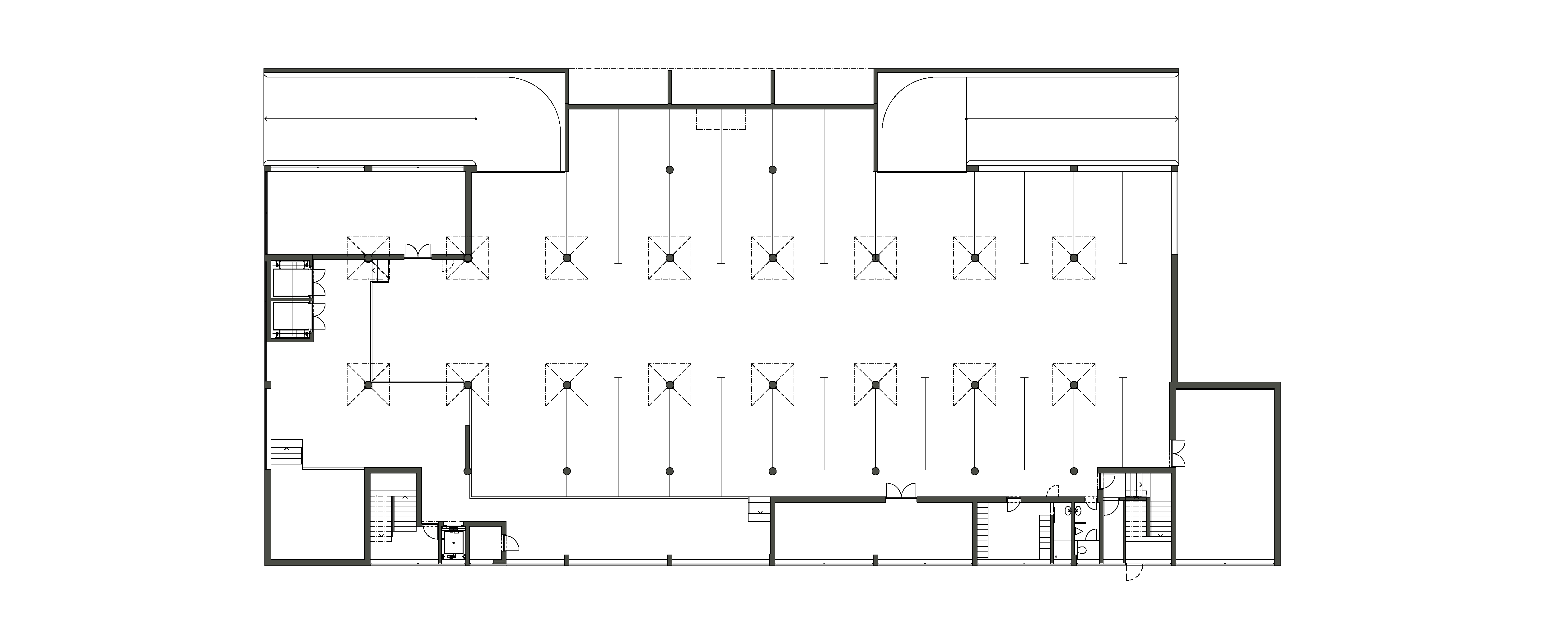
Kompaktnú hmotu budovy tvoria dve previazané časti. Dvojpodlažná administratívna časť orientovaná do ulice a vysoký sklad so zázemím zásobovania. O distribúciu a prísun tovaru sa starajú veľké nákladné autá. V suteréne sa nachádzajú skladové priestory určené na na operatívnu distribúciu na odberné miesta po celom Slovensku. Prevádzka sa vyznačuje náročnou logistikou. Zložitá prevádzka efektívne využíva limitovaný priestor na úzkom pozemku.
Uličné priečelie pred západným slnkom chránia zvislé hliníkové žalúzie. Signálne žltá farba a jemný raster fasády zvýrazňujú vertikalitu budovy a vytvárajú premenlivú farebnú dynamiku vnímateľnú najmä počas jazdy autom. Budova aj vďaka tomuto prvku nadobúda vlastnú identitu. Východná fasáda je riešená striktne utilitáne.
Najväčší objem z vnútorných priestorov zaberá distribučný sklad a parkovanie s dopravnou logistikou. Interiér je riešený s ohľadom na funkciu. Betónové konštrukcie sú väčšinou ponechané bez povrchových úprav, rovnako ako oceľové konštrukcie zastrešenia a schodiska. Budova sa nesnaží zakryť svoju stavebnú podstatu. Žltá farba vniká aj do interiéru a pôsobí ako jediný farebný akcent v rámci budovy.
Podklady: ALEXY & ALEXY