Na podujatí sa predstaví až 37 vystavovateľov - popredných dodávateľov stavebných materiálov a inovácií s prezentáciou...
Novotvar v prostredí alpskej obce.
Hansgrohe - prémiová značka kúpeľňových riešení, ponúka nadčasový dizajn, technickú precíznosť a udržateľné inovácie...
Využite špeciálnu akciu Internorm: okná za minuloročné ceny a hliníkový kryt úplne zadarmo. Ponuka je časovo obmedzená!
Sumarizácia najdôležitejších inovácií, ktoré redefinujúcich využitie tohto energetického zdroja.
AMPHIBIA 3000 GRIP 1.3 od spoločnosti ATRO predstavuje modernú hydroizolačnú technológiu, ktorá spája vysokú odolnosť,...
Ambiciózne plány EK narazili na ekonomické možnosti domácností v jednotlivých členských štátoch –...
IDEA DOOR od spoločnosti JAP prináša do interiéru čistý minimalistický vzhľad vďaka bezrámovému riešeniu a precíznej...
Kontinuita riešenia od vonkajšieho obkladu až po kovania a kľučky.
Nástenné nadomietkové armatúry Vitus sú mimoriadne vhodné pre rýchlu a efektívnu...
Okenné profily z kompozitného materiálu RAU-FIPRO X od spoločnosti Rehau sú v porovnaní s tradičnými plastovými profilmi mnohonásobne...
Najnovší sortiment stolov pre zariadenie interiérov...
Spojenie moderného dizajnu, funkčnosti a svetla do harmonického architektonického prvku.
Kancelárska budova Baumit v slovinskom Trzine prešla premenou na moderné a udržateľné pracovisko. Architekti kládli dôraz...
Mottom šiesteho ročníku on-line konferencie odborníkov Xella Dialóg je Efektívny návrh budov 2025+: zmeny a riešenia

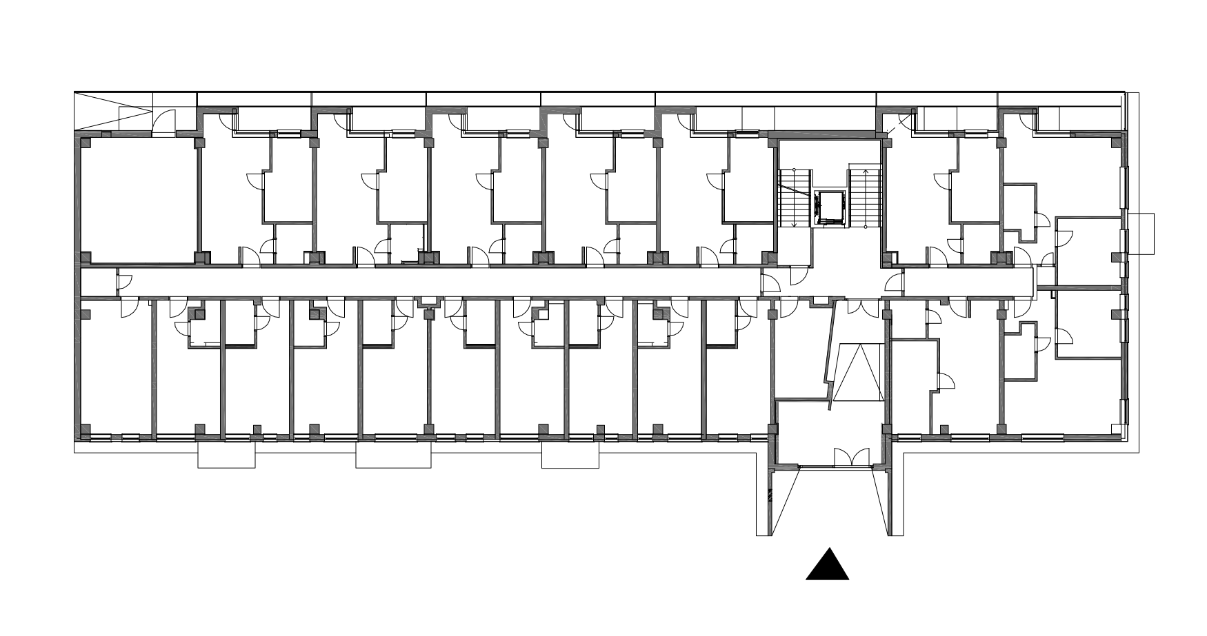
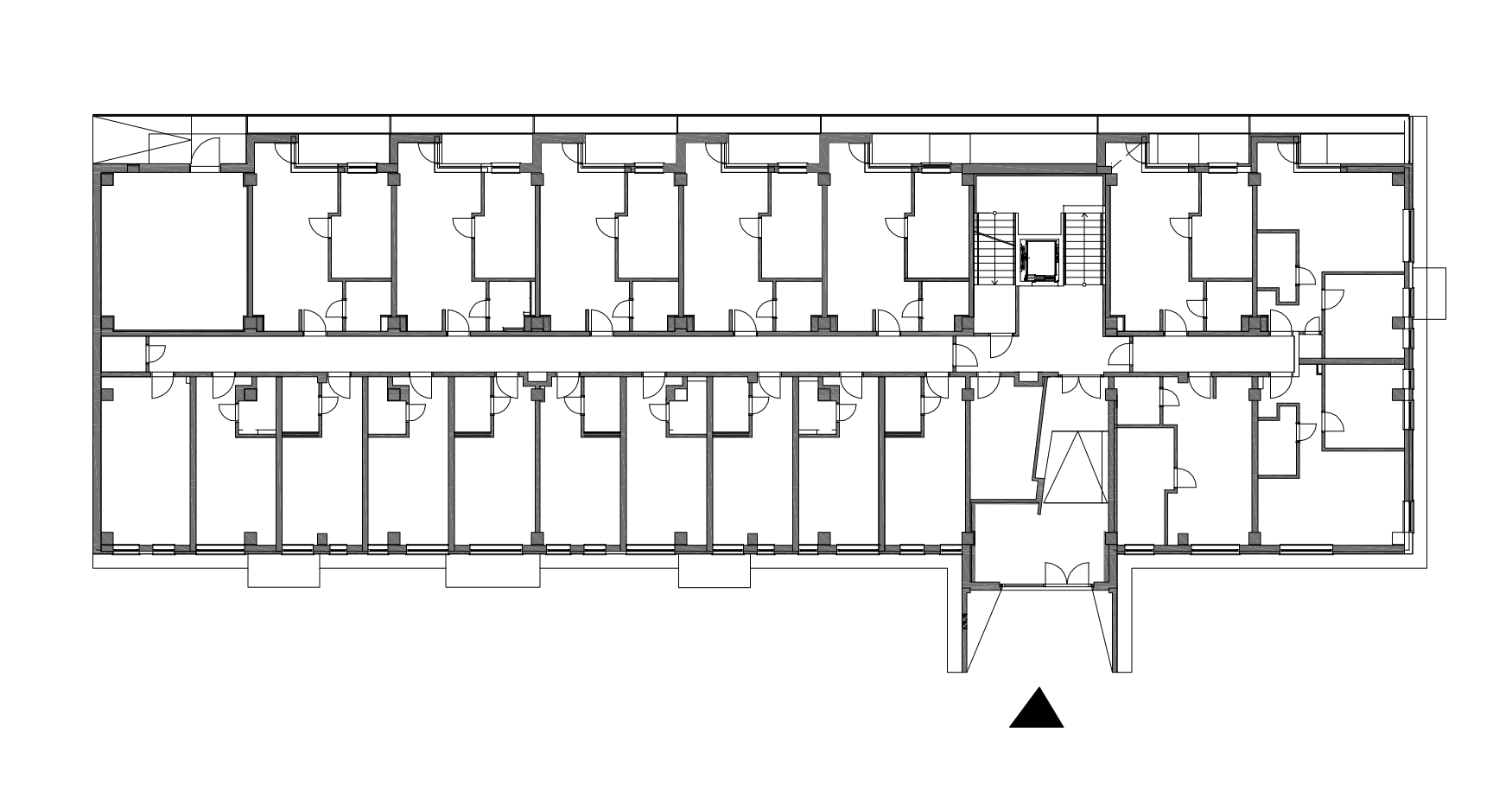
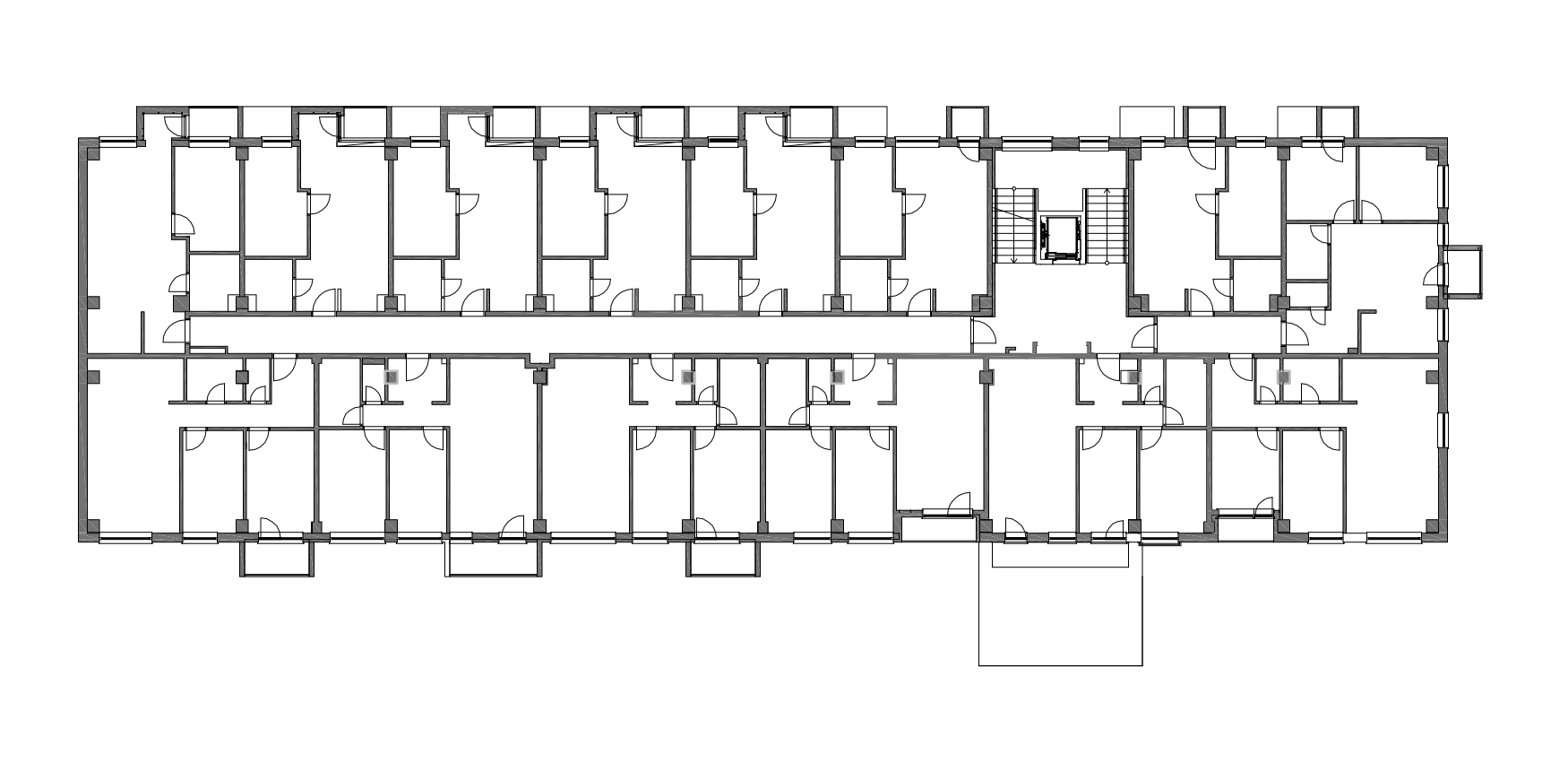
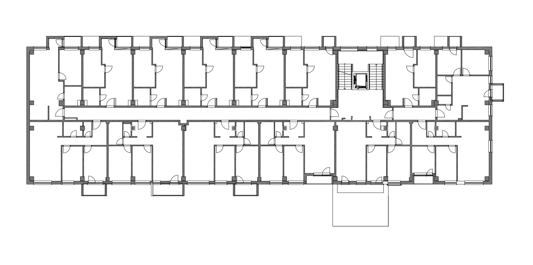
Bytový dom Dornyk ukazuje, že rozpočet nemusí limitovať architektúru. Rekonštrukciou starej opustenej školy vznikol funkčný bytový dom plný malometrážnych bytov. V dnešnej dobe je veľký záujem o malometrážne byty a dostupné bývanie, predovšetkým medzi mladými ľuďmi. To predstavuje výzvu pre architektov pri koncipovaní mestskej architektúry.
Dornyk prináša 150 nových jedno až trojizbových bytov v troch etapách. V prvej fáze bola nevyhnutná kompletná rekonštrukcia existujúcej budovy. Pôvodný železobetónový skelet získal nové obvodové steny, vnútorné priečky, zariadenia, rozvody elektriny, kanalizácie a pod. V prvej etape vzniklo 61 bytov. V druhej etape bola zrekonštruovaná budova nadstavaná o ďalšie tri nadzemné podlažia. V tretej etape bola realizovaná dostavba s parkovacím domom, v rozsahu približne rovnakom ako rekonštrukcia s nadstavbou. Dostavba kompletizuje celkový objem bytového domu pri zachovaní charakteristického výrazu predošlých etáp. Prvé dve podlažia sú riešené v dostavbe ako parkovací dom a plné bytové podlažie začína od tretieho a končí ôsmym podlažím.
Architektúra bytového domu je moderná a dynamická. Odzrkadľuje dobu flexibility a účelnosti a súčasne vyniká aj snahou po odlišnosti. Dornyk prináša kvalitnú architektúru do segmentu cenovo dostupného bývania. Dispozície sú navrhnuté ekonomicky a racionálne. Byty v rekonštruovanej časti (vzhľadom na vyššiu svetlú výšku) ponúkajú rôzne úložné priestory a možnosť pohrať sa s úrovňami v byte. Strohá skladba malometrážnych bytov je doplnená rozohranou kompozíciou exteriérových prvkov fasády.
Exteriér budovy je hravý a farebný. Západná fasáda budovy je pokrytá nepravidelne rozmiestnenými lodžiami kontrastných farieb. Východná fasáda je tvorená prepleteným gradientom arkierov a farebných balkónov. Táto fasáda je dôkazom, ako sa dá nepriaznivá orientácia budovy v dôsledku svetlo technických a architektonických opatrení zmeniť na atraktívnu a tektonicky zaujímavú fasádu. Takto osadené arkiere vytvárajú súkromný priestor na fasáde pre jednotlivé byty.
Interiér budovy je pretavením jej vonkajšej atmosféry. Dve základne farby na bielom pozadí sa striedajú na podlahách jednotlivých podlaží a delia ich na párne a nepárne podlažia. Vstupné zádverie je poňaté ako postupne sa zužujúci priestor s dynamicky stvárneným led osvetlením.
Napriek konštrukčne úplne odlišným etapám sa výsledný objekt javí ako jednotný kompaktný mestský bytový dom. Bytový dom Dornyk v sebe spája atraktívne a zároveň dostupné mestské bývanie. Výsledkom je veselo a moderne pôsobiaca budova, postavená s ohľadom na energetickú aj ekonomickú efektívnosť.
Podklady: Šebo Lichý